Два жилых комплекса в одном и том же квартале вплотную друг к другу. Не сравнивать их невозможно. И даже менеджеры продаж говорят: большинство клиентов посещает оба объекта. Один из них — ЖК "Город" — тайный покупатель уже проверял, пришло время оценить ближайшего соседа ЖК "Летний сад". Комплекс сдаётся почти на год позже. Какие ещё особенности, расскажем в обзоре тайного покупателя.
Садовник кто? Поговорим о застройщике
Квартиры в "Летнем саду" продаются под брендом "Эталон инвест". Но это лишь коммерческое название организации. Проектная декларация указывает на застройщика ООО "УК "Дмитровская". Учредитель этой компании со 100% пакетом акций — известное акционерное общество "Эталон ЛенСпецСМУ".
На начало 2018 года в списке реализованных значится 39 объектов "Эталон ЛенСпецСМУ". Большинство из них находится в Санкт-Петербурге. В московском регионе сдан только ЖК "Золотая звезда" на проспекте Будённого. Частично введены в эксплуатацию ЖК "Изумрудные холмы" в Красногорске и "Эталон-сити" в Северном Бутово.
Все три очереди ЖК "Эталон-сити" были сданы в срок. Задержки случались в ЖК "Изумрудные холмы", но тогда ещё застройщик продавал квартиры по договорам ЖСК, поэтому не был ограничен жёсткими временными рамками. Тайный обзор о ЖК "Эталон-сити" мы публиковали ранее, ЖК "Изумрудные холмы" тайный покупатель проверял летом 2017 года. Из этих материалов можно подробнее узнать о застройщике.
![ЖК "Летний сад": оранжерея новых квартир - Фото 1]()
ЖК "Золотая звезда" - первый полностью завершённый проект "Эталона Инвест" в московском регионе. Фото застройщика ![ЖК "Летний сад": оранжерея новых квартир - Фото 2]()
В 2018 году планируется завершить масштабный проект "Эталон-сити" в Бутово. Фото застройщика ![ЖК "Летний сад": оранжерея новых квартир - Фото 3]()
Не менее масштабный проект строится в Красногорске. В ЖК "Изумрудные холмы" введено в эксплуатацию более десяти 25-этажных домов ![ЖК "Летний сад": оранжерея новых квартир - Фото 4]()
Срок сдачи ЖК "Нормандия" перенесён с конца 2019 на начало 2020 года. Фото застройщика ![ЖК "Летний сад": оранжерея новых квартир - Фото 5]()
ЖК "Серебряный фонтан" в Алексеевском районе столицы построят к 2021 году. Фото застройщика
Где разбит "Летний сад"?
Дмитровский район, хоть и находится в черте Москвы, всегда считался труднодоступным – метрополитен обходил его стороной. Перспектива развития подземки заметно добавила ему привлекательности.
Рекламные буклеты ЖК "Летний сад", отпечатанные ещё в начале проекта, до сих пор обещают открытие станции "Селигерская" в конце 2017 года. Но столичные власти подвели маркетологов "Эталона", на дворе февраль — а метро так и не открыли. Запустить движение поездов на участке от "Петровско-Разумовской" до "Селигерской" планируется 15 марта 2018 года.
К заселению первой очереди станция "Селигерская" уже будет функционировать. Вестибюли расположены в 1,5 км от корпусов. Если идти пешком, то по Дмитровскому шоссе. Те автобусы, что ходят до "Петровско-Разумовской", будут останавливаться и у "Селигерской".
После 2019 года на развилке Дмитровского и Коровинского шоссе появится транспортно-пересадочный узел "Селигерская", в состав которого войдёт и междугородный автовокзал. В рамках строительства будет расширен участок Дмитровского шоссе.
Следующей за "Селигерской" на Люблинско-Дмитровской линии станет станция "Улица 800-летия Москвы". И вот она-то расположится ближе всего к ЖК "Летний сад". Про наземный транспорт можно будет забыть. Вестибюли на расстоянии от 150 до 450 метров — в зависимости от корпуса. Новая станция будет открыта в составе участка "Селигерская — Физтех" в 2020-2021 году.
На автомобиле, если двигаться по Дмитровскому шоссе в центр, то съехать на Третье транспортное кольцо можно через 10 км. Добраться до Садового — через 12,5 км, по свободной дороге это займёт 20 минут.
В 1,5 км от ЖК "Летний сад" также находится платформа "Бескудниково". С улицы 800-летия Москвы до неё можно за 10 минут доехать на автобусах №748 или №857. Электропоезд до Савёловского вокзала идёт 15 минут.
![ЖК "Летний сад": оранжерея новых квартир - Фото 6]()
Именно на этом перекрёстке, на пересечении Дмитровского шоссе и улицы 800-летия Москвы, к 2021 году должны появиться вестибюли станции метро "Улица 800-летия Москвы" ![ЖК "Летний сад": оранжерея новых квартир - Фото 7]()
Пока что до ближайшего метро "Петровско-Разумовская" можно добраться транспортом за 15-30 минут ![ЖК "Летний сад": оранжерея новых квартир - Фото 8]()
Помимо "Петровско-Разумовской" жителям района доступны метро "Речной вокзал" и станция "Ховрино" Ленинградского направления ![ЖК "Летний сад": оранжерея новых квартир - Фото 9]()
Если ехать прямо по Дмитровскому шоссе, отсюда до центра Москвы 20 минут. Разумеется, не в тот день, когда столицу накрыл снегопад
Проект "Летнего сада"
На генплане "Летнего сада" 11 корпусов от 13 до 25 этажей. Самые невысокие из них позволяют избавиться от эффекта колодца и не заслоняют солнечный свет во дворе.
Территория огорожена не будет, проехать и пройти к домам сможет каждый. А вот въезд во двор для автомобилей закроют. Предусмотрены сквозные подъезды со стеклянными дверями и безбарьерным входом. В холле будет стойка для консьержа, помещения для хранения детских колясок и велосипедов. В дизайне входных групп используют "зелёную стену" из искусственных растений.
Количества машиномест на территории в офисе продаж не называют, но не стал менеджер убеждать меня и в том, что парковки всем хватит. В крайнем случае, предложил поискать место в соседнем дворе, где расположены пятиэтажки и плотность населения меньше.
Избежать крайностей позволит приобретение машиноместа в подземном паркинге. Его стоимость составляет 1 100 тыс. рублей, но можно опустить её до миллиона, если совершить единовременную покупку квартиры и паркинга. Количество машиномест на подземной парковке примерно в два с половиной раза меньше количества квартир. Например, в корпусах 4А и 4Б — 253 и 276 квартир, а мест в подземных паркингах будет 101 и 112.
Детский сад и школу на территории "Летнего сада" передадут муниципалитету. Проектных деклараций образовательных учреждений на сайте застройщика не представлено, но, по словам менеджера продаж, детский сад сможет принять около 200 воспитанников, а школа — около 800 учеников.
В пристройке к корпусам последней очереди будет расположен трехэтажный торговый центр с гипермаркетом. На первых этажах домов находятся коммерческие помещения, которые в будущем займут магазины, банки и салоны красоты. Старые гаражи вдоль Яхромского проезда собираются снести и сделать прогулочный бульвар, который протянется до парка "Ангарские пруды".
![ЖК "Летний сад": оранжерея новых квартир - Фото 10]()
"Летний сад" включает 11 корпусов. Иллюстрация застройщика ![ЖК "Летний сад": оранжерея новых квартир - Фото 11]()
Большинство домов — 25-этажные. Иллюстрация застройщика ![ЖК "Летний сад": оранжерея новых квартир - Фото 12]()
Но есть и 12-этажные башни в глубине дворов. Иллюстрация застройщика ![ЖК "Летний сад": оранжерея новых квартир - Фото 13]()
Их сделали ниже остальных для того, чтобы солнечный свет проникал во дворы и не создавался эффект колодца. Иллюстрация застройщика ![ЖК "Летний сад": оранжерея новых квартир - Фото 14]()
Территория огорожена не будет ![ЖК "Летний сад": оранжерея новых квартир - Фото 15]()
Въезд автотранспорта во дворы запрещён ![ЖК "Летний сад": оранжерея новых квартир - Фото 16]()
Детский сад рассчитан на 200 воспитанников. Иллюстрация застройщика ![ЖК "Летний сад": оранжерея новых квартир - Фото 17]()
Школа сможет принять до 800 учеников. Иллюстрация застройщика ![ЖК "Летний сад": оранжерея новых квартир - Фото 18]()
К корпусам III очереди будет пристроен 3-этажный торговый центр. Иллюстрация застройщика ![ЖК "Летний сад": оранжерея новых квартир - Фото 19]()
В отделке входных групп используют материалы натуральных оттенков. Иллюстрация застройщика ![ЖК "Летний сад": оранжерея новых квартир - Фото 20]()
Интерьер отражает тему парка или ботанического сада ![ЖК "Летний сад": оранжерея новых квартир - Фото 21]()
Стойка консьержа расположена при входе в подъезд ![ЖК "Летний сад": оранжерея новых квартир - Фото 22]()
В домах установят лифты Otis
Планировки и цены
Самые компактные студии в ЖК "Летний сад" имеют 23-25 кв. м. В таких будет совмещённый санузел и не будет лоджии. Площадь кухни-гостиной не превышает 20 кв. м. Средняя цена квартир 3 500 тыс. рублей.
Метраж студий побольше составляет 31-35 кв. м. В таких будет совмещённый санузел площадью 4 кв. м и двухметровая лоджия. Многие имеют по два окна, поэтому при желании можно оборудовать отдельную спальню. Средняя стоимость студий в комплексе составляет 5 200 тыс. рублей, таких квартир с отделкой в феврале 2018 уже не осталось.
Однокомнатные квартиры варьируется в пределах от 39 до 42 кв. м. Площадь комнаты уменьшена за счёт двух гардеробных, но перегородки можно снести. Стоимость однушек в ЖК "Летний сад" начинается от 6 000 тыс. рублей без отделки и от 6 500 тыс. рублей с отделкой.
В комплексе представлены двухкомнатные квартиры площадью от 61 до 76 кв. м. Стоимость распашенки без отделки начинается с 8 600 тыс. рублей. Двушку-линейку можно приобрести за 8 800 тыс. рублей, её метраж будет 65 кв. м. Площадь угловых двухкомнатных доходит до 76 кв. м, их продают как минимум за 9 100 тыс. рублей.
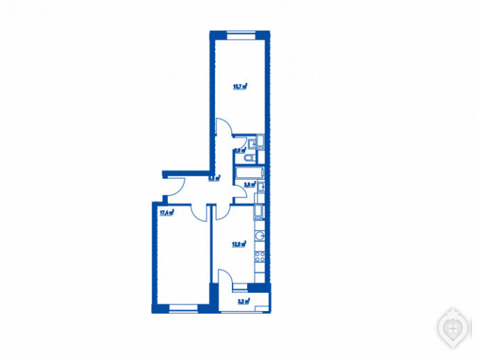
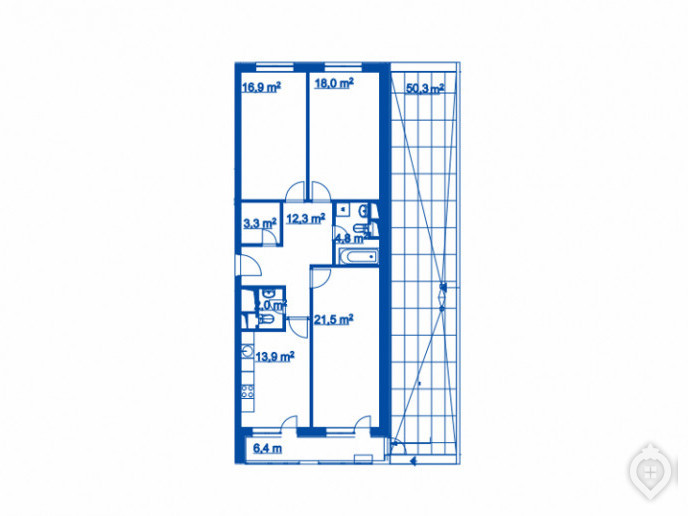
От 87 до 110 квадратов занимают трёшки. Самая дешевая продаётся за 11 700 тыс. рублей. Такие экземпляры с чистовым ремонтом стоят под 15 000 тыс. рублей. Трёхкомнатная квартира метражом 95 кв. м. без отделки обойдётся в 12 900 тыс. рублей. А если брать этаж повыше, то цена дойдёт до 15 млн.
Самая большая квартира площадью 110 кв. м имеет 50-метровую террасу — выход на крышу в просвете между секциями. Она выставлена на продажу без отделки за 14 700 тыс. рублей.
![ЖК "Летний сад": оранжерея новых квартир - Фото 23]()
За 3 500 тыс. рублей можно приобрести студию площадью 24 кв. м ![ЖК "Летний сад": оранжерея новых квартир - Фото 24]()
5 000 тыс. рублей - цена студии с лоджией, площадь такой квартиры 31 кв. м ![ЖК "Летний сад": оранжерея новых квартир - Фото 25]()
Метраж 35 кв. м, нет лоджии, зато есть два окна и возможность отделить кухню от гостиной - цена такой квартиры доходит до 5 700 тыс. рублей ![ЖК "Летний сад": оранжерея новых квартир - Фото 26]()
В однокомнатной квартире площадью 41 кв. м разместились две гардеробные. Её стоимость 6 000 тыс. рублей ![ЖК "Летний сад": оранжерея новых квартир - Фото 27]()
Двушка-распашонка площадью 61 кв. м продаётся за 8 600 тыс. рублей ![ЖК "Летний сад": оранжерея новых квартир - Фото 28]()
Двухкомнатная квартира линейной планировки стоит 8 800 тыс. рублей, метраж 65 кв. м ![ЖК "Летний сад": оранжерея новых квартир - Фото 29]()
Угловые двухкомнатные квартиры имеют 76 кв. м и продаются за 9 100 тыс. рублей ![ЖК "Летний сад": оранжерея новых квартир - Фото 30]()
Трёшка классической планировки 87 кв. м обойдётся в 11 700 тыс. рублей ![ЖК "Летний сад": оранжерея новых квартир - Фото 31]()
Трёхкомнатная квартира 95 кв. м стоит 13 млн без отделки и 15 млн с отделкой ![ЖК "Летний сад": оранжерея новых квартир - Фото 32]()
15 000 тыс. рублей просят за такую же квартиру без отделки, но с 50-метровой террасой
С отделкой и без неё
Квартиры в ЖК "Летний сад" сдаются с перегородками, но лишь в части из них будет проведена чистовая отделка. В большинстве случаев дольщик получит жилье, где:
- проведено центральное отопление;
- установлены радиаторы;
- датчики автоматической пожарной сигнализации;
- магистральные стояки водоснабжения и канализации на заглушках;
- выполнена разводка электропроводки с установкой квартирного щитка в МОП.
Чтобы предотвратить кражи, ручки на окна выдаются после заселения, счётчики горячей и холодной воды тогда же.
Все квартиры в корпусе 3А продаются с отделкой. В буклетах застройщик её позиционирует как "бизнес-класса". Шоу-рума в офисе продаж нет и, поскольку все корпуса далеки от завершения строительства, нет и показных квартир. Всё, что доступно покупателю, это перечень отделочных материалов, работ и картинки, нарисованные дизайнерами на компьютере.
Санузлы сдают под ключ. На полу и стенах — керамогранитная плитка отечественного производства, сверху — натяжной потолок с точечным освещением. Будут установлены акриловая ванна, унитаз и раковина с тумбой.
В остальных помещениях потолок оштукатурят и окрасят в белый цвет. Стены оклеивают флизелиновыми обоями под покраску, на пол кладут ламинат, устанавливают белые межкомнатные двери производства ульяновской фабрики Luxor.
Заказать отделку от застройщика можно будет в корпусах, где она не выполнена изначально. Планируется, что организацией этого займётся управляющая компания. Но надо учитывать, что в домах, которые сдают без отделки, к работам бригады приступят только после заселения. Стоимость черновой составит 5 500 тыс., чистовой — 15 500 тыс. рублей за кв. м. вместе с материалами.
![ЖК "Летний сад": оранжерея новых квартир - Фото 33]()
Стены оклеены флизелиновыми обоями под покраску Marburg из коллекции Patent Decor, окрашены краской "Текс" ![ЖК "Летний сад": оранжерея новых квартир - Фото 34]()
В комнатах ламинат Kastamonu цвета "Дуб Онтарио" ![ЖК "Летний сад": оранжерея новых квартир - Фото 35]()
Установлены межкомнатные двери Luxor белого цвета (произведены в Ульяновске) ![ЖК "Летний сад": оранжерея новых квартир - Фото 36]()
Потолок в комнатах, коридоре и на кухне выровнен и окрашен белой краской ![ЖК "Летний сад": оранжерея новых квартир - Фото 37]()
Акриловая ванна "Акватек Либра", унитаз Santek или "Лига", раковина "Дрея", сантехника Grohe или Euroeco - санузлы в квартирах сдаются под ключ
Как приобрести квадратные метры в "Летнем саду"
Офис продаж застройщика расположен возле стройплощадки. Временный павильон стоит на перекрёстке Дмитровского шоссе и улицы 800-летия Москвы. Сотрудник на ресепшене встречает гостей, предлагает чай и кофе. Можно оставить верхнюю одежду на вешалке, что важно в зимнее время. Общение с менеджером происходит за отдельным столом. Само помещение — светлое и просторное.
Представитель застройщика расскажет о комплексе и на объёмном макете сориентирует по сторонам света. В феврале 2018 года выбор квартир был небольшим, но менеджер проанонсировал появление нового пула жилья уже в марте. При этом большинство из вновь выставленных на продажу квартир будет продаваться по переуступке прав от юридического лица, а не по ДДУ от застройщика. Причины этого в офисе объяснить не смогли, сказав только, что юридическое лицо будет "своим" и волноваться не о чем.
Консультация с юристом принесла больше полезной информации. Выяснилось, что использование договора уступки прав вместо долевого участия может говорить о желании застройщика вывести денежные средства из-под целевого назначения. Но какие были намерения у "УК "Дмитровская" нам неизвестно, поэтому обратим внимание на минусы заключения такого договора для покупателя.
Закон "О защите прав потребителей" на сделки между двумя юридическими лицами не распространяется. При этом покупатели квартир по договору уступки не будут защищены. Ведь уступка регулируется теми же законами, что и при подписании первоначального договора. И ещё. Если дело в суде дойдёт до неустойки, то штраф будет рассчитан из суммы, указанной в договоре между юрлицами, а не из той, которую заплатило физлицо по договору уступки прав.
За бронирование квартиры в ЖК "Летний сад" денег не берут. В течение 5 дней после этого необходимо выйти на подписание договора, а после регистрации в Росреестре оплатить покупку. До конца февраля 2018 года действует акция, поэтому регистрация будет бесплатной. Ранее стоимость её составляла 35 тыс. рублей. Есть надежда, что акцию продлят, но время покажет.
В феврале также действует акция по беспроцентной рассрочке на год. Но в этом случае покупатель лишится скидки в 10% от стоимости жилья, которую получает клиент при единовременной оплате. При рассрочке скидка составит лишь 5% от размера первоначального взноса.
Самую низкую процентную ставку по ипотеке в ЖК "Летний сад" предлагает Сбербанк — 7,4%. Но в этом случае первоначальный взнос не должен быть менее 15%, а срок кредитования составит только 7 лет. Среди банков, которые выдают займ на долгий срок и при этом ставка у них не превышает 10% — ВТБ24, "Газпромбанк", "Открытие", "Альфа-банк" и другие. Ипотечные программы с первоначальным взносом 0% предлагают "Металлинвестбанк" и "СМП-банк".
![ЖК "Летний сад": оранжерея новых квартир - Фото 38]()
Офис продаж находится по адресу: Дмитровское шоссе, вл. 107. Подъехать к зданию можно через автозаправку со стороны улицы 800-летия Москвы ![ЖК "Летний сад": оранжерея новых квартир - Фото 39]()
При входе клиентов встречает сотрудник, есть зона ожидания ![ЖК "Летний сад": оранжерея новых квартир - Фото 40]()
Офис просторный, столы менеджеров продаж расставлены на расстоянии друг от друга. ![ЖК "Летний сад": оранжерея новых квартир - Фото 41]()
Взглянуть на комплекс с высоты можно, используя объёмный макет, что установлен в центре помещения ![ЖК "Летний сад": оранжерея новых квартир - Фото 42]()
На столах у менеджеров также расставлены миниатюрные экземпляры макета
Как строят "Летний сад"
Корпуса 4А и 4Г планируют ввести в эксплуатацию в IV квартале 2018 года. Они дальше всех находятся от Дмитровского шоссе и от будущего метро "Улица 800-летия Москвы". Зато окна выходят на тихий Яхромский проезд, вдоль которого будет прогулочная зона вместо гаражей. В феврале 2018 корпуса стоят под крышей, возведение внешних стен завершено, идёт утепление фасада.
Во второй этап строительства вошли все остальные корпуса, которые в данный момент есть в продаже: 2А, 2Б, 2В, 2Г, 3А, 3Б, 3В. Часть из них, например, 20-этажные башни 2Г и 2В, уже возведены в полную высоту. Напротив них — 25-этажный корпус 2Б, который тоже стоит под крышей. Скелеты этих домов постепенно обрастают наружными стенами. В корпусах 2А, 3А и 3Б строители заливают монолит на уровне средних этажей. Дома второго этапа будут вводить в эксплуатацию в I квартале 2019 года.
Остаётся ещё два дома, строительство которых пока не начато. Им ещё не присвоены номера. Последние две 25-этажки будут сдавать не ранее 2020 года. Они расположатся вдоль Дмитровского шоссе, расстояние до магистрали составит не более 50 метров. В этих домах будет расположен торговый центр.
Строительство детского сада и школы пока не начато, но в офисе продаж обещают, что образовательные учреждения откроют свои двери в сентябре 2020 года.
![ЖК "Летний сад": оранжерея новых квартир - Фото 43]()
Так стройплощадка ЖК "Летний сад" выглядит в феврале 2018 года: примерно половина из строящихся корпусов уже возведена в полную высоту. Фото застройщика ![ЖК "Летний сад": оранжерея новых квартир - Фото 44]()
На переднем плане корпус 2Б, где строители возводят наружные стены, справа от него завершается возведение корпуса 2А ![ЖК "Летний сад": оранжерея новых квартир - Фото 45]()
Корпус 4А сдаётся одним из первых - в конце 2018 года, идёт утепление фасада ![ЖК "Летний сад": оранжерея новых квартир - Фото 46]()
Корпус 3Б находится на стадии возведения средних этажей ![ЖК "Летний сад": оранжерея новых квартир - Фото 47]()
Несмотря на то, что стадии строительства корпусов сейчас заметно отличаются, большинство из них будут вводить в эксплуатацию одновременно - в 1 квартале 2019 года. Фото застройщика
Экология и инфраструктура района
Дмитровский район, как и Западное, и Восточное Дегунино, никогда не славился благоприятной экологией. Здесь всё-таки два крупных шоссе — Дмитровское и Коровинское. Неподалёку строят Северо-Восточную хорду, да и МКАД всего 2,5 км от ЖК "Летний сад".
А как раз перед московской кольцевой стоит ТЭЦ-21 — одна из крупнейших теплоэлектростанций в Европе и головная боль жителей САО. Причём, в прямом смысле этого выражения. Диоксид серы и азота, угарный газ, которые ТЭЦ выбрасывает в атмосферу, вызывают головную боль.
Зато с инфраструктурой, в том числе, медицинской, в Дмитровском районе проблем нет. Поликлиника находится в 500 м от ЖК "Летний сад". В соседних дворах есть школы и детские сады.
Гордостью района после реконструкции стал парк "Ангарские пруды". Он расположился в 350 м от комплекса. На территории парка есть площадки для занятий различными видами спорта, высажен яблоневый сад и лиственничная аллея. Летом на пруду работает лодочная станция. Дети занимаются в конно-спортивном клубе. Подробнее об "Ангарских прудах" мы рассказывали в тайном обзоре о ЖК "Город". Там же вы сможете найти фотографии осеннего парка.
![ЖК "Летний сад": оранжерея новых квартир - Фото 48]()
Напротив ЖК "Летний сад" располагается торгово-офисный центр ![ЖК "Летний сад": оранжерея новых квартир - Фото 49]()
Здесь есть супермаркет, отделение банка и другие торговые точки ![ЖК "Летний сад": оранжерея новых квартир - Фото 50]()
В 5-минутной шаговой доступности "Пятёрочка", Billa, "Магнит" ![ЖК "Летний сад": оранжерея новых квартир - Фото 51]()
Школа 771 - ближайшая к комплексу - находится по другую сторону Яхромского проезда ![ЖК "Летний сад": оранжерея новых квартир - Фото 52]()
В соседнем от школы дворе расположен и детский сад ![ЖК "Летний сад": оранжерея новых квартир - Фото 53]()
Окна в корпусах 4А и 2А будут выходить на Яхромский проезд ![ЖК "Летний сад": оранжерея новых квартир - Фото 54]()
Гаражи здесь снесут и сделают прогулочную зону
- 3/5транспорт
- 2/5экология
- 3/5инфраструктура
- 3/5цена/качество






















































Добавить отзыв