ЖК "Внуково 2017" не уникален. В хорошем смысле. Его старший брат — "Внуково 2016" — уже построен и заселён. Только первый квартал объектами инфраструктуры был обделён. Школа и детский сад появятся в комплексе под индексом "2017". Дома здесь уже построены, ведётся чистовая отделка, а значит, есть на что посмотреть. Отправляемся на запад ближайшего Подмосковья.
О застройщике
Застройщиком "Внуково 2017" выступает ООО "Милвертин", которое входит в группу компаний "Самолёт". Девелопер не новичок на строительном рынке Москвы и области. Большинство его проектов отличаются масштабностью. Крупные территории фирма застраивает в Видном и Одинцово. Зачастую очередям присваивается индекс года, в котором ведётся строительство. Так появились жилые комплексы "Люберцы 2015, 2016, 2017, 2018", "Октябрьский 2016", "Внуково 2016" и "Томилино 2018".
Компания "Самолёт" вводит объекты в эксплуатацию вовремя. На форумах дольщики чаще всего недовольны чистовой отделкой, но есть и те, кому ремонт в квартире понравился.
В группу входят предприятия различного направления: архитектурное бюро, инженерно-техническая разработка, отделы маркетинга и продаж и управляющая компания, которая осуществляет обслуживание построенных объектов.
Подробнее о застройщике ГК "Самолёт" мы рассказывали в обзоре о ЖК "Пригород Лесное", который тайный покупатель посещал летом 2017 года.
![ЖК "Внуково 2017": под крылом самолёта - Фото 1]()
В 24 корпусе ЖК "Люберцы 2017" идёт заселение. Фото застройщика ![ЖК "Внуково 2017": под крылом самолёта - Фото 2]()
Корпус 9 в ЖК "Томилино" в декабре 2017 года: монолитные работы на уровне 9-11 этажей, на нижних этажах строители приступили к укладке внешних стен. Фото застройщика ![ЖК "Внуково 2017": под крылом самолёта - Фото 3]()
Вид на корпуса 1 и 3 со стороны 4 дома. Квартал "Спутник" в Одинцово. Фото застройщика ![ЖК "Внуково 2017": под крылом самолёта - Фото 4]()
В 1 корпусе ЖК "Пригород Лесное 2.0" завершается остекление лоджий. Фото застройщика
"Внуково 2016" как образец
ЖК "Внуково 2016" хоть и называется комплексом, является I очередью масштабной застройки близ деревни Ликова в поселении Внуковском. II очередью станет ЖК "Внуково 2017". Объекты инфраструктуры будут общими, а границ между очередями нет. Дома построены рядом друг с другом в едином архитектурном стиле.
Первая очередь была сдана в декабре 2016 года. Это 9 домов. Корпуса с 1 по 6 имеют по 14 этажей, 7, 8 и 9 — семнадцатиэтажки. Квартал производит впечатление обжитого. Поскольку все квартиры здесь сдавались с чистовой отделкой, дольщики могли сразу заселиться. Во дворах расположены детские площадки и много машин.
Автомобили припаркованы на площадках для пожарной техники и на тротуарах — так, что не дают разъехаться двум встречным авто, а на поворотах закрывают обзор водителям.
В двери подъездов врезаны домофоны Eltis, при входе работает консьерж. Видеонаблюдения нет. Установлены лифты Wellmaks Щербинского завода — по одному пассажирскому и одному грузопассажирскому на подъезд. Пожарная лестница имеет естественное освещение. Почти на каждом подоконнике стоят стеклянные банки, которые используют в качестве пепельниц, и висят объявления жильцов с просьбами не курить в подъезде, так как дым идёт в квартиры. Но компромисс, судя по всему, не найден. Выйти из подъезда можно как на одну сторону дома, так и на другую.
Казалось бы удивительно, но за несколько часов прогулки по комплексу и стройплощадке, звук авиационных двигателей я слышала всего пару раз. То ли аэропорт не сильно загружен, то ли самолёты взлетают в другую сторону, но тут и не подумаешь, что через дорогу — аэродром.
![ЖК "Внуково 2017": под крылом самолёта - Фото 5]()
ЖК "Внуково 2016" заселили в начале 2017 года ![ЖК "Внуково 2017": под крылом самолёта - Фото 6]()
Основная часть фасада облицована полнотелым кирпичом ![ЖК "Внуково 2017": под крылом самолёта - Фото 7]()
Система вентилируемого фасада установлена только на высоте 1 и 2 этажей ![ЖК "Внуково 2017": под крылом самолёта - Фото 8]()
Плитка может быть коричневого или тёмно-синего цвета ![ЖК "Внуково 2017": под крылом самолёта - Фото 9]()
Окна первых этажей располагаются над землёй на высоте не боле полуметра ![ЖК "Внуково 2017": под крылом самолёта - Фото 10]()
Во вдорах располагаются детские городки, в том числе, для самых маленьких ![ЖК "Внуково 2017": под крылом самолёта - Фото 11]()
Для детей постарше здесь есть площадки со спортивными конструкциями ![ЖК "Внуково 2017": под крылом самолёта - Фото 12]()
Малые тропические архитектурные формы здесь хорошо переживают зиму ![ЖК "Внуково 2017": под крылом самолёта - Фото 13]()
Парковка в запрещённых местах - повсеместное явление для ЖК "Внуково 2016" ![ЖК "Внуково 2017": под крылом самолёта - Фото 14]()
Машины припаркованы с двух сторон проезжей части и на тротуарах ![ЖК "Внуково 2017": под крылом самолёта - Фото 15]()
Некоторые обойти возможно только по дороге, особенно если транспортное средство припарковано на пути мамы с коляской ![ЖК "Внуково 2017": под крылом самолёта - Фото 16]()
В подъездах установлены домофоны Eltis ![ЖК "Внуково 2017": под крылом самолёта - Фото 17]()
За металлической дверью располагается ещё две пары дверей, поэтому даже на первом этаже в подъезде тепло ![ЖК "Внуково 2017": под крылом самолёта - Фото 18]()
При входе находится помещение для консьержа ![ЖК "Внуково 2017": под крылом самолёта - Фото 19]()
В данном подъезде уже на 1 этаже располагаются жилые помещения ![ЖК "Внуково 2017": под крылом самолёта - Фото 20]()
Установлены пассажирский и грузопассажирский лифты ![ЖК "Внуково 2017": под крылом самолёта - Фото 21]()
Wellmaks - одна из последних серий Щербинского лифтостроительного завода ![ЖК "Внуково 2017": под крылом самолёта - Фото 22]()
Так лифтовый холл выглядит на площадке ![ЖК "Внуково 2017": под крылом самолёта - Фото 23]()
Пожарная лестница - светлая и чистая ![ЖК "Внуково 2017": под крылом самолёта - Фото 24]()
Жильцы просят других не курить здесь ![ЖК "Внуково 2017": под крылом самолёта - Фото 25]()
Но не все готовы прислушаться к соседям ![ЖК "Внуково 2017": под крылом самолёта - Фото 26]()
Фактурная штукатурка стен окрашена светлой краской ![ЖК "Внуково 2017": под крылом самолёта - Фото 27]()
Мусоропровод установлен в лифтовом холле ![ЖК "Внуково 2017": под крылом самолёта - Фото 28]()
На этаже располагается 4-5 квартир
Строительство второй очереди
Монолитно-кирпичные дома возводят по индивидуальному проекту. Фасад облицован полнотелым кирпичом светлого оттенка. Только в нижней части на 1 и 2 этажах используется система вентилируемого фасада. Цвет плитки — серый или коричневый. Высота домов, как и в первой очереди, от 14 до 17 этажей.
Поскольку госкомиссия не за горами, все дома возведены в полную высоту, завершается остекление балконов и лоджий и фасадные работы. В подъездах и квартирах уже ведётся чистовая отделка. Рабочие благоустраивают прилегающую территорию, укладывают асфальт на подъездных дорожках.
Заселение домов застройщик обещает начать уже в январе 2018 года. Процесс этот растянется до июня. Начнут, скорее всего, с 10 корпуса.
Между 13 и 10 корпусами строится детский сад с бассейном. В него смогут ходить 220 малышей. Учреждение откроют в мае 2018 года. Собственная школа на 600 учеников будет готова к сентябрю 2018 года, её строят в квартале I очереди около корпуса 8.
При въезде в микрорайон строится пятиуровневый паркинг на 1 300 машиномест. Места на первом этаже самые дорогие, стоимость доходит до 800 тыс. рублей. На верхнем уровне можно купить место за 300 тыс. рублей. С другой стороны жилого комплекса будет возведён ещё один наземный гараж на 300 автомобилей, но строительство его пока не начато.
На территории планируется также торгово-офисный центр, который дополнит инфраструктуру района и создаст дополнительное количество рабочих мест.
![ЖК "Внуково 2017": под крылом самолёта - Фото 29]()
Детский сад на 220 малышей строят в центре ЖК "Внуково 2017" ![ЖК "Внуково 2017": под крылом самолёта - Фото 30]()
В 14 корпусе завершается остекление лоджий ![ЖК "Внуково 2017": под крылом самолёта - Фото 31]()
В 16 корпусе утепляют стены 1 и 2 этажей и монтируют вентилируемый фасад ![ЖК "Внуково 2017": под крылом самолёта - Фото 32]()
В отличие от первой очереди, в ЖК "Внуково 2017" на фасадах устанавливают корзины для кондиционеров ![ЖК "Внуково 2017": под крылом самолёта - Фото 33]()
Возле 13 корпуса идёт очистка территории от строительного мусора ![ЖК "Внуково 2017": под крылом самолёта - Фото 34]()
Между 13 и 14 корпусами укладывают асфальт ![ЖК "Внуково 2017": под крылом самолёта - Фото 35]()
Во многих корпусах завершается отделка холлов, установлены лифты и входные двери в квартиры. Фото застройщика ![ЖК "Внуково 2017": под крылом самолёта - Фото 36]()
Так выглядит квартира в процессе чистовой отделки в 11 корпусе. Фото застройщика ![ЖК "Внуково 2017": под крылом самолёта - Фото 37]()
В сентябре 2018 года в жилом комплексе должны открыть школу на 600 учеников ![ЖК "Внуково 2017": под крылом самолёта - Фото 38]()
На въезде в микрорайон строится пятиуровневый паркинг на 1 300 машиномест
Планировки и стоимость квартир
В ЖК "Внуково 2017" площадь квартир начинается от 26 кв. м. Это студии, максимальный метраж которых не превышает 30 кв. м. Но их ни в одном из 10 корпусов уже нет в продаже от застройщика.
Самая компактная однушка, которую предлагает "Самолёт", имеет площадь 32 кв. м. Если такая квартира располагается на 2 этаже, её стоимость составляет 3 900 тыс. рублей, если рассматривать более высокие этажи, то в планировке появится лоджия, а цена возрастёт до 4 150 тыс. рублей. Самая крупногабаритная однушка 47 кв. м обойдется в 5 540 тыс. рублей.
Многие однокомнатные квартиры имеют привычную форму прямоугольника, окна на кухне и в комнате выходят на одну сторону. Остался небольшой процент однушек-распашонок, площадь которых 36 кв. м. Их продают за 4 130 тыс. рублей на втором этаже.
За 4 270 тыс. рублей можно купить однокомнатные квартиры площадью 35 кв. м, где кухня занимает 12 кв. м. Метраж комнаты будет такой же, а её форма асимметричной. Такое жилье продают в 12 корпусе, именно он имеет закруглённую часть.
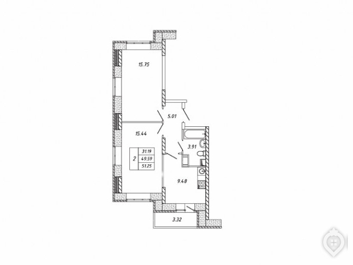
Метраж двухкомнатных квартир составляет от 49 до 56 кв. м, все они имеют распашную планировку. Средняя стоимость двушки в ЖК "Внуково 2017" 6 млн рублей.
В декабре 2017 года трёхкомнатных квартир в комплексе осталось около десятка. Изначально проектом не было предусмотрено их большое количество. Трёшки площадью от 70 до 74 кв. м продают за 7 700 тыс. рублей. Но если клиент готов жить на первом этаже, цена падает на 1,5 млн. За 6 200 тыс. рублей предлагают квартиры 70,8 кв. м на первом этаже в 13 или 15 корпусе.
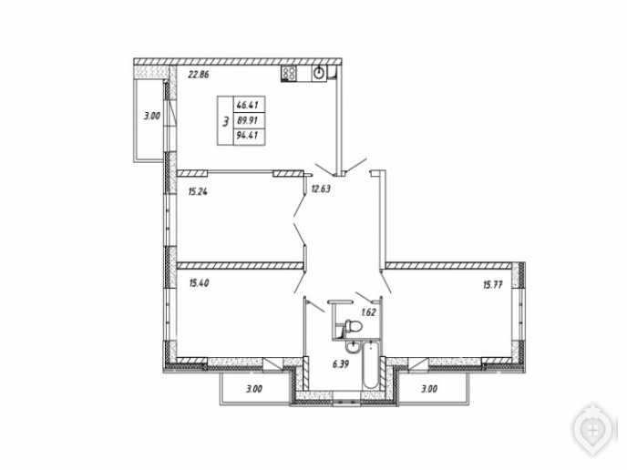
Трёхкомнатные квартиры площадью от 89 до 94 кв. м в среднем стоят 8 800 тыс. рублей. В некоторых из них есть ванная комната с окном.
![ЖК "Внуково 2017": под крылом самолёта - Фото 39]()
Студий до 30 кв. м у застройщика не осталось, но их можно поискать у агента "Абсолют недвижимость" ![ЖК "Внуково 2017": под крылом самолёта - Фото 40]()
Однокомнатная квартира площадью 32. кв. м с лоджией на этаже выше второго продаётся за 4 150 тыс. рублей ![ЖК "Внуково 2017": под крылом самолёта - Фото 41]()
Асимметричная однушка площадью 35 кв. м стоит 4 270 тыс. рублей ![ЖК "Внуково 2017": под крылом самолёта - Фото 42]()
Однокомнатная распашонка 36 кв. м выставлена на продажу за 4 130 тыс. рублей (1 или 2 этажи) ![ЖК "Внуково 2017": под крылом самолёта - Фото 43]()
Самая крупная однокомнатная квартира имеет площадь 47 кв. м и продаётся за 5 540 тыс. рублей ![ЖК "Внуково 2017": под крылом самолёта - Фото 44]()
Двухкомнатная квартира 51,25 кв. м стоит 6 000 тыс. рублей ![ЖК "Внуково 2017": под крылом самолёта - Фото 45]()
Евротрёшка площадью 74 кв. м обойдётся в 7 800 тыс. рублей ![ЖК "Внуково 2017": под крылом самолёта - Фото 46]()
Трёхкомнатная квартира площадью 71 кв. м, расположенная на первом этаже, стоит 6 200 тыс. рублей ![ЖК "Внуково 2017": под крылом самолёта - Фото 47]()
На первом этаже предлагают и трёшки побольше. Квартира площадью 89 кв. м выставлена на продажу за 6 800 тыс. рублей ![ЖК "Внуково 2017": под крылом самолёта - Фото 48]()
Если квартира располагается на этаже выше третьего, в комнатах добавляются лоджии, а в ванной появляется окно. Стоимость трёшки 94 кв. м - 8 800 тыс. руб.
Все квартиры с отделкой
Застройщик предлагает 1 год гарантии на отделку квартиры, 3 года — на инженерное оборудование и 5 лет — на конструкцию здания.
Отделка включает:
- металлическую входную дверь с двумя замками и задвижкой;
- межкомнатные МДФ-двери с финиш-плёнкой;
- ламинат и плитку;
- обои под покраску;
- сантехнику;
- электропроводку и розетки.
В шоу-руме, который открыт в офисе продаж, отделка соответствует той, что будет выполнена в квартирах. Однокомнатные будут в бежевых тонах, в двушках и трёшках добавятся комнаты серо-голубого оттенка. Санузлы сдаются "под ключ", а на кухне будут установлены раковина и смеситель.
![ЖК "Внуково 2017": под крылом самолёта - Фото 49]()
Стены в квартирах оклеены обоями и окрашены в бежевый цвет ![ЖК "Внуково 2017": под крылом самолёта - Фото 50]()
В двух- и трёхкомнатных квартирах стены в спальнях будут серо-голубыми ![ЖК "Внуково 2017": под крылом самолёта - Фото 51]()
Обои можно перекрашивать до 10 раз ![ЖК "Внуково 2017": под крылом самолёта - Фото 52]()
Плитка песочного оттенка будет лежать на полу в прихожей и на кухне ![ЖК "Внуково 2017": под крылом самолёта - Фото 53]()
В комнатах кладут ламинат светлого оттенка ![ЖК "Внуково 2017": под крылом самолёта - Фото 54]()
В цвет к нему подобран плинтус ПВХ ![ЖК "Внуково 2017": под крылом самолёта - Фото 55]()
Потолок выровнен, окрашен белой краской ![ЖК "Внуково 2017": под крылом самолёта - Фото 56]()
Только на кухне будет дверь со стеклянной вставкой, все остальные - глухие ![ЖК "Внуково 2017": под крылом самолёта - Фото 57]()
В квартирах устанавливают двери фирмы Verda, которые производят в Подмосковье ![ЖК "Внуково 2017": под крылом самолёта - Фото 58]()
Межкомнатные двери сделаны из бруса и МДФ, кромка обработана меламином, а само полотно покрыто финиш-плёнкой ![ЖК "Внуково 2017": под крылом самолёта - Фото 59]()
Санузлы в квартирах сдаются "под ключ" ![ЖК "Внуково 2017": под крылом самолёта - Фото 60]()
Унитаз отечественного производства ![ЖК "Внуково 2017": под крылом самолёта - Фото 61]()
А вот ванна Estap - словацкого производства ![ЖК "Внуково 2017": под крылом самолёта - Фото 62]()
Стены в ванной выложены плиткой на 3/4, наверху есть декоративный бордюр ![ЖК "Внуково 2017": под крылом самолёта - Фото 63]()
В санузлах напольная плитка темнее, чем на кухне и в коридоре ![ЖК "Внуково 2017": под крылом самолёта - Фото 64]()
На кухне застройщик обещает установить раковину и смеситель, но, по словам менеджера продаж, она не будет такой, как в шоу-руме ![ЖК "Внуково 2017": под крылом самолёта - Фото 65]()
Вот такие тумбы с раковиной "Самолет" установил на другом своём объекте — в ЖК "Пригород Лесное". Фото застройщика ![ЖК "Внуково 2017": под крылом самолёта - Фото 66]()
В металлические входные двери будет врезано по 2 замка и щеколда
Транспортная доступность и инфраструктура
До ЖК "Внуково 2017" можно добраться по Боровскому или по Киевскому шоссе. Расстояние от МКАД составляет 12 км.
Московский городской транспорт, направляясь во Внуковское, использует выделенную полосу для движения по шоссе. От "Саларьево" или "Тропарёво" можно доехать на автобусах №611 и №272. Время в пути — около получаса.
Метро "Рассказовка" Калининско-Солнцевской линии должны были открыть ещё в сентябре 2017 года, но работы затянулись. Пока что срок введения станции в эксплуатацию перенесли на I квартал 2018 года. "Рассказовка" находится заметно ближе к ЖК "Внуково 2017" — в 4,5 км. По словам менеджера продаж, общественный транспорт запустят и в этом направлении.
Калининско-Солнцевскую линию власти обещают довести до аэропорта "Внуково", что находится на расстоянии 2 км от жилого комплекса. Но эти планы будут реализованы не ранее 2021 года.
На противоположной стороне Боровского шоссе в 20 минутах ходьбы от комплекса находится железнодорожная станция "Аэропорт (старая платформа)". Электричкой до Киевского вокзала можно добраться отсюда за 40 минут.
Если не считать Боровского шоссе и аэропорта с их выхлопными газами, экологию в этом районе больше никто портит. Промышленных предприятий поблизости нет. Половину площади поселения Внуковского занимает лесной массив. Большая часть жилых домов здесь малоэтажные — коттеджи, дачи.
До школы №1788 в микрорайоне "Солнцево-парк" детей из ЖК "Внуково 2017" возит школьный автобус. После занятий на нём же можно добраться до дома. Школа есть и в шаговой доступности — это образовательное учреждение №41 им. Григория Тарана, оно находится в Изварино. Этот населённый пункт примыкает к границам "Внуково 2017". В Изварино работают и другие социально значимые объекты: поликлиника №217, два детских сада, центр госуслуг "Мои документы".
В январе на первом этаже одного из домов ЖК "Внуково 2016" откроется супермаркет "Гурман". Пока жители первой очереди пользуются "Пятёрочкой" на Боровском шоссе, там же есть мясной ряд.
![ЖК "Внуково 2017": под крылом самолёта - Фото 67]()
Здесь останавливаются автобусы, которые идут от станций метро Сокольнической линии ![ЖК "Внуково 2017": под крылом самолёта - Фото 68]()
Остановка в сторону Москвы находится напротив ![ЖК "Внуково 2017": под крылом самолёта - Фото 69]()
Перейти на противоположную сторону Боровского шоссе можно по наземному переходу ![ЖК "Внуково 2017": под крылом самолёта - Фото 70]()
Ближайший к комплексу магазин "Пятёрочка" находится в 5 минутах ходьбы ![ЖК "Внуково 2017": под крылом самолёта - Фото 71]()
В этом же здании располагается мясной магазин... ![ЖК "Внуково 2017": под крылом самолёта - Фото 72]()
... и ремонт обуви ![ЖК "Внуково 2017": под крылом самолёта - Фото 73]()
Центр госуслуг "Мои документы" находится напротив ЖК "Внуково 2017" в микрорайоне Изварино
Офис и условия продаж
Возле стройплощадки располагается два офиса продаж. Один принадлежит застройщику, в другом работают сотрудники агентства "Абсолют Недвижимость", которое имеет собственный пул квартир в комплексе.
В офисе продаж ГК "Самолёт" вас встретит сотрудник на ресепшене. Если все менеджеры заняты, можно пройти в шоу-рум и рассмотреть отделку. В этом же помещении работают ипотечные консультанты, с которыми можно обсудить перспективы получения заёмных средств в банке.
Когда выбор квартиры сделан, менеджер продаж бесплатно забронирует её на 3 дня. А если квартира, которую вы выбрали, уже забронирована другим клиентом, можно встать на это жильё в очередь. Если сделка предыдущего клиента сорвётся, бронь тут же перейдёт к вам.
Регистрация договора долевого участия в Регпалате обойдётся клиенту в 27 тыс. рублей. Ещё около 3 тыс. нужно приготовить для оформления нотариально заверенных документов и доверенностей на представителя застройщика. Оформление права собственности в 27 тыс. рублей не входит, и выписку из ЕГРН застройщик предлагает дольщикам получить самостоятельно.
В декабре 2017 года застройщик предлагает рассрочку только на квартиры в 11 и 12 корпусах. По программе "10/90" можно оплатить только 10% от стоимости, а оставшуюся сумму внести в течение 31 дня.
Самую низкую ставку по ипотеке в ЖК "Внуково 2017" предлагает Сбербанк — 7,5% годовых, если кредит берётся на срок до 7 лет. Если на погашение нужно больше времени, то процент возрастает до 9,5%. Среди банков, которые также предлагают ставку до 10%, есть ВТБ24, "Уралсиб", "Газпромбанк", "Абсолют Банк". Готовы финансировать покупку квартиры без первоначального взноса "Возрождение", "Металлинвестбанк" и "Банк "Россия".
![ЖК "Внуково 2017": под крылом самолёта - Фото 74]()
Одним из агентов по реализации квартир в ЖК "Внуково 2017" выступает "Абсолют недвижимость" ![ЖК "Внуково 2017": под крылом самолёта - Фото 75]()
Офис продаж агента и застройщика находятся рядом друг с другом ![ЖК "Внуково 2017": под крылом самолёта - Фото 76]()
У них общая парковка, рассчитанная примерно на 40 автомобилей ![ЖК "Внуково 2017": под крылом самолёта - Фото 77]()
На территории есть детский городок ![ЖК "Внуково 2017": под крылом самолёта - Фото 78]()
В офисе работают 2-3 менеджера продаж ![ЖК "Внуково 2017": под крылом самолёта - Фото 79]()
Здесь же сидят ипотечные консультанты ![ЖК "Внуково 2017": под крылом самолёта - Фото 80]()
Ребёнка во время беседы с менеджером можно занять рисованием ![ЖК "Внуково 2017": под крылом самолёта - Фото 81]()
Или оставить в детском уголке
- 3/5транспорт
- 3/5экология
- 3/5инфраструктура
- 3/5цена/качество

















































































Комментарии
Марина
3 года назад
С ШУМОМ бороться очень сложно. УК Самолет эти вопросы не заботят вообще. Если у Вас Шумные соседи, вы будете жить в аду. Представьте, днем и ночью шум в 60-70 децибел, испорченное настроение и здоровье. И УК не поможет!