25-этажные монолиты нависают над белыми песчаными берегами Дзержинского карьера. Застройщик оборудовал пляж, который преподносится как визитная карточка новостройки. Выглядит красиво, но для жизни нужно немного больше. Несмотря на то, что треть корпусов уже заселили, в комплексе построили только один детский сад. Пока выручает инфраструктура Дзержинского. В обзоре тайного покупателя оценим первые дома и увидим, что предлагает застройщик. Актуальные проблемы жители обсуждают на форумах и в общедомовых чатах. Заглянем и туда.
Расположение и транспорт
Котельники — город на юго-востоке от столицы. В 1930-х годах на этом месте вырос рабочий посёлок вокруг завода по производству силикатного кирпича. Позднее был построен завод железобетонных изделий, а по соседству развёрнута добыча песка. К песчаным карьерам мы ещё вернёмся в беседе об окружении жилого комплекса. Они по сей день являются заметной чертой городского облика.
За последние 15 лет население подмосковных Котельников выросло вдвое. Сейчас здесь проживает около 50 тысяч человек. Сказывается близость к столице. В 2015 году до города добрался московский метрополитен. Вестибюли расположены на Новорязанском шоссе почти возле МКАДа. До новостройки отсюда 4 км по прямой.
ЖК "Новые Котельники" строится на юго-западе Котельников на Угрешской улице. По ней проходит административная граница с городом Дзержинским.
На 904 автобусе за 20 минут можно доехать от метро "Котельники" прямо к домам. Ближайшая остановка называется "Угрешская улица, 6". 470 автобус проходит по параллельной улице через Дзержинский, но это тоже вариант, если не хочется ждать 904. На улице Ленина в Дзержинском ещё останавливаются автобусы и маршрутки, которые идут сюда от станций метро "Люблино", "Алма-Атинская", "Кузьминки". На 20 автобусе можно добраться от железнодорожной платформы "Люберцы-1".
Из центра Москвы в Котельники ведёт Волгоградский проспект, который после МКАДа переходит в Новорязанский. К микрорайону можно подъехать с двух сторон: по Дзержинскому шоссе с Новорязанки или по улице Энергетиков через кольцевую. Наличие альтернативных транспортных артерий спасёт в случае аварийной ситуации на одном из выездов.
![ЖК "Новые Котельники": контрастное соседство курорта и промзон - Фото 1]()
Станция метро "Котельники" открыта осенью 2015 года ![ЖК "Новые Котельники": контрастное соседство курорта и промзон - Фото 2]()
От пересечения с Кольцевой поезд идёт 30 минут ![ЖК "Новые Котельники": контрастное соседство курорта и промзон - Фото 3]()
Остановка общественного транспорта по направлению в Котельники расположена возле выхода из метро №5 ![ЖК "Новые Котельники": контрастное соседство курорта и промзон - Фото 4]()
904 маршрут подходит прямо к ЖК "Новые Котельники" ![ЖК "Новые Котельники": контрастное соседство курорта и промзон - Фото 5]()
470 автобус идёт через Дзержинский, от остановки до новостройки 300 м ![ЖК "Новые Котельники": контрастное соседство курорта и промзон - Фото 6]()
Автобусы ходят каждые 10-20 минут ![ЖК "Новые Котельники": контрастное соседство курорта и промзон - Фото 7]()
Из центра Москвы в Котельники ведёт Новорязанское шоссе ![ЖК "Новые Котельники": контрастное соседство курорта и промзон - Фото 8]()
По дороге на автомобиле со МКАДа нужно съехать на Новоегорьевское шоссе ![ЖК "Новые Котельники": контрастное соседство курорта и промзон - Фото 9]()
Угрешская улица разделяет Котельники и город Дзержинский
Что строят
На генплане проекта 14 домов высотой от 13 этажей, хотя большинство секций 25-этажные. Территория огорожена, закрыта от машин. Но калитка открыта, поэтому во двор может пройти любой. Парковочные карманы расположены по внешнему периметру зданий.
На ранних этапах строительства застройщик анонсировал подземные паркинги, но пока эта идея не реализована, проектных документов на эти объекты нет. Точной информацией о том, стоит ли рассчитывать на подземный паркинг, девелопер ещё не поделился даже с офисом продаж. Пока предполагается, что общее количество машиномест в комплексе достигнет 4,5 тысяч. В новостройке под конец строительства будет около 6 тысяч квартир.
В состав проекта входят детские образовательные учреждения. Четыре сада смогут принять 630 малышей, два из ДОУ будут коммерческими. Школа рассчитана на 1500 учеников. Застройщик планирует возвести медицинский центр для детей и взрослых.
На территории запланирована спортивная инфраструктура: волейбольная и баскетбольная площадки, столы для пинг-понга, скейт-площадка, теннисный корт, поле для мини-футбола, велодорожки. На генплане обозначен парк с летней сценой для кинопоказов.
В ЖК "Новые Котельники" есть собственный выход к Большому Дзержинскому карьеру. На берегу оборудован пляж с лежаками. Жители комплекса проходят сюда бесплатно. За деньги может пройти любой.
В планах строительство торгово-развлекательного центра "Новые Котельники".
![ЖК "Новые Котельники": контрастное соседство курорта и промзон - Фото 10]()
На генплане ЖК "Новые Котельники" 14 корпусов. Здесь и дальше в галерее илюстрации застройщика ![ЖК "Новые Котельники": контрастное соседство курорта и промзон - Фото 11]()
Всего около 6 тысяч квартир ![ЖК "Новые Котельники": контрастное соседство курорта и промзон - Фото 12]()
Четыре детских сада и школа входят в состав проекта ![ЖК "Новые Котельники": контрастное соседство курорта и промзон - Фото 13]()
Дворы закрыты от машин ![ЖК "Новые Котельники": контрастное соседство курорта и промзон - Фото 14]()
Парковочные карманы расположены по периметру домов ![ЖК "Новые Котельники": контрастное соседство курорта и промзон - Фото 15]()
Обещают 4,5 тысячи машиномест ![ЖК "Новые Котельники": контрастное соседство курорта и промзон - Фото 16]()
На Большом Дзержинском карьере оборудован частный пляж ![ЖК "Новые Котельники": контрастное соседство курорта и промзон - Фото 17]()
Квартиры с видом на воду есть в 4, 5, 9, 10 и 12 корпусах
Готовая часть проекта
В марте 2021 года сдано пять домов: корпуса 1-3, 6 и 7. Первые этажи отданы под коммерцию. В заселённых зданиях работают супермаркет "Фасоль", медицинская лаборатория "Гемотест", хозяйственно-строительная лавка, аптека, салон красоты и другой сервис.
При входе в подъезд установлены домофоны с видеокамерой Vizit. На ранних компьютерных визуализациях дизайнеры рисовали остеклённые двери и мягкую мебель в холле. Но ничего похожего в готовых домах нет. Глухая металлическая дверь коричневого цвета, пороги при входе, никаких диванов.
Отделка первого этажа выполнена в той же бежево-песочной цветовой гамме, что и фасады. На полу лежит плитка с фактурой "под дерево". Установлены точечные светильники и декоративная подсветка. В зависимости от этажности секции в подъезде по два или три лифта "КМЗ".
В подъездах есть помещение для консьержа, но самих консьержей не встретилось нигде. Голосования в социальных сетях и на форумах показывают, что жильцы комплекса отдают предпочтение видеонаблюдению. Камеры, действительно, есть в холлах. Дома оборудованы мусоропроводом. Колясочных и кладовых помещений не предусмотрено.
В мае 2020 года был введён в эксплуатацию первый в комплексе детский сад на 235 мест. Трёхэтажное здание рассчитано на 9 групп, которые посещают дети от 2 до 7 лет. Образовательное учреждение муниципальное.
В новостройке заметен дефицит парковочных мест. В общедомовых чатах и соцсетях соседи ругаются между собой на вечную тему. Одним нужно пристроить машину, поэтому автовладельцы занимают тротуары и газоны. Другим важно приятное глазу окружение и возможность пройти с коляской.
![ЖК "Новые Котельники": контрастное соседство курорта и промзон - Фото 18]()
Первые два дома в ЖК "Новые Котельники" сданы осенью 2019 года ![ЖК "Новые Котельники": контрастное соседство курорта и промзон - Фото 19]()
К весне 2021 введено в эксплуатацию пять корпусов ![ЖК "Новые Котельники": контрастное соседство курорта и промзон - Фото 20]()
Реализована концепция "двор без машин" ![ЖК "Новые Котельники": контрастное соседство курорта и промзон - Фото 21]()
Калитка открыта, пройти на территорию не составило труда ![ЖК "Новые Котельники": контрастное соседство курорта и промзон - Фото 22]()
Во дворе расположены детские площадки ![ЖК "Новые Котельники": контрастное соседство курорта и промзон - Фото 23]()
Рядом установлены деревянные лавочки ![ЖК "Новые Котельники": контрастное соседство курорта и промзон - Фото 24]()
Детский сад находится во дворе, планируемая школа будет за периметром ![ЖК "Новые Котельники": контрастное соседство курорта и промзон - Фото 25]()
Первый муниципальный детский сад в комплексе рассчитан на 235 детей ![ЖК "Новые Котельники": контрастное соседство курорта и промзон - Фото 26]()
Машины паркуют вокруг домов ![ЖК "Новые Котельники": контрастное соседство курорта и промзон - Фото 27]()
Парковка плотная, чтобы найти место, придётся покрутиться ![ЖК "Новые Котельники": контрастное соседство курорта и промзон - Фото 28]()
Автовладельцы оставляют машины по обе стороны дороги, поэтому на узком проезде трудно разъезжаться двум встречным авто ![ЖК "Новые Котельники": контрастное соседство курорта и промзон - Фото 29]()
На первых этажах расположены коммерческие помещения ![ЖК "Новые Котельники": контрастное соседство курорта и промзон - Фото 30]()
Много продуктовых лавок, есть хозяйственные магазины ![ЖК "Новые Котельники": контрастное соседство курорта и промзон - Фото 31]()
По соседству салоны красоты и барбершопы ![ЖК "Новые Котельники": контрастное соседство курорта и промзон - Фото 32]()
На территории ведётся видеонаблюдение ![ЖК "Новые Котельники": контрастное соседство курорта и промзон - Фото 33]()
При входе в подъезд установлен домофон ![ЖК "Новые Котельники": контрастное соседство курорта и промзон - Фото 34]()
Видеосвязь к нему может подключить собственник квартиры ![ЖК "Новые Котельники": контрастное соседство курорта и промзон - Фото 35]()
Так выглядит дизайнерское изображение входной группы. Иллюстрация застройщика ![ЖК "Новые Котельники": контрастное соседство курорта и промзон - Фото 36]()
В реальности есть некоторое сходство, но не во всём ![ЖК "Новые Котельники": контрастное соседство курорта и промзон - Фото 37]()
Так выглядит вход в подъезд, дверь глухая ![ЖК "Новые Котельники": контрастное соседство курорта и промзон - Фото 38]()
Мягкой мебели в холлах нет ![ЖК "Новые Котельники": контрастное соседство курорта и промзон - Фото 39]()
В подъездах предусмотрено помещение для консьержа, но вопрос найма сотрудника решает общее собрание жильцов ![ЖК "Новые Котельники": контрастное соседство курорта и промзон - Фото 40]()
Одна из стен облицована декоративным камнем ![ЖК "Новые Котельники": контрастное соседство курорта и промзон - Фото 41]()
Пол облицован керамогранитом ![ЖК "Новые Котельники": контрастное соседство курорта и промзон - Фото 42]()
На потолке из гипсокартона точечное освещение ![ЖК "Новые Котельники": контрастное соседство курорта и промзон - Фото 43]()
Кладовых помещений или колясочных нет ![ЖК "Новые Котельники": контрастное соседство курорта и промзон - Фото 44]()
Так выглядит лифтовый холл на первом этаже ![ЖК "Новые Котельники": контрастное соседство курорта и промзон - Фото 45]()
Застройщик устанавливает лифты "КМЗ" ![ЖК "Новые Котельники": контрастное соседство курорта и промзон - Фото 46]()
В подъезде может быть два или три лифта в зависимости от количества этажей ![ЖК "Новые Котельники": контрастное соседство курорта и промзон - Фото 47]()
Отделка на этажах выполнена в светлых тонах ![ЖК "Новые Котельники": контрастное соседство курорта и промзон - Фото 48]()
Проход на лестницу через открытый балкон ![ЖК "Новые Котельники": контрастное соседство курорта и промзон - Фото 49]()
На лестнице чисто и светло ![ЖК "Новые Котельники": контрастное соседство курорта и промзон - Фото 50]()
В домах предусмотрен мусоропровод
Строительный раздел
При строительстве ЖК "Новые Котельники" используется каркасно-монолитная технология. Внешние стены выкладывают из бетонных блоков. Для финишной отделки используются керамогранитные плиты в составе системы вентилируемого фасада.
В домах первой очереди панорамное остекление лоджий начинается с 9 или 11 этажа в зависимости от секции. Во второй очереди витражные стекла ставят везде. Корпуса 4, 5, 9 и 12 относятся к так называемой первой линии — по аналогии с курортной застройкой, отелями. Дома второй очереди стоят ближе всех к карьерам, здесь продаются квартиры с видом на воду.
В корпусах первой очереди были задержки ввода в эксплуатацию от полугода до года. На форумах дольщики активно обсуждали как, когда и имеет ли смысл подавать в суд на застройщика и требовать компенсации. Прошёл ли кто-то этот путь до конца, пока неизвестно.
8 корпус — последний в первой очереди — планируют построить к концу 2021 года. В марте 2021-го завершается облицовка фасада, идёт остекление здания и внутренние инженерные работы.
За 8 домом ближайшие по сдаче корпуса 4 и 5. Ввод в эксплуатацию намечен на 2 квартал 2022-го. За год до этого срока ведутся кровельные работы, возведение наружных стен и установка стеклопакетов.
Уже начались подготовительные фундаментные работы на месте корпусов 9 и 10. Их планируют построить ко II кварталу 2023 года. 12-14 дома относятся к третьей очереди комплекса, точные сроки их возведения пока не определены. Но в офисе продаж говорят, что проект планируется завершить в 2024 году.
![ЖК "Новые Котельники": контрастное соседство курорта и промзон - Фото 51]()
В марте 2021 года строятся 4, 5, 8, 9 и 10 корпуса ![ЖК "Новые Котельники": контрастное соседство курорта и промзон - Фото 52]()
Вторая очередь строится вплотную к первой, но новые корпуса ближе к карьеру ![ЖК "Новые Котельники": контрастное соседство курорта и промзон - Фото 53]()
4 и 5 корпуса планируют ввести в эксплуатацию во II квартале 2022 года ![ЖК "Новые Котельники": контрастное соседство курорта и промзон - Фото 54]()
9 и 10 корпуса сейчас на стадии подготовки площадки ![ЖК "Новые Котельники": контрастное соседство курорта и промзон - Фото 55]()
При строительстве используется каркасно-монолитная технология ![ЖК "Новые Котельники": контрастное соседство курорта и промзон - Фото 56]()
Наружные стены выкладывают из бетонных блоков ![ЖК "Новые Котельники": контрастное соседство курорта и промзон - Фото 57]()
В будущем утеплённые стены закроет вентилируемый фасад и керамогранитные плиты ![ЖК "Новые Котельники": контрастное соседство курорта и промзон - Фото 58]()
Строительство жилого комплекса завершится не ранее 2024 года
Отделка от застройщика
В ЖК "Новые Котельники" продаются квартиры свободной планировки. Стен нет, проведено только отопление. Шланги идут к радиаторам по полу, стояков нет. Предчистовую или полную финишную отделку можно заказать у застройщика за дополнительную плату.
Отделку white box в марте 2021-го застройщик предлагал в корпусах 4, 5 и 8. Её стоимость 8 тысяч рублей за кв. метр. В перечень работ входит возведение межкомнатных перегородок по проекту, шпатлёвка и штукатурка стен, стяжка пола, электропроводка и разводка труб водоснабжения, гидроизоляция в санузлах.
Стоимость чистовой отделки 14 500 рублей за кв. метр. На выбор предлагают современный или классический дизайн. Современный выглядит более контрастным, хотя оба варианта выполнены в светлой цветовой гамме. Отличия касаются стиля межкомнатных дверей и плинтуса.
Производитель межкомнатных дверей компания "Браво". В санузлах устанавливают стальную ванну, санфаянс Santek и Jika. На полу в коридоре и на кухне будет керамогранит, в комнатах кладут ламинат. По всей квартире делают натяжной потолок.
![ЖК "Новые Котельники": контрастное соседство курорта и промзон - Фото 59]()
Стоимость чистовой отделки 14 500 рублей за кв. метр. Фото застройщика ![ЖК "Новые Котельники": контрастное соседство курорта и промзон - Фото 60]()
Предлагается два варианта: современный (на фото) или классический. Фото застройщика ![ЖК "Новые Котельники": контрастное соседство курорта и промзон - Фото 61]()
Классический выглядит менее контрастным. Фото застройщика ![ЖК "Новые Котельники": контрастное соседство курорта и промзон - Фото 62]()
Здесь устанавливаются межкомнатные двери белого цвета. Фото застройщика ![ЖК "Новые Котельники": контрастное соседство курорта и промзон - Фото 63]()
В цвет к ним будет плинтус ![ЖК "Новые Котельники": контрастное соседство курорта и промзон - Фото 64]()
В современном стиле двери более тёмного оттенка с древесной фактурой. Производитель обоих вариантов фирма "Браво". Фото застройщика ![ЖК "Новые Котельники": контрастное соседство курорта и промзон - Фото 65]()
Отделка входной двери выполнена в цвет межкомнатным ![ЖК "Новые Котельники": контрастное соседство курорта и промзон - Фото 66]()
На кухне и в прихожей на полу будет керамогранитная плитка ![ЖК "Новые Котельники": контрастное соседство курорта и промзон - Фото 67]()
Выполнена горизонтальная разводка отопления. Фото застройщика ![ЖК "Новые Котельники": контрастное соседство курорта и промзон - Фото 68]()
На стенах обои под покраску. Фото застройщика ![ЖК "Новые Котельники": контрастное соседство курорта и промзон - Фото 69]()
Так выглядит отделка кухни в современном варианте, гарнитур не входит в комплектацию. Фото застройщика ![ЖК "Новые Котельники": контрастное соседство курорта и промзон - Фото 70]()
По всей квартире делают натяжной потолок. Фото застройщика ![ЖК "Новые Котельники": контрастное соседство курорта и промзон - Фото 71]()
Это отделка санузла в современном стиле. Фото застройщика ![ЖК "Новые Котельники": контрастное соседство курорта и промзон - Фото 72]()
Сантехника Santek и Jika входят в список устанавливаемого оборудования. Фото застройщика ![ЖК "Новые Котельники": контрастное соседство курорта и промзон - Фото 73]()
В классическом стиле отделка санузлов более пёстрая. Фото застройщика ![ЖК "Новые Котельники": контрастное соседство курорта и промзон - Фото 74]()
В офисе продаж установлен стенд с образцами отделочных материалов
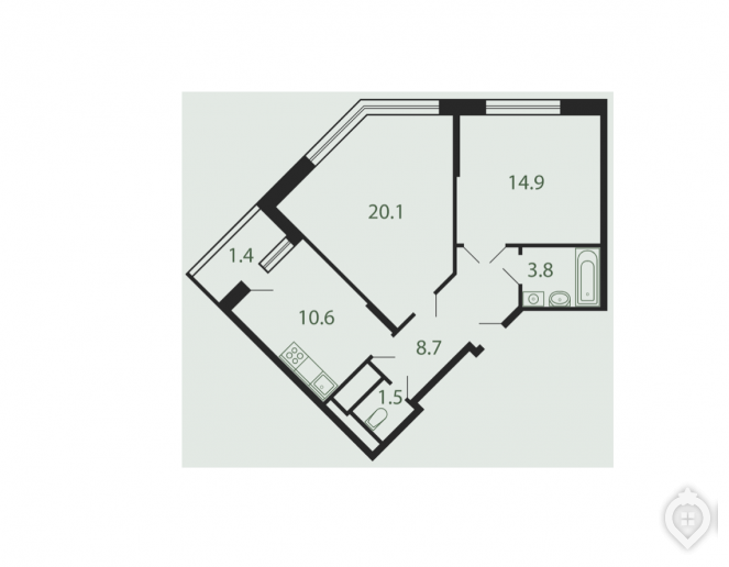
Планировки и цены
В ЖК "Новые Котельники" представлены разные форматы квартир: от студий до трёхкомнатных. Высота потолков без отделки 2,8 м. Каждая планировка предусматривает лоджию или балкон.
Студийный формат — один из самых востребованных на рынке. В комплексе много вариантов площадью 26-29 кв. м. Несколько планировок осталось даже в готовых домах, хотя чаще всего студии разбирают на ранних этапах строительства. Стоимость квартиры в строящемся или сданном доме почти не отличается. Цена от 4 млн рублей. По форме помещение представляет собой вытянутый прямоугольник.
5 млн рублей за 34 кв. м в сданном доме и 4 800 тыс. рублей в строящемся. Выбор однушек тоже большой, но планировки чаще встречаются стандартные. Необычный формат есть в поворотных секциях 4 и 9 корпусов. Здесь угловое остекление в комнате, скошенный балкон на кухне и пятиугольный санузел. 42 кв. м предлагают за 5,5 млн рублей.
В тех же средних секциях в 4 и 9 корпусах есть двухкомнатные квартиры необычного формата. Площадь санузла 5 кв. м. Удобно организовать гардеробную в одной из комнат. Цена от 6 150 тыс. рублей за 60 квадратов. В остальных корпусах представлены традиционные двушки линейной или распашной планировки. Минимальная площадь 50 кв. м, цена 6 млн рублей.
В торцевой первой секции 10 корпуса есть трёхкомнатные квартиры с окнами на три стороны и гостевым санузлом. Все три комнаты примерно одинаковой площади 14-15 кв. м. Цена за 80 кв. м 7 600 тыс. рублей. В поворотных секциях предлагают трёшки с одной комнатой неправильной формы и двумя с угловым остеклением. Стоимость варианта площадью 74 кв. м 8 160 тыс. рублей.
Максимальный метраж — 80 кв. м. В такой трёхкомнатной два санузла с возможностью установить душ или ванну, есть ниша для гардеробной. В 4 корпусе подобные планировки предлагают за 8 300 тыс. рублей.
![ЖК "Новые Котельники": контрастное соседство курорта и промзон - Фото 75]()
Студии площадью 27 кв. м продаются по цене от 4 млн рублей ![ЖК "Новые Котельники": контрастное соседство курорта и промзон - Фото 76]()
Метраж самой крупной студии 28,6 кв. м. Цена 4 300 тыс. рублей ![ЖК "Новые Котельники": контрастное соседство курорта и промзон - Фото 77]()
Метраж однокомнатных квартир начинается от 32,5 кв. м. Цена такой 5 млн рублей ![ЖК "Новые Котельники": контрастное соседство курорта и промзон - Фото 78]()
Однокомнатные квартиры необычной планировки продаются по цене от 5 200 тыс. рублей за 40 кв. м ![ЖК "Новые Котельники": контрастное соседство курорта и промзон - Фото 79]()
Минимальная стоимость двухкомнатных квартир 6 млн рублей ![ЖК "Новые Котельники": контрастное соседство курорта и промзон - Фото 80]()
60 кв. м обойдутся в 6 200 тыс. рублей ![ЖК "Новые Котельники": контрастное соседство курорта и промзон - Фото 81]()
Классическая распашная планировка немного дороже. Те же 60 кв. м продают за 6 600 тыс. рублей ![ЖК "Новые Котельники": контрастное соседство курорта и промзон - Фото 82]()
Гостиная с широким углом и два санузла. Такая двушка в готовом доме стоит 7 600 тыс. рублей ![ЖК "Новые Котельники": контрастное соседство курорта и промзон - Фото 83]()
Трёхкомнатные квартиры продаются по цене от 7 600 тыс. рублей ![ЖК "Новые Котельники": контрастное соседство курорта и промзон - Фото 84]()
В торцевых секциях в трёхкомнатной квартире будет дополнительное окно ![ЖК "Новые Котельники": контрастное соседство курорта и промзон - Фото 85]()
За 8 млн рублей продаётся квартира площадью 75 кв. м с угловым остеклением
Застройщик и условия продаж
Девелопером проекта "Новые Котельники" выступает концерн "Русич". Не самое знакомое имя, поэтому посмотрим на историю компании. У "Русича" больше опыта в коммерческой недвижимости. Одним из приоритетных направлений развития фирмы является складской сектор. "Русич" возвёл уже три индустриальных парка, объект "Русич-Домодедово" называют крупнейшим в России.
В секторе жилой недвижимости у концерна есть опыт точечной застройки в Москве. В Реутове компания выступила генподрядчиком при возведении ряда монолитных домов.
ЖК "Новые Котельники" девелопер называет своей визитной карточкой. Действительно, это первый опыт компании на рынке новостроек и комплексной застройки территорий.
Продажа квартир в Котельниках осуществляется по безопасной для дольщиков схеме с использованием эскроу-счетов. Чтобы снять лот с продажи и зафиксировать стоимость, нужно внести 10 тыс. рублей, которые потом будут учтены при окончательном расчёте. Но за сопровождение сделки и регистрацию договора долевого участия нужно заплатить ещё 40 тысяч, и это дополнительный расход.
Застройщик предлагает беспроцентную рассрочку на 6 месяцев. Минимальный первоначальный взнос 60% от стоимости квартиры. Далее клиент вносит остаток равными платежами ежемесячно.
Ипотеку на покупку квартиры в ЖК "Новые Котельники" дают "Уралсиб", ВТБ, "Абсолют банк", "Альфа банк" и другие. Самую низкую процентную ставку предлагает Сбербанк — от 4,7%. Первоначальный взнос не менее 15% по многим ипотечным программам, иногда просят 20%.
![ЖК "Новые Котельники": контрастное соседство курорта и промзон - Фото 86]()
Офис продаж от застройщика расположен возле 1 корпуса ![ЖК "Новые Котельники": контрастное соседство курорта и промзон - Фото 87]()
Менеджеры работают с 9 утра до 9 вечера без выходных ![ЖК "Новые Котельники": контрастное соседство курорта и промзон - Фото 88]()
За стойкой ресепшен встретит сотрудник ![ЖК "Новые Котельники": контрастное соседство курорта и промзон - Фото 89]()
Если нужно подождать, для этого оборудованы зоны ![ЖК "Новые Котельники": контрастное соседство курорта и промзон - Фото 90]()
Есть кулер с водой, предложены чайные пакетики ![ЖК "Новые Котельники": контрастное соседство курорта и промзон - Фото 91]()
На макете представлены готовые, строящиеся и планируемые корпуса ![ЖК "Новые Котельники": контрастное соседство курорта и промзон - Фото 92]()
Обозначены существующие паркинги и перспективные объекты инфраструктуры ![ЖК "Новые Котельники": контрастное соседство курорта и промзон - Фото 93]()
Есть интерактивная карта окрестностей
Инфраструктура поблизости
Помимо объектов от застройщика, жителям "Новых Котельников" доступна инфраструктура в Дзержинском через дорогу. Здесь есть муниципальные и коммерческие детские сады, школа, три лицея, пара гимназий.
Сетевые магазины представлены в достатке: "Пятёрочка", "Ашан", "Дикси". ТРЦ "Мега - Белая дача" расположен в 2 км от новостройки. Напротив торгового центра — рынок "Садовод". На общественном транспорте сюда можно доехать за 10 минут.
Спортивно-развлекательная инфраструктура в Котельниках и в округе заслуживает отдельного внимания. Отработанные и затопленные карьеры с белым мелким песком стали заметной достопримечательностью восточного Подмосковья. Купание здесь официально разрешено. На пляжах в летнее время работают прокаты вейкбордов, sup-досок, гидроциклов. Зимой на склонах карьера функционирует горнолыжный комплекс.
В шаговой доступности от новостройки работает несколько фитнес-клубов, секций единоборств, школа танцев. Стоимость разового посещения в бассейне "Нева" на улице Шама 300 рублей.
В Дзержинском есть специализированный автодром, который предназначен на повышения квалификации профессиональных водителей и любителей. Записаться на тренинг может каждый желающий. Здесь иногда бывает шумно, но жилые дома расположены в 1,5 км, поэтому на форумах пишут, что рев двигателей и визг тормозов можно услышать редко.
Рядом с автодромом на Лесной улице расположен конный клуб, оленья ферма и питомник хаски. Абонементы на конные прогулки от 7 до 12 тыс. рублей в месяц. На оленьих упряжках катают по цене от 400 до 8 900 рублей. Есть опция заказа профессиональной фотосессии с животными.
Окна 4 корпуса выходят на два восьмиэтажных паркинга. Они не имеют отношения к новостройке, давно построены и функционируют. В каждом из них по 300 мест. Аренда стоит 5 тыс. рублей в месяц. Выкупить машиноместо можно по цене от 650 тыс. рублей. До 4 корпуса от гаражей 100 метров, а до 8 — он пока самый дальний — 600 метров.
![ЖК "Новые Котельники": контрастное соседство курорта и промзон - Фото 94]()
В соседнем городе Дзержинском через дорогу от новостройки есть детские образовательные учреждения ![ЖК "Новые Котельники": контрастное соседство курорта и промзон - Фото 95]()
К примеру, детский сад "Радуга" расположен на улице Строителей ![ЖК "Новые Котельники": контрастное соседство курорта и промзон - Фото 96]()
Здесь есть профильные старшие и подготовительные группы: технические, гуманитарные, спортивные ![ЖК "Новые Котельники": контрастное соседство курорта и промзон - Фото 97]()
В лицее "Парус" на Лесной улице своя телестудия, где дети изучают экранное искусство ![ЖК "Новые Котельники": контрастное соседство курорта и промзон - Фото 98]()
Дзержинская городская больница располагает детской поликлиникой и детским инфекционным отделением ![ЖК "Новые Котельники": контрастное соседство курорта и промзон - Фото 99]()
В районе есть коммерческие медицинские центры и стоматологии ![ЖК "Новые Котельники": контрастное соседство курорта и промзон - Фото 100]()
В музыкальной школе на ул. Ленина есть классы духовых, струнных и ударных инструментов ![ЖК "Новые Котельники": контрастное соседство курорта и промзон - Фото 101]()
Экстрим-парк "Фристал" расположен в 400 м от ЖК "Новые Котельники" ![ЖК "Новые Котельники": контрастное соседство курорта и промзон - Фото 102]()
Парк работает круглый год ![ЖК "Новые Котельники": контрастное соседство курорта и промзон - Фото 103]()
Летом здесь предлагают занятия водными видами спорта, зимой организовано катание на лыжах, сноубордах и тюбингах ![ЖК "Новые Котельники": контрастное соседство курорта и промзон - Фото 104]()
У парка своя платная парковка ![ЖК "Новые Котельники": контрастное соседство курорта и промзон - Фото 105]()
В бассейне "Нева" работает детская спортивная школа и есть сеансы свободного плавания ![ЖК "Новые Котельники": контрастное соседство курорта и промзон - Фото 106]()
Рядом с новостройкой два надземных паркинга ![ЖК "Новые Котельники": контрастное соседство курорта и промзон - Фото 107]()
Каждый из блоков рассчитан на 300 автомобилей ![ЖК "Новые Котельники": контрастное соседство курорта и промзон - Фото 108]()
Можно арендовать или выкупить машиноместо ![ЖК "Новые Котельники": контрастное соседство курорта и промзон - Фото 109]()
Торговая инфраструктура развита в шаговой доступности ![ЖК "Новые Котельники": контрастное соседство курорта и промзон - Фото 110]()
Работают сетевые магазины ![ЖК "Новые Котельники": контрастное соседство курорта и промзон - Фото 111]()
"Ашан" на Угрешской улице ![ЖК "Новые Котельники": контрастное соседство курорта и промзон - Фото 112]()
Отделение Сбербанка открыто на пересечении Лесной улицы и Лазуринского бульвара ![ЖК "Новые Котельники": контрастное соседство курорта и промзон - Фото 113]()
ТРЦ "Мега Белая дача" расположен в 2 км от новостройки ![ЖК "Новые Котельники": контрастное соседство курорта и промзон - Фото 114]()
Напротив работает рынок "Садовод"
Окружение и экология
Несмотря на жилую застройку, развитую спортивно-развлекательную инфраструктуру, Дзержинский и Котельники соседствуют с недружественными для экологии объектами.
Пока едешь в Дзержинский по МКАДу, в окна лучше не смотреть. С одной стороны пыхтит ТЭЦ-22 — не самая мощная в московском регионе, но стоит на холме, поэтому выглядит внушительно. По другую руку кольцевую подпирают ангары, трубы и хранилища нефтезавода в Капотне. Тут же выстраиваются в очередь на съезде битумные цистерны. По соседству находится асфальтный завод.
Промзона в Дзержинском занимает значительную территорию города. В советское время здесь функционировали заводы-гиганты химической промышленности, машиностроения. В настоящее время некоторые постройки переоборудованы в складские ангары. Многие помещения арендуют коммерческие предприятия по производству полимеров, строительных смесей, мебели, автозапчастей, оборудования для пищевой отрасли.
В общем, промышленность в Дзержинском живёт и процветает, хоть уже и не в таких гигантских всесоюзных масштабах.
Томилинский лесопарк, что подходит к карьерам с восточной стороны, несколько скрашивает соседство с заводами и ржавыми унылыми цехами. Территория лесопарка относится к особо охраняемым. Используется как место отдыха, а также в познавательных и научных целях. Сеть тропинок хорошо развита. По пути можно встретить растения, занесённые в Красную книгу.
![ЖК "Новые Котельники": контрастное соседство курорта и промзон - Фото 115]()
Возле МКАда расположен асфальтовый завод ![ЖК "Новые Котельники": контрастное соседство курорта и промзон - Фото 116]()
Цистерны выстраиваются в очередь за битумом ![ЖК "Новые Котельники": контрастное соседство курорта и промзон - Фото 117]()
ТЭЦ-22 стоит возле съезда с кольцевой в Дзержинский ![ЖК "Новые Котельники": контрастное соседство курорта и промзон - Фото 118]()
Дорога от метро проходит вдоль парка Кузьминки. Здесь проложены лыжные трассы ![ЖК "Новые Котельники": контрастное соседство курорта и промзон - Фото 119]()
За карьерами начинается Томилинский лесопарк
- 3/5транспорт
- 3/5экология
- 3/5инфраструктура
- 4/5цена/качество























































































































Комментарии
местный
2 года назад
Анна
2 года назад
Тоже местный )
4 года назад
Местный
4 года назад
Тоже местный )
4 года назад