Белый ферзь, или в просторечье королева, в начале шахматной партии всегда стоит на клетке D1. Это самая сильная фигура на доске. Называя новостройку D1, маркетологи MR Group подразумевали, что комплекс станет лучшим предложением в районе. Ввод в эксплуатацию запланирован на I квартал 2021 года. Отправляемся на Дмитровское шоссе, чтобы оценить плюсы и минусы проекта.
Транспортная доминация
Продолжая тему шахматной партии, расположение комплекса можно обозначить как ощутимое преимущество. Игроки называют его доминацией. По Бутырской улице до Садового кольца здесь 4 км, до ТТК — всего 2 км. Причём возле Савёловского вокзала построена крупная развязка. Она даёт возможность выехать на Трёшку в любую сторону, а также съехать на Бутырский Вал, который ведёт к 1-ой Тверской-Ямской.
Как раз под окнами новостройки на Дмитровке есть ещё одна развязка. Путепровод Руставели через железную дорогу ведёт в сторону Останкино. В противоположном направлении есть выезд на Тимирязевскую улицу. До МКАДа по Дмитровскому шоссе 11 км.
Такого скопления общественного транспорта ещё поискать. Ближайший вестибюль станции метро "Дмитровская" расположен в 120 м от границ новостройки. Ещё ближе находится одноимённая платформа. На "Дмитровской" останавливаются поезда Второй линии Московского центрального диаметра и пригородные электрички Рижского направления.
С западной стороны от "D1" есть трамвайное кольцо — конечная маршрутов 27 и 29. Эти трамваи идут к метро "Войковская" и станции МЦК "Коптево". На Дмитровском шоссе много маршрутов транзитного наземного транспорта, которые соединяют с центром столицы такие районы как Бескудниково, Дмитровский, посёлок Северный и другие.
![ЖК "D1": ход ферзём - Фото 1]()
Станция метро "Дмитровская" расположена в двух минутах ходьбы ![ЖК "D1": ход ферзём - Фото 2]()
Тут же находится платформа "Дмитровская" Рижского направления ![ЖК "D1": ход ферзём - Фото 3]()
Железная дорога проходит в 50 метрах от новостройки ![ЖК "D1": ход ферзём - Фото 4]()
По этим же путям курсируют поезда Московского центрального диаметра D2 ![ЖК "D1": ход ферзём - Фото 5]()
В область по этому направлению можно уехать в Красногорск и Волоколамск ![ЖК "D1": ход ферзём - Фото 6]()
От метро к ЖК "D1" ведёт переход под железной дорогой ![ЖК "D1": ход ферзём - Фото 7]()
Бутырская улица в сторону центра. До Садового кольца отсюда 4 км ![ЖК "D1": ход ферзём - Фото 8]()
Это съезд в сторону улицы Руставели и Останкино ![ЖК "D1": ход ферзём - Фото 9]()
Возле домов расположена конечная двух трамвайных маршрутов ![ЖК "D1": ход ферзём - Фото 10]()
На трамвае можно уехать по Тимирязевской улице до метро "Войковская" 
Фигуры на доске
Тема интеллектуальной настольной игры поддерживается в разных аспектах. Например, корпуса носят названия шахматных терминов: Эксельсиор, Кингчесс и Блиц.
Корпус "Блиц" в два раза ниже остальных, здесь только 29 этажей. В соседних 59 и 60. Дома объединены общим стилобатом. Данное архитектурное решение последнее время часто применяется застройщиками, особенно там, где территория комплекса невелика. Это даёт возможность разместить больше коммерческой инфраструктуры на объекте. Похожую конструкцию мы видели в ЖК "Биг тайм", "Ситимикс", "Амурская" и других. В стилобатной части новостройки "D1" запроектированы офисы, торговый центр, супермаркет, детский развивающий центр, аптека, салон красоты и другие организации. Крыша стилобата эксплуатируемая, там будут расположены зоны отдыха. Пройти на эту территорию смогут только жители комплекса.
Над дизайном двора работали специалисты британского бюро Gillespies. Будет озеленение, установка игровых площадок для детей разных возрастов, скамейки. Дорожки вымостят гранитными плитами с термообработанным противоскользящим покрытием. Вдоль южной границы территории проектная декларация предусматривает шумозащитный экран на подпорном элементе.
Покрытие wi-fi будет на территории комплекса и в лобби. Вход в подъезд по магнитным картам или отпечатку пальца. Дизайн входных групп поддерживает архитектуру зданий. В корпусе "Эксельсиор" преобладают плавные линии. В "Кингчессе", напротив, строгая вертикаль, а в "Блице" — бронзовый цвет. На первом этаже предусмотрено отдельное помещение для детских колясок и велосипедов, а также помывочная для собачьих лап. При входе будет стойка ресепшен и зона ожидания с дизайнерской мебелью и декором. Застройщик установит лифты Kone или Schindler, которые спускаются в паркинг. По 5 лифтов предусмотрено в небоскрёбах и 3 лифта в корпусе "Блиц".
Под домами расположена трёхуровневая парковка на 491 машиноместо. При этом квартир в комплексе 1099. На подземных этажах также расположено 200 кладовых помещений.
![ЖК "D1": ход ферзём - Фото 11]()
В комплекс входит три дома высотой от 29 до 60 этажей. Иллюстрация застройщика ![ЖК "D1": ход ферзём - Фото 12]()
Здания имеют разную архитектурную форму и отделку фасадов. Иллюстрация застройщика ![ЖК "D1": ход ферзём - Фото 13]()
Корпус "Блиц" облицован металлическими панелями бронзового оттенка. Иллюстрация застройщика ![ЖК "D1": ход ферзём - Фото 14]()
Корпус "Эксельсион" отличается закруглёнными окнами. Иллюстрация застройщика ![ЖК "D1": ход ферзём - Фото 15]()
Предусмотрен закрытый двор и эксплуатируемая крыша стилобата. Иллюстрация застройщика ![ЖК "D1": ход ферзём - Фото 16]()
Здесь расположены зоны отдыха и игровые площадки. Иллюстрация застройщика ![ЖК "D1": ход ферзём - Фото 17]()
В лобби есть место для консьержа. Иллюстрация застройщика ![ЖК "D1": ход ферзём - Фото 18]()
Установят лифты Kone или Schindler. Иллюстрация застройщика 
Лавирование на стройплощадке
На стройке задействовано более 800 человек. Ведутся железобетонные и монтажные работы. Корпус "Блиц" построен в полную высоту. Два небоскрёба доросли почти до 45 этажей. В то же время начались фасадные работы. На стенах зданий закрепляют направляющие для дальнейшей установки финишных металлических панелей.
Внутри здания прокладывают трубы водоснабжения и канализации. Монтируется система пожаротушения и дымоудаления, которая заключается в подпоре воздуха. Так называется создаваемое специальными устройствами воздушное давление. Благодаря этому образуется барьер, и дым не поднимается. В местах общего пользования началась черновая отделка. Подобраны чистовые материалы, определены подрядчики, выбраны поставщики.
Архитектурный проект разработан российским бюро Kamen. Все три здания имеют собственный облик. Корпус "Блиц" будет почти зеркальным. Фасад делают из анодированных алюминиевых панелей бронзового оттенка. В корпусе "Кингчесс" строгая геометрия линий подчёркнута панелями графитового оттенка трёхкомпонентной окраски. Архитектурная особенность корпуса "Эксельсион" — в закруглённых угловых окнах из изогнутого стекла.
Высота потолков в квартирах 2,85 м без учёта отделки. При этом высота панорамных окон 2,50 м. Ширина оконных проёмов от 1,80 до 5 метров в угловых помещениях. Мультифункциональное закалённое стекло заполнено аргоном. Главное преимущество таких окон в их энергоэффективности. Постепенно аргон выходит из стеклопакета, но небыстро. Хватит на 10-15 лет.
![ЖК "D1": ход ферзём - Фото 19]()
Фотографии на стройплощадке сделаны в конце мая 2020 ![ЖК "D1": ход ферзём - Фото 20]()
Самый невысокий корпус "Блиц" (справа на фото) построен, остальные два сейчас на уровне 45-х этажей ![ЖК "D1": ход ферзём - Фото 21]()
Все дома монолитные ![ЖК "D1": ход ферзём - Фото 22]()
Здания имеют единый стилобат ![ЖК "D1": ход ферзём - Фото 23]()
Началось утепление стен негорючим материалом бренда Rockwool ![ЖК "D1": ход ферзём - Фото 24]()
Параллельно идёт крепление направляющих системы вентилируемого фасада ![ЖК "D1": ход ферзём - Фото 25]()
Впоследствии фасад будет облицован алюминиевыми панелями ![ЖК "D1": ход ферзём - Фото 26]()
На этом фото хорошо видны угловые окна шириной 5 метров ![ЖК "D1": ход ферзём - Фото 27]()
Внутри зданий ведутся инженерные работы: прокладка коммуникаций, установка пожарных систем ![ЖК "D1": ход ферзём - Фото 28]()
Площадь участка, на котором расположен жилой комплекс, менее одного гектара ![ЖК "D1": ход ферзём - Фото 29]()
Новостройку планируют ввести в эксплуатацию в I квартале 2021 года 
План игры и цена победы
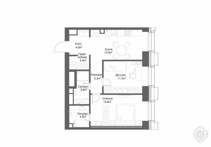
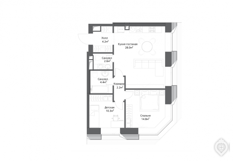
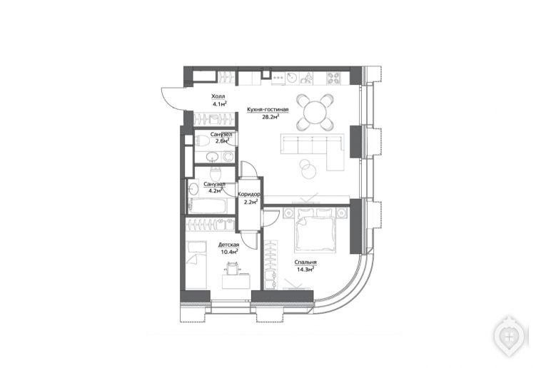
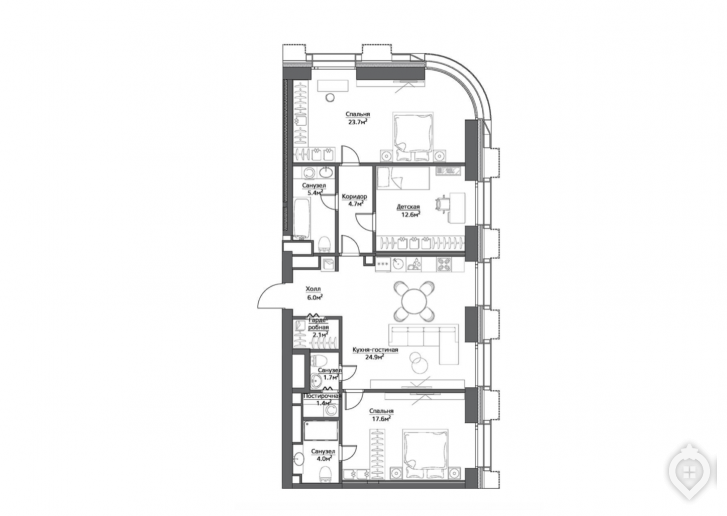
В продаже представлены квартиры площадью от 28 до 170 кв. м. Свободная планировка есть только в пентхаусах, в остальных лотах межкомнатные перегородки возведены.
В домах нет ни балконов, ни лоджий. Зато даже в самых небольших студиях есть гардеробная. Квартиры площадью 27,5 кв. м продаются по цене от 9 700 тыс. рублей. Здесь два окна, поэтому при желании можно отделить спальню от кухни.
Площадь однокомнатных квартир от 34 до 42 кв. м. В основном планировки представляют собой стандартный прямоугольник. На этом фоне выделяются угловые квартиры в корпусе "Блиц". Здесь 4 окна, поэтому жильё должно быть светлым. На 23 этаже такой вариант стоит 13 200 тыс. рублей.
В корпусе "Блиц" осталось несколько евродвушек по цене 14,5 млн рублей за 47 кв. м. Большинство двухкомнатных квартир расположено в двух высотных корпусах, да и площадью они побольше. Цены от 13 400 тыс. рублей за 56 квадратов и линейное расположение комнат. Угловая квартира с закруглённым окном в спальне стоит 16,5 млн рублей за 65,6 кв. м.
Евротрёшка с двумя санузлами в корпусе "Кингчесс" стоит от 16 300 тыс. рублей. В спальне пятиметровое панорамное окно. Метраж квартиры 65 кв. м. Жильё площадью 89 кв. м позиционируется как трёхкомнатное. Но по сути это четырёхкомнатная квартира европланировки. 3 спальни и 35-метровая кухня-гостиная. Цена 20 млн рублей. Цена пентхауса площадью 103 кв. м в корпусе "Эксельсион" 25 млн рублей.
Машиноместа продаются от 1,5 до 2,5 млн рублей в зависимости от площади. Предложены варианты от 13 до 28 кв. м. Подземный паркинг предлагает видеонаблюдение, оборудование для подкачки шин, зарядку для электромобилей, тележки для удобной выгрузки продуктов. Въезд под автоматический шлагбаум.
Площадь келлеров для хранения от 4 до 10 кв. м. На старте продаж кладовки предлагали по цене от 90 тыс. рублей за кв. м. Сейчас цена выросла. Помещения продают по цене от 110 тыс. рублей за кв. м.
![ЖК "D1": ход ферзём - Фото 30]()
Стоимость студий начинается от 9 700 тыс. рублей за 27 кв. м ![ЖК "D1": ход ферзём - Фото 31]()
Однокомнатная квартира площадью 40 кв. м в корпусе "Эксельсион" обойдётся в 13 700 тыс. рублей ![ЖК "D1": ход ферзём - Фото 32]()
Угловая евродвушка в корпусе "Блиц" продаётся за 13 млн рублей. Метраж 42 кв. м ![ЖК "D1": ход ферзём - Фото 33]()
Площадь двухкомнатной квартиры линейной планировки 57 кв. м. Цена от 13 100 тыс. рублей ![ЖК "D1": ход ферзём - Фото 34]()
Вариант с угловым окном стоит 16 млн рублей за 66,5 кв. м ![ЖК "D1": ход ферзём - Фото 35]()
Двухкомнатная квартира с закруглённым окном продаётся за 17 млн. Здесь 66 кв. м ![ЖК "D1": ход ферзём - Фото 36]()
Трёхкомнатная квартира площадью 88,6 кв. м стоит 18,5 млн рублей ![ЖК "D1": ход ферзём - Фото 37]()
Есть вариант площадью 104 кв. м за 22 700 тыс. рублей 
Эндшпиль или поговорим об отделке
Заключительную часть шахматной партии называют эндшпиль. Последний ход застройщика — отделка квартиры. Все квартиры в комплексе за исключением пентхаусов продаются с предчистовым ремонтом MR Base. Изначально в комплексе планировалась чистовая дизайнерская отделка в нескольких стилях, но застройщик отказался от этой идеи.
В рамках отделки whitebox возводятся межкомнатные перегородки с двухслойной обшивкой гипсокартоном. Под него кладут звукоизоляционный слой из минеральной ваты. Затем стены грунтуют, штукатурят и шпаклюют. Таким образом, они будут полностью подготовлены к отделке финишным покрытием.
В квартире делают разводку инженерных коммуникаций и стяжку пола. В каждой комнате будет не менее 5 розеток, на кухне — 10.
![ЖК "D1": ход ферзём - Фото 38]()
White box включает в себя все черновые работы и подготовку помещения к финишной отделке ![ЖК "D1": ход ферзём - Фото 39]()
Выполнена стяжка пола с армированием фиброволокном ![ЖК "D1": ход ферзём - Фото 40]()
Межкомнатные перегородки делают из гипсокартона ![ЖК "D1": ход ферзём - Фото 41]()
Щиток, розетки и выключатели бренда Schneider Electric ![ЖК "D1": ход ферзём - Фото 42]()
Высота входной двери 2,20 м 
Открытая игра — покупка квартиры онлайн
Застройщиком комплекса "D1" проектная декларация называет ООО "ТПУ "Дмитровская", организованное в 2015 году. Создание отдельных юридических лиц под проект конкретной новостройки — не редкость на российском рынке. Жильё продаётся под брендом MR Group.
Имя MR Group на слуху. В настоящее время в Москве и Подмосковье у компании более десятка проектов на стадии возведения. Этой весной, к примеру, тайный покупатель проверял ЖК "Селигер-сити". Абсолютное большинство объектов MR Group вводит в эксплуатацию вовремя.
MR Group — компания крупная и современная, быстро адаптируется к новым условиям. В период, когда посещение общественных мест нежелательно, здесь быстро организовали продажу квартир онлайн. На сайте есть цены и планировки, а оформить покупку предлагают в мобильном приложении.
После регистрации вы получите доступ к личному кабинету, где найдёте список необходимых для сделки документов. Затем курьер привезёт заявление и сертификат на выпуск электронно-цифровой подписи. Получить одобрение по ипотеке и открыть аккредитивный счет можно также не выходя из дома. Деньги будут списаны только после электронной регистрации договора долевого участия в Росреестре. Сумма попадает на эскроу-счет застройщика. И он не может воспользоваться этими средствами до завершения строительства. Это даёт дополнительную гарантию возврата денег в случае банкротства компании.
![ЖК "D1": ход ферзём - Фото 43]()
Офис продаж расположен рядом со стройплощадкой ![ЖК "D1": ход ферзём - Фото 44]()
Оформить покупку квартиры можно через мобильное приложение ![ЖК "D1": ход ферзём - Фото 45]()
Деньги списываются со счета только после регистрации договора долевого участия в госорганах ![ЖК "D1": ход ферзём - Фото 46]()
Здесь же можно следить за ходом строительства 
Шахматная композиция
Окружение новостройки неоднозначное. Во-первых, хорошая транспортная доступность зачастую оборачивается соседством с загрязнёнными магистралями и шумными поездами. Так вышло и здесь. Пробок на Бутырской улице хватает. Под окнами гремят электричка и трамваи.
C этажей повыше открывается панорамный вид на Останкино, Москву-Сити, Тимирязевский парк. Но в поле зрения также попадают товарная станция Москва-Бутырская, фабрика косметики "Свобода" и промзона "Огородный проезд". Здесь работают два десятка заводов пищевой промышленности, где делают колбасу, сыры, мороженое и т.д. За Савёловским вокзалом в советские годы также начиналась территория тяжёлой промышленности. Здесь были построены крупные предприятия металлургии, металлообработки и машиностроения. В настоящее время территории отданы под бизнес-центры, автосервисы, фитнес-клубы и торговые галереи. Самый известный — дизайн-завод "Флакон". Но на визуальный ряд это не повлияло. Пейзаж по-прежнему весьма индустриальный.
Почти все промышленные объекты находятся на стороне Савёловского вокзала. А на противоположной стороне Бутырской улицы — старый жилой район, где преобладают кирпичные 10-12-этажные дома. Здесь развита вся социальная инфраструктура.
В 250 м от новостройки есть три муниципальных детских сада. На Башиловской улице работает пара частных учреждений. Через дорогу находится ближайшая школа. Недалеко есть школа №1236 имени С.В. Милашенкова с углубленным изучением иностранных языков и профильными классами. А в соседнем Тимирязевском районе находится 1-й Московский кадетский корпус.
Возле метро "Дмитровская" развита торговая инфраструктура. Есть супермаркеты "Перекрёсток", "ВкусВилл". На пересечении Тимирязевской улицы и Дмитровского проезда работает торговый центр, где расположены продуктовые, мебельные, строительные и автомагазины, есть точки выдачи заказов из интернет-магазинов.
![ЖК "D1": ход ферзём - Фото 47]()
Возле метро "Дмитровская" развита торговая инфраструктура ![ЖК "D1": ход ферзём - Фото 48]()
В районе есть муниципальные детские сады и школы ![ЖК "D1": ход ферзём - Фото 49]()
Ближайшее детское учреждение находится в соседнем дворе ![ЖК "D1": ход ферзём - Фото 50]()
На Дмитровском проезде открыт торговый центр 
- 5/5транспорт
 - 3/5экология
 - 4/5инфраструктура
 - 3/5цена/качество
 


















































Комментарии
Александр
4 года назад
Сергей
4 года назад