Имя проекта хорошо воспринимается публикой. Жилые комплексы с названием "Облака" есть в Новороссийске, Новосибирске, Санкт-Петербурге, Нижнем Новгороде и других городах России. Сегодня отправляемся в подмосковные Люберцы, смотреть дом, который готовится к заселению.
Гуляем вокруг дома
На участке 0,8 га девелопер "Тройка РЭД" построит шестиподъездный 14-18-25-этажный дом. Над внешним обликом трудились архитекторы московского бюро "МезонПроект". Всего в здании 1020 квартир и 152 апартамента.
Дом имеет монолитный каркас и наружные стены из бетонных блоков. Зданию присвоен класс энергоэффективности А, что в комплексах эконом- или комфорт-класса встречается редко. Для утепления фасада застройщик применяет экструдированный пенополистирол российского бренда Technonicol. Это синтетический материал, который не дает усадки, не впитывает влагу и не набухает, а еще он химически стойкий и не подвержен гниению. На фасаде предусмотрены корзины для внешних блоков кондиционеров.
Дом стоит буквой "Г". Это позволило закрыть двор от машин. В центре находится детская площадка. Обещают сеть wi-fi. Пройти на территорию можно по индивидуальным магнитным ключам, которые привязываются к паспортным данным.
Парковочные карманы расположены по периметру здания. По словам менеджера продаж, вокруг дома поместится около 200 автомобилей. Подземного паркинга нет. На первом этаже расположены 14 нежилых помещений, которые отдадут под коммерцию. На территории, в зонах общего пользования и лифтах ведётся видеонаблюдение. В подъездах есть колясочные комнаты площадью от 10 до 17 кв. м. В домах установлены лифты Otis, до трёх штук в 25-этажных секциях.
![ЖК "Облака": комфорт-класс рядом с ж/д станцией - Фото 1]()
ЖК "Облака" - это один дом с секциями от 14 до 25 этажей ![ЖК "Облака": комфорт-класс рядом с ж/д станцией - Фото 2]()
В крайней (справа на фото) 18-этажной секции располагаются апартаменты ![ЖК "Облака": комфорт-класс рядом с ж/д станцией - Фото 3]()
Возле дома есть стоянка на 200 машиномест ![ЖК "Облака": комфорт-класс рядом с ж/д станцией - Фото 4]()
Дом каркасно-монолитный, наружные стены закрыты системой вентилируемого фасада ![ЖК "Облака": комфорт-класс рядом с ж/д станцией - Фото 5]()
Предусмотрена установка корзин для внешних блоков кондиционеров (повесят чуть позже на месте креплений) ![ЖК "Облака": комфорт-класс рядом с ж/д станцией - Фото 6]()
В комплексе установлено 58 камер наружного наблюдения ![ЖК "Облака": комфорт-класс рядом с ж/д станцией - Фото 7]()
Территория двора будет закрытой, вход по магнитным ключам ![ЖК "Облака": комфорт-класс рядом с ж/д станцией - Фото 8]()
Согласно проектной декларации, комплекс должен быть введён в эксплуатацию не позднее конца 2021 года ![ЖК "Облака": комфорт-класс рядом с ж/д станцией - Фото 9]()
По факту ключи собираются выдавать в апреле 2020 года ![ЖК "Облака": комфорт-класс рядом с ж/д станцией - Фото 10]()
В подъездах установлены лифты Otis. Иллюстрация застройщика ![ЖК "Облака": комфорт-класс рядом с ж/д станцией - Фото 11]()
Входные группы оборудованы комнатой консьержа и колясочной. Иллюстрация застройщика ![ЖК "Облака": комфорт-класс рядом с ж/д станцией - Фото 12]()
Так вход в подъезд выглядит в реальной жизни
Отделка в квартирах
Большинство квартир продаётся в формате свободной планировки. Не будет ни межкомнатных перегородок, ни электропроводки. Встречаются только несущие пилоны. Выполнена горизонтальная разводка шлангов отопления, установлены радиаторы с терморегуляторами. При входе металлическая дверь с двумя замками.
В 3 поворотной секции продаются квартиры с черновой или чистовой отделкой. В первом случае помещение будет подготовлено к финишному ремонту. Выполнена стяжка пола, выровнены стены, электропровода разведены по комнатам, установлены розетки. Подрядчик сделает разводку труб водоснабжения и канализации.
На раннем этапе продаж можно было выбрать квартиру с отделкой white box или чистовой вариант "Рассвет" или "Закат". Первый выполнен в холодных тонах, второй в тёплых. За месяц до заселения отделка квартир уже почти завершена, поэтому заказать то, что больше нравится, не представляется возможном.
В квартирах с чистовой отделкой подрядчик возводит межкомнатные перегородки согласно проекту. На стенах обои под покраску — виниловые на флизелиновой основе. На полу в прихожей и на кухне плитка Kerama Marazzi, в комнатах — ламинат Kronostar. По всей квартире делают натяжной потолок. Устанавливаются межкомнатные двери фабрики "Браво" с плёночным покрытием экошпон. Санузлы сдаются под ключ. Будет санфаянс Cersanit и сантехника Lemark. В чистовую отделку также входит установка кондиционера, но бренд и технические характеристики оборудования не уточняются.
При покупке квартиры свободной планировки можно обратиться к тому же подрядчику, что выполнял отделку в 3 секции. Стоимость работ и материалов составит около 15 тыс. рублей за кв. м, если расставить стены так, как предлагает застройщик. В противном случае дизайн-проект оплачивается отдельно.
![ЖК "Облака": комфорт-класс рядом с ж/д станцией - Фото 13]()
На 2 этаже в офисе продаж есть шоу-рум с чистовой отделкой ![ЖК "Облака": комфорт-класс рядом с ж/д станцией - Фото 14]()
Отделка "Закат" выполнена в светлых и тёплых тонах ![ЖК "Облака": комфорт-класс рядом с ж/д станцией - Фото 15]()
"Рассвет" более контрастный, с тёмным ламинатом ![ЖК "Облака": комфорт-класс рядом с ж/д станцией - Фото 16]()
Устанавливаются двери фабрики "Браво" (отделка "Рассвет") ![ЖК "Облака": комфорт-класс рядом с ж/д станцией - Фото 17]()
Полотна покрыты текстурной плёнкой экошпон (отделка "Закат") ![ЖК "Облака": комфорт-класс рядом с ж/д станцией - Фото 18]()
В прихожей и на кухне будет плитка Kerama Marazzi ![ЖК "Облака": комфорт-класс рядом с ж/д станцией - Фото 19]()
На стенах виниловые обои под покраску ![ЖК "Облака": комфорт-класс рядом с ж/д станцией - Фото 20]()
По всей квартире натяжной потолок ![ЖК "Облака": комфорт-класс рядом с ж/д станцией - Фото 21]()
В комплекс оборудования квартиры с отделкой входит кондиционер ![ЖК "Облака": комфорт-класс рядом с ж/д станцией - Фото 22]()
В санузлах будет сантехника от застройщика ![ЖК "Облака": комфорт-класс рядом с ж/д станцией - Фото 23]()
Бежевую плитку используют в "Закате" ![ЖК "Облака": комфорт-класс рядом с ж/д станцией - Фото 24]()
Это фрагмент отделки санузла в "Рассвете" ![ЖК "Облака": комфорт-класс рядом с ж/д станцией - Фото 25]()
Застройщик устанавливает напольный унитаз ![ЖК "Облака": комфорт-класс рядом с ж/д станцией - Фото 26]()
Будет раковина Cersanit, смесители Lamark ![ЖК "Облака": комфорт-класс рядом с ж/д станцией - Фото 27]()
Застройщик устанавливает металлическую дверь с двумя замками разного типа. Снизу будет цилиндровый ![ЖК "Облака": комфорт-класс рядом с ж/д станцией - Фото 28]()
Верхний замок сувальдный ![ЖК "Облака": комфорт-класс рядом с ж/д станцией - Фото 29]()
Так выглядит квартира с предчистовой отделкой. Фото из соцсети
Квартиры, апартаменты и цены
В ЖК "Облака" продаются квартиры и апартаменты. Последние занимают примерно одну седьмую общей площади дома и расположены в 18-этажной шестой секци.
С первого взгляда апартаменты в комплексе ничем не отличаются от квартир. Окна выходят на прилегающую территорию, то есть секция расположена подальше от шумной улицы. Основной плюс апартаментов в том, что они дают полную свободу планировки. Мокрые зоны можно переносить. Но из этого следуют и минусы. К примеру, сосед сверху может сделать кухню над вашей спальней и допоздна принимать гостей. Законы о тишине, кстати, также не распространяются на нежилые помещения. Ну и не стоит забывать о налоге, который существенно выше налога на квартиру.
В апреле 2020 года осталось только 20 предложений апартаментов площадью от 29 до 56 кв. м. Цена от 2 900 тыс. рублей. Есть интересные угловые варианты, из которых можно сделать двушку. Цена от 4,5 млн за 55 квадратов.
Площадь студий в статусе квартир начинается от 27 кв. м. Но цена заметно дороже в отличие от апартаментов — от 3 700 тыс. рублей. Планировка — стандартный прямоугольник. Студии остались только в 1 и 2 секции, соответственно, вариантов с чистовой отделкой нет.
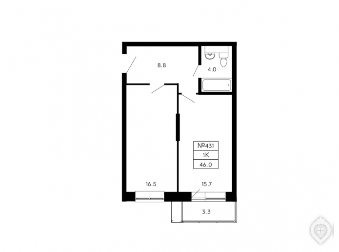
В списке из 200 оставшихся в продаже квартир большинство однокомнатные. Цены на них начинаются от 5 100 тыс. рублей за 39 кв. м свободной планировки. За такую же площадь с черновой отделкой нужно доплатить 500 тыс. рублей, с чистовой — 850 тыс. рублей. В большинстве вариантов есть эркер в комнате. Предложений с балконом осталось мало. Максимальная площадь однушки 46,4 кв. м, а стоимость такой до 6 100 тыс. рублей с отделкой.
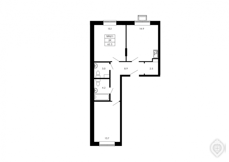
Двухкомнатные квартиры представлены в двух вариантах — угловые и линейные. Разброс по площади небольшой — от 60 до 64 кв. м. Стоимость от 6 300 до 7 100 тыс. рублей.
Трёхкомнатная квартира будет распашной или угловой. В каждой из них по два санузла. Все варианты с балконом, за исключением предложения на втором этаже. Площадь квартир с отделкой (черновой или чистовой) от 71 до 77 кв. м. Более крупные по метражу имеют свободную планировку и продаются "в бетоне". Цена таких трёшек от 7,5 до 8,5 млн рублей.
![ЖК "Облака": комфорт-класс рядом с ж/д станцией - Фото 30]()
Студия в статусе апартаментов продаётся за 2 900 тыс. рублей ![ЖК "Облака": комфорт-класс рядом с ж/д станцией - Фото 31]()
Такие апартаменты обойдутся как минимум в 4 600 тыс. рублей ![ЖК "Облака": комфорт-класс рядом с ж/д станцией - Фото 32]()
Студия в статусе квартиры по планировке не отличается от апартаментов, но стоит от 3 700 тыс. рублей ![ЖК "Облака": комфорт-класс рядом с ж/д станцией - Фото 33]()
Однокомнатные квартиры продаются по цене от 5,5 млн рублей ![ЖК "Облака": комфорт-класс рядом с ж/д станцией - Фото 34]()
Вариант с балконом продаётся за 5 400 тыс. рублей ![ЖК "Облака": комфорт-класс рядом с ж/д станцией - Фото 35]()
Двухкомнатная квартира с чистовой отделкой стоит 7 100 тыс. рублей ![ЖК "Облака": комфорт-класс рядом с ж/д станцией - Фото 36]()
Вариант без отделки можно приобрести за 6,5 млн рублей ![ЖК "Облака": комфорт-класс рядом с ж/д станцией - Фото 37]()
Угловая двушка свободной планировки стоит 6 300 тыс. рублей ![ЖК "Облака": комфорт-класс рядом с ж/д станцией - Фото 38]()
Трёхкомнатная квартира с черновой отделкой за 7,5 млн рублей ![ЖК "Облака": комфорт-класс рядом с ж/д станцией - Фото 39]()
Трёшка без отделки стоит 8 150 тыс. рублей
Застройщик и условия продаж
В портфеле девелопера "Тройка РЭД" есть как проекты комплексной, так и точечной застройки. К последним и относится ЖК "Облака". Но застройщик имеет опыт осуществления и более масштабных идей. Тайный покупатель проверял ЖК "Новокрасково", "Май" и "Видный берег". В истории компании были задержки сдачи корпусов до полугода. Но случалось и так, что застройщик заселял дома на полгода раньше заявленного срока.
Проектная декларация ЖК "Облака" обещает готовность проекта в IV квартале 2021-го. Но дом заселяется значительно раньше. Застройщик рассчитывает получить разрешение на ввод в эксплуатацию до конца апреля 2020 года. Комплекс со стороны выглядит готовым принять новосёлов.
Чтобы получить полное представление о проекте, достаточно изучить официальный сайт. Там есть вся информация о планировках и ценах, об инфраструктуре по соседству, документы и галерея. Проект также представлен в социальных сетях, например во ВКонтакте и в Инстаграме. Там много фотографий со стройки. Беседа с менеджером продаж может стать дополнением, если вы лучше воспринимаете информацию на слух. Но в "Облаках" налажена и дистанционная продажа квартир.
Минимальные ставки по ипотеке 5-10,9% годовых. Самые привлекательные предложения есть в банках ВТБ, "Зенит", "Возрождение" и в Сбербанке. Застройщик предлагает беспроцентную рассрочку на полгода. Погашение осуществляется каждый месяц равными платежами. Есть вариант рассрочки на год под 6% годовых. Первоначальный взнос в любом случае составляет 50% от стоимости жилья.
Продажами квартир от застройщика занимается агентство BSA Group, которое работает со всеми проектами девелопера "Тройка РЭД". Оформление сделки стоит 30 тыс. рублей.
![ЖК "Облака": комфорт-класс рядом с ж/д станцией - Фото 40]()
Офис продаж возле стройплощадки находится в здании Всероссийского общества слепых. Адрес: Инициативная, 5 ![ЖК "Облака": комфорт-класс рядом с ж/д станцией - Фото 41]()
В офисе есть макет будущего комплекса, предложены рекламные буклеты ![ЖК "Облака": комфорт-класс рядом с ж/д станцией - Фото 42]()
Оборудована игровая комната для детей
Расположение и транспортная доступность
В Люберцы отправляемся на электричке с Казанского вокзала. Одним из главных плюсов ЖК "Облака" является двухминутная шаговая доступность железнодорожной платформы "Люберцы-1". Получается, что вы не зависите от пробок и всегда можете оказаться в центре Москвы вовремя. Конечно, по утрам и вечерам в поезде придётся потолкаться.
До трёх вокзалов ехать 35 минут. Но по пути ещё можно сделать пересадку на станции трёх разных веток метро: "Выхино" Таганско-Краснопресненской линии, "Авиамоторная" Калининской линии и "Электрозаводская" Арбатско-Покровской линии. До метро "Выхино" от дома ходят маршрутки и автобусы.
Для тех, кто предпочитает пользоваться автомобилем, не всё так радужно. Из Москвы в этом направлении идёт Рязанский проспект, который в Люберцах переходит в Октябрьский. В районе ж/д станции "Люберцы-1" нужно свернуть в сторону Комсомольского проспекта. Эти дороги за МКАДом четырёхполосные, по две полосы в каждую сторону. Заторы бывают часто.
![ЖК "Облака": комфорт-класс рядом с ж/д станцией - Фото 43]()
Ж/д станция Люберцы-1 находится в 2 минутах ходьбы от новостройки ![ЖК "Облака": комфорт-класс рядом с ж/д станцией - Фото 44]()
Электричка до Казанского вокзала идёт 35 минут ![ЖК "Облака": комфорт-класс рядом с ж/д станцией - Фото 45]()
Железнодорожное движение здесь оживлённое, часть окон ЖК "Облака" выходят на пути ![ЖК "Облака": комфорт-класс рядом с ж/д станцией - Фото 46]()
Перспектива улицы Инициативной, на которой стоит комплекс ![ЖК "Облака": комфорт-класс рядом с ж/д станцией - Фото 47]()
Из Москвы ведут Рязанский и Октябрьский проспекты со съездом на путепровод и Комсомольский проспект ![ЖК "Облака": комфорт-класс рядом с ж/д станцией - Фото 48]()
Движение на подъезде к комплексу часто затруднено из-за узких дорог
Инфраструктура и окружение
На пресс-конференции в сентябре 2018 года, посвящённой старту продаж, застройщик объявил, что в рамках данного инвестиционного проекта будет построен детский сад на 120 мест. В настоящий момент его и след простыл. Никакой информации о ДОУ нет ни на сайте, ни в офисе продаж.
В 2018 году потенциальные дольщики на форуме обсуждали дополнительную парковку на 430 мест, которую обещал застройщик. Сейчас речи о ней не идёт. Вместо этого менеджер продаж предложил присмотреться к подземному паркингу ЖК "Академический", что расположен в 100 м от нашей новостройки. В интернете есть с десяток предложений от собственников. Средняя цена 800 тыс. рублей. В офисе анонсируют организацию стоянки под эстакадой Комсомольского проспекта напротив дома, но количество машиномест и условия пользования не сообщаются.
С наличием социальной инфраструктуры в шаговой доступности проблем нет. В соседних дворах пять детских садов, школа и гимназия. Но на форумах Люберец пишут, что образовательные учреждения в городе переполнены. Даже если удастся попасть в какое-то из них, обучения в небольших группах или классах не видать. Но это можно попытаться компенсировать дополнительным образованием. В Люберцах много детских развивающих студий для детей с 9 месяцев. В 600 м расположен физкультурный центр с бассейном "Гравитация".
Коммерческая инфраструктура в этом районе пестрит разнообразием. Кажется, здесь можно найти что угодно: медицинские лаборатории, банки, аптеки, салоны красоты, строительные магазины, супермаркеты, закусочные, рынки и многое другое. В ЖК "Академический" есть ателье и фитнес-клуб.
А вот зелёных зон по соседству не наблюдается. Ближайшая — Старое Люберецкое кладбище в 300 м, которое для прогулок не подойдёт. Люберецкий парк культуры и отдыха расположен по другую сторону железной дороги. В 1,5 км находится Наташкинский парк с конным двором, аттракционами и батутами.
Экологическая ситуация в Люберцах остаётся печальной. Проблемным объектом является промзона "Руднево" на Косинском шоссе в 3 км от ЖК "Облака". Там функционируют мусоросжигательный завод, завод утилизации биологических отходов, бетонный завод и другие. Эта территория подлежит реконструкции. Часть земли возле станции метро "Лухмановская" отдадут под жилую застройку. Но по информации Москомархитектуры Москвы, по соседству построят предприятия горно-перерабатывающей, машиностроительной, металлургической областей. Серая область на карте Люберец занимает значительную часть. В городе функционируют 25 промышленных предприятий, среди которых строительный комбинат, алюминиевое производство, вертолётный завод и другие.
![ЖК "Облака": комфорт-класс рядом с ж/д станцией - Фото 49]()
Ближайший детский сад расположен во дворе ЖК "Академический" в 100 м ![ЖК "Облака": комфорт-класс рядом с ж/д станцией - Фото 50]()
Ещё один сад и школа №27 находятся в 700 м ![ЖК "Облака": комфорт-класс рядом с ж/д станцией - Фото 51]()
В этом здании работает Российская таможенная академия ![ЖК "Облака": комфорт-класс рядом с ж/д станцией - Фото 52]()
Строительный супермаркет есть прямо возле дома ![ЖК "Облака": комфорт-класс рядом с ж/д станцией - Фото 53]()
В соседнем здании работает отделение Сбербанка ![ЖК "Облака": комфорт-класс рядом с ж/д станцией - Фото 54]()
Ближайший супермаркет в 100 м ![ЖК "Облака": комфорт-класс рядом с ж/д станцией - Фото 55]()
Возле ж/д станции функционирует торговый комплекс ![ЖК "Облака": комфорт-класс рядом с ж/д станцией - Фото 56]()
Здесь также есть сетевой супермаркет ![ЖК "Облака": комфорт-класс рядом с ж/д станцией - Фото 57]()
Рядом расположен сельскохозяйственный рынок
- 4/5транспорт
- 3/5экология
- 3/5инфраструктура
- 3/5цена/качество

























































Добавить отзыв