В ЖК "Грани" присутствуют атрибуты бизнес-класса: закрытая территория, подземный паркинг, потолки выше 3 метров, двухуровневые квартиры, лифты Schindler, лобби с зоной ожидания, консьерж-сервис. Но застройщик держит амбиции в узде и на "бизнес" не претендует. Комплекс заявлен как объект класса "комфорт-плюс". На проверку объекта от ГК "Основа" отправляемся на юго-восток Москвы в Текстильщики.
Основное о проекте
ЖК "Грани" представлен одним трёхсекционным домом на 339 квартир. Высота средней секции 12 этажей, крайних - по 22 этажа. Двор закрытый, въезд через шлагбаум. Прилегающую территорию благоустроят ландшафтные дизайнеры. Здесь появятся детские и спортивные площадки, зоны отдыха. Первые этажи отдадут под коммерцию. Никакой социальной инфраструктуры проектом не предусмотрено.
Подъезды сквозные - можно выйти как во двор, так и на улицу. При входе устанавливается видеодомофонная система Cifral. Вход в здание сделан на уровне земли без порогов и лестниц. На первом этаже есть зона ожидания с гостевым санузлом, стойка консьержа, комнаты для хранения детских колясок и велосипедов. Застройщик устанавливает лифты Schindler грузоподъёмностью 450 и 1000 кг. Во второй секции будет всего два лифта, в остальных - по три. Мусоропровода в доме нет.
Объект будет находиться под контролем системы видеонаблюдения с установкой камер Hikvision. В объективы попадут двор, входные группы, лифтовые холлы и подземная автостоянка.
Подземный паркинг рассчитан на 130 машиномест. Ещё 43 автомобиля сможет принять гостевой паркинг на территории комплекса. Стандартное по размеру место для городского седана площадью 14,3 кв.м стоит 900 тыс. рублей. Места для мотоциклов продаются по цене от 650 тыс. рублей.
На минус первом этаже расположены и кладовые помещения, выведенные в продажу. Их площадь от 1,5 до 5 кв. м., а стоимость от 310 тыс. рублей. Всего в комплексе 73 кладовки.
![ЖК "Грани": комфорт плюс без ограничений - Фото 1]()
Территория "Граней" будет закрытой от посторонних. Иллюстрация застройщика ![ЖК "Грани": комфорт плюс без ограничений - Фото 2]()
Всего в доме 339 квартир. Иллюстрация застройщика ![ЖК "Грани": комфорт плюс без ограничений - Фото 3]()
Максимальная высота здания 22 этажа, средняя секция - 12-этажная. Иллюстрация застройщика ![ЖК "Грани": комфорт плюс без ограничений - Фото 4]()
Подъезды сквозные - с выходом во двор и на улицу. На первом этаже есть колясочные комнаты. Иллюстрация застройщика ![ЖК "Грани": комфорт плюс без ограничений - Фото 5]()
На -1 этаже находится паркинг на 130 машиномест и 73 кладовых площадью от 1,5 до 5 м
Расположение и окружение
Из центра Москвы в ЖК "Грани" нужно добираться по Волгоградскому проспекту. Расстояние от Садового кольца 6 км. Через 2 км после Трёшки дорога ведёт на съезд к Люблинской улице. Ещё пять минут - и вы на месте.
Как раз на пересечении Волгоградки и Люблинской улицы находится станция метро "Текстильщики". Пешком до стройплощадки от неё можно дойти за 15 минут. Свернув немного в сторону Волжского бульвара во дворы, я обнаружила не менее четырёх школ и столько же детских садов, включая коммерческое сетевое учреждение "Горница-узорница". В 500 м от ЖК "Грани" находится поликлиника №109, где есть взрослое и детское отделение.
Недостатка в магазинах в районе нет. По пути встретились универсам "Верный", "Пятёрочка", "Магнит" и другие. По адресу Саратовская, 3 есть фитнес-центр.
Забегая вперёд, расскажу, что, закончив исследование стройки, я решила дойти до станции МЦК "Новохохловская", хотя менеджер продаж предупреждал, что лучше этого не делать. Пожалуй, он был прав. Пешая тропинка к платформе есть, но проходит вдоль высокой травы и промзоны. Людей там почти нет, так что даже днём по таким местам ходить небезопасно. Полноценную дорогу до "Новохохловской" обещают в 2023-24 годах, когда пройдёт реконструкция прилегающей к путям промзоны. Примерно к этому времени должн ы построить и ещё одну одноимённую станцию "Текстильщики", но Большой Кольцевой линии. Так что на запад Москвы можно будет добраться всего за 20-30 минут.
ЖК "Грани" строится на территории Московского жирового комбината. По соседству ещё остался один работающий цех по производству майонеза, но и он на ладан дышит. Как снесут последние заводские постройки, будут строить новые жилые дома.
![ЖК "Грани": комфорт плюс без ограничений - Фото 6]()
Из центра города к комплексу ведёт Волгоградский проспект ![ЖК "Грани": комфорт плюс без ограничений - Фото 7]()
Далее ещё километр по Люблинской улице ![ЖК "Грани": комфорт плюс без ограничений - Фото 8]()
Если добираетесь на метро, то нужен выход 3 ![ЖК "Грани": комфорт плюс без ограничений - Фото 9]()
Вестибюли станции метро "Текстильщики" находятся на Волгоградском проспекте ![ЖК "Грани": комфорт плюс без ограничений - Фото 10]()
Пешком до комплекса можно дойти по Люблинской улице за 15-20 минут ![ЖК "Грани": комфорт плюс без ограничений - Фото 11]()
Идти здесь приятно, много зелени и мало машин ![ЖК "Грани": комфорт плюс без ограничений - Фото 12]()
Недалеко также находится станция МЦК "Новохохловская", но добираться туда неудобно ![ЖК "Грани": комфорт плюс без ограничений - Фото 13]()
Тропинка идёт вдоль промзоны ![ЖК "Грани": комфорт плюс без ограничений - Фото 14]()
Хорошую дорогу обещают построить здесь через 3-4 года ![ЖК "Грани": комфорт плюс без ограничений - Фото 15]()
В пешей доступности находятся 4 школы и столько же детских садов ![ЖК "Грани": комфорт плюс без ограничений - Фото 16]()
Социальная инфраструктура в районе развита ![ЖК "Грани": комфорт плюс без ограничений - Фото 17]()
Нет недостатка и в магазинах ![ЖК "Грани": комфорт плюс без ограничений - Фото 18]()
Работают различные сетевые супермаркеты ![ЖК "Грани": комфорт плюс без ограничений - Фото 19]()
В жилых домах есть небольшие продуктовые магазины
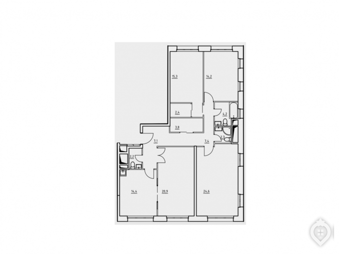
Планировочные решения
В ЖК "Грани" представлены все популярные форматы квартир: студии, классические и европланировки, распашные и линейные, квартиры с балконом и без. На последнем этаже в каждой секции расположены двухуровневые варианты. В первом подъезде в таких планировках предусмотрен дымоход, поэтому есть техническая возможность установить камин.
Если в квартире есть балкон, то у него будет панорамное остекление. Застройщик предусмотрел увеличенную площадь окон. Стеклопакеты устанавливаются на уровне 70 см от пола, их высота 1,95 м. Потолки в квартирах 3,1 м, в двухуровневых - 5,1. При этом высота потолка на верхнем уровне 2 м.
Самую бюджетную квартиру в ЖК "Грани" в начале лета 2019 можно купить за 4 500 тыс. рублей. Эта студия площадью 25,3 кв. м без отделки расположена на втором этаже. Здесь просторный пятиметровый санузел и кухня-гостиная площадью 16 кв. м. Цена подобных лотов с готовым ремонтом начинается от 5 120 тыс. рублей.
В 3 секции есть однокомнатные квартиры площадью 35 кв. м. Все они без балкона, по форме планировка представляет собой стандартный прямоугольник. Метраж совмещённого санузла 3,7 кв. м, а площадь кухни 10 кв. м. Цена такой квартиры без отделки от 5 600 тыс. рублей. В первой секции метраж однушек доходит до 42 кв. м, и в этих квартирах, начиная с 3 этажа, есть балкон. Цена от 6 280 тыс. рублей.
В 3 секции ещё остались в продаже двухкомнатные квартиры без отделки площадью 54 кв. м за 8 300 тыс. рублей. Побольше выбор двушек во второй секции. Здесь все квартиры уже с готовым ремонтом. Планировка распашная, метраж 65 кв. м, а цена от 9 100 тыс. рублей.
В пределах 9,5 млн рублей есть интересные угловые евротрёшки. Они хоть и без балкона, зато в кухне-гостиной площадью 17 кв. м три окна. Общий метраж такой квартиры 68 кв. м, предусмотрено два санузла. Эти варианты следует искать в первой или третьей секциях, которые продаются без отделки. Максимальная площадь одноуровневых квартир в ЖК "Грани" 83 кв. м. Такие лоты выставлены на продажу за 11 500 тыс. рублей без отделки.
Двухуровневая евротрёшка по площади 86, 4 кв. м, эта как раз та, где можно установить камин. Площадь второго уровня 17 кв. м. Цена 14 500 тыс. рублей.
![ЖК "Грани": комфорт плюс без ограничений - Фото 20]()
Стоимость студий без отделки начинается от 4,5 млн за 25 кв. м ![ЖК "Грани": комфорт плюс без ограничений - Фото 21]()
Большинство однокомнатных квартир площадью 35 кв. м, такие продаются от 5 600 тыс. рублей ![ЖК "Грани": комфорт плюс без ограничений - Фото 22]()
Максимальный метраж однушки 41,2 кв. м, цена такой с балконом 6 400 тыс. рублей ![ЖК "Грани": комфорт плюс без ограничений - Фото 23]()
Площадь двухкомнатной квартиры линейной планировки 54 кв. м. Её продают за 8 400 тыс. рублей без отделки ![ЖК "Грани": комфорт плюс без ограничений - Фото 24]()
А это вариант двушки с отделкой за 9 879 тыс. рублей. Метраж 65 кв. м ![ЖК "Грани": комфорт плюс без ограничений - Фото 25]()
В туже цену обойдётся покупка угловой евротрёшки площадью 70 кв. м, но на втором этаже и без отделки ![ЖК "Грани": комфорт плюс без ограничений - Фото 26]()
Распашной вариант трёхкомнатной квартиры площадью 85 кв. м без отделки стоит 10 600 тыс. рублей ![ЖК "Грани": комфорт плюс без ограничений - Фото 27]()
Четырёхкомнатная квартира площадью 118 кв. м представлена в единственном экземпляре на 19 этаже. Продаётся за 16,5 млн рублей ![ЖК "Грани": комфорт плюс без ограничений - Фото 28]()
Так выглядит двухуровневая студия общей площадью 34,5 кв. м за 6 млн рублей без отделки ![ЖК "Грани": комфорт плюс без ограничений - Фото 29]()
Двухуровневая однокомнатная квартира продаётся за 9,5 млн. Метраж 56,3 кв. м ![ЖК "Грани": комфорт плюс без ограничений - Фото 30]()
Двушка с антресолью продаётся за 11 700 тыс. рублей. Здесь площадь двух уровней 80 кв. м ![ЖК "Грани": комфорт плюс без ограничений - Фото 31]()
Это двухуровневая квартира на основе угловой трёшки. Общий метраж 86,4 кв. м, а цена 14 200 тыс. рублей
Отделка от застройщика
Большинство квартир в ЖК "Грани" свободной планировки, продаются без межкомнатных перегородок и, соответственно, без отделки. Только 12-этажную вторую секцию застройщик продаёт с готовым ремонтом, за исключением пентхаусов. В остальных секциях ремонт от застройщика можно заказать отдельно. Стоимость работ и материалов 18500 руб. за кв. м.
На выбор предложен ремонт в тёплых или холодных тонах. В первом случае будут бежевые стены и светлые полы, во втором - сочетание серых стен и тёмного напольного покрытия.
Определяться с производителями материалов застройщик будет ближе к весне 2020 года. Поэтому пока что данные об отделке приблизительные. Ламинат 32 или 33 класса износостойкости, обои под покраску, в санузлах керамика на всю высоту стен, а на кухне - фартук из плитки в зоне расположения гарнитура. По всей квартире сделают матовый белый натяжной потолок и оставят выводы под осветительные приборы.
В двухуровневых квартирах стоимость отделки, если покупатель предпочитает заказать её у застройщика, будет рассчитываться индивидуально с учётом особенностей помещения. Пока что опыта продажи таких квартир нет, поэтому и цену в офисе продаж не назвали. Но, к примеру, совершенно точно можно сказать, что расходы на покупку и установку лестницы с первого на второй этаж дополнительно лягут на плечи собственника.
![ЖК "Грани": комфорт плюс без ограничений - Фото 32]()
Шоу-рум в офисе продаж условный, так как с производителями отделочных материалов застройщик ещё не определился ![ЖК "Грани": комфорт плюс без ограничений - Фото 33]()
Но цветовая гамма будет примерно такой: слева представлена отделка в холодных тонах, справа - в тёплых ![ЖК "Грани": комфорт плюс без ограничений - Фото 34]()
Стены будут оклеены обоями под покраску, которые при желании несложно перекрасить ![ЖК "Грани": комфорт плюс без ограничений - Фото 35]()
Предположительно будет сантехника чешского производства ![ЖК "Грани": комфорт плюс без ограничений - Фото 36]()
Санузлы отделаны плиткой от пола до потолка, на стене - хромированный полотенцесушитель
Строительство и сроки заселения
Дом возводится по монолитной технологии с устройством наружных стен из бетонных блоков. После утепления наружные стены закроет система вентилируемого фасада с отделкой из фиброцементных плит. Этот материал не горит и не плавится.
Среднюю 12-этажную секцию давно построили, здесь ведутся кровельные работы. Поскольку этот подъезд сдаётся с чистовой отделкой, внутри уже начали возводить межкомнатные перегородки. Монтируются стояки водоснабжения и канализации, противопожарная система.
В первой и третьей секциях строители приближаются к последним этажам. В части здания уже установлены стеклопакеты, а вот панорамное остекление балконов ещё не привезли.
На территории прокладывают коммуникации. Обустраивают рампу въезда в подземный паркинг.
Согласно проектной декларации, объект должен быть введён в эксплуатацию не позднее II квартала 2020 года. Ещё полгода застройщик оставляет себе на чистовую отделку и выдачу ключей. По словам менеджера продаж, заселение намечено на вторую половину лета и осень 2020 года.
![ЖК "Грани": комфорт плюс без ограничений - Фото 37]()
Строительные работы ведутся одновременно в трёх секциях ![ЖК "Грани": комфорт плюс без ограничений - Фото 38]()
12-этажная средняя секция построена ![ЖК "Грани": комфорт плюс без ограничений - Фото 39]()
Дом строится по монолитной технологии, наружные стены выполнены из бетонных блоков ![ЖК "Грани": комфорт плюс без ограничений - Фото 40]()
В крайних секциях строители работают на уровне последних этажей ![ЖК "Грани": комфорт плюс без ограничений - Фото 41]()
Одновременно ведётся утепление фасада ![ЖК "Грани": комфорт плюс без ограничений - Фото 42]()
Внутри здания прокладывают инженерные системы, стояки канализации и водоснабжения ![ЖК "Грани": комфорт плюс без ограничений - Фото 43]()
Здание должно быть сдано госкомиссии не позднее II квартала 2020 года ![ЖК "Грани": комфорт плюс без ограничений - Фото 44]()
В течение полугода после сдачи дома собственники квартир должны получить ключи
Офис застройщика и условия продаж
Застройщиком ЖК "Грани" выступает группа компаний "Основа". Она была образована в 2016 году. Тогда известный на рынке бренд "Мортон" был продан инвестору и бывшие акционеры объединились для создания новой компании. Заметно изменилась стратегия работы. "Мортон" специализировался на эконом-сегменте и, так сказать, брал количеством - строил типовые многоэтажные жилые комплексы без изысков. Например, "Катюшки" и "Катюшки-2", "Южное Кучино", "Ивантеевка" и другие. ГК "Основа" строит только к классе комфорт и бизнес. На стадии возведения, помимо ЖК "Грани", в 2019 году находятся "Золотые ворота 2019", "Гоголь парк" и "RED7".
Офис продаж ЖК "Грани" находится рядом со стройплощадкой на 1-м Грайвороновском проезде. Рядом с павильоном собственной парковки нет. Если вы едете на автомобиле, его придётся оставить где-то в соседних дворах.
Офис работает ежедневно. В зоне ожидания есть мягкие диваны и кулер с водой. В центре зала можно рассмотреть макет строящегося дома. А общение с менеджером проходит в переговорной.
Сотрудник предложит вам забронировать понравившуюся квартиру. Это можно сделать бесплатно на 3 дня в случае стопроцентной оплаты или рассрочки и на 7 дней в случае ипотеки. Необычной практикой показалось то, что при бронировании за вами фиксируется только определённая квартира. А вот цену застройщик ещё имеет право изменить, пока вы будете думать. В случае покупки квартиры дополнительно необходимо оплатить сопровождение сделки в размере 50 тысяч рублей.
ГК "Основа" предоставляет рассрочку до ввода дома в эксплуатацию, то есть до апреля 2020 года. Минимальный первоначальный взнос 30%. Далее оплата производится ежемесячно равными частями, а на остаток начисляется 2%.
ЖК "Грани" аккредитован большинством известных банков. Наиболее выгодные процентные ставки предлагают "Газпромбанк" и "Промсвязьбанк" - 9,5% и 9,8%. В пределах 11% ипотеку одобряют в "Альфа-банке", ВТБ, в банке "Возрождение". Вариантов без первоначального взноса не предусмотрено.
![ЖК "Грани": комфорт плюс без ограничений - Фото 45]()
Офис продаж находится возле стройплощадки ![ЖК "Грани": комфорт плюс без ограничений - Фото 46]()
В светлом павильоне есть зона ожидания ![ЖК "Грани": комфорт плюс без ограничений - Фото 47]()
Здесь же установлен макет будущего комплекса ![ЖК "Грани": комфорт плюс без ограничений - Фото 48]()
Общение с менеджером проходит в отдельных переговорных
- 3/5транспорт
- 2/5экология
- 3/5инфраструктура
- 3/5цена/качество
















































Добавить отзыв