Французская Нормандия на берегу Ла-Манша известна сыром Камамбер и яблочными плантациями. Московская "Нормандия" на берегу реки Яузы примечательна за счет авторской архитектуры и закрытой охраняемой территории. У застройщика широкий выбор предложений: апартаменты и квартиры, свободная планировка или с отделкой, панорамное остекление. За подробностями отправляемся в "Медведково".
К пункту назначения
Из центра Москвы в Лосиноостровский район ведёт проспект Мира и Енисейская улица. МКАД находится в 1,5 км от комплекса, к кольцевой ведёт Осташковская улица. С точки зрения пробок, самым проблемным местом является перекрёсток Енисейской и Широкой. Здесь организовано круговое движение, при въезде стоят светофоры. В дневное время, с какой бы стороны ни подъезжал к этому месту, непременно уткнёшься в затор. Из-за толкучки и тесного перестроения на кругу часто бывают аварии.
Мне было удобнее ехать на метро. Ближайшая станция "Медведково" в 2 км от ЖК "Нормандия". Пешком по Широкой улице можно пройти до реки Яузы, а потом свернуть на Тайнинскую. Так я и сделала. Дорога заняла 20 минут. Можно четыре остановки проехать на 774 автобусе.
В районе станции метро "Медведково" хорошо развита сеть общественного транспорта. Автобусы и троллейбусы отсюда идут в соседнее Бибирево и Алтуфьево, в Бескудниково, к ВДНХ и Рижскому вокзалу, в Мытищи и к Пироговскому водохранилищу. Платформа "Лось" Ярославского направления находится от комплекса на расстоянии 2,5 км. Электричка до трёх вокзалов идёт 22 минуты.
![ЖК "Нормандия": перевес в сторону апартаментов - Фото 1]()
Метро "Медведково" находится в 2 км от ЖК "Нормандия" ![ЖК "Нормандия": перевес в сторону апартаментов - Фото 2]()
"Медведково" - крупный пересадочный узел, откуда общественный транспорт отправляется в разных направлениях ![ЖК "Нормандия": перевес в сторону апартаментов - Фото 3]()
774 автобус идёт к ЖК "Нормандия" ![ЖК "Нормандия": перевес в сторону апартаментов - Фото 4]()
На нём же можно доехать от дома до платформы "Лось" ![ЖК "Нормандия": перевес в сторону апартаментов - Фото 5]()
До Ярославского вокзала электропоезд идёт 22 минуты
Главное о проекте
Ранее на 4,5 гектарах располагались ангары авторемонтного завода Минобороны №96. Старые постройки снесли несколько лет назад, освободив место под строительство комплекса класса "комфорт плюс".
В проект входит пять монолитных корпусов. Три здания многосекционные 8-24-этажные. Ещё в двух башнях по 22 этажа.
Хоть "Нормандия" и называется жилым комплексом, квартир в продаже немного. Из двух тысяч лотов, две трети - апартаменты. Данный тип площади относится к коммерческой недвижимости. Владение им влечет за собой ограничения юридических действий и повышенную налоговую ставку.
В проектной декларации с изменениями от 2019 года заявлено, что в комплексе 787 квартир, большинство из которых находится в 3 корпусе. Апартаментов в первой очереди 1061. Вторая очередь предполагает продажу только коммерческой недвижимости. Здесь будет продано ещё 720 апартаментов.
Под территорией 3 корпуса находится автостоянка. На официальном сайте до сих пор есть информация, что паркинг рассчитан на 449 машиномест. Но проектная декларация последней редакции говорит об их увеличении до 673. Во второй очереди запланировано ещё 182 места. Эти цифры дают понять, что местом для стоянки под землей обеспечены не все жители "Нормандии". В документах упоминается гостевая стоянка вдоль подъездных дорог, рассчитанная на 61 автомобиль.
Территория будет огорожена, вход и въезд по магнитным пропускам. Первый этаж займёт малый бизнес - магазины и точки бытовых услуг. Во дворе организуют детские и спортивные площадки, зоны отдыха с беседками и элементами ландшафтного дизайна.
И на территории, и в подъездах видеонаблюдение. Входные группы сделают в формате лобби - с зоной ожидания, стойкой ресепшен. Кладовые проектом не предусмотрены, а вот колясочные будут на первом этаже. Застройщик установит скоростные лифты Otis.
В 4 корпусе появится коммерческий детский сад на 125 мест. Учреждение занимает три этажа в трёх секциях дома. На форуме дольщики обсуждают строительство начальной школы на 200 учеников. Но менеджер в офисе о школе никакой информации не дал. Учитывая процент апартаментов в комплексе, которые по закону не требуют обеспечения социальной инфраструктурой, информация о строительстве школы выглядит сомнительно.
![ЖК "Нормандия": перевес в сторону апартаментов - Фото 6]()
В Лосиноостровском районе строится комплекс из 5 корпусов. Иллюстрация застройщика ![ЖК "Нормандия": перевес в сторону апартаментов - Фото 7]()
Предусмотрена охраняемая территория, подземный паркинг, видеонаблюдение. Иллюстрация застройщика ![ЖК "Нормандия": перевес в сторону апартаментов - Фото 8]()
Две трети комплекса занимают апартаменты. Иллюстрация застройщика ![ЖК "Нормандия": перевес в сторону апартаментов - Фото 9]()
Во дворе детские и спортивные площадки, зоны отдыха. Иллюстрация застройщика ![ЖК "Нормандия": перевес в сторону апартаментов - Фото 10]()
При входе в подъезд стойка ресепшен, зона ожидания, колясочные. Иллюстрация застройщика
Визит на стройку в феврале 2019
В феврале в "Нормандии" ведётся строительство трёх корпусов: 3, 4 и 5. Это первая очередь проекта, которая должна быть сдана в I квартале 2020 года. 1 и 2 корпуса построят к 2022 году, пока работа по ним не ведётся.
Заметно выделяется на стройплощадке корпус 3. Стены здания уже покрыты утеплителем ярко-жёлтого цвета. Семисекционный дом построен в полную высоту. Рабочие приступили к установке металлических направляющих системы вентилируемого фасада. В будущем стены закроют панели из керамогранита. Внешний вид комплекса разрабатывало архитектурное бюро SPEECH.
В 4 корпусе пять секций. Над ним пока работают башенные краны. Возведение монолитного каркаса ведётся на уровне 13 этажа. Внизу рабочие уже закладывают внешние стены бетонными блоками.
Ниже всех пока корпус 5, там построено восемь из двадцати двух этажей. Но на строительство данного дома уйдёт мало времени, это одноподъездная башня.
![ЖК "Нормандия": перевес в сторону апартаментов - Фото 11]()
В феврале 2019 года строятся 3, 4 5 корпуса ![ЖК "Нормандия": перевес в сторону апартаментов - Фото 12]()
3 корпус уже обшит утеплителем ![ЖК "Нормандия": перевес в сторону апартаментов - Фото 13]()
Частично установлены направляющие для системы вентилируемого фасада ![ЖК "Нормандия": перевес в сторону апартаментов - Фото 14]()
Образец будущей стены есть возле офиса продаж, для облицовки фасада используются керамогранитные панели ![ЖК "Нормандия": перевес в сторону апартаментов - Фото 15]()
4 корпус находится на уровне строительства 13 этажа ![ЖК "Нормандия": перевес в сторону апартаментов - Фото 16]()
Ведется устройство подземного паркинга. Фото застройщика
Планировки и цены
Высота потолка в квартирах 2,78 м. Маленьких студий в ЖК "Нормандия" не представлено даже в формате апартаментов. Площадь однокомнатных начинается от 38 кв. м. Самый бюджетный вариант обойдётся в 7 650 тыс. рублей. Квартиры с отделкой есть только в третьей секции 4 корпуса, их планировки и метраж одинаковые. Площадь 44,61 кв. м, а цена от 8 533 тыс. до 8 789 тыс. рублей в зависимости от этажа.
Апартаменты площадью 38 кв. м обойдутся в 4 500 тыс. рублей за помещение "в бетоне", и в 5 200 тыс. рублей с ремонтом от застройщика. Планировки однокомнатных квартир и апартаментов особо не отличаются. Санузел везде совмещённый. Кое-где есть прихожие с местом под гардеробную. В каждой из квартир будет лоджия, а вот апартаменты встречаются и без неё.
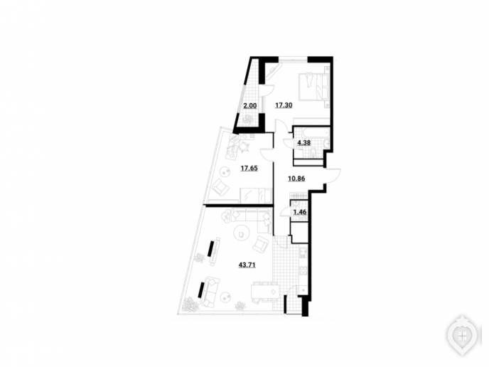
Стоимость двухкомнатных квартир в "Нормандии" от 9 до 15 млн рублей. В продаже есть пять вариантов планировок площадью от 52 до 97 кв. м. Двушек с отделкой нет, а двухкомнатный апартамент с ремонтом обойдётся как минимум в 7 800 тыс. рублей за 62 кв. м. На фасаде можно увидеть витражные выступы, размещённые в хаотичном порядке. Это жилье с панорамным остеклением. Подобная двухкомнатная квартира площадью 97 кв. м обойдется в 15 150 тыс. рублей.
Трёхкомнатные квартиры с отделкой есть только в 5 корпусе-башне. Здесь представлены угловые планировки площадью 84,75 кв. м с окнами на три стороны света. В каждой по два санузла, размеры комнат и кухни одинаковые - около 15 квадратов. Цена этих квартир от 13 919 тыс. до 15 255 тыс. рублей.
Вариантов трешек без отделки побольше: линейные, с панорамным остеклением, с пятиугольной комнатой. Метраж доходит до 96 кв. м, а цена до 15 млн.
С отделкой продаются трёхкомнатные апартаменты площадью 68 кв. м во 2 корпусе. Стоимость лота от 9 150 до 9 850 тыс. рублей. Помещения без ремонта предложены в 4 корпусе, и площадь их больше. Апартамент 89 кв. м стоит от 9 900 тыс. рублей.
![ЖК "Нормандия": перевес в сторону апартаментов - Фото 17]()
Стоимость однокомнатных квартир площадью 38 кв. м начинается от 6 900 тыс. рублей ![ЖК "Нормандия": перевес в сторону апартаментов - Фото 18]()
Это планировка однокомнатной квартиры с отделкой. Площадь 44,61 кв. м, цена от 8 533 тыс. рублей ![ЖК "Нормандия": перевес в сторону апартаментов - Фото 19]()
В апартаментах редко бывает лоджия. Такой вариант площадью 38 кв. м с отделкой обойдётся в 5 200 тыс. рублей ![ЖК "Нормандия": перевес в сторону апартаментов - Фото 20]()
Двухкомнатная квартира линейной планировки продаётся за 9 100 тыс. рублей без отделки. Метраж 54,4 кв. м ![ЖК "Нормандия": перевес в сторону апартаментов - Фото 21]()
А это вариант двухкомнатной квартиры с панорамным остеклением. Продаётся за 15 150 тыс. рублей без отделки, метраж 97 кв. м ![ЖК "Нормандия": перевес в сторону апартаментов - Фото 22]()
С панорамным остеклением продаются и апартаменты. Площадь 84,5 кв. м стоит 11 500 тыс. рублей с чистовой отделкой ![ЖК "Нормандия": перевес в сторону апартаментов - Фото 23]()
Один из самых недорогих двухкомнатных апартаментов стоит 6 950 тыс. рублей без отделки, метраж 61,6 кв. м ![ЖК "Нормандия": перевес в сторону апартаментов - Фото 24]()
Одна из наиболее доступных трёхкомнатных квартир - 11 750 тыс. рублей, площадь 73,2 кв. м ![ЖК "Нормандия": перевес в сторону апартаментов - Фото 25]()
Вариант с пятиугольной комнатой стоит 12 430 тыс. рублей, метраж 80,8 кв. м ![ЖК "Нормандия": перевес в сторону апартаментов - Фото 26]()
Квартира с окнами на проивоположные стороны стоит на 400 тыс. дороже при таком же метраже ![ЖК "Нормандия": перевес в сторону апартаментов - Фото 27]()
Вариант трёхкомнатной квартиры с отделкой только такой: площадь 84,75 кв. м, цена от 13 919 тыс. рублей ![ЖК "Нормандия": перевес в сторону апартаментов - Фото 28]()
В статусе апартаментов похожая планировка стоит 11 600 тыс. рублей без отделки ![ЖК "Нормандия": перевес в сторону апартаментов - Фото 29]()
Трёхкомнатных апартаментов с отделкой больше 70 кв. м в комплексе мало. Такая при площади 67,45 кв. м стоит 9 млн рублей ![ЖК "Нормандия": перевес в сторону апартаментов - Фото 30]()
Большая площадь будет только в варианте с панорамным остеклением. Такие апартаменты продаются за 12 млн с отделкой, метраж 84 кв. м
Два стиля отделки
Жилье в "Нормандии" продается с отделкой и в свободной планировке, где межкомнатные стены обозначены одним рядом кирпичей. Лоты с готовым ремонтом расположены посекционно:
- 1 корпус, 2, 3 и 4 секции - апартаменты;
- 2 корпус, 1 секция - апартаменты;
- 4 корпус, 3 секция - квартиры, 5 секция - апартаменты;
- 5 корпус, 1 секция - квартиры.
На выбор два стиля отделки: классический и современный. Разница в них настолько невелика, что сводится к разным моделям межкомнатных дверей, хотя и они везде светлые. Тёмные тона не используются.
Стены оклеены флизелиновыми обоями и окрашены бежевой краской. Напольное покрытие - ламинат в комнатах и плитка на кухне и в санузлах - также выдержаны в естественных светлых оттенках. Потолки белые, окрашены белой краской. Только в ванной делают натяжные и там же монтируют точечные светильники. Санузлы сдаются под ключ. По квартире разводят электричество, устанавливают розетки и делают слаботочные выводы под антенну, телефон и интернет.
![ЖК "Нормандия": перевес в сторону апартаментов - Фото 31]()
Планировка в шоу-руме не соответствует реальной квартире. Отделка здесь смешанная: некоторые из помещений выполнены в современном стиле, другие в классическом ![ЖК "Нормандия": перевес в сторону апартаментов - Фото 32]()
Но оба стиля предполагают использование материалов светлой цветовой гаммы ![ЖК "Нормандия": перевес в сторону апартаментов - Фото 33]()
Флизелиновые обои окрашены бежевой краской (классический стиль) ![ЖК "Нормандия": перевес в сторону апартаментов - Фото 34]()
Ламинат цвета "Дуб горный светлый" используется в современном стиле ![ЖК "Нормандия": перевес в сторону апартаментов - Фото 35]()
На кухне плитка одинаковая в обоих стилях: Estima из коллекции Jazz размером 400 на 400 мм ![ЖК "Нормандия": перевес в сторону апартаментов - Фото 36]()
Застройщик устанавливает межкомнатные двери фабрики "Браво" из коллекции "Порта" с покрытием текстурной плёнкой - экошпоном ![ЖК "Нормандия": перевес в сторону апартаментов - Фото 37]()
Так выглядит санузел в классическом варианте отделки ![ЖК "Нормандия": перевес в сторону апартаментов - Фото 38]()
Устанавливается сантехника фирмы Santek или "Лига" ![ЖК "Нормандия": перевес в сторону апартаментов - Фото 39]()
Смесители немецкого бренда Grohe ![ЖК "Нормандия": перевес в сторону апартаментов - Фото 40]()
В обоих стилях отделки душевой гарнитур Grohe Tempresta
Окружение и инфраструктура
Вопреки историческому названию Лосиноостровский район Москвы не граничит с национальным парком "Лосиный остров". Заповедник находится восточнее. Но в радиусе километра от ЖК "Нормандия" несколько скверов и парков: Олонецкий, Бабушкинский, Таёжный, Джамгаровский. В последнем разбит пруд.
Зелёные оттенки на карте омрачает серое слепое пятно, которое с юга и запада как раз граничит с территорией новостройки. Это многофункциональная общественная зона №8. Вредных производств на этом участке нет. В основном площади занимают небольшие частные компании, которые работают в сфере транспорта и ремонта техники. Ближе всех к промзоне расположены корпуса 1 и 3. Из окон будут видны старые гаражи и груды металлолома.
Недостатка торговой инфраструктуры в районе нет. Через дорогу от комплекса расположены супермаркеты "Билла" и "Пятёрочка", магазин "Мясновъ". Возле метро есть "Перекрёсток", с десяток аптек и банков, салоны красоты, кинотеатр "Ладога", торгово-развлекательный центр "Фортуна".
Детские сады и школы находятся в каждом дворе. На ближайшие из них выходят окна 4 корпуса. В округе есть музыкальная школа, коммерческий детский сад "Дискавери", развивающий центр "Хорошие дети". В километре ФОК "Яуза" с бассейном - разовое посещение стоит 260 рублей.
![ЖК "Нормандия": перевес в сторону апартаментов - Фото 41]()
ЖК "Нормандия" находится в окружении парков ![ЖК "Нормандия": перевес в сторону апартаментов - Фото 42]()
В ближайшем сквере есть детские и спортивные площадки ![ЖК "Нормандия": перевес в сторону апартаментов - Фото 43]()
Комплекс строится в развитом районе с давно сложившейся инфраструктурой ![ЖК "Нормандия": перевес в сторону апартаментов - Фото 44]()
Рядом супермаркеты ![ЖК "Нормандия": перевес в сторону апартаментов - Фото 45]()
Есть несколько аптек и банков ![ЖК "Нормандия": перевес в сторону апартаментов - Фото 46]()
Почтовое отделение и Сбербанк в 100 м от стройплощадки ![ЖК "Нормандия": перевес в сторону апартаментов - Фото 47]()
Здесь же находится оздоровительный клуб "Гранат" с залами для аэробики, саунами, солярием, тренажёрным залом ![ЖК "Нормандия": перевес в сторону апартаментов - Фото 48]()
Городская поликлиника №218 расположена на 1-ой Напрудной улице ![ЖК "Нормандия": перевес в сторону апартаментов - Фото 49]()
В соседнем здании детская поликлиника ![ЖК "Нормандия": перевес в сторону апартаментов - Фото 50]()
На Магаданской улице есть стоматологическая поликлиника ![ЖК "Нормандия": перевес в сторону апартаментов - Фото 51]()
В Лосиноостровском районе находится клиника спортивной медицины - одно из ведущих учреждений своей отрасли в стране ![ЖК "Нормандия": перевес в сторону апартаментов - Фото 52]()
Вдоль Мезенской улицы расположена библиотека ![ЖК "Нормандия": перевес в сторону апартаментов - Фото 53]()
Один из ближайших детских садов - дошкольное подразделение школы №1955 ![ЖК "Нормандия": перевес в сторону апартаментов - Фото 54]()
А это подразделение основного и среднего образования, школа находится в 10 минутах ходьбы ![ЖК "Нормандия": перевес в сторону апартаментов - Фото 55]()
Ещё одно подразделение школы №1955 на 2-ой Напрудной улице
Застройщик и условия продаж
В проектной декларации ЖК "Нормандия" застройщиком названо ООО "ЛС-Риэлти". 100% акций компании принадлежит девелоперу "Эталон". Это имя связано с ещё более крупным брендом ГК "Эталон-ЛенСпецСМУ", который является масштабным строительным холдингом России.
ЖК "Нормандия" остался последним строящимся комплексом "Эталона", до которого добрался тайный покупатель. "Изумрудные холмы", "Летний сад" и "Серебряный фонтан" уже были проверены ранее. Проекты "Эталон-сити" и "Золотая звезда" считаются завершёнными, там продаётся жильё в готовых корпусах.
Как правило, объекты "Эталона" сдаются в срок. Бывают исключения, связанные с техническими сложностями или недобросовестными подрядчиками. В Красногорске задержки ввода корпусов в эксплуатацию доходили до полугода.
Офис продаж "Нормандии" находится в одноэтажном павильоне на Тайнинской улице. Помещение просторное, менеджеров много, а клиентов в будний день - мало. Сотрудник представил комплекс, показал макет, рассказал о ситуации с паркингом и назвал стоимость машиноместа - от 1 200 тыс. рублей. После того как мы выбрали наиболее подходящие варианты, обсудили условия оформления сделки.
Выяснилось, что регистрацию договора долевого участия застройщик предоставляет бесплатно. Меня заинтересовала беспроцентная рассрочка, по условиям которой я должна оплатить 30% от стоимости квартиры, а оставшуюся сумму внести до конца 2019 года. Однако менеджер назвал такой вариант невыгодным и посоветовал взять ипотеку. Дело в том, что при рассрочке теряется скидка 10%, которую дают при единовременной выплате или покупке квартиры в кредит.
Самую низкую ставку по ипотеке предлагает Сбербанк - 8,5%. В пределах 10% можно рассчитывать на кредит в банке "Открытие", "Россельхозбанке" или в "Возрождении". Возможности оформить заём без первоначального взноса ни один банк не предоставляет, нужно как минимум 10%.
![ЖК "Нормандия": перевес в сторону апартаментов - Фото 56]()
Офис продаж расположен возле стройплощадки со стороны Тайнинской улицы ![ЖК "Нормандия": перевес в сторону апартаментов - Фото 57]()
Менеджеры работают ежедневно ![ЖК "Нормандия": перевес в сторону апартаментов - Фото 58]()
Внутри помещение в формате open space ![ЖК "Нормандия": перевес в сторону апартаментов - Фото 59]()
Есть зоны ожидания ![ЖК "Нормандия": перевес в сторону апартаментов - Фото 60]()
В центре зала установлен макет комплекса с подсветкой
- 3/5транспорт
- 3/5экология
- 3/5инфраструктура
- 3/5цена/качество




























































Добавить отзыв