Район Марьино — классическое предмкадье с развитой инфраструктурой, парками и пробками в часы пик. Строить дома здесь начали в 80-х годах. Но тогда участок, на котором возводится ЖК "Домашний", не тронули. От ранней застройки его спас расположенный тут складской комплекс. К освоению территории приступили лишь в конце 2015 года. Поэтому на фоне тридцатилетних панельных многоэтажек "Домашний" с нетиповой для Марьино заморской архитектурой заметно выделится. Отправляемся смотреть все вживую.
Описание проекта
На 27 гектарах запланировано строительство 8 домов. Архитектурой занимались голландцы. Задумка в том, что секции могут стоять отдельно, но всё равно являются одним домом, образуют единый блок и замкнутый двор. При этом солнечного света во дворе будет много: высота секций разная – от 6 до 32 этажей.
Двор разделен на две зоны. В первой – шумной и активной – расположатся детские площадки и спортивные турники. В другой части среди деревьев и кустарников установят беседки. Во дворах будет вестись круглосуточное видеонаблюдение, выделят место под велопарковку.
Войти в подъезд можно с улицы и со двора. Входные группы обещают просторные – высота потолков достигает 7 м. Дизайнеры используют фактурные материалы и многоуровневую подсветку. Порогов при входе в парадную не будет, в лобби оборудуют стойку для консьержа и место для ожидания. Детскую коляску можно оставить в специально отведённом для этого помещении.
Помимо домов на территории построят два детских сада на 190 мест каждый и школу на 875 учеников. Учреждения муниципальные. В офисе продаж обещают достаточное количество парковочных карманов, но сколько их будет не уточняют. Будет построен и многоэтажный паркинг, но количество машиномест в нём пока также неизвестно.
Сквозь микрорайон к набережной Москвы-реки пройдет прогулочная аллея. Прибрежную зону застройщик благоустроит вплоть до начала парка 850-летия Москвы, а в нём реконструкция уже проводилась — в 2017 году.
![ЖК "Домашний": спальный район классический - Фото 1]()
Старые постройки и ангары, которые ещё не успели снести, напоминают о том, что ЖК "Домашний" строится на территории бывшей промзоны ![ЖК "Домашний": спальный район классический - Фото 2]()
Над архитектурой комплекса работало агентство MLA+ (Нидерланды) ![ЖК "Домашний": спальный район классический - Фото 3]()
Здания имеют переменную высотность - от 6 до 32 этажей ![ЖК "Домашний": спальный район классический - Фото 4]()
ЖК "Домашний" строится на левом берегу Москвы-реки в районе Марьино. Иллюстрация застройщика ![ЖК "Домашний": спальный район классический - Фото 5]()
До 2021 года здесь будет построено 8 корпусов. Иллюстрация застройщика ![ЖК "Домашний": спальный район классический - Фото 6]()
По центру комплекса пройдёт прогулочная аллея. Иллюстрация застройщика ![ЖК "Домашний": спальный район классический - Фото 7]()
Дворы закроют от машин, установят видеонаблюдение. Здесь расположатся детские и спортивные площадки и зоны отдыха. Иллюстрация застройщика ![ЖК "Домашний": спальный район классический - Фото 8]()
Территорию планируется обильно озеленить. Иллюстрация застройщика ![ЖК "Домашний": спальный район классический - Фото 9]()
Высота потолков в лобби доходит до 7 м. Иллюстрация застройщика ![ЖК "Домашний": спальный район классический - Фото 10]()
В отделке входных групп применяются разнофактурные материалы и многоуровневое освещение. Иллюстрация застройщика
Строительство и сроки
Сроки III очереди и 3 корпуса II очереди пока не названы. Проектные декларации по этим домам не представлены на сайте застройщика. Но известно, что микрорайон завершат к 2021 году.
В I очередь входит два корпуса — 1 и 2. Дома в высокой степени готовности. К концу января 2018 года на некоторых секциях уже появился вентилируемый фасад, внутри провели воду, канализацию и электричество, установили счётчики водоснабжения. В подъездах штукатурят стены и кладут напольную плитку. Уже смонтированы лифты. Во дворе строители укладывают брусчатку и бордюрный камень, готовят площадки под озеленение. Сдать два корпуса планируют с разрывом в один квартал — до конца июня 2018 года.
Первые корпуса II очереди введут в эксплуатацию в III и IV кварталах 2019 года. На строительство одного дома уходит около 2 лет, поэтому скелеты зданий уже видны. В 1 корпусе монолитный каркас вылит на уровне 3-13 этажа. При этом в малоэтажной 2 секции приступили к кровельным работам. Большинство секций 2 корпуса в январе 2018 — это еще фундамент или каркас на уровне −1 и 1 этажей.
I очередь вводят в эксплуатацию без инфраструктуры. К строительству первого детского сада приступят осенью 2018 года, а сдавать будут вместе с корпусами II очереди. Школа и второй детсад начнут работать не ранее заселения III очереди. Строительство многоуровневого паркинга планируется на осень 2019.
![ЖК "Домашний": спальный район классический - Фото 11]()
Так стройплощадка выглядит в январе 2018 года ![ЖК "Домашний": спальный район классический - Фото 12]()
1 корпус I очереди - ближайший к заселению, его сдадут до конца I квартала 2018 года ![ЖК "Домашний": спальный район классический - Фото 13]()
Возле корпуса идёт благоустройство территории. Фото застройщика ![ЖК "Домашний": спальный район классический - Фото 14]()
Ведутся работы внутри здания и на подземной парковке. Фото застройщика ![ЖК "Домашний": спальный район классический - Фото 15]()
2 корпус I очереди должны ввести в эксплуатацию во II квартале 2018 года. Фото застройщика ![ЖК "Домашний": спальный район классический - Фото 16]()
Здесь подходят к завершению фасадные работы ![ЖК "Домашний": спальный район классический - Фото 17]()
II очередь будут сдавать в середине 2019 года ![ЖК "Домашний": спальный район классический - Фото 18]()
1 корпус II очереди находится на стадии возведения средних этажей ![ЖК "Домашний": спальный район классический - Фото 19]()
Во 2 корпусе строители работают на уровне -1 и 1 этажа
Что покупают?
В "Домашнем" представлены квартиры от студий до трёхкомнатных с 17-метровой столовой-гостиной. Минимальная стоимость жилья составляет 2 300 тыс., максимальная – 13 900 тыс. рублей.
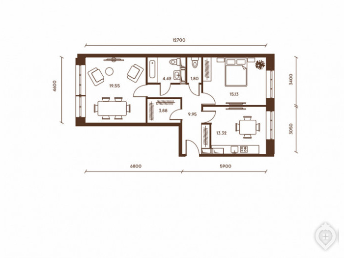
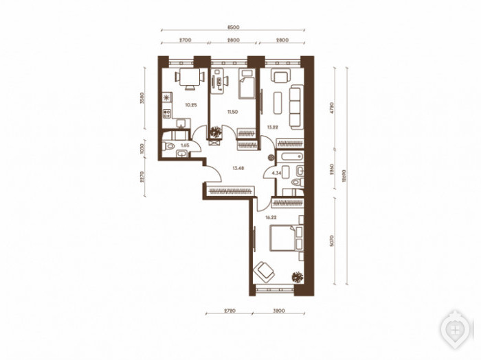
Планировок много, обо всех не расскажешь. Из увиденных — меня заинтересовали двушки. Их в комплексе не менее 20 вариантов. Есть распашные, линейные и угловые с большой площадью остекления. К примеру, в угловой 44,6-метровой — шесть окон. С размещением шкафов-купе будут проблемы, зато квартира светлая. На 25 этаже в корпусах I очереди такая же стоит 6 800 тыс. рублей. Подобная планировка может быть дополнена эркером в одной из комнат. Самая крупная по метражу двушка имеет площадь 68,5 кв. м, в ней два санузла и кухня 13,3 кв. м.
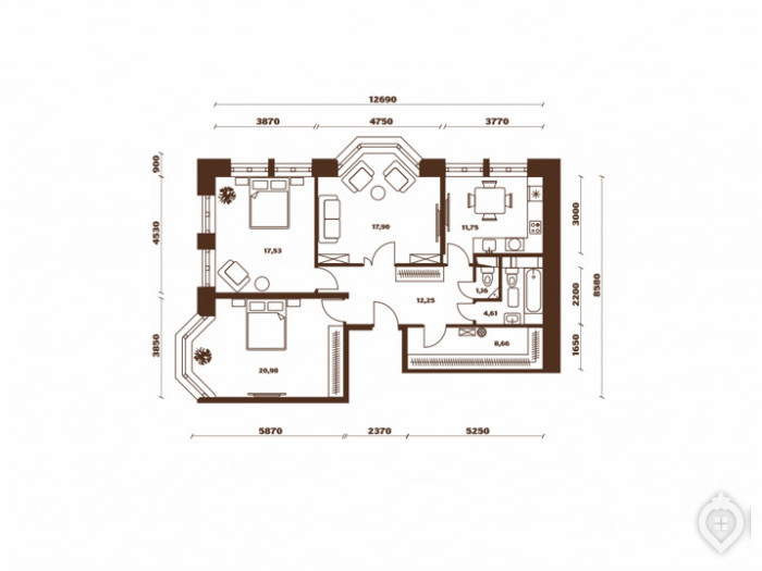
Интересно выглядят и трёшки. Помимо привычных распашонок есть угловой вариант с одним или двумя эркерами. Площадь такой квартиры будет 93,8 кв. м, а стоимость без отделки 10 млн рублей.
Учитывая, что часть окон выходят на Москву-реку, в комплексе можно найти вариант с видовыми характеристиками, за которые кто-то и не прочь будет доплатить.
Ни в одной квартире нет ни балконов, ни лоджий. Жильцы часто используют их для хранения шин, спортивного инвентаря и в других хозяйственных целях. Застройщик предлагает альтернативу – кладовые помещения на -1 этаже. В продажу их выводят ближе к заселению очереди. Площадь кладовок варьируется от 2,5 до 6 кв. м, а стоимость от 300 до 600 тыс. рублей.
В продажу недавно вывели и машиноместа в I очереди по цене 1300-1400 тыс. рублей. Площадь в подземном паркинге продают только тем, кто оформил сделку на квартиру в доме. Жителям других корпусов парковка доступна не будет. И ладно бы, если б у них была своя. Но нет — во II очереди машиномест не предусмотрено. Учитывая, что паркинг не так уж и велик, вероятно, его раскупят жильцы I очереди. Ещё и не хватить может на всех желающих. В первом корпусе 894 квартиры, во втором — 979, а машиномест в каждом по 90.
Все фотографии в галерее взяты с сайта застройщика:
![ЖК "Домашний": спальный район классический - Фото 20]()
Большинство квартир в ЖК "Домашний" сдаются без отделки ![ЖК "Домашний": спальный район классический - Фото 21]()
Стены возведены только в санузлах ![ЖК "Домашний": спальный район классический - Фото 22]()
Так выглядит угловая двухкомнатная квартира площадью 50 кв. м ![ЖК "Домашний": спальный район классический - Фото 23]()
Высота потолков - 2,80 м ![ЖК "Домашний": спальный район классический - Фото 24]()
В квартирах установлены счётчики на воду ![ЖК "Домашний": спальный район классический - Фото 25]()
Выполнена горизонтальная разводка отопления ![ЖК "Домашний": спальный район классический - Фото 26]()
Двухметровые окна на высоте 62 см от пола, поэтому везде есть защитные ограждения или французские балконы ![ЖК "Домашний": спальный район классический - Фото 27]()
Эркеры сразу заметны на фасаде. Такие квартиры будут хорошо освещены
Почём продают?
Стоимость квартир зависит от многих факторов. Например, от этажа – чем выше, тем дороже. Этажность домов в комплексе варьируется от 6 до 32. Зависит цена и от очереди: разница в I и II разительная, ведь разрыв в сроках заселения составляет как минимум год. Некоторые секции представлены с отделкой, о которой мы поговорим чуть позже.
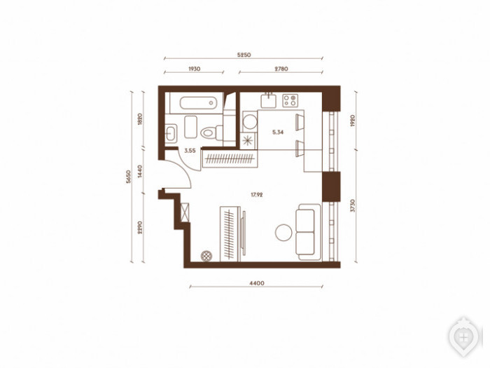
В корпусах I очереди метраж студий от 26 до 31,4 кв. м, стоимость такого жилья от 4 200 до 4 700 тыс. рублей. Однокомнатные квартиры стоят дороже. Площадь самой маленькой составляет 36,25 кв. м. Такую можно купить за 5 200 тыс. рублей. Метраж самой большой однушки 44,55 кв. м, а цена 6 670 тыс. рублей.
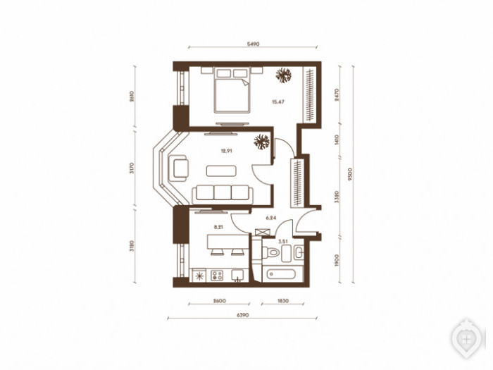
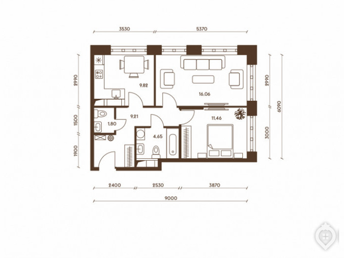
Разброс в площади двухкомнатных квартир доходит до 25 кв. м, а разброс в цене — до 2,5 млн. Метраж двушек в ЖК "Домашний" составляет от 41,4 до 68,05 кв. м. Стоимость их начинается от 6 650 тыс. и доходит до 9 300 тыс. рублей.
Подобрать метраж трёхкомнатной квартиры можно под разный бюджет. Цена начинается с 8 400 тыс. рублей за 58 кв. м и доходит до 13 900 за жилье площадью 93,8 кв. м.
В галерее представлены квартиры I очереди:
![ЖК "Домашний": спальный район классический - Фото 28]()
Самая бюджетная студия площадью 26 кв. м продаётся за 4 200 тыс. рублей ![ЖК "Домашний": спальный район классический - Фото 29]()
Самая крупная студия, которую здесь можно найти, занимает площадь 31 кв. м и стоит 4 700 тыс. рублей ![ЖК "Домашний": спальный район классический - Фото 30]()
6 000 тыс. рублей придется отдать за жильё площадью 40 кв. м ![ЖК "Домашний": спальный район классический - Фото 31]()
Однушка без отделки с эркером площадью 44,5 кв. м в ближайшем к заселению 1 корпусе выставлена на продажу за 6 600 тыс. рублей ![ЖК "Домашний": спальный район классический - Фото 32]()
Как раз такую двухкомнатную квартиру площадью 50,5 кв. м мы видели на фото в предыдущей галерее. Она стоит 7 300 тыс. рублей ![ЖК "Домашний": спальный район классический - Фото 33]()
Двушка линейной планировки площадью 60 кв. м продаётся за 8 000 тыс. рублей ![ЖК "Домашний": спальный район классический - Фото 34]()
Самая крупная двухкомнатная квартира, которая есть в продаже, имеет распашную планировку и стоит 9 300 тыс. рублей. Её площадь 68 кв. м ![ЖК "Домашний": спальный район классический - Фото 35]()
Цена трёхкомнатной квартиры с 10 окнами на 25 этаже 1 корпуса 10 100 тыс. рублей. Она продается без отделки
Стоимость квартир в домах, заселение которых намечено на 2019 год, заметно ниже. Студию без отделки 26,8 кв. м можно купить за 3 400 тыс. рублей. Больших студий здесь нет. Максимальный метраж 27,1 кв. м, цена такой квартиры 3 630 тыс. рублей.
Площадь однокомнатных держится в пределах от 29,9 до 41 кв. м, а стоимость однушек составляет от 3 700 тыс. до 5 450 тыс. рублей.
Двухкомнатные квартиры второй очереди занимают площадь от 46,3 до 75,4 кв. м. На приобретение такого жилья можно рассчитывать, если сумма покупки составляет от 5 800 тыс. до 9 000 тыс. рублей.
Трёхкомнатные квартиры во II очереди стоят от 8 600 тыс. до 10 300 тыс. рублей. Площадь их варьируется в пределах от 69,8 до 94,8 кв. м.
Планировки и цены во II очереди:
![ЖК "Домашний": спальный район классический - Фото 36]()
Крупных студий нет. Квартира площадью 26-27 кв. м обойдётся в 3 500 тыс. рублей ![ЖК "Домашний": спальный район классический - Фото 37]()
Зато площадь однокомнатных квартир начинается уже от 29,9 кв. м, а их стоимость от 3 700 тыс. рублей ![ЖК "Домашний": спальный район классический - Фото 38]()
Однокомнатная квартира площадью 40,5 кв. м продаётся за 5 500 тыс. рублей ![ЖК "Домашний": спальный район классический - Фото 39]()
Есть небольшие двушки. Площадь такой 46 кв. м, а стоимость 5 800 тыс. руб. ![ЖК "Домашний": спальный район классический - Фото 40]()
Угловая двухкомнатная квартира без отделки площадью 52,5 кв. м с заселением не ранее III квартала 2019 года продаётся за 6 650 тыс. рублей ![ЖК "Домашний": спальный район классический - Фото 41]()
Трёшка распашной планировки площадью 70,1 кв. м стоит 8 400 тыс. рублей ![ЖК "Домашний": спальный район классический - Фото 42]()
Одна из самых крупных квартир с двумя эркерами имеет площадь 94,8 кв. м и расположена на 2 этаже в секции без отделки
Во II очереди жилплощадь с отделкой продаётся в 3, 4 и 6 секциях 1 корпуса и в 5 секции 2 корпуса. Стоимость квартир с ремонтом такая же, как в I очереди без отделки. Планировки похожи. Получается, цена чистовой — томительное ожидание заселения в течение года.
Секции с отделкой
Если секция сдаётся с отделкой, то в ней все квартиры будут отремонтированы. Такого, что вы въедете в чистенькую квартирку, а соседи по площадке будут бесконечно таскать стройматериалы и греметь перфоратором, не предвидится. Заказать отделку от застройщика в секции, где она не предусмотрена, невозможно.
Квартиры с отделкой в I очереди представлены только в 6 малоэтажной секции 2 корпуса. Но все они проданы. Так что на конец января мы можем рассмотреть жилье с чистовой только во II очереди с заселением не ранее лета 2019 года. На выбор желающим ввезти мебель и въехать предлагаются 3, 4 и 6 секции первого корпуса и 5 секция второго.
Отделка предложена в двух стилях. На этапе бронирования и покупки квартиры можно будет выбрать один из них. Стиль "Домашний" отличается светлыми холодными оттенками – белые межкомнатные двери, плитка "под мрамор" в санузле, серо-голубые стены. Цветовая гамма отделки в стиле "Уютный" тёплая – использованы материалы бежевых, кремовых и ореховых тонов, межкомнатные двери цвета венге.
Санузлы сдаются под ключ, в них будет установлена сантехника, акриловая ванна. На кухне сделают выводы коммуникаций под мойку, электроплиту и вытяжку, установят несколько розеток над рабочей поверхностью. Стены в квартире будут выровнены, оклеены обоями и окрашены. Потолок штукатурят и окрашивают в белый цвет. В комнатах уложат ламинат, а на кухне и в прихожей – плитку.
![ЖК "Домашний": спальный район классический - Фото 43]()
В офисе продаж расположен шоу-рум, где выполнена отделка студии и двухкомнатной квартиры в разных стилях ![ЖК "Домашний": спальный район классический - Фото 44]()
Оба стиля отделки предполагают нейтральные оттенки. Преобладают светлые тона ![ЖК "Домашний": спальный район классический - Фото 45]()
Так выглядит плитка Kerama Marazzi на кухне в отделке "Домашняя" ![ЖК "Домашний": спальный район классический - Фото 46]()
Ламинат Kronostar в отделке "Уютная" ![ЖК "Домашний": спальный район классический - Фото 47]()
Плитка укладывается в прихожей и на кухне, в комнатах кладут ламинат ![ЖК "Домашний": спальный район классический - Фото 48]()
Напольная плитка в отделке "Уютная" немного светлее, чем в "Домашней" ![ЖК "Домашний": спальный район классический - Фото 49]()
Стены оклеены обоями и окрашены ![ЖК "Домашний": спальный район классический - Фото 50]()
Потолок оштукатурен и окрашен, натяжные потолки не используются ![ЖК "Домашний": спальный район классический - Фото 51]()
В "Домашней" отделке устанавливаются белые межкомнатные двери бренда Mario Rioli с фурнитурой Bussare ![ЖК "Домашний": спальный район классический - Фото 52]()
А в "Уютном" стиле будут двери цвета венге того же производителя ![ЖК "Домашний": спальный район классический - Фото 53]()
Санузлы сдаются под ключ, устанавливается акриловая ванна ![ЖК "Домашний": спальный район классический - Фото 54]()
Такое сочетание плитки в санузлах в "Домашней" отделки ![ЖК "Домашний": спальный район классический - Фото 55]()
В "Уютной" сочетание более контрастное ![ЖК "Домашний": спальный район классический - Фото 56]()
Устанавливается сантехника Jika ![ЖК "Домашний": спальный район классический - Фото 57]()
В ванной будет хромированный полотенцесушитель ![ЖК "Домашний": спальный район классический - Фото 58]()
Расположена одна влагозащищённая розетка для электробритв и фенов - она находится на высоте 1,5 м ![ЖК "Домашний": спальный район классический - Фото 59]()
В квартирах устанавливаются стальные двери с двумя замками
Застройщик и условия продаж
Застройщиком ЖК "Домашний" в проектной декларации обозначено АО "Мосстройснаб". Учредителем застройщика является юрлицо, зарегистрированное на Кипре. Владелец 100% акций — Lafiterso Holdings Ltd, офис которого находится в Лимасоле. Девелопером же проекта выступает "Группа ПСН". Подробно о ней мы рассказывали в тайном обзоре о ЖК "SREDА".
Офис продаж "Домашнего" находится на Донецкой улице возле стройплощадки. В интерьере помещения обыграна идея дома: мягкие кресла и диваны с подушками, камин, предлагают чай и свежезаваренный кофе. Менеджеры работают в open space, но столы расставлены на расстоянии друг от друга, что позволяет поддерживать приватный разговор.
Застройщик предлагает все возможные условия покупки:
- 100%-оплата со скидкой 5%;
- ипотека;
- военная ипотека;
- рассрочка;
- trade-in.
ЖК "Домашний" аккредитован парой десятков банков, среди которых "Уралсиб", "Возрождение", "Открытие" и "Газпромбанк". Наиболее интересные условия предлагает "Промсвязьбанк". По его программе с 10% взносом ипотечная ставка составит от 9,2 до 9,4% годовых.
По программе "Промсвязьбанка" с субсидированием процентная ставка будет и того ниже – от 6,99%, но это только на первые 12 месяцев. Затем она возрастёт до 10,9%. Можно выбрать вариант, при котором первые два года ставка будет 7,99% или первые три года – 8,3%. Далее она возрастёт до 10,9%. Если первоначального взноса у вас нет, "Промсвязьбанк" даст кредит под 10,9-11,4%.
Схожие между собой условия предлагают Сбербанк и ВТБ24. В первом процентную ставку назначают от 9,4%, во втором – от 9,5%. В обоих банках первоначальный взнос составляет 15%.
По условиям рассрочки от застройщика, можно внести 30, 40, 50 или 70% стоимости жилья. Но только в последнем случае она будет беспроцентной. Сроки и проценты на остаток у каждого из корпусов индивидуальные.
![ЖК "Домашний": спальный район классический - Фото 60]()
Офис продаж находится на улице Донецкая, д. 30, стр. 11 ![ЖК "Домашний": спальный район классический - Фото 61]()
Менеджеры работают ежедневно с 9 до 21 часа ![ЖК "Домашний": спальный район классический - Фото 62]()
На ресепшен вас встретит сотрудник и проводит к менеджеру продаж, записываться заранее не обязательно ![ЖК "Домашний": спальный район классический - Фото 63]()
В интерьере офиса продаж обыграна тема домашнего уюта ![ЖК "Домашний": спальный район классический - Фото 64]()
Здесь оборудованы гостевые зоны с мягкими креслами ![ЖК "Домашний": спальный район классический - Фото 65]()
На стойке можно взять буклет и ознакомиться с деталями жилого комплекса ![ЖК "Домашний": спальный район классический - Фото 66]()
В холле установлен подсвеченный макет комплекса ![ЖК "Домашний": спальный район классический - Фото 67]()
Ребёнка можно оставить в детском уголке
Транспортная доступность
Ближайшая к комплексу станция метро "Марьино" находится в 2,5 км. Если идти пешком, дорога по Новочеркасскому бульвару займёт до получаса. Транспорта здесь много — на автобусе, троллейбусе или маршрутке можно доехать за 10-15 минут.
Примерно на том же расстоянии, что и метро, находится железнодорожная платформа "Перерва". За полчаса до неё можно дойти пешком. Второй вариант — на троллейбусе № 50 или № 74 доехать до остановки "Марьинский рынок" и там пересесть на один из четырёх автобусов в сторону станции. Дорога до Курского вокзала на электричке займёт 20 минут.
За счёт общественного транспорта доступность "Домашнего" можно оценить как удовлетворительную. Пешком до метро или станции далековато, но под окнами — конечная автобусов и троллейбусов. Да и по Донецкой улице проходит много маршрутов, так что добраться до метро не проблема. Сложнее будет жизнь заядлых автомобилистов.
Единственная артерия, которая соединяет Марьино с центром столицы — это Люблинская улица, потому что с западной стороны район отрезан путями Курской железной дороги. Проехать в Печатники на Шоссейную улицу можно, но пропускная способность этого пути меньше. Впрочем, опытный московский автовладелец вряд ли вспомнит день, когда и Люблинка последний раз была свободной от пробок за исключением ночного времени суток. Впоследствии она выходит на Волгоградский проспект, который также считается одной из наиболее загруженных магистралей столицы.
![ЖК "Домашний": спальный район классический - Фото 68]()
Ближайшая станция метро "Марьино" находится в 2,5 км или получасовой шаговой доступности от ЖК "Домашний" ![ЖК "Домашний": спальный район классический - Фото 69]()
Возле комплекса конечная автобусов и троллейбусов, поэтому с транспортом проблем нет ![ЖК "Домашний": спальный район классический - Фото 70]()
Добраться до метро можно за 10-15 минут
Экологическая обстановка
Расстояние от ЖК "Домашний" до Каширского шоссе — хоть до него и не добраться — составляет 800 м. Этот факт сказывается на чистоте воздуха. Интересующимся экологией в районе стоит знать, что с начала ХХ века до 1978 года на левом берегу Москвы-реки возле границы с деревней Марьино располагались поля фильтрации, где производилась очистка сточных вод московской канализации путём пропуска нечистот через почву.
Только в 80-х поля поэтапно засыпали и на их месте началось строительство спального микрорайона Марьино. Участок, где сейчас возводят ЖК "Домашний", до последнего времени занимали складские ангары.
В 5 км по прямой от новостройки располагается район Капотня и Московский нефтеперерабатывающий завод. По официальной статистике, вредные выбросы не превышают нормы, но эти данные расходятся с неофициальной информацией, которую с лихвой можно найти на форумах близлежащих районов. В связи с этим для жителей "Домашнего" юго-восточные ветра являются нежелательными.
Вдоль Батайского проезда протянулась набережная и парк 850-летия Москвы. Там приятно прогуляться с детьми. В зимнее время многие выходят на лыжню. Визуальный ряд портят только высоковольтные линии электропередач, которые протянулись как раз над парком вдоль всей территории.
![ЖК "Домашний": спальный район классический - Фото 71]()
В начале ХХ века Люблинские поля орошения подходили к самому берегу Москвы-реки. Эта иллюстрация была опубликована в журнале "Коммунальное хозяйство" в 1923 году ![ЖК "Домашний": спальный район классический - Фото 72]()
Сейчас здесь проходит набережная и строится ЖК "Домашний" ![ЖК "Домашний": спальный район классический - Фото 73]()
Окна на реку будут выходить у жильцов III очереди ![ЖК "Домашний": спальный район классический - Фото 74]()
На стыке Донецкой улицы и Батайского проезда расположена электроподстанция, высоковольтные линии передач от которой тянутся над парком 850-летия Москвы. ЖК "Домашний" расположен через дорогу ![ЖК "Домашний": спальный район классический - Фото 75]()
Прогулочная парковая зона расположена под проводами
Инфраструктура поблизости
Несмотря на то, что первая очередь комплекса сдаётся без инфраструктуры, проблем с детскими садами и школами нет. В 5-10 минутах пешком не менее 5 дошкольных учреждения, школа, лицей и гимназия. Поликлиники также поблизости.
По дороге от метро много супермаркетов. Ближайший к комплексу магазин "Пятёрочка" находится на противоположной стороне Донецкой улицы. После заселения первых жильцов, коммерческие помещения на первых этажах начнут занимать предприниматели. Собственная торговая инфраструктура не заставит себя долго ждать.
На улице Маршала Глаголева расположен государственный бассейн "Марьино". Возле метро сразу несколько фитнес-клубов. Здесь же работает торговый центр "Мариэль".
![ЖК "Домашний": спальный район классический - Фото 76]()
В 800 м от комплекса находится гимназия №491, где есть специализированные музыкальные, спортивные, физико-математические классы, дополнительно дети изучают французский язык ![ЖК "Домашний": спальный район классический - Фото 77]()
В шаговой доступности находится лицей им. Голованова ![ЖК "Домашний": спальный район классический - Фото 78]()
Рядом с ним на Батайском проезде находится и школа №2110 ![ЖК "Домашний": спальный район классический - Фото 79]()
В соседних от ЖК "Домашний" дворах есть несколько детских садов ![ЖК "Домашний": спальный район классический - Фото 80]()
В 350 м от дома располагается детская поликлиника ![ЖК "Домашний": спальный район классический - Фото 81]()
На улице Маршала Голованова расположен бассейн, пешком до него идти минут 15 ![ЖК "Домашний": спальный район классический - Фото 82]()
Возле станции метро "Марьино" работает торговый центр "Мариэль" ![ЖК "Домашний": спальный район классический - Фото 83]()
Возле торгового центра - рынки ![ЖК "Домашний": спальный район классический - Фото 84]()
По дороге от метро к ЖК "Домашний" можно встретить сетевые маркеты ![ЖК "Домашний": спальный район классический - Фото 85]()
Большинство из них располагаются на Новочеркасском бульваре ![ЖК "Домашний": спальный район классический - Фото 86]()
По дороге от метро можно купить корм для домашнего питомца ![ЖК "Домашний": спальный район классический - Фото 87]()
Ближайший к ЖК "Домашний" магазин "Пятёрочка" находится через дорогу
- 3/5транспорт
- 3/5экология
- 3/5инфраструктура
- 3/5цена/качество























































































Добавить отзыв