В 90-е Карачаровский лифтостроительный завод постигла участь многих российских промышленных предприятий. И хотя завод до сих пор выпускает продукцию, от части цехов и территорий пришлось отказаться. На месте снесённых зданий в 2017 году возводят жилой квартал "SREDA". Прошлое этого места просматривается в грубой кирпичной отделке фасадов и большой площади панорамного остекления. Архитекторы проекта как раз специализируются на реконструкции старых промзон. Говорят, где-то на территории есть даже заброшенное здание старого железнодорожного вокзала, который реконструируют под бизнес-центр с кафешками в стиле "лофт".
Что на генплане?
На участке площадью 19,4 га застройщик возводит 21 дом с подземным паркингом, объекты социальной и спортивной инфраструктуры. В центре комплекса предусмотрено строительство домов высотой от 5 до 9 этажей. По периметру поставят 25-этажные башни. Доминантой проекта станут три 42-этажных небоскрёба, их будут возводить в последнюю очередь. Каждая из трёх очередей будет иметь собственную огороженную территорию, запланировано видеонаблюдение.
Помимо жилых домов в ЖК "SREDA" построит:
- детский сад на 300 мест (возможно, будет частным - вопрос решается);
- школу на 825 учеников;
- физкультурно-оздоровительный комплекс;
- многоуровневый наземный и подземный паркинги, количество мест пока не уточняется.
Первые этажи в комплексе частично жилые, а частично будут отданы коммерческим предприятиям. В "Среде" откроются отделения банков, пекарни, магазины, аптеки и другой сервис, который часто нужен "под рукой". На территории разобьют парки и скверы с местами для отдыха, беговыми и велодорожками. Здесь появится и спортивная зона с футбольной, баскетбольной и волейбольной площадками. Будет скалодромом, роллердромом, площадки для мини-гольфа и выгула собак, столы для пинг-понга.
Проекты входных групп включают в себя зону ожидания с мягкими креслами и журнальными столиками. Детскую коляску и велосипеды можно будет оставлять в специальных комнатах для хранения. Помещение для консьержа предусмотрено, но нанимать работников управляющая компания будет только в том случае, если жильцы в подъезде проголосуют "за". Поскольку вся территория от шлагбаума до лестничных площадок просматривается с помощью видеокамер, считается, что консьерж будет лишним. В подъездах устанавливают пассажирские и грузопассажирские лифты OTIS, их количество зависит от высоты секции - от одного в пятиэтажках до трёх в корпусах-башнях.
![ЖК "SREDA": реинкарнация Карачаровского завода - Фото 1]()
Высота домов в квартале "SREDA" от 5 до 42 этажей. Иллюстрация застройщика ![ЖК "SREDA": реинкарнация Карачаровского завода - Фото 2]()
Малоэтажные корпуса располагаются в центре квартала. Иллюстрация застройщика ![ЖК "SREDA": реинкарнация Карачаровского завода - Фото 3]()
Территория комплекса огорожена и охраняется. Иллюстрация застройщика ![ЖК "SREDA": реинкарнация Карачаровского завода - Фото 4]()
На территории квартала будет построен детский сад на 300 мест и школа на 825 учеников. Иллюстрация застройщика ![ЖК "SREDA": реинкарнация Карачаровского завода - Фото 5]()
Выход из подъезда осуществляется на обе стороны дома. Иллюстрация застройщика ![ЖК "SREDA": реинкарнация Карачаровского завода - Фото 6]()
Высота потолка в холле более 4 м. Иллюстрация застройщика ![ЖК "SREDA": реинкарнация Карачаровского завода - Фото 7]()
Дизайн входных групп предполагает организацию комфортных зон ожидания. Иллюстрация застройщика ![ЖК "SREDA": реинкарнация Карачаровского завода - Фото 8]()
В каждом подъезде запроектирована комната для хранения детских колясок и велосипедов. Иллюстрация застройщика ![ЖК "SREDA": реинкарнация Карачаровского завода - Фото 9]()
В отделке общественных зон используются материалы нейтральной и естественной цветовой гаммы. Иллюстрация застройщика
Авторы проекта и его исполнители
Инициатором строительства жилого комплекса "SREDA" выступила девелоперская компания "Группа ПСН". Аббревиатура расшифровывается как "ПромСвязьНедвижимость" и основание компании уходит корнями в холдинг "ПромСвязьКапитал", владеющий пакетами акций "ПромСвязьБанка" и банка "Возрождение".
"Группа ПСН" существует 17 лет и ранее специализировалась на строительстве коммерческой недвижимости в Москве и Санкт-Петербурге. В последние годы в сферу интересов девелопера всё больше входит строительство жилых объектов. Причём компания не участвовала в проектах эконом-класса, предпочитая более дорогой формат. Так на деньги "Группы ПСН" строились элитные кварталы "I'm на Садовом", комплекс элитных особняков "Полянка/ 44". Осенью 2017 года начались продажи в комплексе апартаментов бизнес-класса "Правда" в Беговом районе столицы и клубном доме "I'm Тверская". К проектам массовой застройки "Группы ПСН", которым присвоен класс комфорт, относятся микрорайон "Домашний", ЖК "Гринада" и "SREDA".
Застройщиком в проектной декларации ЖК "SREDA" значится некий "Выставочный центр Стройэкспо". Компания была образована ещё в 1998 году, но до последнего времени никакой активности не проявляла. Учредителем и владельцем 100% акций является "Хафроуд инвестментс лимитэд", зарегистрированная на Кипре. Открытых и очевидных юридических и финансовых связей застройщик с девелопером не имеют, и в договоре долевого участия на покупку квартиры в ЖК "SREDA" имя "Группы ПСН" не упоминается. А значит, и ответственности в спорных ситуациях "ПромСвязьНедвижимость" нести не будет.
Ситуации, когда застройкой занимается отдельное от девелопера никому неизвестное юридическое лицо, на российском рынке встречаются нередко. Но если объект продаётся под брендом "Группы ПСН", то она и отвечает за него своей репутацией. История у компании хорошая. О скандалах, недостроях и неудовлетворительном качестве строительства реализованных объектов речи не идёт.
Первый этап строительства вели генподрядчики ООО "Фенсма" и ООО "ТРЕСТ МОССТРОЙ-17". Но в июле 2016 года "Группа ПСН" объявила о смене подрядной организации. Тогда к управлению строительством приступила турецкая компания "Ант Япы". По версии американского журнала Engineering News Record, в 2015 году она вошла в ТОП-100 крупнейших мировых подрядчиков. В Москве "Ант Япы" строила жилые комплексы "Аэробус", "Сады Пекина", "Имперский дом", торговые центры "Калейдоскоп", "Смоленский пассаж", некоторые здания "Москва-Сити", второй терминал аэропорта "Домодедово" и другие объекты.
Архитектура жилого квартала "SREDA" разработана итальянской мастерской RBTA. Это компания с мировым именем. Их кисти, например, принадлежит здание головного офиса Google в Индии.
Проектом ландшафтного дизайна ЖК "SREDA" занималось английское бюро Gillespies. Примеры их работ в Москве можно увидеть в бизнес-парке "Сколково", кварталах "Даниловская мануфактура" и "Красная роза".
![ЖК "SREDA": реинкарнация Карачаровского завода - Фото 10]()
В сентябре 2017 года в ЖК "Ай эм на Садовом" завершаются работы по благоустройству и ограждению прилегающей территории. Фото застройщика ![ЖК "SREDA": реинкарнация Карачаровского завода - Фото 11]()
Элитные особняки с пентхаусами строятся в рамках проекта "Полянка, 44". Фото застройщика ![ЖК "SREDA": реинкарнация Карачаровского завода - Фото 12]()
Архитектура ЖК "Домашний", что строится в Марьино, во многом схожа с наружной отделкой домов в квартале "SREDA". Фото застройщика ![ЖК "SREDA": реинкарнация Карачаровского завода - Фото 13]()
В 1 корпусе ЖК "Гринада", который строится вблизи станции метро "Бульвар Дмитрия Донского", завершаются фасадные работы. Фото застройщика ![ЖК "SREDA": реинкарнация Карачаровского завода - Фото 14]()
Комплекс на Маяковской "Сады Пекина" строила турецкая компания "Ант Япы", которая является генподрядчком в ЖК "SREDA" ![ЖК "SREDA": реинкарнация Карачаровского завода - Фото 15]()
Бизнес-парк "Красная роза", в котором работал один из участников проекта "SREDA" ландшафтное агентство Gillespies. Фото с сайта компании
Расположение домов и транспортная доступность
ЖК "SREDA" возводится там, где Нижегородская улица переходит в Рязанский проспект, в 2,5 км от Третьего транспортного кольца. Квартал строится перпендикулярно Рязанке, поэтому из окон магистраль будет видно разве что в корпусе Т5 и в 42-этажной башни Т1. Окна в корпусах Т2 и Т3 частично выходят на разгрузочную зону строительного гипермаркета "Леруа Мерлен". А из квартир в корпусах Б1, Б2 и Б3 на 1-м Карачаровском проезде видно старые заводские цеха, которые вскоре пойдут под снос, и территория будет застраиваться жилыми домами. Наилучшими видовыми характеристиками обладают корпуса М3 и М7. Внешняя сторона этих домов выходит на ландшафтный парк, который обещает застройщик.
Расстояние от комплекса до действующей станции МЦК составляет 550 м. В III квартале 2018 года здесь откроются сразу две станции метро под единым названием "Нижегородская". Одна из них будет относиться к Кожуховской линии, а вторая - к линии Третьего пересадочного контура.
В шаговой доступности от ЖК "SREDA" есть платформа "Карачарово" Горьковского направления Московской железной дороги. Электричка до Курского вокзала идёт 11 минут.
У автомобилистов, помимо выезда на Рязанский проспект, альтернатив фактически нет. Бывшую промзону "Карачарово" со всех сторон подпирают железнодорожные пути. Можно переулками добраться до Волгоградки, но с учётом пробок на переездах вряд ли этот путь будет удобен.
![ЖК "SREDA": реинкарнация Карачаровского завода - Фото 16]()
Возле станции МЦК "Нижегородская" на Рязанском проспекте строится разворотная эстакада ![ЖК "SREDA": реинкарнация Карачаровского завода - Фото 17]()
В 2018 году в дополнение к станции МЦК будут открыты две станции метро с одноимённым названием "Нижегородская", которые будут относиться к разным линиям метрополитена ![ЖК "SREDA": реинкарнация Карачаровского завода - Фото 18]()
Из Нижегородского района общественным транспортом можно доехать до Волгоградского проспекта и станциям метро Таганско-Краснопресненской линии ![ЖК "SREDA": реинкарнация Карачаровского завода - Фото 19]()
Автобусы идут отсюда и в центр столицы ![ЖК "SREDA": реинкарнация Карачаровского завода - Фото 20]()
В шаговой доступности от ЖК "SREDA" находится платформа "Карачарово" Горьковского направления ![ЖК "SREDA": реинкарнация Карачаровского завода - Фото 21]()
До Курского вокзала можно доехать на электричке за 11 минут ![ЖК "SREDA": реинкарнация Карачаровского завода - Фото 22]()
Воспользовавшись подземным переходом, можно попасть в другую часть Нижегородского района, где, в частности, находится ближайшая поликлиника
Ход работ на стройплощадке
Самыми первыми в квартале сдаются малоэтажные корпуса Л1, Л2 и башни Т4, Т5. Ключи жители должны получить в марте 2018 года. Дома находятся в высокой степени готовности, фасадные работы завершены на 80%, ведётся остекление зданий. Как раз на примере первой очереди можно увидеть, что монолитные корпуса обшиваются утеплителем и на стены монтируется вентилируемый фасад из клинкерной плитки. Коричневые и бордовые оттенки подчёркивают промышленное прошлое этого места и поддерживают выбранный архитекторами стиль "лофт" в наружном оформлении домов комплекса.
В октябре 2018 года заселяться жители 25-этажек Т2 и Т3. За год до этого строители занимаются устройством технического этажа и кровли. Здания окутаны в строительные леса, идёт утепление фасадов. Указанные корпуса также относятся к первой очереди, но к её второму этапу.
Первые дома второй очереди будут готовы к заселению в августе 2018 года. Это корпуса М1, М2 и М3. В М6 и М7 ключи обещают к 2019 году. А в корпуса Б2 и Б3 первые жильцы появятся не ранее июня 2019 года. В октябре 2017 над второй очередью вовсю трудятся башенные краны, идёт возведение каркасов зданий на разных этажах. В целом, ход строительства соответствует заявленному в проектной декларации графику.
Детский сад начнёт свою работу осенью 2018 года, а школа и физкультурно-оздоровительный центр спустя год. Примерно к этому же времени будет сдаваться и наземный паркинг. Строительство доминантных небоскрёбов оставлено на конец и будет завершено не ранее 2020 года.
![ЖК "SREDA": реинкарнация Карачаровского завода - Фото 23]()
В левой части фото - корпуса первой очереди, которые будут заселяться примерно через полгода (март 2018), а справа видны башни второй очереди - Т2 и Т3 ![ЖК "SREDA": реинкарнация Карачаровского завода - Фото 24]()
На стройплощадке первой очереди работа кипит, наружные работы подходят к концу, идёт инженерное оснащение зданий ![ЖК "SREDA": реинкарнация Карачаровского завода - Фото 25]()
Для отделки вентилируемого фасада используется клинкерная плитка кирпичных оттенков ![ЖК "SREDA": реинкарнация Карачаровского завода - Фото 26]()
Обратите внимание на панорамное остекление угловых квартир ![ЖК "SREDA": реинкарнация Карачаровского завода - Фото 27]()
Большая площадь остекления делает квартиры светлыми ![ЖК "SREDA": реинкарнация Карачаровского завода - Фото 28]()
Так выглядят 25-этажки Т2 и Т3 ровно за год до предполагаемого заселения в октябре 2018 года ![ЖК "SREDA": реинкарнация Карачаровского завода - Фото 29]()
Корпуса второго этапа второй очереди находятся на стадии возведения каркасов и наружных стен ![ЖК "SREDA": реинкарнация Карачаровского завода - Фото 30]()
На этом фото видно, что корпуса располагаются близко друг к другу
Квартиры, машиноместа, кладовки и их стоимость
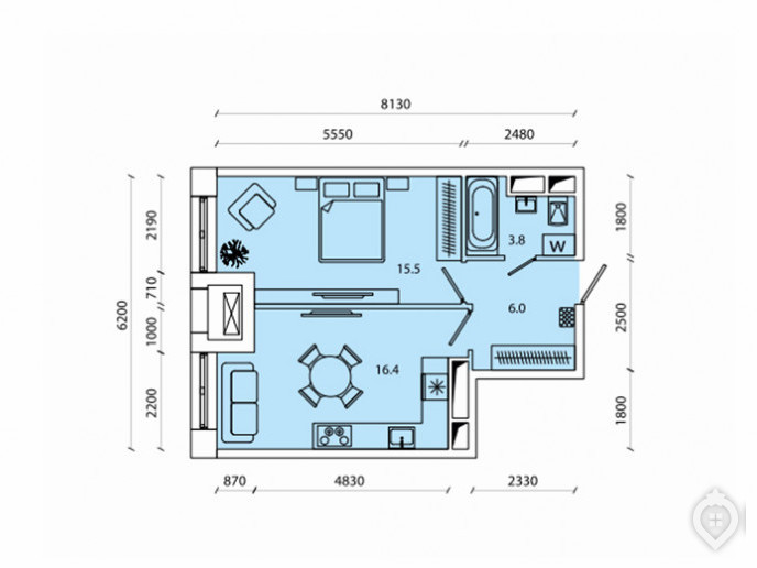
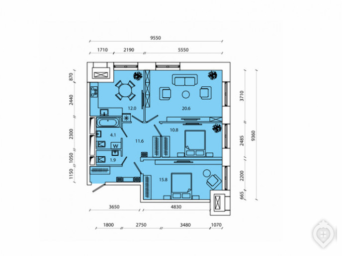
Первое, что бросается в глаза на поэтажных планах — мало квартир с балконами или лоджиями. Зато можно найти жильё с панорамным остеклением и нишами возле окна. Выглядит как лоджия без оконного блока.
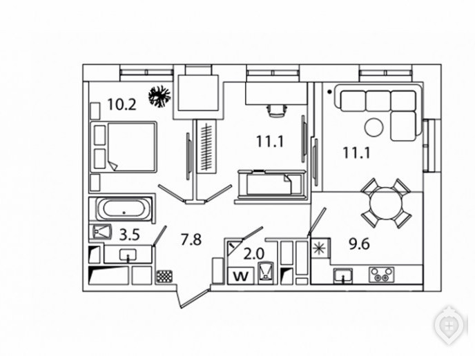
Площадь студий варьируется в пределах от 24 до 32 кв. м. Самые компактные продаются в корпусе Б2, причём все квартиры в этом доме с отделкой. 24-метровая студия здесь стоит 4 800 тыс. рублей. Студии площадью 32 кв. м есть только в Т4, такая обойдётся в 6 000 тыс. рублей и будет без отделки.
Разброс по площади в однушках составляет от 36 до 48 кв. м. В квартирах без отделки можно установить межкомнатную перегородку и сделать метраж кухни и комнаты таким, каким пожелает владелец. В корпусах с отделкой можно подобрать квартиру, где зона кухни-гостиной занимает 16 кв. м. При этом на спальню остаётся 15 квадратов. Общая площадь такой квартиры будет 41,6 кв. м, а цена 7 100 тыс. рублей. Равная по площади квартира без отделки есть в корпусе Т5, она стоит 7 920 тыс. рублей. Но разница в сроках сдачи дома составляет 1 год.
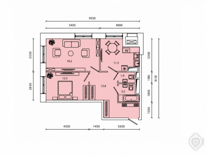
Самая дешёвая двухкомнатная квартира будет стоить как минимум 8 500 тыс. рублей. Она без отделки, её площадь 60 кв. м, срок сдачи дома во второй половине 2019 года. Встречаются как линейные, так и распашные варианты двухкомнатных квартир. Интересно выглядит угловая двушка в корпусе Б3. Там есть возможность отделить кухню от гостиной. При этом площадь гостиной составит 18 кв. м и в ней останется ещё два окна. Цена такой квартиры 9 000 тыс. рублей.
Площадь евротрёшек начинается от 55 кв. м. В таких квартирах по два санузла, а на зону кухня-гостиная выделено 20 кв. м. Бюджет покупки 9 000 тыс. рублей. На трёхкомнатную квартиру с отделкой нужно заложить от 12 000 до 13 000 тыс. рублей. Цена зависит от колебаний площади и этажа. Например, квартира площадью 76,8 кв. м с угловой гостиной будет стоить 12 500 тыс. рублей.
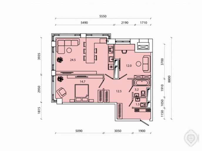
Четырёхкомнатные квартиры есть только в корпусах Б2 и М6, соответственно, все они продаются с отделкой. Их метраж варьируется в пределах от 103 до 115 кв. м, а цена от 17 000 до 18 000 тыс. рублей.
Выбор машиномест в подземном паркинге даже под домами первой очереди пока есть, поэтому можно найти ближайшее к лифту в вашем подъезде. Паркинг общий под каждой из очередей комплекса, и все лифты спускаются на подземные этажи. Стоимость машиномест составляет:
- 900 тыс. рублей за 11 кв. м
- 1 100 тыс. рублей за 13,2 кв. м
- 1 350 тыс. рублей за 16,5 кв. м
Там же в паркинге можно выкупить кладовое помещение, площадь которого будет от 3 до 7 кв. м. Стоимость одного квадрата составляет 100 тыс. рублей.
Наземный паркинг пока не выведен в продажу, его строительство не начиналось. Но известно, что машиноместа там будут стоить дешевле. Менеджер продаж назвал ориентировочную цену в 800 тыс. рублей.
![ЖК "SREDA": реинкарнация Карачаровского завода - Фото 31]()
24-метровая студия с отделкой стоит 4 800 тыс. рублей ![ЖК "SREDA": реинкарнация Карачаровского завода - Фото 32]()
Студия площадью 32 кв. м обойдётся в 6 000 тыс. рублей ![ЖК "SREDA": реинкарнация Карачаровского завода - Фото 33]()
Однокомнатная квартира площадью 41,6 кв. м с просторной кухней-гостиной продаётся за 7 100 тыс. рублей ![ЖК "SREDA": реинкарнация Карачаровского завода - Фото 34]()
Угловая двушка площадью 60 кв. м выставлена на продажу за 8 500 тыс. рублей ![ЖК "SREDA": реинкарнация Карачаровского завода - Фото 35]()
Похожая двушка площадью 68,4 с панорамным остеклением стоит 11 700 тыс. рублей ![ЖК "SREDA": реинкарнация Карачаровского завода - Фото 36]()
Компактную евротрёшку площадью 55 кв. м можно купить за 9 000 тыс. рублей ![ЖК "SREDA": реинкарнация Карачаровского завода - Фото 37]()
Трёхкомнатная квартира площадью 76,8 кв. м с отделкой стоит 12 500 тыс. рублей ![ЖК "SREDA": реинкарнация Карачаровского завода - Фото 38]()
Четырёхкомнатная квартира с отделкой площадью 110 кв. м обойдётся не менее, чем в 17 500 тыс. рублей
Корпуса с отделкой Т3, Б2, М6
Покупателям квартир в корпусе Т3 предлагается воспользоваться конструктором отделки на сайте, чтобы на свой вкус выбрать цвет стен и напольного покрытия. Предлагается по пять цветовых решений ламината и межкомнатных дверей, два цвета стен, шесть видов плитки для ванной. В корпусах Б2 и М6 застройщик сократил выбор оттенков и предлагает выбрать лишь между светлой и тёмной гаммой. Но бренды и качество материалов остались теми же:
- межкомнатные двери Mario Rioli из коллекции Fortunato из натурального шпона;
- на полу и на стенах в санузлах плитка и мозаика Kerama Marazzi из коллекции "Неаполитанская";
- ламинат Tarkett из коллекции Sommer Germany в светлой гамме отделки и ламинат Kronostar из коллекции Superior Evolution в тёмной гамме;
- виниловые обои на флизелиновой основе марки "Авангард";
- потолочный плинтус из пенополиуретана "Европласт", окрашенный в белый цвет;
- розетки и выключатели Legrand цвета слоновая кость;
- хромированный полотенцесушитель "Двин" или "Тругор";
- акриловая ванна, унитаз, раковина на пьедестале (Jika - в корпусе М6, Roca - в корпусе Б2);
- смесители и душевые наборы (Vidima - в корпусе М6, Hans Grohe - в корпусе Б2).
![ЖК "SREDA": реинкарнация Карачаровского завода - Фото 39]()
В офисе продаж находится шоу-рум и стенды с примерами используемых в отделке материалов ![ЖК "SREDA": реинкарнация Карачаровского завода - Фото 40]()
В корпусе Т3 владельцы квартир могут выбрать цвет напольных и настенных покрытий из представленных на стенде ![ЖК "SREDA": реинкарнация Карачаровского завода - Фото 41]()
В остальных корпусах клиентам предлагается только определиться с цветовой гаммой - светлой или тёмной ![ЖК "SREDA": реинкарнация Карачаровского завода - Фото 42]()
Для финишной отделки стен используются виниловые обои на флизелиновой основе под покраску ![ЖК "SREDA": реинкарнация Карачаровского завода - Фото 43]()
В качестве напольного покрытия в сухих помещениях используется ламинат европейского производства ![ЖК "SREDA": реинкарнация Карачаровского завода - Фото 44]()
Потолки выровнены и окрашены в белый цвет ![ЖК "SREDA": реинкарнация Карачаровского завода - Фото 45]()
Используется электрика Legrand цвета слоновой кости ![ЖК "SREDA": реинкарнация Карачаровского завода - Фото 46]()
В квартирах устанавливаются итальянские межкомнатные двери Mario Rioli ![ЖК "SREDA": реинкарнация Карачаровского завода - Фото 47]()
На кухне и в санузлах в качестве напольного покрытия используется керамическая плитка ![ЖК "SREDA": реинкарнация Карачаровского завода - Фото 48]()
Кладут плитку отечественного производства Kerama Marazzi ![ЖК "SREDA": реинкарнация Карачаровского завода - Фото 49]()
Используется санфаянс Jika Clavis или Santek ![ЖК "SREDA": реинкарнация Карачаровского завода - Фото 50]()
Устанавливается акриловая ванна ![ЖК "SREDA": реинкарнация Карачаровского завода - Фото 51]()
Так выглядит полотенцесушитель "Тругор" ![ЖК "SREDA": реинкарнация Карачаровского завода - Фото 52]()
Смесители и душевые наборы Vidima - в корпусе М6, Hans Grohe - в корпусе Б2 входят в перечень устанавливаемых элементов при отделке санузлов ![ЖК "SREDA": реинкарнация Карачаровского завода - Фото 53]()
При выборе тёмной гаммы отделки в санузлах будут установлены унитазы бренда Roca с крышкой-сиденьем soft close
Офис и условия продаж
Менеджеры продаж обосновались в бывшем заводском цеху. В офисе с высоченными потолками выполнена отделка в стиле лофт, большая площадь остекления делает помещение просторным и светлым. На макетах, установленных в лобби можно визуализировать своё представление о комплексе. Менеджер укажет на интересующие корпуса лазерной указкой, а затем пригласит за стол, чтобы обсудить подробности.
Заявку на ипотеку можно подать прямо в офисе продаж, причём сразу в несколько банков. Денежный займ на квартиру предлагают Сбербанк, ВТБ24, "ПромСвязьБанк", "Альфа банк". Средняя процентная ставка составляет около 11% годовых.
По словам менеджера продаж, банки часто меняют программы и акции, по которым можно оформить кредит. Именно поэтому есть шанс получить льготный процент. Имеется возможность взять ипотеку без первоначального взноса, например, в банке "Возрождение".
"ПромСвязьБанк", как участник "Группы ПСН", предлагает ипотечную программу "Новостройка" с льготным периодом кредитования на 1 год со ставкой 6,99%, на 2 года со ставкой 7,99%, на 3 года со ставкой 8,3%. По окончании льготного периода процентная ставка составит 10,9% годовых.
![ЖК "SREDA": реинкарнация Карачаровского завода - Фото 54]()
Офис продаж ЖК "SREDA" находится по адресу: Рязанский проспект, 2 ![ЖК "SREDA": реинкарнация Карачаровского завода - Фото 55]()
Въезд на территорию на автомобиле осуществляется с дублёра Рязанского проспекта ![ЖК "SREDA": реинкарнация Карачаровского завода - Фото 56]()
Яркое оформление прилегающей к офису территории видно издалека ![ЖК "SREDA": реинкарнация Карачаровского завода - Фото 57]()
Во дворе есть парковка для клиентов ![ЖК "SREDA": реинкарнация Карачаровского завода - Фото 58]()
Специалисты на ресепшен встречают клиентов и просят подождать, когда освободится менеджер продаж ![ЖК "SREDA": реинкарнация Карачаровского завода - Фото 59]()
Офис располагается в бывшем заводском здании ![ЖК "SREDA": реинкарнация Карачаровского завода - Фото 60]()
В просторном и светлом помещении выполнена отделка в стиле "лофт" ![ЖК "SREDA": реинкарнация Карачаровского завода - Фото 61]()
Даже при большом наплыве клиентов здесь можно найти уединённое место, чтобы ознакомиться с рекламными буклетами и информацией по комплексу ![ЖК "SREDA": реинкарнация Карачаровского завода - Фото 62]()
Объёмный макет выполнен в соответствии с генеральным планом жилого квартала ![ЖК "SREDA": реинкарнация Карачаровского завода - Фото 63]()
Здесь есть и игровая комната для детей ![ЖК "SREDA": реинкарнация Карачаровского завода - Фото 64]()
Менеджеры продаж работают в отдельном зале ![ЖК "SREDA": реинкарнация Карачаровского завода - Фото 65]()
Во время разговора с менеджером продаж сотрудник подробно расскажет о квартирах в наличии, сориентирует по расположению домов
"SREDA" в окружении
Добрую половину площади Нижегородского района Москвы занимают промышленные зоны. Да, старые заброшенные территории в будущем попадут под реконструкцию. Но здесь есть и те предприятия, которые успешно работают, и переносить их никто не собирается. Часть заводов относится к сборочно-механической отрасли. Это, например, производитель станков и сложных автоматических линий завод "Станкоагрегат" или оконный завод "ДОК-3". Оба предприятия находятся на противоположной стороне Рязанского проспекта и находятся в 1 км от ЖК "SREDA". Действующие цеха Карачаровского лифтостроительного завода находятся в районе Новохохловской улицы.
Для экологии Нижегородского района наиболее неблагоприятным является соседство с заводом железобетонных изделий ОАО "ЖБИ-6" и крупной ТЭЦ-8 мощностью 605 МВт. Предприятия расположены в 2,5 км от квартала "SREDA". Свою добавки в химическую формулу воздуха в этом районе вносят и крупные магистрали - Нижегородская улица, Волгоградский проспект, отрезок Рязанки. По территории района проходит участок Третьего Транспортного кольца.
Львиную долю торговой инфраструктуры берёт на себя ТЦ "Город". Там расположены гипермаркеты "Ашан", "Декатлон" и "Леруа Мерлен", магазины популярных брендов одежды, косметики, аксессуаров, аптеки, банки и т.д.
На территории ЖК "SREDA" расположен теннисный клуб. Застройщик планирует его сохранить и реконструировать. На противоположной стороне Рязанского проспекта находится Школа Олимпийского резерва №23, в здании которой располагается бассейн и ледовая арена. На Новохохловской улице есть школа волейбола Rusvolley.
В 2 минутах ходьбы от домов комплекса располагается Инженерный лицей "Интеллект", в нём функционирует и Театр занимательной науки. Учреждение относится к школе №439, основное здание которой находится через дорогу. Рядом - один из корпусов Московского государственного педагогического университета им. Шолохова и стоматологическая поликлиника. А вот поликлиника общего профиля находится далеко. Нужно пересечь пути Горьковской железной дороги и идти ещё минут 15 бодрым шагом. Взрослая поликлиника №225 и детская №13 находятся рядом друг с другом. Строительство новой поликлиники проект ЖК "SREDA" не предусматривает.
![ЖК "SREDA": реинкарнация Карачаровского завода - Фото 66]()
Схема расположения объектов, негативно влияющих на экологию Нижегородского района Москвы ![ЖК "SREDA": реинкарнация Карачаровского завода - Фото 67]()
Торговая инфраструктура сосредоточена в ТЦ "Город", который примыкает к границам квартала со стороны 1-го Карачаровского проезда ![ЖК "SREDA": реинкарнация Карачаровского завода - Фото 68]()
Школа Олимпийского резерва №23 находится напротив жилого комплекса. Здесь есть бассейн и ледовая арена ![ЖК "SREDA": реинкарнация Карачаровского завода - Фото 69]()
Попасть на другую сторону Рязанки можно по подземному пешеходному переходу, который находится прямо возле здания офиса продаж ![ЖК "SREDA": реинкарнация Карачаровского завода - Фото 70]()
Ближе всех к ЖК из медицинских учреждений находится государственная стоматологическая поликлиника ![ЖК "SREDA": реинкарнация Карачаровского завода - Фото 71]()
Поликлиника общего профиля находится в 1,5 от строящегося комплекса, если идти по дворам, дорога займёт не менее 15 минут ![ЖК "SREDA": реинкарнация Карачаровского завода - Фото 72]()
Детская поликлиника №13 рядом со взрослой, на первом этаже жилого дома ![ЖК "SREDA": реинкарнация Карачаровского завода - Фото 73]()
В районе не менее десятка образовательных учреждений, в том числе, те, что работают на коммерческой основе ![ЖК "SREDA": реинкарнация Карачаровского завода - Фото 74]()
На Рязанском проспекте располагается Храм Троицы Живоначальной, который был построен в 1774 году ![ЖК "SREDA": реинкарнация Карачаровского завода - Фото 75]()
Схема расположения объектов инфраструктуры в районе комплекса
- 4/5транспорт
- 2/5экология
- 3/5инфраструктура
- 3/5цена/качество











































































Добавить отзыв