Компания "МИЦ" продолжает осваивать территорию Новой Москвы. На этот раз объектом нашего внимания станет новостройка в поселении Десёновском, что рядом с Ватутинками. В домах первой очереди начали отделку фасада. На проверку проекта отправляется тайный покупатель.
Транспортные перспективы
14 км от МКАДа по Калужскому шоссе. ЖК "Кленовые аллеи" находится в центре Новой Москвы. Это даёт будущим жителям не только столичную прописку, но и перспективы развития транспортной доступности.
Реконструкция Калужского шоссе началась почти сразу после того, как в составе Москвы появился ТиНАО. К концу 2019 года работы на магистрали завершены. На участке длиной 30 км построены новые развязки, путепроводы, подземные и надземные переходы. Как раз в районе ЖК "Кленовые аллеи" есть дублёры основной магистрали, что облегчает выезд на шоссе и съезд с него.
Ближайшей станцией метро является "Ольховая". Добраться от неё до новостройки можно за 20-30 минут. На этом направлении ходит 508 автобус.
В перспективе метро появится в шаговой доступности от "Кленовых аллей". В Троицк ведут новую линию, которая получила название Коммунарская. Она берёт своё начало на пересечении станции МЦК "Крымская" и Севастопольского проспекта. Ветка пройдёт в юго-западном направлении, пересекая Калужско-Рижскую и Большую Кольцевую линии. Ещё одна пересадка будет на Сокольническую линию в Коммунарке. Этот узел планируется открыть в 2023 году. Далее на пути в Троицк появится ещё шесть станций. Вестибюли "Десёновской" будут расположены на Калужском шоссе напротив ЖК "Кленовые аллеи". Ожидать их открытие стоит в 2025 году.
![ЖК "Кленовые аллеи": дома вдоль шоссе в центре Новой Москвы - Фото 1]()
В 2019 году ближайшей к ЖК "Кленовые аллеи" станцией метро является "Ольховая" ![ЖК "Кленовые аллеи": дома вдоль шоссе в центре Новой Москвы - Фото 2]()
Отсюда можно доехать до новостройки на автобусе за 20-30 минут ![ЖК "Кленовые аллеи": дома вдоль шоссе в центре Новой Москвы - Фото 3]()
Нужная остановка называется "Новые Ватутинки" ![ЖК "Кленовые аллеи": дома вдоль шоссе в центре Новой Москвы - Фото 4]()
Чтобы пересечь Калужское шоссе и уехать в Москву, можно воспользоваться надземным переходом рядом с остановкой ![ЖК "Кленовые аллеи": дома вдоль шоссе в центре Новой Москвы - Фото 5]()
На Калужском шоссе есть выделенная полоса для общественного транспорта ![ЖК "Кленовые аллеи": дома вдоль шоссе в центре Новой Москвы - Фото 6]()
ЖК "Кленовые аллеи" находится на 35-м км Калужского шоссе в 14 км от МКАДа ![ЖК "Кленовые аллеи": дома вдоль шоссе в центре Новой Москвы - Фото 7]()
В этом месте сделан дублёр шоссе, что облегчает съезд ![ЖК "Кленовые аллеи": дома вдоль шоссе в центре Новой Москвы - Фото 8]()
Так выглядит перспективная схема метро в Новой Москве. В шаговой доступности от ЖК "Кленовые аллеи" будет станция "Десёновское" (иллюстрация взята со строительно-транспортного портала Москвы)
Состав проекта
Комплекс получил название "Кленовые аллеи", так как именно эти деревья планируется высадить вдоль Калужского шоссе. Благоустройство магистрали предполагает шумозащитные экраны, их дополнят зелёные насаждения.
В проект входит 15 каркасно-монолитных 7-17-этажных корпусов. Территория огорожена не будет, но въезд автомобилей во двор запретят. Придомовое пространство займут детские и спортивные площадки, зоны отдыха. С внешней стороны запланирована двухлинейная парковка, но её вместимость не уточняется.
Поскольку подъезды сквозные, попасть внутрь можно будет как со стороны стоянки, так и со двора. На 1 этаже предусмотрено помещение для консьержа. Колясочных нет. Будут установлены лифты отечественного производства, бренд пока не называют.
На генплане обозначены объекты социальной инфраструктуры: два детских сада на 450 мест и школа на 1000 учеников. Все учреждения муниципальные.
Торгово-развлекательный центр и многоуровневый паркинг будут возводить ближе к концу проекта. По словам менеджера продаж, это даст комплексу ещё 2 500 машиномест. Но документально эта информация пока никак не подтверждена. Ориентировочная стоимость машиноместа 500 тысяч рублей.
![ЖК "Кленовые аллеи": дома вдоль шоссе в центре Новой Москвы - Фото 9]()
ЖК "Кленовый аллеи" расположен вдоль Калужского шоссе. Иллюстрация застройщика ![ЖК "Кленовые аллеи": дома вдоль шоссе в центре Новой Москвы - Фото 10]()
Территория не огорожена, но въезд транспорта ограничен. Иллюстрация застройщика ![ЖК "Кленовые аллеи": дома вдоль шоссе в центре Новой Москвы - Фото 11]()
На придомовой территории расположены детские и спортивные площади. Иллюстрация застройщика ![ЖК "Кленовые аллеи": дома вдоль шоссе в центре Новой Москвы - Фото 12]()
Они рассчитаны на детей разных возрастов. Иллюстрация застройщика ![ЖК "Кленовые аллеи": дома вдоль шоссе в центре Новой Москвы - Фото 13]()
На территории предусмотрены объекты социальной инфраструктуры, паркинг и торговый центр. Иллюстрация застройщика
Строительство и этапы
Строительство ЖК "Кленовые аллеи" разделено на пять очередей. Согласно проектной декларации, первые четыре дома должны ввести в эксплуатацию до конца 2019 года. В ноябре здесь ведутся фасадные работы. Прилегающая территория пока выглядит совсем как стройплощадка, благоустройство не начиналось. В офисе продаж говорят, что ключи дольщики 1-4 корпусов получат не ранее лета 2020 года.
Завершение строительства 5-8 корпусов запланировано на конец 2020 года, ключи планируют выдавать в I квартале 2021 года. В настоящее время в домах второй очереди ведётся устройство монолитного каркаса и наружной бетонной кладки. В 6 корпусе приступили к возведению межквартирных перегородок. На этом этапе должен появиться первый в комплексе детский сад.
Ещё на год позже сдаётся третья очередь проекта. В ней обозначены корпуса 9 и 10. Строительство их началось, а заселение, по словам менеджера продаж, намечено на начало 2022 года. К этому сроку планируют открыть и школу.
Точных сроков возведения четвёртой и пятой очередей в офисе застройщика пока не называют. Но говорят, что в феврале 2020 года четвёртая очередь будет выведена в продажу. Тогда будут известны точные сроки строительства. Весь проект ориентировочно будет завершён в 2023 году.
![ЖК "Кленовые аллеи": дома вдоль шоссе в центре Новой Москвы - Фото 14]()
ЖК "Кленовые аллеи" включает 15 корпусов ![ЖК "Кленовые аллеи": дома вдоль шоссе в центре Новой Москвы - Фото 15]()
Собственники квартир в первой очереди должны получить ключи летом 2020 года ![ЖК "Кленовые аллеи": дома вдоль шоссе в центре Новой Москвы - Фото 16]()
В состав 1 очереди вошли корпуса 1-4 ![ЖК "Кленовые аллеи": дома вдоль шоссе в центре Новой Москвы - Фото 17]()
В ноябре 2019 года здесь ведется отделка фасада ![ЖК "Кленовые аллеи": дома вдоль шоссе в центре Новой Москвы - Фото 18]()
Для отделки наружных стен используется система вентилируемого фасада и фиброцементные панели ![ЖК "Кленовые аллеи": дома вдоль шоссе в центре Новой Москвы - Фото 19]()
Вторая очередь сдаётся на год позже ![ЖК "Кленовые аллеи": дома вдоль шоссе в центре Новой Москвы - Фото 20]()
Ко 2 очереди относятся корпуса 5-8 ![ЖК "Кленовые аллеи": дома вдоль шоссе в центре Новой Москвы - Фото 21]()
Все дома строят по каркасно-монолитной технологии ![ЖК "Кленовые аллеи": дома вдоль шоссе в центре Новой Москвы - Фото 22]()
Класс энергоэффективности домов "C" ![ЖК "Кленовые аллеи": дома вдоль шоссе в центре Новой Москвы - Фото 23]()
Начаты работы по возведению 3 очереди проекта
Планировки и цены
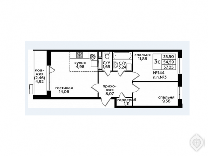
В ЖК "Кленовые аллеи" предложены квартиры площадью от 20 до 82 кв. м. Есть жильё необычного формата. К примеру, в 7 и 8 корпусах продаются двухкомнатные с окном в ванной комнате. Их стоимость 6 900 тыс. рублей за 57 кв. м общей площади.
На первом этаже в 6 корпусе есть квартиры с патио. Оно возвышается над тротуаром на высоте 1 м, имеет ограждение. Метраж патио в однушке 15 кв. м в дополнение к площади 45 кв. м. Такое жильё продают за 5 200 тыс. рублей.
На высоких этажах предлагают квартиры с террасой, которая будет расположена на крыше соседней более низкой секции. Малометражных планировок с террасами нет, только двух- или трёхкомнатные площадью от 70 кв. м. Площадь террасы от 15 до 42 кв. м.
Что касается жилья традиционного формата, то площадь студий в комплексе начинается от 20 кв. м. За 2 800 тыс. рублей владелец получит жилое пространство, объединённое с кухонной зоной, 4-метровую ванную комнату и лоджию.
Площадь однокомнатных квартир от 30 до 45 кв. м. Лоджии есть везде за исключением первого этажа. Стоимость от 3,5 млн рублей.
Во 2, 4 и 6 корпусах представлены евродвушки. На зону гостиной и кухни отводится от 13 до 16 кв. м. Остаётся около 12 квадратов на спальню. Санузел совмещенный. Есть место для гардеробной. Общая площадь таких квартир 50 кв. м, а цена 6,5 млн рублей.
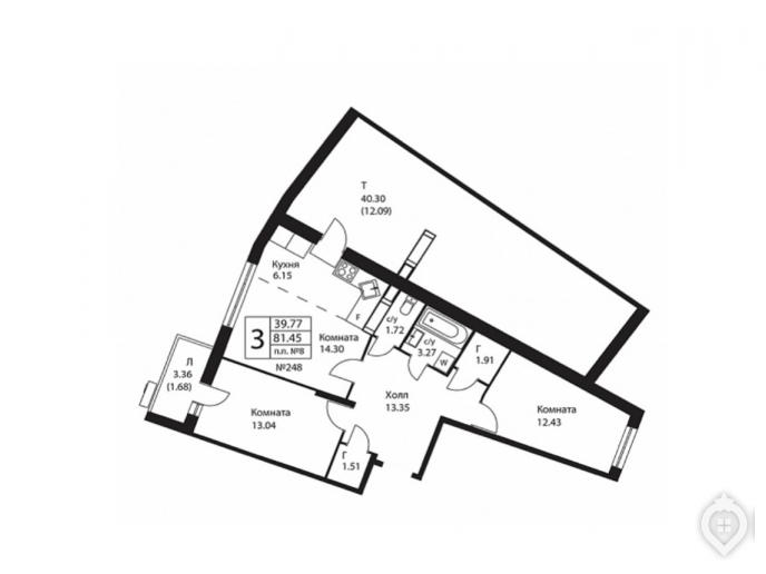
Квартиры площадью от 51 кв. м позиционируются как полноценные двухкомнатные. Есть варианты линейной или распашной планировки. Классических трёхкомнатных квартир в продаже заметно меньше, чем евротрёшек. Но и те, и другие отличает раздельный санузел и две гардеробные. Цена на такое жильё в пределах от 6,5 до 11 млн рублей.
![ЖК "Кленовые аллеи": дома вдоль шоссе в центре Новой Москвы - Фото 24]()
Стоимость квартир в ЖК "Кленовые аллеи" начинается от 2 800 тыс. рублей ![ЖК "Кленовые аллеи": дома вдоль шоссе в центре Новой Москвы - Фото 25]()
Однокомнатные квартиры с лоджией предлагают от 4 700 тыс. рублей ![ЖК "Кленовые аллеи": дома вдоль шоссе в центре Новой Москвы - Фото 26]()
Квартира на 1 этаже с патио обойдётся в 5 200 тыс. рублей ![ЖК "Кленовые аллеи": дома вдоль шоссе в центре Новой Москвы - Фото 27]()
Цены двухкомнатных от 6 600 тыс. рублей ![ЖК "Кленовые аллеи": дома вдоль шоссе в центре Новой Москвы - Фото 28]()
Двушка с террасой стоит 9 300 тыс. рублей ![ЖК "Кленовые аллеи": дома вдоль шоссе в центре Новой Москвы - Фото 29]()
Евродвушку можно приобрести за 6 100 тыс. рублей ![ЖК "Кленовые аллеи": дома вдоль шоссе в центре Новой Москвы - Фото 30]()
Евротрёшки продаются по цене от 6,5 млн рублей ![ЖК "Кленовые аллеи": дома вдоль шоссе в центре Новой Москвы - Фото 31]()
Трёхкомнатная квартира с террасой стоит 10 600 тыс. рублей
Отделка от застройщика
В ЖК "Кленовые аллеи" компания "МИЦ" предлагает три варианта: жильё "в бетоне" без стен, с предчистовой "Твоя основа" и чистовой отделкой комфорт-класса "Твой стиль".
В квартирах без отделки будут установлены панельные радиаторы фирмы "Керми" и проведены шланги отопления. Электричество заведено до щитка, трубы водоснабжения и канализации на заглушках.
Предчистовая отделка предполагает выполнение самых шумных и грязных работ. Застройщик выравнивает стены, делает стяжку пола, разводку электропроводки и сантехнических труб.
В комплексе отказались от отделки уровня эконом-класса. Опыт предыдущих проектов показал, что улучшенный вариант "Твой стиль" является самым востребованным. В этом случае будут:
- устроены наливные полы Dulux в санузлах и лоджиях;
- в ванных — керамическая плитка Vitra British Stone на стенах от пола до потолка;
- в комнатах уложен ламинат на полу 32 или 33 класса и пластиковые плинтуса с кабель-каналом;
- окрашены виниловые обои;
- установлены ванна, раковина, унитаз, смесители и полотенцесушители;
- монтированы розетки и выключатели Legrand Etika;
- межкомнатные двери Belwooddoors;
- натяжные потолки.
Черновая и чистовая отделка выполнена в корпусах посекционно. Это означает, что дополнительно заказать ремонт нельзя. Необходимо выбрать квартиру в том подъезде, который сдаётся с тем или иным видом отделки.
![ЖК "Кленовые аллеи": дома вдоль шоссе в центре Новой Москвы - Фото 32]()
Используется ламинат не ниже 32 класса износостойкости ![ЖК "Кленовые аллеи": дома вдоль шоссе в центре Новой Москвы - Фото 33]()
Устанавливаются межкомнатные двери белорусского производства ![ЖК "Кленовые аллеи": дома вдоль шоссе в центре Новой Москвы - Фото 34]()
На стенах будут розетки и выключатели фирмы Legrand ![ЖК "Кленовые аллеи": дома вдоль шоссе в центре Новой Москвы - Фото 35]()
Санузлы в плитке турецкого производства от пола до потолка ![ЖК "Кленовые аллеи": дома вдоль шоссе в центре Новой Москвы - Фото 36]()
Используется сантехника Vitra или Rossinka
Застройщик и условия продаж
Группа компаний "МИЦ" — это российский холдинг, в состав которого входят риэлторские и инвестиционно-строительные компании, работающие в секторе коммерческой и жилой недвижимости. Другими словами, "МИЦ" — девелопер полного цикла. Чаще всего он становится автором комплексной застройки территорий. В 2019 году в стадии активного возведения находятся проекты ЖК "Южное Бунино", "Татьянин парк", "Цветочные поляны" и другие. Последние годы "МИЦ" продвигает свои проекты под слоганом "Всё по-твоему". В эту концепцию компания вкладывает плюсы месторасположения, функциональные планировки, опцию чистовой отделки и другие особенности.
Компания "МИЦ" имеет собственный отдел продаж, поэтому договор долевого участия заключается непосредственно с застройщиком. Тем не менее за регистрацию договора попросят заплатить 35 тыс. рублей.
Рассрочки в ЖК "Кленовые аллеи" нет. Зато можно попытаться согласовать индивидуальную скидку. Если решение о приобретении принимается быстро, застройщик бывает щедрым на уступки, как сообщили в офисе.
Купить квартиру в Десёновском можно в ипотеку. Кредит оформляют в Сбербанке, ВТБ, Газпромбанке, Райффайзенбанке и других. Стандартные ставки начинаются от 8,6% годовых. Но как минимум пятёрка банков оформляет ипотеку с господдержкой для семей с детьми. И тогда условия кредита будут щадящими — от 4,5% годовых.
![ЖК "Кленовые аллеи": дома вдоль шоссе в центре Новой Москвы - Фото 37]()
Офис застройщика видно с Калужского шоссе ![ЖК "Кленовые аллеи": дома вдоль шоссе в центре Новой Москвы - Фото 38]()
Менеджеры работают с 9 утра до 9 вечера ежедневно, только в воскресенье офис открывается в 10 ![ЖК "Кленовые аллеи": дома вдоль шоссе в центре Новой Москвы - Фото 39]()
Здесь оборудована игровая зона для детей ![ЖК "Кленовые аллеи": дома вдоль шоссе в центре Новой Москвы - Фото 40]()
В зале расположен макет будущего комплекса
Окружение и инфраструктура
На противоположной стороне Калужского шоссе находится лес. Судьба его пока неизвестна. Но через несколько лет сюда придёт метро. И сложно поверить, что этот лакомый кусок земли останется без внимания предприимчивых инвесторов. Пока определённых планов на эту территорию в открытом доступе нет.
ЖК "Кленовые аллеи" строится как раз между шоссе и коттеджным посёлком "Ватутинки". Соседство с частной малоэтажной застройкой выглядит привлекательно. Не нужно бояться, что через пару лет свет в окна будет заслонять очередной небоскрёб.
Самым заметным соседом будет ЖК "Новые Ватутинки. Центральный квартал". Он находится с северо-восточной стороны. Там уже возведено не менее 20 многоэтажных домов, и комплекс продолжает расти. Вместе с домами строятся и объекты социальной инфраструктуры: детские сады, школы, поликлиника уже работают. Теоретическая возможность пользоваться этими услугами в "Новых Ватутинках" будет у жителей "Кленовых аллей". Но на практике это может оказаться непросто, так как вместимость учреждений не рассчитана на соседей, народу много и в самом ЖК. Напомню, собственные детские учреждения начнут работать в ЖК "Кленовые аллеи" не ранее 2021-22 годов.
В ЖК "Новые Ватутинки" много магазинов и точек бытовых услуг: супермаркеты "Пятёрочка" и "Магнит", ателье, аптеки, ремонт обуви, магазин автозапчастей и другие.
Поблизости от ЖК "Кленовые аллеи" нет промышленных предприятий. Кроме того, Новая Москва позиционируется столичными властями как территория экологической безопасности. Лесные массивы здесь охраняют и благоустраивают. До 2035 года в ТиНАО планируется открыть 90 новых парков.
![ЖК "Кленовые аллеи": дома вдоль шоссе в центре Новой Москвы - Фото 41]()
Калужское шоссе расположено в 50 м от домов ![ЖК "Кленовые аллеи": дома вдоль шоссе в центре Новой Москвы - Фото 42]()
За ЖК "Кленовые аллеи" начинается коттеджный посёлок ![ЖК "Кленовые аллеи": дома вдоль шоссе в центре Новой Москвы - Фото 43]()
В шаговой доступности расположен ЖК "Новые Ватутинки. Квартал Центральный" ![ЖК "Кленовые аллеи": дома вдоль шоссе в центре Новой Москвы - Фото 44]()
Здесь есть образовательная инфраструктура для детей ![ЖК "Кленовые аллеи": дома вдоль шоссе в центре Новой Москвы - Фото 45]()
Работает поликлиника ![ЖК "Кленовые аллеи": дома вдоль шоссе в центре Новой Москвы - Фото 46]()
Развита торговля на первых этажах домов ![ЖК "Кленовые аллеи": дома вдоль шоссе в центре Новой Москвы - Фото 47]()
Есть учреждения дополнительного образования ![ЖК "Кленовые аллеи": дома вдоль шоссе в центре Новой Москвы - Фото 48]()
Работают супермаркеты ![ЖК "Кленовые аллеи": дома вдоль шоссе в центре Новой Москвы - Фото 49]()
"Магнит" открыли в 400 м от ЖК "Кленовые аллеи" ![ЖК "Кленовые аллеи": дома вдоль шоссе в центре Новой Москвы - Фото 50]()
"Нововатутинский" ТЦ открыт как раз между жилыми комплексами
- 2/5транспорт
- 4/5экология
- 3/5инфраструктура
- 2/5цена/качество


















































Добавить отзыв