Территория Новой Москвы развивается. Здесь строят новые дороги, метро и, конечно, жильё. В поселении Сосенском в окружении лесопарковой зоны и частных домов ГК "МИЦ" строит ЖК "Южное Бунино". Первые корпуса должны сдать до конца 2019 года. За полгода до появления новосёлов отправляемся на стройку, чтобы выяснить детали проекта и оценить ход работ.
Факты, цифры, сроки
Строительство развернулось на участке площадью 56 гектаров. Через 4 года здесь появится 19 корпусов. Высота домов 12-14 этажей. Все они строятся по каркасно-монолитной технологии. Толщина наружных стен 45 см, из которых 20 см занимает газобетонный блок и 20 см утеплитель. Всё это закрывает вентилируемый фасад с фиброцементными панелями.
В первую очередь включены девять корпусов, которые заселяют в три этапа. Застройщик обещает следующие сроки ввода домов в эксплуатацию:
- 4, 5, 6, 7 корпуса — IV квартал 2019 года;
- 1, 2, 3 корпуса — I квартал 2020 года;
- 8, 9 корпуса — IV квартал 2020 года.
В ЖК "Южное Бунино" застройщик разделяет дома на классы: "комфорт", "комфорт плюс" и "премиум". В первой очереди большинство домов класса "комфорт". Только 1-й и 4-й повышенной комфортности. Премиум пока не продаётся, эти корпуса будут только во второй очереди.
Дома класса "комфорт плюс" отличает повышенная шумоизоляция, дизайнерский ремонт входных групп и улучшенная отделка фасадов. Последний пункт выражен в цветовом решении фиброцементных панелей. Качество и вид материалов не меняется. Консьержей и колясочных не предусмотрено вне зависимости от класса. Видеонаблюдение будет на территории, в подъездах и лифтах Otis.
Точные сроки строительства домов второй очереди пока не обозначены. Но весь комплекс планируется возвести к концу 2023 года. Здесь появится своя инфраструктура.
Три детских сада рассчитаны на 890 мест. Первый будет построен в 2021 году. Остальные через год и через два соответственно. Две школы смогут принять до 2000 учеников. Их возведение запланировано на 2022 и на 2023 годы. Все образовательные учреждения муниципальные.
Собственной поликлиники в комплексе не будет. Но в Коммунарке к концу 2020 года должен быть построен крупнейший в стране медцентр на 1 миллион пациентов, услугами которого будут пользоваться жители Сосенского.
Нежилые помещения на первых этажах отдадут под коммерцию. Территория не огорожена, но въезд автомобилей ограничат. Внутреннее пространство организовано согласно концепции "двор без машин". Гостевые парковочные карманы будут расположены по периметру домов. Точное количество машиномест менеджер продаж назвать затруднился. Зато сообщил, что на генплане новостройки 6 наземных многоуровневых паркингов на 5 200 автомобилей.
![ЖК "Южное Бунино": классовое разнообразие в окружении дачных посёлков - Фото 1]()
В Новой Москве под застройку выделен участок площадью 56 гектаров ![ЖК "Южное Бунино": классовое разнообразие в окружении дачных посёлков - Фото 2]()
Высота домов не превышает 14 этажей ![ЖК "Южное Бунино": классовое разнообразие в окружении дачных посёлков - Фото 3]()
Так стройплощадка выглядит в конце лета 2019 года ![ЖК "Южное Бунино": классовое разнообразие в окружении дачных посёлков - Фото 4]()
Первыми в IV квартале 2019 года сдаются корпуса 4, 5, 6 и 7 ![ЖК "Южное Бунино": классовое разнообразие в окружении дачных посёлков - Фото 5]()
В этих дома идёт установка системы вентилируемого фасада и фиброцементных панелей ![ЖК "Южное Бунино": классовое разнообразие в окружении дачных посёлков - Фото 6]()
На I квартал 2020 года намечен воод в эксплуатацию корпусов 1, 2 и 3 ![ЖК "Южное Бунино": классовое разнообразие в окружении дачных посёлков - Фото 7]()
Здесь выполняется утепление наружных стен ![ЖК "Южное Бунино": классовое разнообразие в окружении дачных посёлков - Фото 8]()
В комплексе строятся только каркасно-монолитгные дома, стены выложены из газобетона ![ЖК "Южное Бунино": классовое разнообразие в окружении дачных посёлков - Фото 9]()
Корпуса 8 и 9 находятся в глубине стройплощадки, они будут построены к IV кварталу 2020 года
Отделка: классы и стили
В ЖК "Южное Бунино" представлены: квартиры свободной планировки, с предчистовой white box, со стандартной чистовой и ещё два варианта отделки классом повыше.
Принцип расположения жилья с отделкой и без неё обывателю непонятен. В одной и той же секции могут быть как свободные планировки, так и предложения с ремонтом. Если квартира обозначена как лот с отделкой, тогда можно выбрать один из трёх классов: "Твой стандарт", "Твой стиль" или "Твой статус".
Отличия между тремя стилями незначительные. К примеру, в стандартном варианте будет ламинат 31 класса износостойкости, а в "стильном" не ниже 32. Радиаторы отопления одинаковые. Межкомнатные двери с покрытием экошпон. Ванна акриловая, унитаз напольный. В классах повышенной комфортности используются материалы из более дорогих коллекций, но производители одни и те же. В общем, при выборе класса отделки определяющим фактором станет цветовая гамма.
Чтобы понять, насколько выбор отделки влияет на стоимость, возьмём однокомнатную квартиру площадью 45 кв. м. Со стандартным ремонтом она стоит 6 522 тыс. рублей. С отделкой "Твой стиль" цена 6 613 тыс. рублей, а с ремонтом "Твой статус" — 6 704 тыс. рублей.
Квартиры с предчистовой white box на сайте обозначены как лот с отделкой "Твоя основа" и "Базовая". В этом случае будет выполнена стяжка пола и разводка электричества, выровнены стены, установлены радиаторы отопления и сантехнические трубы.
Жильё в домах повышенной комфортности продаётся только с отделкой. Напомню, это корпуса 1 и 4. Но отсюда убрали стандартный вариант. Либо white box, либо один из вариантов подороже.
Нужно иметь в виду, что застройщик приступит к выполнению чистовой только после сдачи дома в эксплуатацию. Поэтому к заявленным срокам прибавляйте три месяца. А затем ещё два — на выдачу ключей.
![ЖК "Южное Бунино": классовое разнообразие в окружении дачных посёлков - Фото 10]()
В шоу-руме на стендах представлены образцы отделочных материалов ![ЖК "Южное Бунино": классовое разнообразие в окружении дачных посёлков - Фото 11]()
В комнатах будет ламинат, на кухне и в санузлах плитка ![ЖК "Южное Бунино": классовое разнообразие в окружении дачных посёлков - Фото 12]()
Плитка из коллекции British stone бренда Vitra используется в отделке "Твой стандарт" ![ЖК "Южное Бунино": классовое разнообразие в окружении дачных посёлков - Фото 13]()
Плитка под светлый мрамор в отделке "Твой статус", производитель тот же ![ЖК "Южное Бунино": классовое разнообразие в окружении дачных посёлков - Фото 14]()
Санузел сдаётся под ключ с сантехникой и смесителями ![ЖК "Южное Бунино": классовое разнообразие в окружении дачных посёлков - Фото 15]()
Производитель сантехники турецкая компания Vitra ![ЖК "Южное Бунино": классовое разнообразие в окружении дачных посёлков - Фото 16]()
Во всех стилях устанавливаются межкомнатные двери фирмы Belwooddoors из коллекции Avesta с покрытием экошпон
Предложения и порядок цен
На этаже расположено от 4 до 9 квартир. Высота потолка 2,82 м в черновом варианте. Устанавливаются двухкамерные стеклопакеты увеличенного размера. Окна высотой 1,7 м находятся в 80 см от пола.
На раннем этапе продаж были предложены студии от 23 кв. м. Но к концу лета 2019 года остались только самые крупные студийные варианты. Площадь 30,5 кв. м обойдётся минимум в 4 800 тыс. рублей.
Планировки однокомнатных квартир не отличаются оригинальностью, зато почти везде нашлось пару квадратных метров под гардеробную. Стоимость однушек от 4,5 до 6 млн рублей.
Представлены двухкомнатные квартиры евроформата и классической планировки. Есть варианты с совмещённым или раздельным санузлом. Площадь двушек от 45 до 65 кв. м, а средняя цена 7,5 млн рублей.
Выбор планировок среди трёх- и четырёхкомнатных квартир небольшой. Интереснее других выглядит угловая трёшка с увеличенным количеством окон, одно из которых будет в зоне рабочей поверхности на кухне.
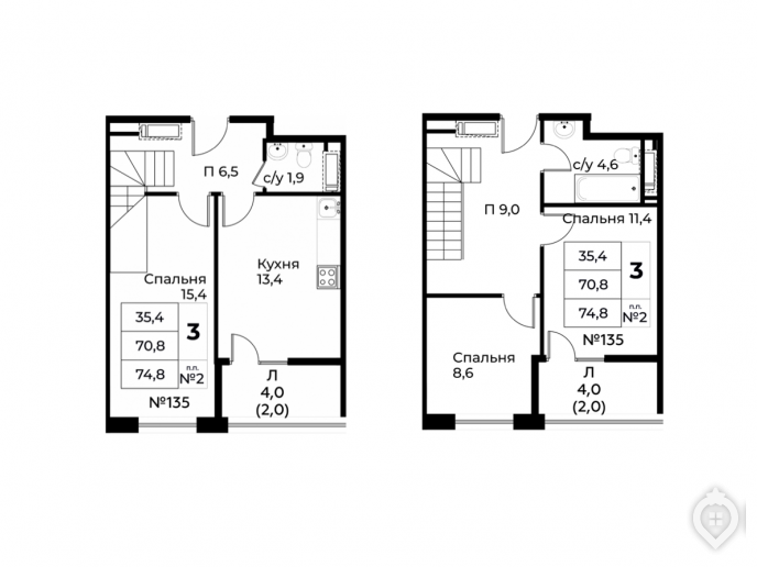
В ЖК "Южное Бунино" предложены эксклюзивные форматы квартир: двухуровневые на последних этажах и с патио и отдельным входом на первых.
Двухуровневых квартир в комплексе немного. В продаже в данный момент есть только одна трёшка площадью 75 кв. м. Внизу 13-метровая кухня с выходом на лоджию и гостиная. Наверху две спальни площадью 12 и 9 кв. м. Санузлы расположены на обоих этажах.
Патио с ограждением расположено в 80 см над тротуаром. Оно представляет собой бетонную площадку, которая потребует определённой отделки: керамогранит, деревянное покрытие или газон — как решит владелец. Сверху можно натянуть тент. Однокомнатная квартира площадью 42 кв. м с патио и с отделкой white box продаётся от 5 800 тыс. рублей. При этом 14-метровая терраса оплачивается с коэффициентом 0,3, как балконы. В 77-метровой трёхкомнатной квартире будет два патио с разных сторон дома. Цена с отделкой "Твой стиль" 10 670 тыс. рублей.
Строительство паркингов пока не началось, поэтому машиномест летом 2019 года в продаже нет. Однако менеджеры дают предварительную информацию по цене. Предполагается, что паркинг будет стоить от 350 до 500 тыс. рублей. Застройщик планирует не только реализовывать, но и сдавать машиноместа в аренду. Ориентировочная стоимость ежемесячного платежа 3 тыс. рублей.
На цокольном этаже каждого из корпусов есть кладовые помещения площадью от 2 до 8 кв. м. В продажу они пока тоже не поступили. Но ориентировочная цена квадратного метра 50 тыс. рублей.
![ЖК "Южное Бунино": классовое разнообразие в окружении дачных посёлков - Фото 17]()
Одна из немногих оставшихся в первой очереди студий по цене 4 400 тыс. рублей ![ЖК "Южное Бунино": классовое разнообразие в окружении дачных посёлков - Фото 18]()
Однокомнатные квартиры продаются по цене от 4,5 млн рублей ![ЖК "Южное Бунино": классовое разнообразие в окружении дачных посёлков - Фото 19]()
Угловая евродвушка за 6 млн рублей ![ЖК "Южное Бунино": классовое разнообразие в окружении дачных посёлков - Фото 20]()
Полноценная двушка линейной планировки за 8 млн рублей ![ЖК "Южное Бунино": классовое разнообразие в окружении дачных посёлков - Фото 21]()
Классическая двушка-распашонка с раздельным санузлом стоит 8,4 млн рублей ![ЖК "Южное Бунино": классовое разнообразие в окружении дачных посёлков - Фото 22]()
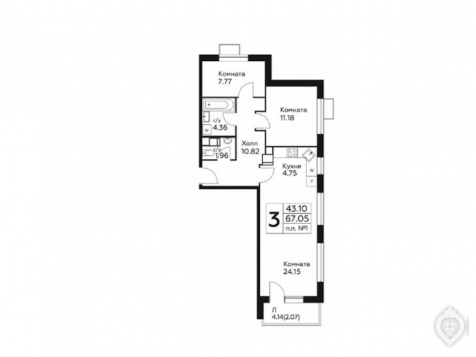
Трёхкомнатные квартиры продаются от 8 млн рублей ![ЖК "Южное Бунино": классовое разнообразие в окружении дачных посёлков - Фото 23]()
Трёшка с увеличенным количеством окон за 9 200 тыс. рублей ![ЖК "Южное Бунино": классовое разнообразие в окружении дачных посёлков - Фото 24]()
Двухкомнатную квартиру с патио предлагают за 7,5 млн рублей ![ЖК "Южное Бунино": классовое разнообразие в окружении дачных посёлков - Фото 25]()
Двухуровневая трёхкомнатная квартира продаётся от 9 600 тыс. рублей
Застройщик и условия продаж
Девелопер ГК "МИЦ" уже становился героем наших материалов. Тайный покупатель проверял микрорайон "Новоград Павлино", комплексы "Татьянин парк" и "Зелёные аллеи".
На репутации застройщика есть пятна в виде задержек ввода домов в эксплуатацию. Проблемы были, например, в "Новограде Павлино". Там дольщики судились и получали неустойки. А в ЖК "Татьянин парк" собственники жаловались на качество построенного жилья и на ржавую воду из труб.
ГК "МИЦ" входит в пятёрку крупнейших застройщиков Москвы и области. Это компания полного цикла, которая работает в формате комплексной застройки.
За консультацией о ЖК "Южное Бунино" можно подъехать в центральный офис на Павелецкой или сразу на стройплощадку. Экскурсий к корпусам здесь не устраивают, но подробно расскажут об объекте.
В процессе общения с менеджером продаж выяснилось, что квартиры здесь продают по двум вариантам договора. Первый — классический ДДУ по 214-ФЗ. В этом случае будет сделка с застройщиком. Бронь на неделю стоит 25 тыс. рублей. Второй вариант — по переуступке от юрлица. Существуют некий инвестор, который вложился в проект на начальном этапе, а теперь реализует выкупленные квадратные метры. При покупке такой квартиры бронь на неделю бесплатная. Регистрация любого из двух договоров в госорганах обойдётся в 34 850 рублей.
Рассрочки в комплексе нет. Кредит дают крупные российские банки. В случае прав на ипотеку с господдержкой можно рассчитывать на ставку от 5% годовых в Сбербанке или ВТБ. Средняя ставка в других банках 10%. Оформить заявку помогут в офисе продаж.
![ЖК "Южное Бунино": классовое разнообразие в окружении дачных посёлков - Фото 26]()
Офис продаж находится возле стройплощадки ![ЖК "Южное Бунино": классовое разнообразие в окружении дачных посёлков - Фото 27]()
С трассы к стройплощадке ведёт бетонка ![ЖК "Южное Бунино": классовое разнообразие в окружении дачных посёлков - Фото 28]()
Менеджеры обычно работают с 9 утра до 9 вечера, только по субботам с 10 ![ЖК "Южное Бунино": классовое разнообразие в окружении дачных посёлков - Фото 29]()
О встречи можно договориться заранее, но можно и приехать без записи ![ЖК "Южное Бунино": классовое разнообразие в окружении дачных посёлков - Фото 30]()
В павильоне есть зоны ожидания ![ЖК "Южное Бунино": классовое разнообразие в окружении дачных посёлков - Фото 31]()
Детей можно оставить в игровом уголке ![ЖК "Южное Бунино": классовое разнообразие в окружении дачных посёлков - Фото 32]()
В центре офиса установлен макет будущего комплекса
Окружение и способы добраться
На официальном сайте проекта сказано, что главным преимуществом комплекса является действующая станция метро в шаговой доступности. Речь идёт о метро "Коммунарка". Но шаговая доступность — это какой-то жестокий маркетинг. Яндекс-карты дают расстояние в 4.8 км и 57 минут времени в пути. Гугл и вовсе считает, что расстояние составляет 6,5 км, а идти 1 час 20 минут. Вероятно, дезинформация пошла от того, что по прямой от новостройки до "Коммунарки" 2 км. Но между ними река Варварка, лес и клубный посёлок "Столбово клаб". Никакой дороги там нет. Так что не позволяйте маркетологам вводить себя в заблуждение.
Гораздо более реально выглядит возможность доехать до метро "Ольховая" на автобусе №577. Время в пути до Сокольнической линии составит минут 15. Этот же автобус идёт до станции "Тёплый стан", которая расположена на Калужско-Рижской ветке. Доехать можно за 25 минут без учёта пробок. Ну и третье метро, куда можно добраться на автобусе №117 за 20 минут, это станция "Бунинская аллея". Несмотря на замкадье, в общественном транспорте действуют московские проездные.
Летом 2018 года была открыта трасса М3, что тянется от Киевского шоссе до Южного Бутова. Она проходит в 100 м от нашей новостройки. Магистраль имеет развязку с Калужским шоссе, так что сообщение с Москвой удобное. На МКАД также можно попасть через улицу Поляны мимо Бутовского лесопарка. В целом, перспектива развития транспортной доступности в Новой Москве выглядит впечатляюще. Там строят магистрали, развязки, метро и линии скоростного трамвая.
ЖК "Южное Бунино" строится в поле. С трёх сторон комплекс окружают частные дома. Экологическая обстановка одна из самых благоприятных в столице. Ни о каких вредных производствах поблизости речи не идёт.
Коммерческая инфраструктура начнёт развиваться на территории комплекса после заселения первых домов. Крупные торговые объекты есть возле метро "Тёплый стан". Отсутствие социальной инфраструктуры нужно перетерпеть первые год-два. Детей придётся водить в сад или в школу в Воскресенском, Коммунарке или Южном Бутове.
![ЖК "Южное Бунино": классовое разнообразие в окружении дачных посёлков - Фото 33]()
ЖК "Южное Бунино" находится в 8 км от МКАД по Калужскому шоссе ![ЖК "Южное Бунино": классовое разнообразие в окружении дачных посёлков - Фото 34]()
После съезда с Калужки к комплексу ведёт недавно открытый участок трассы М3 ![ЖК "Южное Бунино": классовое разнообразие в окружении дачных посёлков - Фото 35]()
Магистраль проходит в 100 м от корпусов 2 и 3 ![ЖК "Южное Бунино": классовое разнообразие в окружении дачных посёлков - Фото 36]()
На общественном транспорте удобнее добираться от метро "Ольховая" ![ЖК "Южное Бунино": классовое разнообразие в окружении дачных посёлков - Фото 37]()
Отсюда к новостройке идёт 577 автобус ![ЖК "Южное Бунино": классовое разнообразие в окружении дачных посёлков - Фото 38]()
На дорогу уйдёт 10-15 минут ![ЖК "Южное Бунино": классовое разнообразие в окружении дачных посёлков - Фото 39]()
Автобус ходит и от метро "Тёплый стан" ![ЖК "Южное Бунино": классовое разнообразие в окружении дачных посёлков - Фото 40]()
Номер автобуса тот же - 577 ![ЖК "Южное Бунино": классовое разнообразие в окружении дачных посёлков - Фото 41]()
От "Тёплого стана" можно доехать в течение получаса ![ЖК "Южное Бунино": классовое разнообразие в окружении дачных посёлков - Фото 42]()
Через трассу к новостройке есть пешеходный переход со светофором ![ЖК "Южное Бунино": классовое разнообразие в окружении дачных посёлков - Фото 43]()
Поскольку комплекс строится фактически в поле, в округе не развита инфраструктура ![ЖК "Южное Бунино": классовое разнообразие в окружении дачных посёлков - Фото 44]()
Возле метро "Ольховая" пока тоже пусто ![ЖК "Южное Бунино": классовое разнообразие в окружении дачных посёлков - Фото 45]()
Станция была открыта 20 июня 2019 года ![ЖК "Южное Бунино": классовое разнообразие в окружении дачных посёлков - Фото 46]()
Возле метро "Тёплый стан" есть магазины и торговые центры ![ЖК "Южное Бунино": классовое разнообразие в окружении дачных посёлков - Фото 47]()
Работает гипермаркет товаров для дома Hoff ![ЖК "Южное Бунино": классовое разнообразие в окружении дачных посёлков - Фото 48]()
Есть мелкие коммерческие точки
- 3/5транспорт
- 4/5экология
- 3/5инфраструктура
- 3/5цена/качество
















































Добавить отзыв