Проект "Городские Истории" не нуждается в больших рекламных бюджетах. В начале продаж в октябре 2018 года в новостройке было забронировано более 200 квартир, а застройщик оказался вынужден приостановить бронирование, чтобы пересмотреть прайс. Такой ажиотаж понятен – стоимость квартиры в минуте ходьбы от станции "Рассказовка" стартовала с трех миллионов рублей. Сегодня минимальный бюджет в полтора раза выше, однако это не остановило продажи. Даже в будний день в офисе наблюдаются очереди из желающих купить квартиру.
Локация и транспортная доступность
Комплекс строится на территории Новой Москвы в поселении Внуковское в восьми километрах от МКАД, на пересечении улиц Анны Ахматовой, Корнея Чуковского и Боровского шоссе. Расстояние до трассы составляет всего 75 метров, а значит круглосуточный шум от дороги гарантирован. С учетом пробок дорога до МКАД на автомобиле займет 20-25 минут.
Пользователям общественного транспорта проще всего доехать до центра Москвы по Солнцевской линии метро. Увы, она не имеет пересечения с Кольцевой веткой, поэтому нужно делать не одну, а две пересадки: на станции метро "Парк Победы" и "Киевской". Причем в час пик приходится пропускать по 2-3 поезда, чтобы попасть в вагон. Время в пути до Кольцевой линии составляет 37 минут.
!["Городские Истории": когда метро действительно рядом - Фото 1]()
Станция метро "Рассказовка" !["Городские Истории": когда метро действительно рядом - Фото 2]()
Дом еще не сдан, но места для парковки уже нет !["Городские Истории": когда метро действительно рядом - Фото 3]()
Дороги у соседнего жилого комплекса также плотно заставлены автомобилями !["Городские Истории": когда метро действительно рядом - Фото 4]()
Часть транспортно-пересадочного узла !["Городские Истории": когда метро действительно рядом - Фото 5]()
Вход в метро с противоположной стороны проекта !["Городские Истории": когда метро действительно рядом - Фото 6]()
Вид на дорогу у половины квартир первой очереди !["Городские Истории": когда метро действительно рядом - Фото 7]()
По эстакаде проходит Боровское шоссе !["Городские Истории": когда метро действительно рядом - Фото 8]()
Дублер Боровского шоссе
Ключи до конца 2020 года
"Городские Истории" включает три очереди. В июне 2019 в продаже представлена первая из них. В ее состав входит монолитный 23-этажный десятиподъездный дом на 1153 квартиры без подземного паркинга. Сверху здание напоминает незавершённую букву S, образующую глубокий колодец. Из-за этого большинство квартир смотрят в окна соседа. Расстояние от дома до входа в подземку составляет 15 метров – метро располагается практически во дворе.
Для того, чтобы как-то сохранить приватность проживания, застройщик обещал сделать придомовую территорию закрытой. Однако жителям нижних этажей придется подумать над покупкой плотных штор, поскольку светить в окна будут не только фонари, но и буква "М" на входе в метро.
Дом находится в высокой стадии готовности – завершается внешняя отделка. Как и во многих проектах, здание имеет вентилируемый фасад из фиброцементных панелей. Одновременно идут инженерные работы внутри здания.
Согласно проектной декларации, до ввода в эксплуатацию первой очереди остался всего год – сдача запланирована на 2 квартал 2020 года. Однако срок передачи ключей – конец 2020 года. Именно на него, по словам менеджера, стоит ориентироваться покупателям.
!["Городские Истории": когда метро действительно рядом - Фото 9]()
Три секции образуют "колодец" !["Городские Истории": когда метро действительно рядом - Фото 10]()
Окна квартир всего в нескольких метрах от входа в метро !["Городские Истории": когда метро действительно рядом - Фото 11]()
Вид на комплекс со стороны станции метро !["Городские Истории": когда метро действительно рядом - Фото 12]()
Монтаж вентилируемых фасадов практически завершен !["Городские Истории": когда метро действительно рядом - Фото 13]()
Строительная площадка закрыта для покупателей !["Городские Истории": когда метро действительно рядом - Фото 14]()
Пеноблоки с утеплителем и фиброцементными панелями !["Городские Истории": когда метро действительно рядом - Фото 15]()
Паспорт объекта уже не соответствует действительности по срокам сдачи и составу проекта
Застройщик-новичок и отсутствующий генплан
Застройщиком проекта выступает АО ТПУ "Рассказовка". Это первый жилой проект компании, поэтому пока сложно судить о соблюдении сроков и качестве строительства. Однако известно, что учредителем фирмы является дочерняя структура "Мосинжпроекта", реализующего проекты транспортно-пересадочных узлов по всей Москве.
В состав второй очереди "Городских Историй" изначально входил единственный дом и детский сад на 225 детей. В итоге девелопер пересмотрел концепцию, и вместо одного корпуса планирует построить уже три небольших с дошкольным учреждением. Застройщик приступил к котлованным работам, однако никаких подробностей по срокам строительства пока нет.
Третья очередь "Городских Историй" включает один дом и, возможно, наземный паркинг. Однако никакой подтверждающей информации не поступало. Более того, ни на одном рендере нет генплана жилого комплекса. Поэтому не исключено, что концепция может снова измениться. Жителям первый двух очередей придется парковаться вдоль дороги или на перехватывающей парковке, которую планируют построить за торговым центром "Сказка" через дорогу от новостройки.
!["Городские Истории": когда метро действительно рядом - Фото 16]()
Котлованные работы второй очереди. На заднем плане – школа !["Городские Истории": когда метро действительно рядом - Фото 17]()
Вторая очередь включает три дома и детский сад !["Городские Истории": когда метро действительно рядом - Фото 18]()
Сдача первой очереди запланирована на 2 квартал 2020 года !["Городские Истории": когда метро действительно рядом - Фото 19]()
Все строения на площадке будут снесены под третью очередь !["Городские Истории": когда метро действительно рядом - Фото 20]()
Паспорт нового дома !["Городские Истории": когда метро действительно рядом - Фото 21]()
Без балконов, но с кладовыми и колясочными
Все квартиры в первой очереди "Городских Историй" сдаются без отделки и со свободной планировкой. Вместо стен на полу в один ряд будет выложен кирпич. Разводку электрики и стяжку пола придется делать самостоятельно. Поэтому заявленная высота потолка в 2,9 м после ремонта превратится в 2,6-2,7 м с учетом заливки пола и установки натяжных потолков. Зато стеклопакет вряд ли придется менять: новоселы получат окна от фирмы BRUSBOX. Это российская компания, работающий с 2004 года. О производителе входных дверей ничего не известно. Для кондиционеров на фасадах здания установят специальные корзины, трассу под коммуникации подготовит сам застройщик.
Одна из особенностей планировок – это отсутствие привычных балконов. На мой вопрос, где же тогда хранить все очень нужные, но редко используемые вещи, менеджер предложил воспользоваться колясочными комнатами в подъездах. В перспективе в продажу выйдут кладовые на минус первом этаже дома. Однако ни площади, ни цены пока неизвестны. Хотя крайне сомнительно, что кладовых хватит на тысячу квартир. С учетом весьма компактных площадей многие новоселы "Городских Историй" вынужденно станут адептами минимализма.
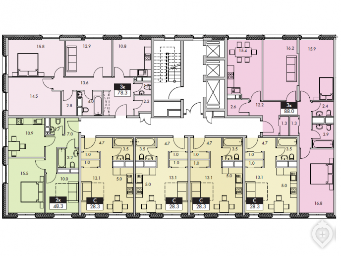
Отсутствие балконов застройщик компенсировал разнообразными планировками. Площадь жилья варьируется от 28 кв. м для студий до 88 квадратов для трёхкомнатных лотов. Причем на выбор представлены квартиры как классической планировки, так и евроформата с объединенной кухней-гостиной площадью 15-16 кв. м. На каждом этаже запроектированы по 5-7 квартир, поэтому очередь к лифтам вряд ли станет проблемой – жителям будут доступны два пассажирских и один грузовой лифт фирмы Kleemann Lift.
!["Городские Истории": когда метро действительно рядом - Фото 22]()
Дом без балконов !["Городские Истории": когда метро действительно рядом - Фото 23]()
Для каждой квартиры установлена корзина под кондиционер !["Городские Истории": когда метро действительно рядом - Фото 24]()
Корзины отличаются по форме и цвету в зависимости от секции !["Городские Истории": когда метро действительно рядом - Фото 25]()
Типичный этаж !["Городские Истории": когда метро действительно рядом - Фото 26]()
На лестничной клетке по 6-7 квартир !["Городские Истории": когда метро действительно рядом - Фото 27]()
Стеклопакеты от фирмы BRUSBOX
Стоимость
Комплекс "Городские Истории" вышел в продажу в октябре 2018 года, и к началу лета в первой очереди продано уже 85% предложения. Причем застройщик выводит квартиры пулами, благодаря чему даже сегодня можно купить как студии, так и трешки.
Минимальный бюджет покупки студии начинается от 4,47 млн рублей за 28,3 кв. м. Причем все студии имеют два окна, а значит, при желании можно поставить перегородку и получить два отдельных помещения с естественным освещением. Актуальная опция для тех, кто живет не один, но не может позволить себе однокомнатную квартиру.
Стоимость самой бюджетной однушки начинается уже от 5,4 млн рублей за 37,7 кв. м Несмотря на скромную площадь, планировка оказалось удачной. В коридоре выделена ниша под шкаф для верхней одежды, а в единственной спальне предусмотрена встроенная гардеробная.
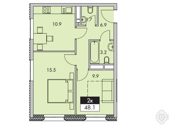
Самая доступная двухкомнатная квартира обойдётся в 6,38 млн рублей за 48,1 кв. м. Так же, как и студия, она имеет увеличенное количество окон – всего их четыре. Стоит отметить наличие двух санузлов. При площади до 50 квадратов девелоперы, как правило, проектируют только одну ванную комнату.
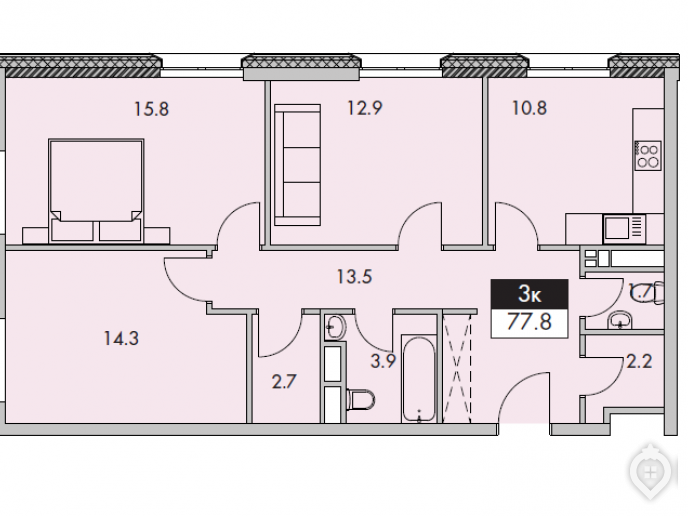
Трёхкомнатные квартиры в проекте доступны в бюджете от 8,73 млн рублей за 77,8 кв. м. В отличие от предыдущих вариантов, здесь появляется небольшая гардеробная или кладовая комната площадью 2,7 кв. м. Правда, площадь кухни маловата – всего 10,8 кв. м, что для большой семьи вряд ли удобно.
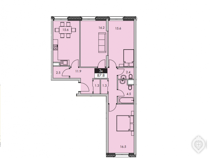
Если позволяют средства, можно обратить внимание на самую просторную трехкомнатную квартиру площадью 87,8 квадратов с отдельной кухней-гостиной в 15,6 кв. м, тремя спальнями, санузлом, ванной комнатой и тремя небольшими гардеробными. Минимальная стоимость такого лота начинается от 9,75 млн рублей. Что интересно – в первой очереди проекта осталось всего два типа трешек, поэтому выбирать семейным клиентам особо не из чего.
ЖК "Городские Истории" выигрывает по стоимости у конкурентов. Средняя цена квадрата в проекте составляет около 120 тыс. рублей. Для сравнения – в соседних ЖК "Переделкино Ближнее" и "Рассказово" стоимость равна 135 тыс. рублей за кв. м.
!["Городские Истории": когда метро действительно рядом - Фото 28]()
Студия с двумя окнами от 4,47 млн рублей !["Городские Истории": когда метро действительно рядом - Фото 29]()
Однокомнатная квартира с гардеробной нишей от 5,4 млн рублей !["Городские Истории": когда метро действительно рядом - Фото 30]()
Однокомнатная квартира с кухней-гостиной от 5,97 млн рублей !["Городские Истории": когда метро действительно рядом - Фото 31]()
Двухкомнатная квартира с двумя санузлами от 6,38 млн рублей !["Городские Истории": когда метро действительно рядом - Фото 32]()
Двухкомнатная квартира с двумя гардеробными от 7,5 млн рублей !["Городские Истории": когда метро действительно рядом - Фото 33]()
Трехкомнатная квартира с небольшой кухней от 8,73 млн рублей !["Городские Истории": когда метро действительно рядом - Фото 34]()
Трехкомнатная квартира с кухней-гостиной от 9,75 млн рублей
Окружение и инфраструктура
Единственный детский сад проекта будет построен в рамках второй очереди "Городских Историй". Дошкольное учреждение на 225 малышей запланировано муниципальным, однако точные сроки его строительства неизвестны. Поэтому семейные покупатели первой очереди столкнутся с дефицитом мест в детских садах района. Несмотря на то, что в соседнем комплексе "Переделкино Ближнее", где уже побывал тайный покупатель, работают четыре детских сада, мест катастрофически не хватает. Аналогичная ситуация и с единственной школой №1788, в которой дети учатся в две смены.
Ближайшие детская и взрослая поликлиники № 132 и 212 расположены в 15 минутах пешком от "Городских Историй". В перспективе жители смогут пользоваться инфраструктурой соседнего комплекса, где проект планировки предусматривает собственную поликлинику.
Куда лучше обстоит ситуация со спортивной составляющей района. В десяти минутах ходьбы открыт фитнес-клуб X-Fit с собственным бассейном, наполненным морской водой. Любители прогулок на свежем воздухе оценят наличие в 15 минутах от дома благоустроенного парка "Рассказовка" со спортивными уличными тренажерами и детскими площадками. Причем прогулку можно совместить с продуктовым шоппингом: по другую сторону от парка расположен крупный гипермаркет SELGROS Cash&Carry. Через дорогу от проекта в торговом центре "Сказка" откроется "Перекресток". В пешей доступности уже работают магазины "Пятерочка", "Мираторг" и "Магнит".
!["Городские Истории": когда метро действительно рядом - Фото 35]()
Школа № 1788 !["Городские Истории": когда метро действительно рядом - Фото 36]()
В торговом центре через дорогу откроется "Перекресток" !["Городские Истории": когда метро действительно рядом - Фото 37]()
Строящийся торговый центр !["Городские Истории": когда метро действительно рядом - Фото 38]()
Торговый центр планируют сдать уже в 2019 году !["Городские Истории": когда метро действительно рядом - Фото 39]()
Круглосуточный магазин в пяти минутах !["Городские Истории": когда метро действительно рядом - Фото 40]()
Ближайший детский сад !["Городские Истории": когда метро действительно рядом - Фото 41]()
До парка "Рассказовка" – всего 15 минут
Без дополнительных платежей и скрытых комиссий
Комплекс "Городские Истории" продают три агентства недвижимости – цены и условия покупки во всех компаниях одинаковы, поэтому можно выбирать любое из них. На сегодняшний день посетителей встречают в стационарных офисах продаж – временно возведенных вагончиках рядом со станций метро "Рассказовка". Одновременно завершается строительство основного офиса, куда в дальнейшем переедут агентства недвижимости.
Посетителей ждут каждый день с 9.00 до 21.00. Причем записываться заранее не нужно – консультация проходит в порядке живой очереди. Однако, если вам нужно конкретное время, можно "зарезервировать" менеджера отдела продаж. Мне такая опция не понадобилась. Так как агентств недвижимости три, с большой вероятностью можно найти свободного специалиста хотя бы в одном из них. Для удобства предусмотрена небольшая зона ожидания с креслами. Оставить автомобиль можно на парковке со шлагбаумом.
Во временном офисе пока нет 3D макета проекта: приходится довольствоваться буклетами и видом на строящуюся первую очередь. Посещение площадки запрещено, так как идут строительные работы, хотя визуально дом почти готов.
Проект реализуется по 214-ФЗ с заключением договора долевого участия. Понравившуюся квартиру можно забронировать на 5-10 дней, в зависимости от того, понадобится ли клиенту ипотека. Стоимость бронирования – 1% от цены выбранной квартиры. Эта сумма входит в общую цену. Причем, если передумать, то внесенный платеж будет возвращен полностью.
!["Городские Истории": когда метро действительно рядом - Фото 42]()
Посетителей ждут в офисах продаж с общей парковкой !["Городские Истории": когда метро действительно рядом - Фото 43]()
Менеджеры отдела продаж работают с 9.00 до 21.00 !["Городские Истории": когда метро действительно рядом - Фото 44]()
Найти офис продаж просто: такой вид открывается при выходе из метро !["Городские Истории": когда метро действительно рядом - Фото 45]()
Основной офис продаж напротив первой очереди откроется летом 2019 года
Ипотека без первого взноса и ставка от 6% годовых
Подать заявку в банк на получение ипотеки можно через менеджера отдела продаж. Документы отправляются по электронной почте. Проект "Городские Истории" аккредитован в 18 банках. Минимальная ставка по ипотеке начинается от 6% по программе "Ипотека с государственной поддержкой для семей с детьми". Такая низкая ставка актуальна для покупателей, у которых после 1 января 2018 года родился второй/третий и следующий ребенок. Срок кредита ограничен 30 годами. На стандартных же условиях ставка начинается от 8,9% годовых в "Промсвязьбанке". Покупатели также могут воспользоваться ипотекой без первого взноса, но ставка в таком случае составит как минимум 11,4%.
Застройщик предлагает альтернативный способ взаиморасчета – беспроцентную рассрочку на 6-12 месяцев при взносе 50% или 70% от стоимости квартиры. Однако ипотека может быть все же выгоднее, поскольку покупатель получает скидку 5%.
- 4/5транспорт
- 3/5экология
- 3/5инфраструктура
- 3/5цена/качество













































Добавить отзыв