Проект нельзя назвать амбициозным: ни яркой рекламы, ни именитого застройщика. К завершению строительства 1 корпуса в продаже остаётся ещё 30% квартир - от студий до трёхкомнатных. Из обзора тайного покупателя узнаем о деталях проекта, сроках строительства и заводе, что стоит в 60 метрах.
Транспортная доступность
Посёлок городского типа Андреевка расположен между Пятницким шоссе и Зеленоградом. От МКАДа 20 км. Можно доехать и по Ленинградке, но тогда придётся насквозь пересечь Зеленоград.
Что Пятницкое, что Ленинградское шоссе известны пробками в час пик. Наиболее надёжный способ вовремя добраться из Андреевки до Москвы - это электричка. Со станции "Крюково" поезд со всеми остановками идёт 1 час. Экспресс "Ласточка" долетает до Ленинградского вокзала за 40 минут. Но стоит проезд на скоростном составе дороже, разовый билет обойдётся в 180 рублей вместо 110.
От станции "Крюково" ЖК "Андреевка" находится в 3 км. На автобусах 319, 357, 495, 497 можно доехать за 20 минут. Из Зеленограда, что через дорогу от Андреевки, также ходит транспорт к станциям метро "Пятницкое шоссе" и "Тушинская".
Если говорить о перспективах развития транспортной доступности, то они есть. Схема прокладки ветки метрополитена в Зеленоград была разработана ещё в советское время. Тоннель должен пройти вдоль Ленинградского шоссе и Панфиловского проспекта, на территории Зеленограда появится четыре станции. Задумка утверждена генпланом развития Москвы, но сроки строительства не называются.
Куда более понятная перспектива с Московским Центральным диаметром. Из Зеленограда после 2025 года будут уходить поезда в сторону Раменского и Подольска с интервалом 5-15 минут. Сделать пересадку на метро или МЦК можно будет в Москве.
![ЖК "Андреевка": мегаполис подошёл к деревне - Фото 1]()
Ж/д станция "Крюково" находится в 3 км ![ЖК "Андреевка": мегаполис подошёл к деревне - Фото 2]()
Обычная электричка до Ленинградского вокзала идёт 1 час, "Ласточка" - 40 минут ![ЖК "Андреевка": мегаполис подошёл к деревне - Фото 3]()
Это улица Андреевка, по которой проходит граница административных границ Зеленограда ![ЖК "Андреевка": мегаполис подошёл к деревне - Фото 4]()
На этом перекрёстке нужно повернуть на Жилинскую улицу, которая ведёт в Андреевку ![ЖК "Андреевка": мегаполис подошёл к деревне - Фото 5]()
Из Андреевки до станции "Крюково" ходит общественный транспорт
Идея и сроки проекта
Первая высотка "Андреевки" хорошо видна с Жилинской улицы - центральной в посёлке. 17-этажное здание окружают частные дома. У кого-то здесь дачи, а некоторые жильцы перебрались насовсем. Застройщик будет сносить малоэтажные постройки в этом квартале как раз до Жилинской улицы. Здесь появятся 4 многоквартирных дома.
Дома монолитные, внешние стены покроет система вентилируемого фасада с использованием керамогранитной плитки ярких оттенков. Остекление балконов - холодное. В нижнюю часть ограждения вставляют непрозрачное закалённое эмалированное стекло стемалит.
Вход в подъезды возможен с обеих сторон дома. Высота потолков в холлах 4,25 м. Предусмотрено место для консьержа и колясочные комнаты. Застройщик устанавливает лифты китайской компании SJEC: в каждом из подъездов будет один пассажирский и один грузопассажирский. Предусмотрен мусоропровод.
В 1 корпусе четыре подъезда и 560 квартир. Проектной декларации на последующие корпуса пока нет, так что общее количество квартир в ЖК "Андреевка" приблизительное - около 2 тысяч. Подземный паркинг на 600 машиномест планируется только под последним корпусом, и будет это не скоро. Прилегающая территория комплекса просторной не выглядит, поэтому проблемы с парковкой прогнозируемы. Машину можно будет оставить только на дорожке вокруг дома.
Социальной нагрузкой застройщик не наделён, поэтому в ЖК "Андреевка" будет только частный детский сад на 60 воспитанников. Детское учреждение займёт коммерческое помещение в одном из домов. В соседних подъездах будут расположены магазины и точки бытовых услуг.
О сроках строительства в офисе продаж говорят осторожно. Застройщик будет возводить последующие корпуса на деньги, которые выручит с продажи квартир в предыдущем. Параллельно ещё нужно решать вопросы с собственниками земельных участков, где должны вырасти многоэтажки. Им предлагают квартиры в ЖК "Андреевка", но некоторые старожилы, поделился менеджер, оценивают свой огород по ценам недвижимости в центре Москвы. Приходится искать компромисс.
Строительство 1 корпуса планируется завершить к концу 2018 года. В феврале-марте 2019 года застройщик будет выдавать ключи. Тогда же начнётся закладка фундамента второй многоэтажки - корпуса 4, что возведут вдоль Староандреевской улицы.
![ЖК "Андреевка": мегаполис подошёл к деревне - Фото 6]()
ЖК "Андреевка" находится в окружении частных домов ![ЖК "Андреевка": мегаполис подошёл к деревне - Фото 7]()
Малоэтажные постройки должны пойти под снос в ближайшие годы ![ЖК "Андреевка": мегаполис подошёл к деревне - Фото 8]()
С собственниками участков приходится искать компромисс, так не все рады переселяться из частного сектора в многоквартирный дом ![ЖК "Андреевка": мегаполис подошёл к деревне - Фото 9]()
В ЖК "Андреевка" строят монолитные дома ![ЖК "Андреевка": мегаполис подошёл к деревне - Фото 10]()
Стены утеплены, на фото видно систему вентилируемого фасада ![ЖК "Андреевка": мегаполис подошёл к деревне - Фото 11]()
Для облицовки используется керамогранитная плитка ![ЖК "Андреевка": мегаполис подошёл к деревне - Фото 12]()
Остекление лоджий будет холодным ![ЖК "Андреевка": мегаполис подошёл к деревне - Фото 13]()
1 корпус "Андреевки" сдадут до конца 2018 года
Экскурсия на стройплощадку
Монтаж системы вентилируемого фасада завершён на 80%. Коммуникации проведены во всём здании и выведены на угол дома. ЖК "Андреевка" ждёт своей очереди на подключение к нитке Мосводоканала. По словам менеджера продаж, в самой Андреевке вода плохая - ржавого цвета. Поэтому было принято решение подключаться к московскому водопроводу. Технически такая возможность существует.
К концу сентября на стройку должны привезти оборудование для газовой котельной. Она будет расположена на 18 техническом этаже дома. Оттуда горячая вода поступит в трубы и радиаторы отопления в квартирах. В квартирах газа не будет.
В местах общего пользования идёт черновая отделка, по всему дому уже сделана стяжка пола. По потолку идёт блестящий короб системы дымоудаления, который вскоре закроют панелями подвесного потолка.
Считается, что в ЖК "Андреевка" продаются квартиры свободной планировки. Но конструкция дома такова, что здесь много монолитных перегородок. С ними придётся мириться и достраивать межкомнатные стены с учётом уже существующих несущих.
Получить представление об отделке, которую предлагает застройщик, можно только со слов менеджера продаж. Хотя и он отделки этой никогда не видел. Ни шоу-рума, ни демонстрационных квартир на стройплощадке пока нет. Есть только информация о том, что будет два варианта отделки - "Лайт" и "Стандарт" за 8 500 и 12 000 рублей/метр. Различаться они будут типом и стоимостью используемых материалов. В "Лайте", к примеру, на полу будет линолеум вместо ламината.
![ЖК "Андреевка": мегаполис подошёл к деревне - Фото 14]()
Система вентилируемого фасада готова примерно на 80% ![ЖК "Андреевка": мегаполис подошёл к деревне - Фото 15]()
Основные работы по коммуникация проведены ![ЖК "Андреевка": мегаполис подошёл к деревне - Фото 16]()
Окна поставлены во всём доме ![ЖК "Андреевка": мегаполис подошёл к деревне - Фото 17]()
Застройщик использует стеклопакеты KBE ![ЖК "Андреевка": мегаполис подошёл к деревне - Фото 18]()
Витражное остекление должны провести до конца сентября ![ЖК "Андреевка": мегаполис подошёл к деревне - Фото 19]()
В доме ведётся установка лифтов SJEC ![ЖК "Андреевка": мегаполис подошёл к деревне - Фото 20]()
Шланги отопления проходят по полу ![ЖК "Андреевка": мегаполис подошёл к деревне - Фото 21]()
Квартиры сдаются без межкомнатных стен ![ЖК "Андреевка": мегаполис подошёл к деревне - Фото 22]()
Исключение составляют монолитные несущие конструкции
Планировки и цены
Планировки в ЖК "Андреевка" без изысков, но свободное пространство оставляет простор для фантазии. Из двухкомнатной квартиры, к примеру, можно запросто сделать трёшку, если объединить кухню с гостиной. Самые интересные угловые квартиры площадью 80 кв. м были во второй секции, но их разобрали, как горячие пирожки.
Осенью 2018 года стоимость квадратного метра в студиях начинается от 66 тыс. рублей. Поэтому самая компактная квартира площадью 24,6 кв. м обойдётся в 1 509 тыс. рублей. Это вариант на невысоком этаже и без балкона. Разбег по площади в студиях маленький. Самая крупная квартира такого формата - это 26,4 кв. м. Купить можно за 1 740 тыс. рублей.
Оставшиеся в 1 корпусе однушки имеют площадь от 35 до 50 кв. м. Цена стартует с 2 800 тыс. рублей. Поскольку планировки в доме свободные, стену можно поставить, где хочется. Таким образом площадь кухни и комнаты остаётся на усмотрение владельца. Распашной вариант однокомнатной квартиры с двумя балконами продаётся за 3 млн рублей, площадь 49 кв. м.
В двушках квадратный метр стоит 53 тыс. рублей, площадь варьируется от 69 до 77 кв. м. Самая небольшая продаётся за 3 660 тыс. рублей, и это квартира распашной планировки. У двушек-линеек метраж 75 кв. м, а цена 4 млн рублей.
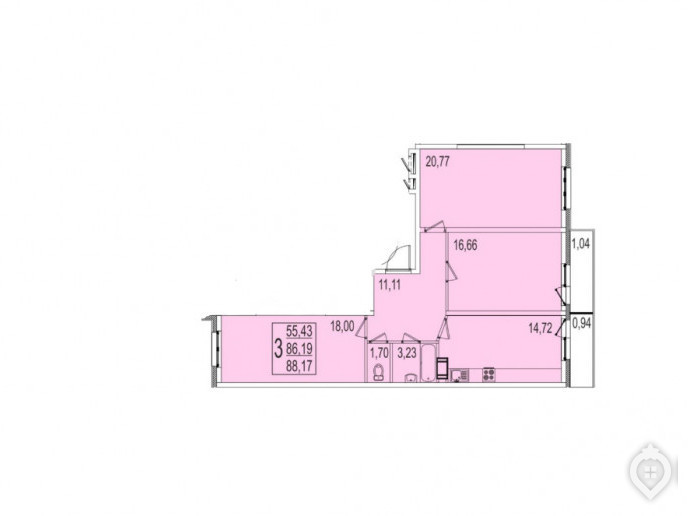
Трёхкомнатные квартиры хорошо разобрали, да и было их в доме немного. В данный момент осталось одно предложение на втором этаже. Квартира площадью 88 кв. м выставлена на продажу за 4 205 тыс. рублей.
![ЖК "Андреевка": мегаполис подошёл к деревне - Фото 23]()
Стоимость самой маленькой студии 1 509 тыс. рублей ![ЖК "Андреевка": мегаполис подошёл к деревне - Фото 24]()
Похожая квартира с балконом стоит 1 740 тыс. рублей ![ЖК "Андреевка": мегаполис подошёл к деревне - Фото 25]()
Как минимум в 2 800 тыс. рублей обойдётся однушка ![ЖК "Андреевка": мегаполис подошёл к деревне - Фото 26]()
Однушка-распашонка стоит 3 млн рублей ![ЖК "Андреевка": мегаполис подошёл к деревне - Фото 27]()
За 3 660 тыс. рублей продают двухкомнатную распашонку ![ЖК "Андреевка": мегаполис подошёл к деревне - Фото 28]()
Двушка линейной планировки есть за 4 млн рублей ![ЖК "Андреевка": мегаполис подошёл к деревне - Фото 29]()
Последняя в комплексе трёшка стоит 4 205 тыс. рублей
Застройщик и условия продаж
Застройщиком ЖК "Андреевка" выступает ООО "Кранека". Компания существует с 2003 года и зарегистрирована на Британских Виргинских островах. До 2015 фирма занималась только консалтингом. Жилой комплекс в Андреевке - первый опыт "Кранеки" в сфере недвижимости. Информации о компании крайне мало. На форумах потенциальные покупатели и дольщики жалуются, что ни один телефон, указанный в официальных документах, не отвечает. Выйти напрямую на застройщика пока никому не удалось.
За продажу квартир в ЖК "Андреевка" отвечает агентство "НДВ-Недвижимость". В строительном вагончике возле ворот на площадку работает один менеджер. Он встретит, расскажет о проекте, сводит посмотреть квартиры, что есть в наличии.
Самый доступный кредит на покупку квартиры в Андреевке предлагают Сбербанк, "Россельхозбанк", ДельтаКредит, Возрождение и Совкомбанк. При первоначальном взносе от 10 до 15% процентная ставка может быть 6% годовых. Жилой комплекс аккредитован Промсвязьбанком, СМП-банком, Уралсиб и другими. Процентные ставки, в основном, не превышают 10%. Даже в СНГБ, который выдаёт кредитные средства при нулевом первоначальном взносе, процент по ипотеке составляет 9%. Рассрочка в ЖК "Андреевка" до окончания строительства, если успеть оформить сделку. Ведь дом сдают госкомиссии уже через 2-3 месяца.
![ЖК "Андреевка": мегаполис подошёл к деревне - Фото 30]()
Офис продаж находится в небольшом вагончике возле стройплощадки ![ЖК "Андреевка": мегаполис подошёл к деревне - Фото 31]()
Здесь работает только один менеджер ![ЖК "Андреевка": мегаполис подошёл к деревне - Фото 32]()
Из удобств - кулер с водой, туалет не работает ![ЖК "Андреевка": мегаполис подошёл к деревне - Фото 33]()
Каски на принтере - для клиентов, которые идут на показ
Инфраструктура и окружение
С внешней стороны 1 корпуса вид пока останется на малоэтажный посёлок, на эти дома застройщик не претендует. Из окон, что выходят во двор, будет ещё много лет видно стройку, а затем новые 17-этажки.
На противоположной стороне Староандреевской улицы стоит завод НПО "Стеклопластик". Расстояние от стен корпуса до забора предприятия составляет 65 метров. Завод действующий. Здесь производят антикоррозийные покрытия и строительную теплоизоляцию, высокотемпературную защиту, дисперсные наполнители и многое другое. Особенного влияния на экологию предприятие не оказывает, так как оборудовано новыми станками.
Чтобы попасть в детский сад и школу, территорию завода придётся обойти, это займёт минут 10-15. Оба детских учреждения расположены в километре от ЖК "Андреевка". На противоположной стороне Жилинской улицы находится детская поликлиника.
До "Ашана" можно дойти пешком, здесь всего 800 м. По дороге к нему встречаются почтовое отделение, банки, детская библиотека и сетевые супермаркеты "Дикси", "Пятёрочка". Торгово-развлекательный центр с кинотеатром есть возле станции "Крюково".
![ЖК "Андреевка": мегаполис подошёл к деревне - Фото 34]()
Завод НПО "Стеклопластик" на противопложной стороне Староандреевской улицы ![ЖК "Андреевка": мегаполис подошёл к деревне - Фото 35]()
До 1 корпуса 65 метров ![ЖК "Андреевка": мегаполис подошёл к деревне - Фото 36]()
Чтобы попасть в ближайший детский сад, надо обойти территорию завода, идти минут 15 ![ЖК "Андреевка": мегаполис подошёл к деревне - Фото 37]()
Рядом находится и Андреевская школа ![ЖК "Андреевка": мегаполис подошёл к деревне - Фото 38]()
Детская поликлиника расположена на Жилинской улице ![ЖК "Андреевка": мегаполис подошёл к деревне - Фото 39]()
В 1 км находится "Ашан" ![ЖК "Андреевка": мегаполис подошёл к деревне - Фото 40]()
Внутри гипермаркета ![ЖК "Андреевка": мегаполис подошёл к деревне - Фото 41]()
В районе много сетевых супермаркетов ![ЖК "Андреевка": мегаполис подошёл к деревне - Фото 42]()
Михайловский пруд в 15 мкр Зеленограда находится в 15 минутах ходьбы ![ЖК "Андреевка": мегаполис подошёл к деревне - Фото 43]()
Возле станции "Крюково" работает торговый центр "Иридиум"
- 3/5транспорт
- 3/5экология
- 3/5инфраструктура
- 3/5цена/качество











































Добавить отзыв