 
 Строить миллионами: о застройщике
Группа компаний "Мортон" основана Александром Ручьевым в 1994 году. Изначально она занималась ремонтом, а сегодня входит в тройку крупнейших застройщиков страны и занимает место в первой сотне рейтинга Forbes "200 крупнейших непубличных компаний России". Так, только в 2015 году группа ввела в эксплуатацию около 1,2 млн кв.м. Официальный сайт заявляет, что 17 тыс. семей каждый год празднуют новоселье в микрорайонах "Мортона", а текущий портфель фирмы равен 8,3 млн кв.м.
Стремительное преображение компании произошло во время кризиса 2008-2009 годов. К этому времени она занималась не только ремонтом, но и девелоперскими проектами, хотя масштабностью не отличалась. Однако в кризис группа взяла кредиты и вложилась в земельный банк: большинство конкурентов не смогли или не захотели это сделать. Как только экономическая ситуация улучшилась, "Мортон" вышел на рынок с готовыми площадками и выиграл на волне отложенного спроса.
Сегодня каждая четвертая новостройка в Москве и Московской области возводится "Мортоном". "Национальное рейтинговое агентство" подтвердило рейтинг застройщика на уровне "А+": это означает, что финансовое состояние компании хорошее, уровень кредитных рисков низок, группа способна выполнять свои обязательства. В числе ее крупных проектов микрорайон "Солнцево-Парк" площадью 480 тыс. кв. м жилья, "Бутово" объемом 370 тыс. кв. м, "Катюшки", размер которых составляет 320 тыс. кв. м. Жилье строится в том числе по государственным контрактам.
Однако это не означает, что "Мортон" всегда возводит объекты вовремя. Согласно сайту "Стройконтроль" средняя задержка сдачи домов составляет 5 месяцев. Максимальный срок задержки был у микрорайона "1 Мая", который находится в Балашихе. Покупателям пришлось ждать свое жилье 21 месяц.
Большинство домов все же сдаются в срок. На это работает собственное производство "Мортона" – ДСК "Град", который был построен вместе с РОСНАНО в Наро-Фоминске. Здесь производятся сборные железобетонные конструкции. ДСК позволяет сооружать разные проекты: от детских садов до промышленных зданий. Он не "заточен" под отдельные серии домов и может перестроиться под любой архитектурный проект. Его проектная мощность – это 450 тыс. кв. м жилья в год, что в 2,5 раза больше, чем возможности любого другого ДСК в России.
На ДСК "Град" используются новые технологии. Например, изготавливают цветной бетон: фасады из такого материала должны "оживить" облик спальных районов. А при производстве наружных трехслойных стен применяют гибкие связи из стеклопластика – они дают более надежное соединение внутреннего и наружного слоев бетона. Все процессы автоматизированы, что сводит к минимуму человеческий фактор. Благодаря этому "Мортон" заявляет, что аналогов ДСК "Град" в стране нет.
Между заводом и лесом
ЖК "Нахабино" от "Мортон" – это всего лишь одно жилое здание на улице Красноармейской, 57. В будущем оно станет 17-этажным, но уже сейчас дом выше всех окружающих его строений. Дело в том, что Нахабино к северу от железной дороги представляет собой, в основном, частный сектор, панельные пятиэтажки и "хрущевки". Здесь много зелени и, по сравнению с Москвой, очень тихо. Люди оценивают такие районы по-разному, в зависимости от темперамента. Кто-то скажет, что это отличное место для побега от столичной суеты, кто-то – что здесь ничего не происходит.
	Застройщик называет Нахабино "одним из самых заповедных мест", где "отсутствуют вредные производства" и утверждает, что оно понравится тем, кто ищет "близости к природе". С одной стороны, недалеко от ЖК есть речка Нахабинка и можно дойти до лесопарка пешком. С другой, когда идешь к дому от платформы Нахабино, видишь промзону и предприятие ДСК "Нахабино", которое производит изделия из цемента и бетона, то мысли о безупречной экологии поселка уж точно в голову не приходят.
 
Полчаса до метро
 
Добраться до ЖК проще на общественном транспорте, чем на личном. Волоколамское шоссе загружено: ситуация с пробками здесь настолько же непростая, как в любом другом районе ближнего Подмосковья.
Чтобы улучшить дорожную ситуацию, на 19-м км автодороги "ММК – Павловская Слобода – Нахабино" строится путепровод. По плану работы закончатся в 4-м квартале 2017 года.
Сегодня же, по словам менеджера, автомобилисты могут доехать от ЖК "Нахабино" до Москвы примерно за 20 минут, при условии свободных дорог.
Те, кто пользуется общественным транспортом, обычно добираются в столицу на электричке. В центр, до Рижского вокзала, она идет от 41 до 52 минут. До платформы Тушино и расположенной рядом станции метро "Тушинская" электричка довозит за 19-25 минут. Но к этому времени нужно прибавить дорогу от дома до платформы "Нахабино" – примерно 10 минут пешком. Путь станет короче, если вы сядете на маршрутное такси №5, которое ходит от станции до улицы Красноармейская, 63 с интервалом раз в 5-10 минут. Таким образом до метро можно доехать за 30-35 минут: учитывая, что объект расположен в 17 км от МКАД, транспортную доступность можно оценить со знаком плюс.
Альтернативный вариант – маршрутки и автобусы до метро "Тушинской" и "Митино", которые ходят от платформы Нахабино.
 
 
![ЖК "Нахабино": дешевле рынка - Фото 1]() - Путь пешком до ЖК "Нахабино" 
![ЖК "Нахабино": дешевле рынка - Фото 2]() - Автомобильный маршрут до комплекса 
Стройка движется
На бумаге срок сдачи ЖК "Нахабино" – 2-й квартал 2017 года, а на 4-й квартал запланирована выдача ключей. И визуально степень готовность дома можно оценить как высокую.
В момент моего появления строительные работы идут активно: в разгаре кладка; работают сварщики. Однако в интернете встречаются сообщения, что зимой этого года стройка стояла. Люди находили самые разные объяснения – например, что "Мортон" менял подрядчика. А поскольку менеджеры застройщика не могли объяснить, что происходит, и просто писали "все сдадим вовремя", слухов становилось все больше. Весной, когда застройщик стал регулярно выкладывать в сеть фотографии с описаниями работ, версии о долгострое перестали появляться.
Спрашиваю у менеджера на объекте, почему строительство было заморожено. Он не слишком многословен, но говорит, что "подрядчик остался тот же и работает он добросовестно". По его словам, у "Мортона" более 40 объектов, и периодически "подрядчики выдергиваются с более успешных объектов на менее успешные, те, которые требуют дополнительных усилий". Ситуацию называет "рабочей" и утверждает, что дом сдадут вовремя.
 
 
![ЖК "Нахабино": дешевле рынка - Фото 3]() - Рядом с ЖК "Нахабино" много зеленых насаждений 
![ЖК "Нахабино": дешевле рынка - Фото 4]() - Информация об объекте 
![ЖК "Нахабино": дешевле рынка - Фото 5]() - Так выглядит пункт отдела продаж на месте стройки 
![ЖК "Нахабино": дешевле рынка - Фото 6]() - Общая площадь ЖК "Нахабино" - 24 тыс. кв.м 
![ЖК "Нахабино": дешевле рынка - Фото 7]() - Готовность дома на уровне 10-11 этажей 
 
 
Продажи и планировки
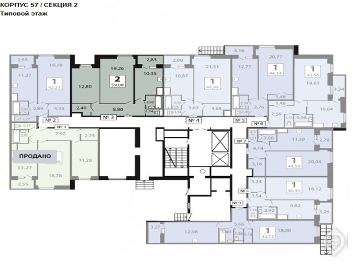
Сам дом – кирпично-монолитный, трехсекционный. В нем 525 квартир: одно-, двух- и трехкомнатных. По словам менеджера, люди активно покупают жилье: например, 2-комнатные остались только на первом этаже. Есть еще одна двушка на втором, но она продается по переуступке прав собственности от физического лица: это означает, что жилье когда-то купил клиент-инвестор, а сегодня перепродает. Его цена выше, чем у остальных – 4 млн 66 тыс. рублей.
Площадь составляет от 37,90 до 84,77 кв. м. Причем чем выше этаж, тем меньше площадь квартиры. Санузлы раздельные: их минимальная квадратура – 1,14 и 2,92 кв.м. В подъездах будут два лифта – грузовой и пассажирский.
Чтобы посмотреть, как квартиры выглядят в реальности, идем на объект. Менеджер ставит перед фактом: фотографировать нельзя, видео снимать нельзя, замеры делать нельзя, и вообще – ничего не трогать. Поэтому фотографий стройки немного: за исключением фасада здания, удалось сделать только пару кадров первого этажа и один снимок строительных работ.
 
 
![ЖК "Нахабино": дешевле рынка - Фото 8]() - Первый этаж дома 
![ЖК "Нахабино": дешевле рынка - Фото 9]() - 2-комнатные квартиры от застройщика остались только на 1-м этаже 
![ЖК "Нахабино": дешевле рынка - Фото 10]() - Большинство квартир в доме 1-комнатные: их 350 
![ЖК "Нахабино": дешевле рынка - Фото 11]() - По плану строительство завершится в июне 2017 года 
![ЖК "Нахабино": дешевле рынка - Фото 12]() - Планировка типового этажа 
![ЖК "Нахабино": дешевле рынка - Фото 13]() - 3-комнатная по цене 5,1 млн рублей 
![ЖК "Нахабино": дешевле рынка - Фото 14]() - 1-комнатная по цене 2,8 млн рублей рядом с лестничной площадкой 
![ЖК "Нахабино": дешевле рынка - Фото 15]() - 2-комнатная по цене 3,9 млн рублей 
![ЖК "Нахабино": дешевле рынка - Фото 16]() - Строительная площадка ЖК 
 
 
Что в квартире?
	Надеваем каски и идем на стройку – смотреть квартиры на первом и втором этажах. Внутри еще идут строительные работы: везде лежит инвентарь, стоят ведра с раствором. В одном из помещений, мимо которых мы проходим, проводится монтаж межкомнатных перегородок. Менеджер говорит, что они возводятся до потолка, а сами потолки стандартные – 2,8 м.
 
Жилье сдается с черновой отделкой. В просмотренных квартирах полы без особых неровностей и перепадов, но с отпечатками обуви. Спрашиваю о стяжке – выясняется, что застройщик ее не делает.
Коммуникации пока не проведены, однако по словам консультанта, разрешения на них получены и проблем при вводе дома в эксплуатацию не должно возникнуть. В квартиру подведут электричество и установят щит; сделают выводы на трубы водоснабжения; поставят счетчики; проложат канализационные трубы. Сделают разводку отопления, и под каждым окном будут радиаторы с терморегуляторами. Проведут остекление лоджии и окон: обещают установить 2-камерные стеклопакеты с 5-камерным пластиковым профилем. Однако всего этого в квартирах пока нет, и оценить качество работ нельзя.
Застройщик обещает поставить инновационные стеклопакеты: менеджер говорит, что они уменьшат теплопотери зимой. По идее расходы на квартплату должны стать меньше, однако насколько, пока неизвестно. Такие стеклопакеты устанавливаются впервые, и точные цифры назвать сложно.
Дополнительную отделку можно заказать в компании "Мортон-Комфорт". По словам менеджера, фирма выполнит любой вид работ со скидкой в 5% для клиентов: это может быть "полный пакет" или частичная отделка. В среднем работы обойдутся в 10 тыс. рублей за квадратный метр. Позже я задала вопрос о стоимости отделки консультанту по телефону. Он сообщил, что цену мне озвучили неверно, и на самом деле она обойдется в 12,5 тыс. рублей за квадратный метр. Кто прав – вопрос открытый.
Ипотека, рассрочка, сделка
Согласно статистическим данным цены в ЖК "Нахабино" значительно ниже (на 26%), чем в среднем в этом районе.
Минимальная стоимость квартир составляет:
- 1-комнатная – от 2,6 млн рублей;
- 2-комнатная – от 3,4 млн рублей;
- 3-комнатная – от 4,8 млн рублей.
*Все цены указаны с учетом скидки 5,5% от компании "Мортон". Цифры действительны на май 2016 года.
Продажи идут по ДДУ, 214-ФЗ. Расходы на оформление составляют 15 тыс. рублей. Сделка проводится в московских офисах "Мортон". Забронировать квартиру можно бесплатно, но только на один день.
Если у вас не хватает средств, однако вы уверены, что в ближайшее время они появятся, можно зарезервировать жилье на месяц. Однако эта услуга уже не бесплатна. Для брони 1-комнатной квартиры нужно заплатить 10 тыс. рублей, для 2-комнатной – 15 тыс. рублей, для 3-комнатной – 20 тыс. рублей. И только 50% из суммы этого взноса зачтутся в стоимость квартиры. Вторые 50% уйдут "Мортону". Важно понимать: бронь квартиры на месяц не означает, что ее стоимость фиксируется: цена может и вырасти. Спрашиваю у менеджера: "Как ведут себя цены и можно ли ожидать их роста в обозримом будущем?" На это он отвечает, что изменятся, если будет установка сверху.
Стать обладателем квартиры в ЖК "Нахабино" можно и в рассрочку. Платежи нужно вносить ежемесячно, равными долями. При рассрочке до 12 месяцев и взносе от 70% на остаток долга каждый месяц начисляется 1%.
Для тех, кто желает оформить ипотечный кредит, вариантов достаточно. В числе банков, предлагающих эту услугу, Сбербанк, "Газпромбанк", ВТБ24 и т.д. Большинство из них требует первоначальный взнос от 20%. Однако "Металлинвестбанк" и "Возрождение" готовы выдать кредит уже при взносе в 10%. Процентная ставка у большинства банков составляет около 12%, но лучшая цифра у "Райффайзен" – от 7,5%. Такой низкой ставка будет только в первый год, а затем поднимется до 11,5%. Кроме того, есть военная ипотека.
Покупатели, которые берут кредит на квартиру от Сбербанка, получат скидку в 3%. Также клиент получит скидку в 5,5% от застройщика. Уточняю у менеджера, сколько продлится "сезон дисконта". "Пока скидки действуют, – говорит он. – Предпосылок для отмены нет".
По словам консультанта, компания "Мортон" периодически проводит для клиентов онлайн-семинары: как получить налоговый вычет, как использовать материнский капитал для приобретения недвижимости, как сэкономить на покупке жилья. Чтобы посмотреть их, нужно зарегистрироваться на официальном сайте.
Рядом с домом: инфраструктура
 
В каждом подъезде будет консьерж-служба. Застройщик благоустроит двор: высадит деревья, цветы; появятся беседки, площадки для детей с качелями и горками, две спортивные площадки.
О количестве машиномест менеджер говорит: "Сделаем максимально возможное, насколько получится. Будет парковка наземного типа как в Москве, совершенно бесплатная – приехал, встал, пошел домой". Однако мест на всех жильцов явно не хватит, пока по плану их только 30.
Через дорогу от ЖК "Нахабино" есть детский сад №41. Удобно – другой вопрос: будут ли в нем места? Чуть дальше находится школа №3.
На соседней улице Вокзальной когда-то работала фабрика игрушек, но сейчас ее место занимает технопарк, который служит "инкубатором" для бизнес-проектов и сдает помещения малым предприятиям.
Государственных больниц рядом нет. Однако в пяти минутах ходьбы, на Вокзальной улице, расположен частный лечебно-диагностический центр. Рядом с домом несколько магазинов "Дикси", киоски с продуктами и культурно-досуговый клуб "Мечта". Поблизости строится торгово-бытовой комплекс. "Все остальное, – говорит менеджер, – по другую сторону платформы". Инфраструктура южной части Нахабино, действительно, более развита: есть больницы, больше банковских отделений и торговых центров.
 
 
![ЖК "Нахабино": дешевле рынка - Фото 17]() - Школа №3, которая находится в трех минутах ходьбы от комплекса 
![ЖК "Нахабино": дешевле рынка - Фото 18]() - Гаражи рядом с ЖК "Нахабино" 
![ЖК "Нахабино": дешевле рынка - Фото 19]() - Лечебно-диагностический центр 
![ЖК "Нахабино": дешевле рынка - Фото 20]() - В 4-м квартале этого года, в 2 минутах ходьбы от дома, будет построен торгово-бытовой комплекс 
![ЖК "Нахабино": дешевле рынка - Фото 21]() - Клуб "Мечта" 
![ЖК "Нахабино": дешевле рынка - Фото 22]() - Детский сад №41 
- 2/5транспорт
- 5/5экология
- 3/5инфраструктура
- 4/5цена/качество






















Добавить отзыв