В послевоенные годы население Мытищ стало стремительно расти и к 80-м увеличилось в шесть раз по сравнению с концом 30-х. Естественно, населённый пункт попал в волну строительства хрущёвок. Панельные коробки возводились быстро, но так же быстро прожили свой век. Спустя 70 лет Мытищи строят заново. В монолитные многоэтажки переселяют жильцов из домов под снос, но значительная часть квартир идёт на продажу. Как проходит обновление городского облика, узнаем в обзоре ЖК "Отрадный".
Транспортная доступность
Мытищи — северо-восточный город-спутник Москвы. Обычная электричка с Ярославского вокзала сюда идёт полчаса, а экспресс 20 минут. До ЖК "Отрадный" можно добраться от метро "Медведково". Маршрутка №177 идёт до города полчаса. За 45 минут на 392-м автобусе можно добраться от метро "ВДНХ".
Часть корпусов "Отрадного" находятся в шаговой доступности от станции "Мытищи". Время в пути 10-20 минут. 8 и 9 корпуса стоят в отдалении, но рядом с ними есть автобусная остановка. Доехать на маршрутке можно за 5 минут.
До микрорайона Химгородок, где строится ЖК "Отрадный", по Ярославскому шоссе 5 км. Построена развязка с Олимпийским проспектом. Достойных альтернативных магистралей, связывающих новостройку с Москвой, нет. Путь по Волковскому шоссе вдвое длиннее.
Город Мытищи, хоть и не считается самым экологически чистым местом Подмосковья, с двух сторон окружен лесными массивами. С запада к границам населённого пункта подходит Пироговский лесопарк. С восточной стороны находится национальный парк "Лосиный остров". За полчаса пешком от комплекса можно дойти до любого из природных объектов.
![ЖК "Отрадный": обновление жилого фонда в Мытищах - Фото 1]()
ЖК "Отрадный" находится в 5 км от МКАДа ![ЖК "Отрадный": обновление жилого фонда в Мытищах - Фото 2]()
Мытищи соединяет со столицей железная дорога Ярославского направления ![ЖК "Отрадный": обновление жилого фонда в Мытищах - Фото 3]()
Электропоезд от Ярославского вокзала до Мытищ идёт 20-30 минут ![ЖК "Отрадный": обновление жилого фонда в Мытищах - Фото 4]()
От станции до новостройки можно дойти пешком или доехать на автобусе за 5 минут
О комплексе
К 2028 году компания "Инвест-строй" возведёт в Мытищах 11 корпусов. ЖК "Отрадный" представляет собой точечную застройку в районе Химгородок. У комплекса нет единой территории. Дома разбросаны по разным дворам и объединены только именем застройщика и названием проекта. К осени 2019 года доступна следующая информация:
- 1 корпус — многосекционный, 26 этажей, 792 квартиры;
- 9 корпус — одноподъездный, 26 этажей, 288 квартир;
- 10 корпус — двухподъездный, 26 этажей, 574 квартиры;
- 11 корпус — многосекционный, от 15 до 23 этажей, 828 квартир.
На придомовой территории расположены детские, спортивные площадки и парковочные карманы. В офисе продаж менеджер откровенно сказал, что мест на гостевой стоянке мало. В 1 корпусе, например, 792 квартиры, а вокруг него запроектировано 155 машиномест.
Предполагается, что жители будут оставлять транспорт вдоль улицы Академика Каргина или выкупать машиноместа в многоуровневых гаражах. Сколько их будет к концу проекта, на генплане не обозначено. Пока есть информация только по паркингам №1 и №3. Они пятиэтажные и вмещают по 308 автомобилей каждый.
В подъездах устанавливаются щербинские лифты EcoMaks. В каждом доме на первом этаже предусмотрено помещение для консьержа. Вопрос найма сотрудника, а также установки видеонаблюдения, решает управляющая компания совместно с жильцами. Колясочная комната есть только в 10 корпусе.
![ЖК "Отрадный": обновление жилого фонда в Мытищах - Фото 5]()
В рамках ЖК "Отрадный" планируется построить 11 корпусов ![ЖК "Отрадный": обновление жилого фонда в Мытищах - Фото 6]()
Высота домов от 15 до 26 этажей ![ЖК "Отрадный": обновление жилого фонда в Мытищах - Фото 7]()
Во дворах расположены детские и спортивные площадки ![ЖК "Отрадный": обновление жилого фонда в Мытищах - Фото 8]()
Предусмотрены парковочные карманы ![ЖК "Отрадный": обновление жилого фонда в Мытищах - Фото 9]()
Пятиэтажные паркинги вмещают по 308 автомобилей. Все иллюстрации застройщика
Ход строительства
Первым сдали 10 корпус. Разрешение на ввод в эксплуатацию было получено 11 июля 2019 года. На его примере видна внешняя отделка здания. Все корпуса имеют вентилируемый фасад. Наружные стены закрывают фиброцементные и керамогранитные плиты. Предусмотрены корзины под кондиционер. Каркас всех зданий монолитный, стены выложены из газобетонных блоков толщиной 20 см. Ещё 15 см занимает минераловатный утеплитель, только потом идёт система вентилируемого фасада.
Следующий на очереди корпус 11. Его планируют закончить к концу 2019 года, что на год раньше срока по проектной декларации. За 4 месяца до заселения дом выглядит фактически готовым. Активно ведутся работы по обустройству прилегающей территории: во дворе работает мелкая строительная техника, укладывают бордюр, делают дорожки и газоны.
9 корпус построен во всю высоту и утеплён. Идёт монтаж системы вентилируемого фасада и остекление здания. В 1 корпусе башенные краны работают на уровне 20 из 26 этажей. При этом внизу уже выложены стены и вставлены окна. Согласно проектной декларации, 9 и 1 корпуса должны сдать не позднее III квартала 2021 года. Но в данный момент в офисе продаж анонсируют заселение уже в I квартале 2021 года. Если строительство будет продолжаться в том же темпе, то этот прогноз имеет право на жизнь.
Возведение 4 и 8 корпусов должно начаться в конце 2019 года, но проектными декларациями застройщик пока не поделился.
![ЖК "Отрадный": обновление жилого фонда в Мытищах - Фото 10]()
10 корпус введён в эксплуатацию в июле 2019 года ![ЖК "Отрадный": обновление жилого фонда в Мытищах - Фото 11]()
Это двухподъездный дом высотой 26 этажей ![ЖК "Отрадный": обновление жилого фонда в Мытищах - Фото 12]()
11 корпус будет заселён в 2020 году ![ЖК "Отрадный": обновление жилого фонда в Мытищах - Фото 13]()
Многосекционное здание находится на завершающей стадии строительства ![ЖК "Отрадный": обновление жилого фонда в Мытищах - Фото 14]()
Дом рассчитан на 828 квартир ![ЖК "Отрадный": обновление жилого фонда в Мытищах - Фото 15]()
Фасад отделан фиброцементными панелями и керамогранитными плитами ![ЖК "Отрадный": обновление жилого фонда в Мытищах - Фото 16]()
На лоджиях панорамное остекление ![ЖК "Отрадный": обновление жилого фонда в Мытищах - Фото 17]()
9 корпус утеплён, идёт монтаж системы вентилируемого фасада ![ЖК "Отрадный": обновление жилого фонда в Мытищах - Фото 18]()
Началось благоустройство прилегающей территории ![ЖК "Отрадный": обновление жилого фонда в Мытищах - Фото 19]()
1 корпус дорос до 20 этажа ![ЖК "Отрадный": обновление жилого фонда в Мытищах - Фото 20]()
Укладка наружных стен идёт параллельно с формированием монолитного каркаса, нижние этажи остеклены ![ЖК "Отрадный": обновление жилого фонда в Мытищах - Фото 21]()
Во второй закруглённой секции дома есть интересные планировки ![ЖК "Отрадный": обновление жилого фонда в Мытищах - Фото 22]()
Рядом с 11 корпусом ведётся строительство паркинга на 308 машин
Отделка от застройщика
Высота потолка в квартирах 2,74 м после отделки, стояки и трубы отопления проходят вдоль стен. Изменить планировку квартиры на этапе строительства не представляется возможным. Межкомнатные перегородки возводят согласно проекту, сантехнические и электромонтажные работы проводят по смете: будут розетки, выключатели, настенные светильники в санузлах и кладовках. А вот слаботочные кабели заведут только в подъездный щиток, интернет и телефон нужно будет подтягивать самим.
Квартиры в ЖК "Отрадный" продаются с чистовой отделкой, но немного недоделанной. Во всех помещениях будет выполнена стяжка пола, в санузлах — с гидроизоляцией. В ванной и туалете потом кладут плитку, в комнатах, прихожей и на кухне — линолеум.
Выполняется выравнивание, шпаклёвка и штукатурка потолка и стен, но финишной отделки не будет. То есть жильцы должны либо поклеить обои, либо покрасить стены самостоятельно, довести до ума потолок. Не будут обработаны и стены в санузлах — вы увидите голый бетон. При этом сантехника установлена и подключена к коммуникациям. На лоджии покрасят только стены, без окраски потолка и стяжки пола.
![ЖК "Отрадный": обновление жилого фонда в Мытищах - Фото 23]()
На стенах выполнена предчистовая отделка. Фото застройщика ![ЖК "Отрадный": обновление жилого фонда в Мытищах - Фото 24]()
На полу во всех помещениях, кроме санузлов, будет линолеум. Фото застройщика ![ЖК "Отрадный": обновление жилого фонда в Мытищах - Фото 25]()
В рабочей зоне на кухне устанавливается тумба с раковиной. Фото застройщика ![ЖК "Отрадный": обновление жилого фонда в Мытищах - Фото 26]()
Стены в санузлах не обработаны. Фото застройщика ![ЖК "Отрадный": обновление жилого фонда в Мытищах - Фото 27]()
Но плитка на полу будет. Фото застройщика ![ЖК "Отрадный": обновление жилого фонда в Мытищах - Фото 28]()
Санузел в офисе продаж с той же сантехникой, как в квартире ![ЖК "Отрадный": обновление жилого фонда в Мытищах - Фото 29]()
Разведены коммуникации, установлены ванна, унитаз, раковина и смесители
Планировки и цены на квартиры и машиноместа
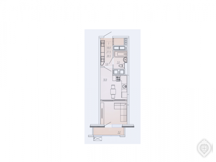
Самая маленькая квартира, которая сейчас есть в продаже, по метражу 25 кв. м. С планировками в студиях, как обычно, не разыграешься, так что по форме это стандартный прямоугольник. И с ростом площади он вытягивается в длину, а не стремится стать более квадратным. Пространство в таком пенале не всегда удобно организовать. Средняя стоимость студий от 25 до 30 кв. м 3 700 тыс. рублей.
Однокомнатные квартиры стандартной планировки занимают площадь 35 кв. м. В 9 корпусе такой вариант обойдётся в 3 600 тыс. рублей. В евродвушках минимальный метраж 42 кв. м, а площадь кухни-гостиной доходит до 20 квадратов. Интересно выглядят планировки в закруглённой секции 1 корпуса.
Площадь двухкомнатных квартир от 60 до 65 кв. м. Во всех 20-метровая кухня-гостиная, так что по сути это формат евротрёшки. Стоимость от 6 150 до 6 700 тыс. рублей.
Площадь трёхкомнатных квартир начинается от 87 кв. м. Это классическая распашная планировка за 7 850 тыс. рублей. Угловая трёшка с увеличенной площадью остекления стоит 8 млн рублей за 89 кв. м. За эти деньги можно приобрести квартиру площадью 93 кв. м, но она будет на 2 этаже.
В сентябре 2019 года застройщик продаёт машиноместа в двух паркингах. Один из них находится ближе всего к 10 корпусу, стоит вдоль Ярославского шоссе. Второй многоэтажный гараж строится возле 11 корпуса. Стоимость машиномест от 500 до 675 тыс. рублей в зависимости от площади лота и от этажа — чем выше, тем дешевле.
![ЖК "Отрадный": обновление жилого фонда в Мытищах - Фото 30]()
Студия площадью 28,6 кв. м от 3,5 млн рублей ![ЖК "Отрадный": обновление жилого фонда в Мытищах - Фото 31]()
За 3200 тыс. рублей можно купить студию в готовом 10 корпусе по переуступке прав. Площадь 28,5 кв. м ![ЖК "Отрадный": обновление жилого фонда в Мытищах - Фото 32]()
В 9 корпусе предложены однокомнатные квартиры площадью 35 кв. м от 3,5 млн рублей ![ЖК "Отрадный": обновление жилого фонда в Мытищах - Фото 33]()
За 4,5 млн рублей продаются однушки площадью 45 кв. м в 1 корпусе ![ЖК "Отрадный": обновление жилого фонда в Мытищах - Фото 34]()
Ещё один вариант планировки во 2 секции 1 корпуса. Метраж 45 кв. м, цена 4,5 млн рублей ![ЖК "Отрадный": обновление жилого фонда в Мытищах - Фото 35]()
Угловая двухкомнатная квартира площадью 60 кв. м продаётся за 6 300 тыс. рублей ![ЖК "Отрадный": обновление жилого фонда в Мытищах - Фото 36]()
В эту же цену есть квартира площадью 60,4 кв. м, но другой планировки ![ЖК "Отрадный": обновление жилого фонда в Мытищах - Фото 37]()
66,4 кв. м продаются по цене 6 800 тыс. рублей ![ЖК "Отрадный": обновление жилого фонда в Мытищах - Фото 38]()
Трёхкомнатная квартира площадью 87 кв. м стоит от 7 800 тыс. рублей
Застройщик и условия продаж
Имя "Инвест-Строй" на слуху в Мытищах. Компания принимала участие в реконструкции 30 микрорайона. В результате вместо старого жилого фонда здесь вырос ЖК "Спутник" из восьми 17-этажных корпусов. Ещё несколько точечных готовых проектов есть у застройщика в других районах Московской области.
Офис продаж ЖК "Отрадный" находится на Олимпийском проспекте в Мытищах. Как такового шоу-рума здесь нет, но в санузлах установлена та же сантехника, что в квартирах. На 3 дня можно забронировать квартиру бесплатно. Регистрация договора долевого участия тоже бесплатная.
Квартиру в ЖК "Отрадный" можно купить в кредит. В офисе работает ипотечный консультант, который поможет подобрать оптимальные условия и отправить заявку в банк. Предложения по программам здесь стандартные. Первоначальный взнос в большинстве случаев не менее 10%. Ипотеку предлагают Сбербанк, ВТБ, Альфа-банк, СМП-банк и другие.
Застройщик предлагает рассрочку под процент. В этом случае необходимо внести как минимум 20% от стоимости жилья, на остаток ежемесячно будет начисляться 1%.
![ЖК "Отрадный": обновление жилого фонда в Мытищах - Фото 39]()
Офис продаж находится возле стройплощадки 1 корпуса на Олимпийском проспекте ![ЖК "Отрадный": обновление жилого фонда в Мытищах - Фото 40]()
Здесь работает только один менеджер продаж, так что на встречу лучше записаться заранее ![ЖК "Отрадный": обновление жилого фонда в Мытищах - Фото 41]()
По каждому корпусу есть отдельный буклет с информацией и планировками ![ЖК "Отрадный": обновление жилого фонда в Мытищах - Фото 42]()
В углу стоит такая же тумба с раковиной, какую устанавливают на кухне в квартирах
Окружение и инфраструктура
В проектной декларации 1 корпуса заявлено, что застройщик берёт на себя обязательство по возведению двух детских садов на 120 и на 320 мест. Должна быть построена и школ на 800 учащихся. Однако менеджер в офисе продаж как-то неопределённо сказал, что планы, возможно, будут пересмотрены. Мол, такое количество инфраструктуры вокруг, что строить негде, так что лучше "Инвест-Строй" поучаствует в реконструкции каких-либо учебных заведений.
В микрорайоне Химгородок расположена общеобразовательная школа №3 и лицей №2. В радиусе 1,5 км есть ещё две гимназии. Для малышей в шаговой доступности работает три детских сада и частный развивающий центр. На улице Попова расположена поликлиника с педиатрическим отделением. Окна 11 корпуса выходят на стадион "Торпедо" и бассейн "Бригантина".
В шаговой доступности работает торговый центр "Альта", магазины "Пятёрочка" и "Дикси", отделения банков, кафе, студии красоты. Кроме этого, первые этажи новых домов займут коммерческие предприятия.
![ЖК "Отрадный": обновление жилого фонда в Мытищах - Фото 43]()
Школа №3 находится рядом с 10 корпусом ![ЖК "Отрадный": обновление жилого фонда в Мытищах - Фото 44]()
В шаговой доступности есть детский сад ![ЖК "Отрадный": обновление жилого фонда в Мытищах - Фото 45]()
Окна 1 корпуса выходят на стадион ![ЖК "Отрадный": обновление жилого фонда в Мытищах - Фото 46]()
По соседству расположен спортивный комплекс с бассейном "Бригантина" ![ЖК "Отрадный": обновление жилого фонда в Мытищах - Фото 47]()
В районе есть сетевые супермаркеты ![ЖК "Отрадный": обновление жилого фонда в Мытищах - Фото 48]()
В соседнем доме расположено отделение Сбербанка
- 3/5транспорт
- 3/5экология
- 3/5инфраструктура
- 3/5цена/качество
















































Добавить отзыв