Проект комфорт-класса "Кварталы 21/19" вышел в продажу весной 2016 года и спустя три с небольшим года на месте бывшей промзоны "Грайвороново" уже построены и заселены пять домов. Всего на участке площадью 19 га появится 21 корпус. Эти цифры отражены в названии новостройки. Отправляемся на Рязанский проспект, чтобы познакомиться с проектом подробнее.
Реальность и перспективы
Проект "Кварталы 21/19" расположен на юго-востоке Москвы и ограничен Рязанским проспектом, Стахановской улицей и 2-м Грайвороновским проездом. Общая площадь застройки составит 235 тыс. кв. м. Новостройка реализуется поквартально. Первая и вторая очереди включают шесть уже построенных домов панельной серии П-44-Т. На момент посещения офиса, в июле 2019 года, свободными в этих корпусах остались меньше 10 квартир.
!["Кварталы 21/19": новая жизнь на месте промзон - Фото 1]()
Первая и вторая очереди уже заселены !["Кварталы 21/19": новая жизнь на месте промзон - Фото 2]()
Это квартальная застройка с закрытыми от машин дворами !["Кварталы 21/19": новая жизнь на месте промзон - Фото 3]()
Автомобили паркуются вдоль проездов !["Кварталы 21/19": новая жизнь на месте промзон - Фото 4]()
Из панелей серии П-44-Т построено только 5 первых домов, остальные будут монолитными
Куда больший интерес представляют следующие очереди строительства, состоящие исключительно из монолитных зданий. Третья очередь проекта сдается в сентябре 2020 года и включает пять 18-23-этажных зданий на 733 квартиры. На выбор жилье без отделки и с ремонтом. Кухни "под ключ" предлагают в единственном корпусе №10.
Кухонный гарнитур от фабрики "Мария" со столешницей из искусственного камня будет иметь всю встроенную технику: вытяжку, духовой шкаф, электрическую плиту, посудомоечную машину и холодильник. Производители техники – Electrolux. Средняя стоимость кухни, по словам застройщика, составляет около 300 тысяч рублей. Еще порядка 170 тысяч – бюджет покупки техники. Все это входит в стоимость квартиры.
Можно выбрать один из двух типов дизайн-проектов: ELEGANTE и ANIMATO, которые отличаются цветовым решением. Стоимость квадратного метра отделки составляет 15 тысяч рублей за квадрат.
!["Кварталы 21/19": новая жизнь на месте промзон - Фото 5]()
Столешница из искусственного камня !["Кварталы 21/19": новая жизнь на месте промзон - Фото 6]()
Кухня от компании "Мария" !["Кварталы 21/19": новая жизнь на месте промзон - Фото 7]()
Отделка спальни выполнена в кофейных тонах !["Кварталы 21/19": новая жизнь на месте промзон - Фото 8]()
Детская комната более яркая !["Кварталы 21/19": новая жизнь на месте промзон - Фото 9]()
Санузлы комплектуются сантехникой
Четвертая очередь включает пять 9-23-этажных дома на 757 квартир. Все они сдаются без отделки. Сдача запланирована на 4 кв. 2021 года.
Последняя пятая очередь проекта также включает пять корпусов, причем в продажу поступил только один, второй находится на этапе бронирования. Срок ввода в эксплуатацию – середина 2023 года. В 20 корпусе квартиры сдаются с отделкой White box. Все черновые работы делает застройщик . Штукатурка и шпаклевание стен, стяжка пола, установка тканевого натяжного потолка, разводка электрики - все готово. Остается только выбрать краску или обои для стен и напольное покрытие.
В строящихся очередях работа кипит даже вечером – на площадке много техники и рабочих. Первая и вторая очереди были сданы согласно срокам, поэтому девелопер, на мой взгляд, заслуживает доверие. ГК
"ВекторСтройФинанс" строит дома, офисы и даже коттеджные поселки. Согласно Единому реестру застройщиков, компания занимает 114 место по объемам строительства из более чем 3200 девелоперов России.
!["Кварталы 21/19": новая жизнь на месте промзон - Фото 10]()
Для отделки фасадов используются фиброцементные панели. Здесь и дальше в галерее все фото с сайта девелопера новостройки !["Кварталы 21/19": новая жизнь на месте промзон - Фото 11]()
Корпус №10 – единственный, в котором все квартиры с отделкой !["Кварталы 21/19": новая жизнь на месте промзон - Фото 12]()
Первые монолитные дома будут готовы уже через год – в 3 кв. 2020 года !["Кварталы 21/19": новая жизнь на месте промзон - Фото 13]()
По словам менеджера, корпуса-башни пользуются самым высоким спросом !["Кварталы 21/19": новая жизнь на месте промзон - Фото 14]()
Так выглядит корпус №15, сдающийся в конце 2021 года !["Кварталы 21/19": новая жизнь на месте промзон - Фото 15]()
За счет разной этажности в домах много видовых квартир !["Кварталы 21/19": новая жизнь на месте промзон - Фото 16]()
В корпусе №17 со сроком ввода в конце 2021 года, продолжается кладка стен !["Кварталы 21/19": новая жизнь на месте промзон - Фото 17]()
На площадки идут активные работы даже в выходные !["Кварталы 21/19": новая жизнь на месте промзон - Фото 18]()
Четвертая очередь будет готова до конца 2021 года
Все нужное в тапочной доступности
"Кварталы 21/19" – проект комплексного освоения территории, в котором запроектированы два детских сада на 100 и 150 мест в первой и второй очереди проекта. Первый уже построен и проходит госкомиссию. Также в 2022 году появится собственная школа на 825 детей с дошкольным отделением на 165 мест.
Сегодня на первом этаже сданного дома первой очереди работает частный детский сад Kinder Garten. Ежемесячная плата составляет 30 тысяч рублей в месяц – средние для Москвы расценки. Также застройщиком открыт бесплатный досуговый центр "Соседи", где для малышей организованы игровые комнаты, а для ребят постарше – оборудование для видеоигр, шахматные доски, аэрохоккей. Занятия проводятся по выходным.
Все первые этажи "Кварталов 21/19" предназначены под коммерческие помещения. Открыт образовательный центр OKEY English, салон красоты, центр боевых искусств, продуктовые лавки. Построено отдельное здание под магазин "Пятерочка". Пока многие коммерческие помещения пустуют, однако после заселения комплекса жители действительно будут иметь все в "тапочной доступности".
В бывшем складском здании вдоль бульвара откроется фитнес-центр с бассейном. Еще один производственный корпус переоборудуют под офисные здания. Поэтому часть жителей смогут работать рядом с домом.
Для того, чтобы производственные здания не портили вид из окна, по заказу "ВекторСтройФинанса" на фасаде семиэтажной постройки был создан мурал под названием "Соседи". На стенах здания кистью нанесено изображение: два мальчика на качелях, пишущих друг другу письма, которые превращаются в птиц. Аллегорический посыл картины прост: разлука – не помеха общению.
Придомовая территории каждой очереди закрыта от машин – для этого установлены специальные ограничители. Сегодня автомобилисты могут парковать машину по периметру квартала. В этом году откроется наземный многоуровневый паркинг за первой очередью. Стоимость машиноместа начинается от 850 тыс. рублей. До 2022 года запланировано строительство еще одного аналогичного паркинга. В подземном паркинге монолитных домов стоимость машиноместа стартует с 1,2 млн рублей.
Однако главной доминантой района станет пешеходный бульвар длиной почти километр, который пройдет вдоль всего проекта до станции метро. Частично объект уже готов. Застройщик установил скамейки и деревянные спортивные и площадки. Создан импровизированный амфитеатр на открытом воздухе.
При посещении проекта создается приятное впечатление современного района. На детских площадках в песочнице играют дети. Ребята постарше гоняют мяч на спортплощадке. Мамы с колясками гуляют по бульвару. Однозначно семейный и самое главное – жилой проект.
Из инфраструктуры района стоит выделить торговый комплекс "Город" по дороге от МЦК "Нижегородская". В нем располагается гипермаркет "Ашан", сетевые магазины одежды и обуви ZARA, Оodji и ZENDEN. Также в здании располагается Leroy Merlin, что актуально для покупателей квартир без отделки.
Изначально в состав проекта также входил торговый центр. Его до сих пор можно увидеть на генплане или макете. Однако, учитывая наличие в пешей доступности другого крупного ТЦ, от строительства решили отказаться.
!["Кварталы 21/19": новая жизнь на месте промзон - Фото 19]()
Частный детсад за 30 тысяч в месяц !["Кварталы 21/19": новая жизнь на месте промзон - Фото 20]()
Девелопер открыл бесплатный досуговый центр !["Кварталы 21/19": новая жизнь на месте промзон - Фото 21]()
Детский сад первой очереди откроется в 2019 году !["Кварталы 21/19": новая жизнь на месте промзон - Фото 22]()
Территория детского сада огорожена !["Кварталы 21/19": новая жизнь на месте промзон - Фото 23]()
Детский сад занимает большую часть двора первой очереди !["Кварталы 21/19": новая жизнь на месте промзон - Фото 24]()
Пешеходный бульвар длиной почти километр !["Кварталы 21/19": новая жизнь на месте промзон - Фото 25]()
Импровизированный амфитеатр для игр детей на бульваре !["Кварталы 21/19": новая жизнь на месте промзон - Фото 26]()
Территорию украшают арт-объекты !["Кварталы 21/19": новая жизнь на месте промзон - Фото 27]()
В производственном здании откроются офисы !["Кварталы 21/19": новая жизнь на месте промзон - Фото 28]()
Площадки разделены по возрастам !["Кварталы 21/19": новая жизнь на месте промзон - Фото 29]()
Площадки для ребят постарше !["Кварталы 21/19": новая жизнь на месте промзон - Фото 30]()
После реконструкции в здании откроется бассейн !["Кварталы 21/19": новая жизнь на месте промзон - Фото 31]()
Наземный паркинг от 850 тыс. рублей !["Кварталы 21/19": новая жизнь на месте промзон - Фото 32]()
Стихийная парковка между домами и бульваром !["Кварталы 21/19": новая жизнь на месте промзон - Фото 33]()
Ближайший сетевой магазин - пятерочка !["Кварталы 21/19": новая жизнь на месте промзон - Фото 34]()
На первых этажах уже ест магазины и салоны !["Кварталы 21/19": новая жизнь на месте промзон - Фото 35]()
Ближайший торговый центр !["Кварталы 21/19": новая жизнь на месте промзон - Фото 36]()
Строительный гипермаркет Leroy Merlin рядом с домом
Транспортная ситуация
"Кварталы 21/19" подходит скорее для автомобилистов, чем пользователей общественного транспорта. Ближайшая станция метро "Рязанский проспект" расположена в четырех километрах от комплекса. К тому же это самая загруженная в Москве Таганско-Краснопресненская линия метро. Поэтому сесть в вагон в час пик порой удается с 3-4 раза.
Добраться до метро можно на автобусе. Рядом с офисом продаж расположена остановка общественного транспорта. До "Рязанского проспекта" есть два маршрута. Еще один проложен до станции пригородного железнодорожного сообщения "Чухлинка". На электричке можно добраться до Курского вокзала.
В качестве альтернативного метро варианта стоит упомянуть Московское центральное кольцо. Время в пути от ближайшей станции "Нижегородская" составляет порядка 20 минут неспешным шагом. Однако за это время приходится преодолевать нерегулируемый железнодорожный переезд и паркинг торгового центра. Если в дневное время маршрут не вызывает беспокойства, то ночью я вряд ли бы добровольно отправилась на такую прогулку.
Перспективы транспортного развития ЖК "Кварталы 21/19" связаны с открытием станции метро "Стахановская" в ноябре 2019 года буквально в паре минут от ближайшего корпуса проекта. Причем без пересадки жители смогут попасть на Большую кольцевую линию метро, а значит для того, чтобы доехать на соседнюю ветку метро, не нужно делать пересадку в центре. Так что уже через считанные месяцы транспортная доступность проекта улучшится.
На базе станции МЦК "Нижегородская" появится крупнейший в Москве транспортно-пересадочный узел, объединяющий также одноименную станцию метро и платформу "Карачарово" Горьковского направления.
!["Кварталы 21/19": новая жизнь на месте промзон - Фото 37]()
Ближайшая станция "Стахановская" откроется в 2019 году !["Кварталы 21/19": новая жизнь на месте промзон - Фото 38]()
Комфортные поезда МЦК !["Кварталы 21/19": новая жизнь на месте промзон - Фото 39]()
МЦК "Нижегородская" в 20 минутах от дома !["Кварталы 21/19": новая жизнь на месте промзон - Фото 40]()
Дорога от МЦК до проекта не благоустроена !["Кварталы 21/19": новая жизнь на месте промзон - Фото 41]()
Дорога проходит рядом с соседним ЖК "SREDA" !["Кварталы 21/19": новая жизнь на месте промзон - Фото 42]()
В час пик на такой тропинке тесно - нужно выходить на проезжую часть !["Кварталы 21/19": новая жизнь на месте промзон - Фото 43]()
От МЦК до дома приходится преодолевать нерегулируемый ж/д переезд !["Кварталы 21/19": новая жизнь на месте промзон - Фото 44]()
Строительство станции метро "Стахановская" в пяти минутах от дома !["Кварталы 21/19": новая жизнь на месте промзон - Фото 45]()
До действующий станции метро "Рязанский проспект" курсуруют два маршрута
28 видов планировок: от студии до трешки
Готовые дома первой и второй очередей "Кварталы 21/19" уже практически распроданы, поэтому я не стала спрашивать менеджера про планировки и цены. Единственное, что стоит отметить – это наличие колясочных и мусорокамер в доме.
Рядом с каждым подъездом расположена еще одна дверь, которая ведет к помещению, где стоят мусорные баки. На мой взгляд, очень удачное решение, которое редко встречается в проектах комфорт-класса. На входах в подъезды висят камеры наблюдения, что тоже повышает уровень безопасности.
Третья, четвертая и пятая очереди – монолитные дома с индивидуальными планировками. Только 2 из 12 корпусов сдаются с предчистовой отделкой и готовым ремонтом с кухней. В остальных 10 зданиях, доступных в продаже, жилье сдается без отделки и межкомнатных стен. Высота потолков во всех квартирах составляет 3 метра. Трубы отопления проходят по полу, а значит, нужно вычесть высоту стяжки в 5-7 сантиметров. Обращает на себя внимание наличие больших окон, в том числе угловых панорамных. Расстояние от пола до подоконника составляет 50 сантиметров.
Одна из особенностей проекта – разнообразие планировок. Самую скромную вариативность имеют студии – всего два типа площадью от 29,36 до 30,3 кв.м. Бюджет покупки таких лотов стартует с 5,399 млн рублей. Это минимальная стоимость во всем проекте. Студии, на мой взгляд, продуманы. В квартирах выделены ниши под шкаф, площадь ванной комнаты превышает 4 кв. м, так что можно установить не только душевую кабину, но и полноценную ванную.
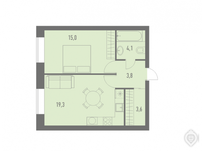
Однокомнатных квартир предусмотрено девять типов от 35,8 до 45,8 кв.м. Бюджет покупки стартует с 6,8 млн рублей. Остановимся на самых интересных планировках. Мне понравилась однушка площадью 39,5 кв.м. При весьма скромных габаритах такой вариант позволяет организовать кухню-гостиную и отдельную спальню с балконом.
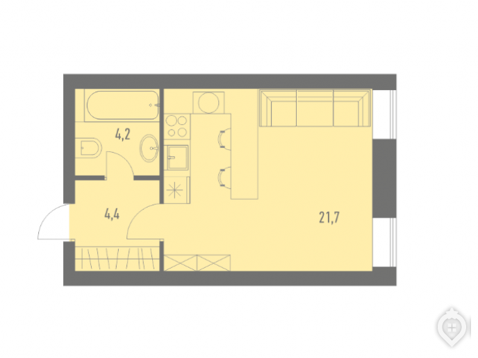
Вариант для тех, кто мало готовит, это однокомнатная квартира площадью 45,6 кв.м, где кухонный гарнитур находится в нише, при этом в обеденной зоне уместится полноценный стол и диван. Хотя часто приходится ограничиваться только барной стойкой из-за нехватки места.
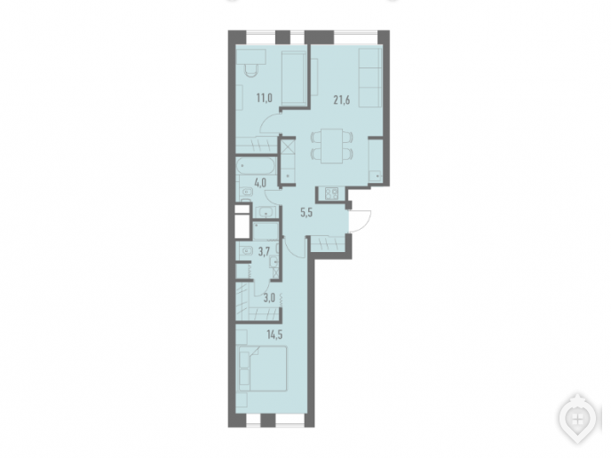
Двухкомнатные квартиры также доступны в девяти вариантах. Площадью варьируется от 47 кв. м до 63,3 кв. м. Цены начинаются с 7,75 млн рублей. Больше всего мне понравилась квартира площадью 62,7 кв.м, где родительская спальня имеет персональную ванную комнату, а в квартире есть гардеробная комната.
Семье с ограниченным бюджетом также подойдет компактная двушка площадью всего 47 кв. м с двумя отдельными спальнями, но проходной кухней.
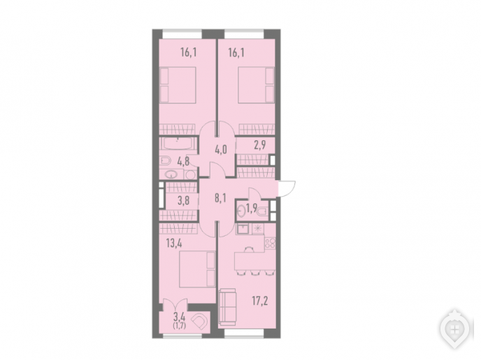
Трехкомнатных квартир в проекте восемь видов площадью от 70,7 кв. м до 90,4 кв. м. Бюджет стартует с 10,77 млн рублей. Квартиры площадью меньшее 88 кв.м имеют маленькую кухню в 12-13 кв.м, где большой семье вряд ли удастся комфортно разместиться. В трех типах квартир от 88 кв.м до 90,4 кв.м девелопер запроектировал кухни-гостиные площадью до 21 кв.м. Но за такую роскошь придется отдать как минимум 13,38 млн рублей. Зато, помимо просторной кухни, в качестве бонуса можно считать спальню с тремя окнами.
!["Кварталы 21/19": новая жизнь на месте промзон - Фото 46]()
Подъезды оборудованы камерами для сбора мусора !["Кварталы 21/19": новая жизнь на месте промзон - Фото 47]()
В каждую камеру персональный доступ только для жителей отдельного подьезда !["Кварталы 21/19": новая жизнь на месте промзон - Фото 48]()
Студия 29,36 кв.м от 5,399 млн !["Кварталы 21/19": новая жизнь на месте промзон - Фото 49]()
Студия 30,3 кв.м от 5,8 млн !["Кварталы 21/19": новая жизнь на месте промзон - Фото 50]()
Однушка 35,8 кв.м от 6,8 млн !["Кварталы 21/19": новая жизнь на месте промзон - Фото 51]()
Однушка 39,5 кв.м от 6,63 млн !["Кварталы 21/19": новая жизнь на месте промзон - Фото 52]()
Однушка 45,6 кв.м от 7,39 млн !["Кварталы 21/19": новая жизнь на месте промзон - Фото 53]()
Однушка 45,8 кв.м от 7,35 млн !["Кварталы 21/19": новая жизнь на месте промзон - Фото 54]()
Двушка 47 кв.м от 7,75 млн !["Кварталы 21/19": новая жизнь на месте промзон - Фото 55]()
Двушка 62,7 кв.м от 9,37 млн !["Кварталы 21/19": новая жизнь на месте промзон - Фото 56]()
Двушка 63,3 кв.м от 9,33 млн !["Кварталы 21/19": новая жизнь на месте промзон - Фото 57]()
Трешка 72,8 кв.м от 10,8 млн !["Кварталы 21/19": новая жизнь на месте промзон - Фото 58]()
Трешка 90,4 кв.м от 13,38 млн
Шоу-рум и экскурсия на стройку
Офис продаж "Кварталов 21/19" расположен на территории проекта, между первой и второй уже построенными и заселенными очередями. Это отдельной одноэтажное здание площадью примерно 200 кв. м, которое легко увидеть по дороге от МЦК "Нижегородская". На улице можно бесплатно припарковать автомобиль, места достаточно. Клиентов принимают ежедневно с 9.00 до 21.00.
Привлекает дизайн офиса: издалека кажется, что в нем нет окон, кроме главного стеклянного фасада. На самом же деле дневной свет проникает в помещение через марш чередующихся вертикальных деревянных ламелей. По словам застройщика, в перспективе вместо офиса продаж здание можно использовать как коммерческое помещение, открыв в нем, к примеру, ресторан.
Советую записаться на консультацию заранее. В вечернее время все шесть менеджеров оказались заняты. Причем покупатели приходили не по одному, а целыми семьями с маленькими детьми и уже пожилыми родителями. Мне пришлось ждать менеджера 15 минут, изучая 3D макет жилого комплекса. В зоне ожидания расположены диваны и кресла, поэтому организация офиса продаж мне понравилась. На сайте застройщика есть опция по вызову такси от ближайшей станции метро. Услуга бесплатна – достаточно позвонить по телефону на сайте, и менеджеры вызовут такси. Правда, добираться обратно придется уже своим ходом.
Консультация проекта состоит из трех частей. Сначала менеджер рассказывает о планировке территории, показывая на подробном генплане построенные и будущие очереди строительства. Затем в сопровождении другого специалиста клиенты отправляются в шоу-рум – меблированную двухкомнатную квартиру с отделкой "под ключ". Наконец, третий этап – это посещение непосредственно строительной площадки и квартиры для оценки потенциального вида из окна и габаритов. Всем посетителям выдают каски, жилеты и резиновые сапоги при желании, так как на стройплощадке после дождя бывают лужи.
Можно сразу забронировать понравившийся вариант. Устная бесплатная бронь действует три дня. Стоимость договора бронирования и одновременно регистрации договора долевого участия составляет 70 тысяч рублей. При единовременной оплате без использования ипотеки бронь действует неделю, при ипотеке – две недели. Оплаченная сумма входит в общую цену квартиры. Оформление собственности после сдачи дома ложится на плачи самих покупателей.
Проект аккредитован в 23 банках. Минимальная ставка составляет 6% по программе "семейной ипотеки" для клиентов с двумя и более детьми, родившимися в 2018 году и позже. Минимальная ставка на стандартных условиях составляет 9,7%. Причем в офисе продаж есть отдел ипотеки, через который можно подать заявку в разные банки. На момент посещения офиса, в июле 2019 года, девелопер предоставлял скидку 3-4% при единовременной оплате и ипотеке.
Еще один инструмент взаиморасчёта – беспроцентная годовая рассрочка на строящиеся дома. Первый взнос не может быть менее 50%. Остальные платежи выплачиваются ежемесячно равными суммами. Однако нужно помнить, что в таком случае дисконт уже не действует.
!["Кварталы 21/19": новая жизнь на месте промзон - Фото 59]()
3D генплан "Кварталы 21/19" !["Кварталы 21/19": новая жизнь на месте промзон - Фото 60]()
Вид на проект со стороны первой построенной очереди !["Кварталы 21/19": новая жизнь на месте промзон - Фото 61]()
Зона ожидания менеджера !["Кварталы 21/19": новая жизнь на месте промзон - Фото 62]()
Макет монолитного дома с отделкой "под ключ" !["Кварталы 21/19": новая жизнь на месте промзон - Фото 63]()
Офис продаж работает с 9.00 до 21.00 !["Кварталы 21/19": новая жизнь на месте промзон - Фото 64]()
В светлое время суток проводятся экскурсии на стройку в монолитные дома !["Кварталы 21/19": новая жизнь на месте промзон - Фото 65]()
Увеличенная площадь окон в монолитных домах !["Кварталы 21/19": новая жизнь на месте промзон - Фото 66]()
Паспорт строящейся очереди
- 4/5транспорт
- 3/5экология
- 4/5инфраструктура
- 3/5цена/качество


































































Добавить отзыв