Тимирязевский — это старый, застроенный район Москвы с большим парком и еще большим заказником. До Садового кольца отсюда шесть километров, до Кремля — почти десять. Никакого активного строительства не ведется, ведь здесь позволена только точечная застройка. Как следствие, в районе только три новостройки — это ЖК "Лисицына 5", где уже все продано, ЖК "Дыхание" с ценами от 12 450 000 рублей и ЖК "Тимирязев парк" с квартирами от 10 780 000 рублей. В последний из названных комплексов мы и отправимся за тайным обзором.
На площадке
ЖК "Тимирязев парк" — одна из самых высоких построек в округе, выше них только Останкинская телебашня. С востока, через два дома от комплекса — Дмитровское шоссе. С севера — прямая неширокая улица Немчинова со школой и поликлиникой. С запада и юга — парк "Дубки".
Офис продаж находится прямо на стройплощадке, в 100 метрах от дома. Менеджер в строгом деловом костюме встретила меня внутри. По телефону она звучала бодро и приветливо, напомню, что я пришел смотреть самую дешевую однушку за 10 780 000 рублей.
О том, что "Тимирязев парк" — комплекс бизнес-класса, говорят не только цены и расположение, но и детали интерьера в пункте продаж. Например, здесь есть длинные черные зонты на случай, если клиенту придется идти 90 метров от офиса до объекта под дождем. Или вот эта широкая застекленная переговорная, где проходит мой разговор с менеджером.
"Тимирязев парк" — не типовая застройка, у дома есть своя индивидуальность. Его спроектировал француз Робер Мальдонадо. Архитектор больше любит работать с крупными игроками. Например, компания Мальдонадо спроектировала ТРЦ "ОЗ" в городе Краснодаре, ТРЦ "Акварель" в Волгограде, бизнес-центр "Тойота-Мотор" в Москве и гостиницу Hyatt в Екатеринбурге. За точечную жилую застройку они берутся редко.
Дом монолитный, облицован итальянским керамогранитом. Цвета кофейные — от бежевого до темно-коричневого. У здания два широких, больших подъезда. Там обещают поставить огромные зеркала, развесить дизайнерские люстры и картины.
Все работы выполняются вовремя, отставаний по срокам нет. По словам менеджера, закончить проект застройщик планирует в июне 2018 года. В августе-сентябре ждут государственную комиссию, а в октябре-ноябре начнут выдавать ключи.
Жилой комплекс построен полностью, сейчас идет благоустройство территории, ведутся внутренние работы: отделка подъездов, монтаж лифтов. Лифты запроектированы по нормам: по два на подъезд и еще один — грузовой. Все они будут от проверенного немецкого производителя Kleemann.
![ЖК "Тимирязев парк": с отличным видом из окна - Фото 1]()
Застройщик планирует выдачу ключей в октябре-ноябре 2018 года ![ЖК "Тимирязев парк": с отличным видом из окна - Фото 2]()
ЖК "Тимирязев парк" окружают пяти- и двенадцатиэтажки ![ЖК "Тимирязев парк": с отличным видом из окна - Фото 3]()
Рядом с 22-этажкой соседние здания кажутся совсем маленькими ![ЖК "Тимирязев парк": с отличным видом из окна - Фото 4]()
Под боком у новостройки расположен детский сад "Остров сокровищ" ![ЖК "Тимирязев парк": с отличным видом из окна - Фото 5]()
К дому подводят канализацию ![ЖК "Тимирязев парк": с отличным видом из окна - Фото 6]()
Канализацию будут врезать в старую, которая существует здесь с советских времен ![ЖК "Тимирязев парк": с отличным видом из окна - Фото 7]()
Под керамогранитом уложена теплоизоляция
Квартиры и условия продаж
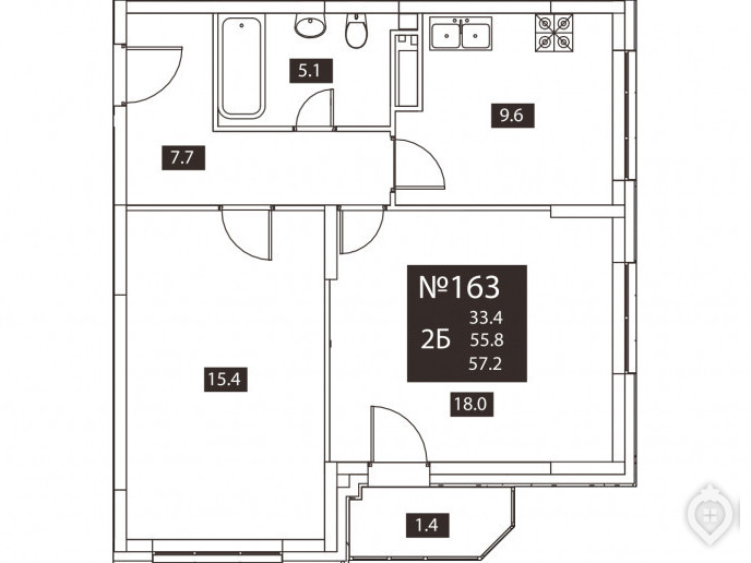
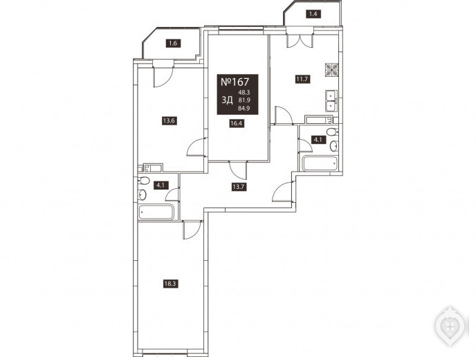
Дом рассчитан примерно на 600 человек, в нем 304 квартиры. Половину первого этажа занимает детский центр развития. На двух последних — пентхаусы. Все остальные этажи отданы под 1-, 2-, 3- и 4-комнатные квартиры. Однушки по 40 квадратных метров, двушки — по 60, трешки — по 80 и 100 квадратов, а четырехкомнатные по 111 квадратных метров. Цена зависит не только от метража, но и от вида из окна. Например, самая маленькая однушка с окнами на Дмитровское шоссе сейчас стоит 10 780 000 рублей, а если с окнами на парк "Дубки", то в полтора раза больше — 15 000 000 рублей.
Квартиры продает застройщик. В офисе говорят, что 85% уже продано. Никаких акций нет, но есть рассрочка. Она беспроцентная и предоставляется, если первоначальный взнос составляет не менее 30%. Квартиру можно взять в ипотеку. Застройщик сотрудничает с шестью банками — Сбербанк, ВТБ24, "Российский капитал", "Союз", "Дельтакредит" и "Промсвязьбанк". Самые выгодные условия по ипотеке у Сбербанка: ставка от 6%, первоначальный взнос от 15%, срок погашения до 30 лет. При этом кредит можно получить без подтверждения дохода и занятости. У остальных банков такой опции нет, а процентные ставки начинаются от 9,4%.
Я расписываюсь в журнале по технике безопасности, одеваю белую каску и мы идем из офиса на объект, смотреть квартиру. Подходим к строительному лифту. Его диспетчер доставляет нас на седьмой этаж. На стройплощадке порядок — мусора нет, материалы сложены аккуратными стопками.
Захожу в однушку с окнами на Дмитровское шоссе. Квартиры сдаются без отделки в свободной планировке, большими бетонными коробками, выделен только санузел. Сделано аккуратно. На стене у входа в квартиру вмонтирован маленький электросчетчик, к нему подведен кабель, самой разводки нет. Никаких дефектов при строительстве не заметил: когда шел по общему коридору, обратил внимание на плитку — она выложена ровно. В самой квартире кирпичная кладка стен санузла опрятная, швы и стыки ровные.
Когда возвращаемся обратно со стройплощадки, менеджер рассказывает, что на подземной парковке 172 места. Это мало для дома, где 304 квартиры. Скорее всего, часть жителей будет оставлять машины на гостевой парковке около дома, но и там мест может не хватить.
По словам менеджера, цена за одно машиноместо на подземной парковке — от 3 000 000 рублей. Это в два раза дешевле, чем в ЖК "Дыхание", который возводится в 500 метрах от "Тимирязев парка". Там цены начинаются от 5 700 000 рублей.
Помимо парковок, в подвальном помещении есть кладовые. Они продаются по 200 тысяч рублей за квадратный метр. Покупки квартиры, машиноместа и кладовки — все отдельные, на каждый объект недвижимости оформляется свой договор долевого участия. На мое желание посмотреть парковку и кладовые менеджер ответила отказом: там ведутся черновые работы.
Идем в офис продаж через площадку у дома. По словам менеджера, помимо гостевой парковки, здесь построят две детские площадки — одну большую, посередине двора, и одну поменьше, на краю придомовой территории. На участке вовсю ведется благоустройство. Застройщик хочет закончить работы у дома к концу июля. И, скорее всего, у него это получится.
![ЖК "Тимирязев парк": с отличным видом из окна - Фото 8]()
Однушка 40,3 кв. м - 10 780 000 рублей. Окна выходят на Дмитровское шоссе ![ЖК "Тимирязев парк": с отличным видом из окна - Фото 9]()
Однушка 40,4 кв. м - 15 000 000 рублей. Окна выходят на парк "Дубки" ![ЖК "Тимирязев парк": с отличным видом из окна - Фото 10]()
Двушка 57,2 кв. м - 22 880 000 рублей ![ЖК "Тимирязев парк": с отличным видом из окна - Фото 11]()
Трешка 84,9 кв. м - 24 680 000 рублей ![ЖК "Тимирязев парк": с отличным видом из окна - Фото 12]()
4-комнатная квартира 111,5 кв. м - 27 500 000 рублей ![ЖК "Тимирязев парк": с отличным видом из окна - Фото 13]()
Квартиры сдаются без электроразводки ![ЖК "Тимирязев парк": с отличным видом из окна - Фото 14]()
Окна от производителя Rehau ![ЖК "Тимирязев парк": с отличным видом из окна - Фото 15]()
Квартиры сдаются без отделки. Кирпичная кладка стен аккуратная, швы и стыки ровные ![ЖК "Тимирязев парк": с отличным видом из окна - Фото 16]()
Вид из окна на Дмитровское шоссе ![ЖК "Тимирязев парк": с отличным видом из окна - Фото 17]()
Плитка в общем коридоре уложена ровно
Девелопер
Прежде чем отправляться смотреть квартиры, я покопался в документах и сделал пару звонков.
ЖК "Тимирязев парк" возводит ООО "ЖК "На Ивановской" — по названию улицы, на которой строится дом. Компанию учредил скромный девелопер ООО "Ларус капитал". Эта фирма была зарегистрирована в 2014 году с уставным капиталом в 200 тысяч рублей. У общества нет своего сайта.
Одним из соучредителей "Ларус капитал" числится предприниматель Андрей Стреналюк. За его плечами имеется опыт возведения элитной недвижимости — несколько ЖК и бизнес-комплексов в центре Москвы и еще несколько в Королеве, но у самого "Ларуса" послужной список мизерный — только один недостроенный ЖК "Тимирязев парк".
В общем, пока у "Ларус капитал" сданных объектов нет. Но есть неоднозначная репутация. Задумывался ли девелопер о репутационных рисках, когда брался за возведение "Тимирязев парка", — неизвестно, но наверняка он о них догадывался. Тимирязевский — это полностью застроенный, старый район Москвы с огромными зелеными массивами — землями Тимирязевской академии.
Из разговоров с местными жителями становится понятно, что любая точечная застройка будет вызывать сопротивление. Они не хотят новых соседей. Они хотят новые детские сады и поликлиники. Когда сюда пришел "Ларус капитал", он сразу столкнулся с проблемами.
Пик протестов пришелся на осень 2016 года. Местные активисты объединились в группу под лозунгом "Спасем парк "Дубки" и начали вести круглосуточные дежурства у стройплощадки. За время сопротивления были стычки с ЧОПовцами, избиения, угрозы, вызовы скорой помощи. В какой-то момент застройщик пытался договориться с протестующими. К ним даже приезжал глава Департамента природопользования Москвы Антон Кульбачевский. Но когда убеждения не подействовали, к стройплощадке подъехал крепкий московский ОМОН и резкими движениями быстро зачистил территорию. Пикетчики свернули плакаты и пошли в суд. Начались долгие судебные разбирательства.
Активисты нашли юриста и подали иск к "Ларус капитал". В иске они заявили, что разрешение на строительство ЖК "Тимирязев парк" было получено незаконно. У активистов были вопросы к процедуре смены назначения земли — с земли под образовательную деятельность на землю под жилую недвижимость. Они считали, что ЖК залезает в природоохранную зону парка "Дубки".
"Ларус капитал" подал встречный иск. Юристы компании заявили, что активисты преграждали дорогу грузовикам, заезжавшим на стройплощадку. От их действий, по мнению юристов, компания понесла ущерб, его оценили более чем в 500 тысяч рублей. После рассмотрения иска суд постановил, что ЖК возводится законно, в природоохранную зону парка не залезает. Заявление против активистов было подано с ошибками, юристы "Ларус капитал" исправлять их не стали, поэтому этот иск суд не рассматривал.
Местные расклады
ЖК "Тимирязев парк" стоит на арендованной земле. Раньше здесь был двухэтажный детский сад из красного кирпича. Его до сих можно видеть на панораме "Яндекс.Карт", которую здесь почему-то еще не обновили. Этот детсад принадлежал частным лицам. В какой-то момент они захотели открыть в стенах сада детскую киношколу. В документах на сайте ЖК есть договор аренды между одним из владельцев киношколы и Московским земельным комитетом. В договоре говорится, что, начиная с 2002 года, участок на Ивановской, 19/21 отдается в аренду на 25 лет.
В сентябре 2010 года права и обязанности по договору перешли от киношколы к уже известной компании — "ЖК "На Ивановской".
Потом начались странности. К договору аренды на землю составили дополнительное соглашение. Оно было заключено между Департаментом городского имущества Москвы и "ЖК "На Ивановской". И это дополнительное соглашение меняло принципиальные условия аренды. Если раньше земля отдавалась "для осуществления образовательной деятельности", то теперь "для целей проектирования и строительства ... жилых и нежилых помещений".
Сумма аренды по договору с киношколой — сотни тысяч рублей. Сумма аренды по допсоглашению с ЖК "На Ивановской" — десятки миллионов рублей. За второй квартал 2018 года, например, застройщик должен заплатить по аренде 35,9 миллиона рублей. Допсоглашение меняло не только цену аренды, но и срок. Согласно новым правилам, договор действует до 9 сентября 2021 года.
— Земля, на которой стоит дом, находится в аренде до 2021 года. А что потом? — спрашиваю я менеджера во время беседы в офисе продаж.
— Будет пролонгация договора, — отвечает она и после паузы добавляет. — Этот вопрос вы будете обсуждать с нашими юристом. Он приедет сюда, вы сядете и все обсудите.
Когда местные жители протестовали против строительства ЖК "Тимирязев парк", в прессе поднялся шум. На этой волне вопросом возведения элитного дома заинтересовались правозащитники из Transparency International. По их данным, в июне 2015 года в состав учредителей "ЖК "На Ивановской" вошли некая Любовь Цветкова, ООО "Центроград" и зарегистрированный на Виргинских Островах офшор Nordnet Holdings Limited. Конечного бенефициара офшора Transparency определить не смогла, но выяснила, что ООО "Центроград" в тот момент принадлежала 23-летнему Максату Шеммедову, который приходится шурином Ильдуса Минниханова — советника заместителя мэра Москвы Марата Хуснуллина, отвечающего за градостроительную политику в Москве.
Принципиальное изменения в договоре аренды — с земли под образовательную деятельность на землю для строительства жилого комплекса, — произошло в момент, когда в состав учредителей застройщика входил "Центроград", отмечает Transparency.
"Там люди непростые. Мы не нашли бенефициаров, которые были заинтересованы в строительстве, — говорит мне по телефону муниципальный депутат Тимирязевского района Татьяна Михайлова и добавляет. — Верхние этажи сделали для лиц, заранее пожелавших там жить". Хуснуллин расследование Transparency никак не комментировал.
Окружение
Осмотрев квартиры в комплексе, я спустился в парк "Дубки". От дома его отделяет неширокий Ивановский переулок — асфальтовая дорога, о которой автомобилисты, кажется, и не догадываются. Здесь гуляют молодые мамы с колясками, дети катаются на роликах, мужчины выходят на пробежки.
В парке апрельское солнце припекает по-летнему. Утки вылезли из пруда и чистят перья. На мостике фоткается влюбленная парочка. В ротонде на пригорке отдыхают две пенсионерки. На детской площадке за моей спиной смех и визг ребятни. Дедушки и бабушки вместе с внуками кормят голубей. Здесь много воздуха и солнца. Делать ничего не хочется.
"У нас есть отдельный выход в парк, — вспоминаются мне слова менеджера Екатерины. — У каждого жильца есть карточка. Вы обходите дом, прикладываете карточку и попадаете в парк". Я оглядываюсь. Над парком возвышается ЖК "Тимирязев парк".
Выйдя из парка, я отправляюсь гулять по району. В радиусе километра от комплекса я обнаружил одну школу, одну гостиницу и четыре аптеки. На улице Немчинова работает поликлиника, рядом с ней строится детский сад, неподалеку находится еще один действующий. Далее расположены один спортзал с секцией по муай таю, три спортивные площадки. Рядом стоит одна музыкальная школа, два "Вкус Вилла", один "Перекресток" и еще несколько магазинов классом пониже. У метро "Тимирязевская" я нашел одну заправку, одну "Шоколадницу", один "Кофе-Хаус", один винный и один книжный магазины, парикмахерскую и один пункт полиции. Все — круг замкнулся. Я вернулся к той школе, откуда начал движение и опять вошел в парк.
Усевшись на лавочке, я открыл заключение Московского государственного университета природообустройства о воздействии ЖК "Тимирязев парк" на окружающую среду. Прогноз профессор Манукьян делает пессимистичный. В исследовании говорится, что в районе строительства высокий уровень грунтовых вод, в некоторых местах он достигает трех метров. 22-этажное здание, как следует из заключения, обязательно окажет влияние на гидрогеологию. Может произойти заболачивание территории и, как следствие, деградация парка "Дубки", говорится в отчете.
Я закончил чтение и снова огляделся. ЖК "Тимирязев парк" невозмутимо высился над парком. Кому-то там жить.
![ЖК "Тимирязев парк": с отличным видом из окна - Фото 18]()
ЖК "Тимирязев парк" видно из любой точки парка "Дубки" ![ЖК "Тимирязев парк": с отличным видом из окна - Фото 19]()
Экологи говорят, что комплекс может оказать негативное влияние на парк "Дубки"
- 3/5транспорт
- 3/5экология
- 3/5инфраструктура
- 3/5цена/качество



















Добавить отзыв