До заселения первых корпусов на территории "Москвички" еще год-полтора, а выбор свободных квартир уже невелик. Перспектива открытия станции "Столбово" в шаговой доступности привлекает многих. Школой со спортивным уклоном "Самбо 70" и хорошей экологией манит клиентов застройщик. О том, чем хорош ЖК и о чём никогда не расскажет менеджер продаж, обзор тайного покупателя.
О застройщике
Группа компаний "Гранель" работает на протяжении 25 лет. Инвестирует в строительные проекты, возводит и управляет жилыми и коммерческими объектами. Ранее она строила в регионах, а на рынке недвижимости Москвы появилась в 2011 году. В пределах МКАД компания не работает. Даже если корпуса возводятся в административных границах столицы, то это комплекс в Новой Москве.
"Гранель" комплексно подходит к освоению территории. В активе у девелопера есть масштабные стройки. Например, жилой комплекс "Алексеевская роща" в 7 км от МКАД по Щёлковскому шоссе занимает 20 га. На этом участке построено 15 корпусов от 19 до 25 этажей и объекты инфраструктуры.
К завершенным проектам или стройкам на финальном этапе "Гранель" относит ЖК "Валентиновка Парк" в Королёве, ЖК "Новотроицкий" в Новой Москве и ЖК "Лесной городок" в Балашихе. В активной фазе строительства у ГК "Гранель" 7 жилых комплексов.
Среди крупных проектов есть несколько для любителей камерного жилья. К примеру, ЖК "Малина" строится в Красногорском районе Московской области в шаговой доступности от ж/д станции Нахабино. Этажность домов здесь не превышает 8. Высота домов в ЖК "Императорские Мытищи" доходит только до 6 этажей.
Как правило, "Гранель" не берёт кредит на строительство домов, а использует те средства, которые получает от сдачи коммерческих помещений в аренду. В большинстве комплексов первые этажи занимают магазины, салоны красоты, аптеки и другие предприятия торговли и услуг.
Репутация "Гранель" не идеальна, хотя компанию можно поставить в верхние строчки списка ответственных застройщиков. Долгостроев на счету девелопера нет. Дольщики введённых в эксплуатацию комплексов говорят о задержке сроков сдачи домов, но не более, чем на 6 месяцев.
На форумах есть жители недовольные качеством строительства — неровными стенами, протекающими коммуникациями. Но в сегменте массового эконом-жилья редкий застройщик будет выглядеть белым и пушистым. Масштабность проектов даёт о себе знать, а невысокая стоимость квартир не позволяет использовать дорогие стройматериалы и нанимать строителей высокого уровня.
![ЖК "Москвичка": столичные амбиции в 5 км от МКАД - Фото 1]()
Корпуса 3 очереди были достроены и сданы в ЖК "Алексеевская роща" в 2016 году. Фото застройщика ![ЖК "Москвичка": столичные амбиции в 5 км от МКАД - Фото 2]()
Малоэтажный комплекс "Валентиновка-парк" в Королёве предназначен для проживания 7 500 семей. Фото застройщика ![ЖК "Москвичка": столичные амбиции в 5 км от МКАД - Фото 3]()
ЖК "Новотроицкий" расположился в 1 км от МКАД в посёлке Мосрентген. Фото застройщика ![ЖК "Москвичка": столичные амбиции в 5 км от МКАД - Фото 4]()
В Красногорском районе возводится жилой комплекс "Малина". Фото застройщика ![ЖК "Москвичка": столичные амбиции в 5 км от МКАД - Фото 5]()
По завершении строительства в ЖК "Императорские Мытищи" войдут 19 домов средней этажности
Образ "Москвички"
50 тысяч жилых квадратных метров, 5 корпусов от 8 до 15 этажей — территория комплекса занимает 19 гектаров. Помимо домов здесь появятся три детских сада и школа. Первые этажи корпусов отдадут под коммерческие организации.
Большинство зданий построены таким образом, что имеют замкнутую конфигурацию. Дворы закроют от машин и попасть туда можно будет через арку.
В каждом доме запроектирован подземный паркинг. К примеру, в 6 корпусе на 709 квартир предусмотрено 204 машиноместа. В корпусе 4 на двух подземных этажах разместятся 440 авто при количестве квартир 1376. Несложно подсчитать, что число подземных машиномест втрое меньше, чем квартир. И продавать их застройщик, судя по всему, не собирается, а будет сдавать в аренду. Обсуждения этой темы активно ведётся внутри компании, сумма ежемесячного платежа пока не называется.
В проектной декларации в качестве элементов благоустройства двора застройщик взял на себя обязательство организовать автостоянки. Но количество мест в официальном документе не указано.
Напротив корпуса 6 будет построена школа с физкультурным уклоном на 1125 учеников. Здесь разместится филиал центра спорта и образования "Самбо 70".
На территории будут функционировать 3 детских сада, которые смогут принять 465 воспитанников. И если еще полгода назад речь шла о том, что ДОУ сделают частными, то сейчас достигнута договорённость, что учреждения передадут на баланс городу. В 4 и 2 корпусах детские сады расположатся в пристройках, а перед 6 корпусом построят отдельно стоящее здание. В нём будет детский сад со спортивным уклоном.
В составе комплекса "Москвичка" запроектированы 3 бизнес-центра, которые расположатся с северо-восточной стороны комплекса по дороге к метро "Столбово".
![ЖК "Москвичка": столичные амбиции в 5 км от МКАД - Фото 6]()
"Москвичка" состоит из 5 многосекционных корпусов. Иллюстрация застройщика ![ЖК "Москвичка": столичные амбиции в 5 км от МКАД - Фото 7]()
Высотность секций - 8, 11 или 15 этажей. Иллюстрация застройщика ![ЖК "Москвичка": столичные амбиции в 5 км от МКАД - Фото 8]()
Под каждым из домов запроектирован подземный паркинг. Иллюстрация застройщика ![ЖК "Москвичка": столичные амбиции в 5 км от МКАД - Фото 9]()
Первые этажи домов отдадут под коммерческие организации. Иллюстрация застройщика ![ЖК "Москвичка": столичные амбиции в 5 км от МКАД - Фото 10]()
На территории разместятся три детских сада и школа со спортивным уклоном. Иллюстрация застройщика
Стройка и сроки
Земля в собственности у компании "Гранель" с 2008 года. Осенью 2017 года в наиболее высокой степени готовности находятся корпуса 6 и 4. Но и им пока до госкомиссии далеко. Сдача этих домов запланирована на июль и декабрь 2018 года.
В сентябре 2017 года в 6 корпусе завершают возведение наружных стен из керамического кирпича. В 4 корпусе заливают монолит на уровне от 8 до 13 этажа в зависимости от секции. Наружные стены выложены наполовину высотности дома, впоследствии фасад будет отделан облицовочным кирпичом. Видны и очертания двухэтажной пристройки детского сада, который откроет свои двери до конца 2018 года и станет первым в микрорайоне дошкольным учреждением.
Эксклюзивного дизайн-проекта входных групп не будет. Пока до чистового ремонта в подъездах строители ещё не дошли, так что менеджеры продаж владеют скромной информацией по этому вопросу. Известно лишь, что отделка входных групп будет выполнена в нейтральных тонах. Проектом дома предусмотрено помещения для консьержа. По грузовому и грузопассажирскому скоростному лифту установят в каждой секции.
Все квартиры, кроме студий, имеет выход на лоджию или балкон. На фасаде домов появятся корзины для блоков кондиционеров. Место расположения межкомнатных перегородок по плану обозначат бетонным блоками высотой 15 см. Стены возведут только в санузлах. Высота потолка в квартире без отделки 2,95 м.
Жилье передается владельцу без отделки. В квартирах делают горизонтальную разводку отопления, устанавливают радиаторы. Водопроводные трубы заведут в квартиру, электрические провода доведут до щитка. Все остальные работы по отделке помещения ложатся на плечи владельца.
Уже сейчас понятно, что наиболее презентабельный вид из окон будут иметь жильцы, чьи окна выходят на юго-восток. Именно с этой стороны на расстоянии 50 м от домов начинается лесной массив. В 4 корпусе квартиры с видом на него есть в 1 и 5 секциях, частично в 9 — там на юго-восток выходят окна с торца здания. По словам менеджера продаж, в лесополосе застройщик оборудует парковую зону, но никаких документальных подтверждений этой информации я не нашла.
Посекционных планировок 2 корпуса на сайте застройщика пока нет, но и в этом доме будут квартиры с хорошими видовыми характеристиками. В сентябре 2017 года он находится на стадии подготовки котлована. Продажи квартир в нём "Гранель" обещает открыть в октябре или ноябре.
До конца 2018 года должны сдать в эксплуатацию здание школы, но свои двери для учеников она откроет не ранее сентября 2019.
Все жилые дома застройщик планирует возвести до конца 2020 года, а коммерческие здания появятся в комплексе после них — в 2021 году.
![ЖК "Москвичка": столичные амбиции в 5 км от МКАД - Фото 11]()
ГК "Гранель" получила собственность на эту землю в 2008 году ![ЖК "Москвичка": столичные амбиции в 5 км от МКАД - Фото 12]()
В наибольшей степени готовности находятся корпуса 6 (справа на фото) и 4 (слева на фото) ![ЖК "Москвичка": столичные амбиции в 5 км от МКАД - Фото 13]()
6 корпус сдают в эксплуатацию летом 2018 года ![ЖК "Москвичка": столичные амбиции в 5 км от МКАД - Фото 14]()
2 корпус пройдёт госкомиссию не позднее декабря 2018 года ![ЖК "Москвичка": столичные амбиции в 5 км от МКАД - Фото 15]()
Параллельно с домом возводится пристройка к нему, где разместится детский сад на 125 мест ![ЖК "Москвичка": столичные амбиции в 5 км от МКАД - Фото 16]()
Дома строят по монолитно-кирпичной технологии ![ЖК "Москвичка": столичные амбиции в 5 км от МКАД - Фото 17]()
Отделка фасада предполагает использование облицовочного кирпича ![ЖК "Москвичка": столичные амбиции в 5 км от МКАД - Фото 18]()
В сентябре 2017 года готовится площадка для корпуса 2 ![ЖК "Москвичка": столичные амбиции в 5 км от МКАД - Фото 19]()
Квартиры с видом на лесной массив есть в некоторых секциях 2 и 4 корпусов ![ЖК "Москвичка": столичные амбиции в 5 км от МКАД - Фото 20]()
На территории комплекса будет построено образовательное учреждение "Самбо 70"
Планировки и цены
По словам менеджеров продаж, к сентябрю 2017 года многие клиенты разочарованно качают головой и уходят из офиса, принимая решение дождаться старта продаж во 2 корпусе. Действительно, квартиры в 6 и 4 разлетелись, как горячие пирожки, и вариантов осталось не так много.
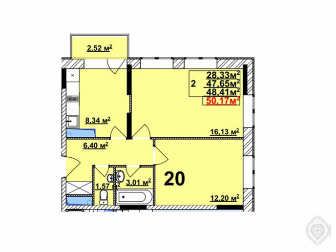
К примеру, трёшек в 6 корпусе нет вообще, а в 4 их осталось не более 5 штук. Площадь самой большой не превышает 62 кв. м, а её цена 5 100 тыс. рублей. Все трёхкомнатные квартиры в 4 корпусе — угловые, в гостиной площадью 15 кв. м одно из окон выходит на юго-восток и на лес, а второе — на западные секции дома.
Угловой может быть и двушка. Площадь таких квартир варьируется в пределах от 42 до 51 кв. м, а цена составляет от 4 100 до 4 400 тыс. рублей. Тем, кто предпочитает квартиры линейной планировки, застройщик может предложить средние секции 4 корпуса. Площадь жилья здесь будет 55 кв. м, а цена 4 600 тыс. рублей.
Однокомнатная квартира площадью от 35 до 38 кв. м обойдётся в 3 400 тыс. рублей. Студия от 20 до 27 кв. м стоит дешевле — от 2 100 тысяч. Студий в ЖК "Москвичка" много: 435 из 709 квартир в 6 корпусе и 771 из 1376 квартир в 4 корпусе. Разумеется, большое число малометражек увеличивает количество жителей на одном этаже. В 5 и 6 секциях 4 корпусов оно доходит до 16. Меньше всего соседей на площадке в 9 секции — там на этаже только 7 входных дверей.
![ЖК "Москвичка": столичные амбиции в 5 км от МКАД - Фото 21]()
Угловая трёхкомнатная квартира площадью 61 кв. м продаётся за 5 100 тыс. рублей ![ЖК "Москвичка": столичные амбиции в 5 км от МКАД - Фото 22]()
Двушка площадью 51 кв. м обойдётся в 4 400 тыс. рублей ![ЖК "Москвичка": столичные амбиции в 5 км от МКАД - Фото 23]()
Двухкомнатная линейка площадью 54,2 кв. м в продаже за 4 600 тыс. рублей ![ЖК "Москвичка": столичные амбиции в 5 км от МКАД - Фото 24]()
Однокомнатная квартира площадью 38 кв. м продаётся за 3 400 тыс. рублей ![ЖК "Москвичка": столичные амбиции в 5 км от МКАД - Фото 25]()
Стоимость студии площадью 25,4 кв. м 2 400 тыс. рублей ![ЖК "Москвичка": столичные амбиции в 5 км от МКАД - Фото 26]()
Почти половна всех квартир в 4 корпусе - малометражные студии, количество квартир на этаже доходит до 16
Офис и условия продаж
Искать офис продаж возле стройплощадки бесперспективно. Административное помещение расположили на улице Липовый парк, д. 6. И получается, что расстояние между офисом и стройкой — 2 км.
Сотрудники "Гранель" отвезут вас к комплексу на фирменном микроавтобусе, но попасть на территорию всё равно не выйдет — работает крупная техника, посещение объекта небезопасно. Возле въезда на стройку менеджер по показам предложит выйти из машины и оглядеться, сориентирует по сторонам света, объяснит, где и что строится и будет построено в будущем.
Пообщаться с менеджером в офисе можно как до показа, так и после. Но и в том, и в другом случае на встречу лучше записаться по телефону. В день моего посещения живая очередь двигалась медленно из-за того, что сотрудники принимали клиентов по записи. Многие не выдерживали ожидания и уходили.
Во время разговора за столом менеджер сориентирует по планировкам, стоимости и наличию квартир. Отмечу, что этой информации нет на сайте, указана лишь начальная цена однушек, двушек и трёшек. Поэтому общение с сотрудником будет единственным путём получения данной информации.
![ЖК "Москвичка": столичные амбиции в 5 км от МКАД - Фото 27]()
Офис продаж находится по адресу: п. Коммунарка, ул. Липовый парк, д. 6 ![ЖК "Москвичка": столичные амбиции в 5 км от МКАД - Фото 28]()
Живая очередь двигается крайне медленно, поэтому на встречу с менеджером продаж лучше записаться заранее ![ЖК "Москвичка": столичные амбиции в 5 км от МКАД - Фото 29]()
В офисе установлен детский уголок ![ЖК "Москвичка": столичные амбиции в 5 км от МКАД - Фото 30]()
Есть кулер с водой и кофемашина ![ЖК "Москвичка": столичные амбиции в 5 км от МКАД - Фото 31]()
На стройплощадку отвезёт фирменный микроавтобус
Транспортная доступность и экология
Осенью 2017 года добраться до ЖК "Москвичка" можно было по Калужскому шоссе, съехав с него в Коммунарку через 5 км после МКАДа. С Коммунаркой граничит деревня Столбово, где и возводится жилой комплекс.
К стройплощадке ведёт бетонка. По этой дороге раньше ездили только владельцы домов в коттеджном посёлке "Столбово-клаб", она ведёт к их КПП. Сейчас регулярно ездит строительная техника, дорогу разбили, поэтому к заселению 6 корпуса построят новую.
Если посмотреть на карту, то мы увидим, что ЖК "Москвичка" расположен как раз между двух автомагистралей. Они пока в проекте, но к 2019 году визуальный ряд в этом месте изменится. Лес напротив корпусов останется, а вот в районе подъездной дороги деревья вырубят. Здесь пройдёт трасса Солнцево-Бутово-Видное, которая будет иметь по три полосы движения в каждую сторону. Это полноценный дублёр южного участка МКАД, который в 2019 году свяжет четыре магистрали. С запуском этой дороги существенно разгрузятся подъезды к кольцевой.
От домов "Москвички" до трассы 500-800 метров. На таком же расстоянии расположится и новая станция Сокольнической линии метро "Столбово", вестибюли будут на шоссе. Первые поезда отправятся отсюда в начале 2019 года. То есть даже жителям 6 корпуса, который сдаётся первым, не придётся ждать запуска метро в шаговой доступности более 3 месяцев.
По западной границе комплекса пройдёт автодорога на аэропорт "Остафьево". Магистраль будет иметь от 4 до 6 полос движения. Реализация этого проекта запланирована на 2021 год. И до 1 и 2 корпусов ЖК "Москвичка" от дороги будет не более 200 м.
С точки зрения экологии, сейчас в Столбово — благодать: лес, птички поют, воздух пахнет приятно. Как скажется на природе строительство двух автомагистралей, доподлинно неизвестно, но чище здесь не станет. Цивилизация и транспортная доступность — это удобно, однако природой приходится жертвовать.
![ЖК "Москвичка": столичные амбиции в 5 км от МКАД - Фото 32]()
Добраться от МКАДа до ЖК "Москвичка" можно за 15 минут, свернув с Калужского шоссе в Коммунарку ![ЖК "Москвичка": столичные амбиции в 5 км от МКАД - Фото 33]()
Дорога к комплексу проходит через лесополосу ![ЖК "Москвичка": столичные амбиции в 5 км от МКАД - Фото 34]()
От деревни Столбово ЖК "Москвичка" находится в 600 м ![ЖК "Москвичка": столичные амбиции в 5 км от МКАД - Фото 35]()
В перспективе с двух сторон от комплекса пройдут крупные магистрали, станция метро "Столбово" расположится на дороге Солнцево-Бутово-Видное ![ЖК "Москвичка": столичные амбиции в 5 км от МКАД - Фото 36]()
Лесополоса между деревней Столбово и комплексом "Москвичка" будет вырублена
Внешняя инфраструктура
Поликлинику в Столбово строит государство. Четырёхэтажное здание рассчитано на 140 посещений в смену. В медицинском учреждении будут работать терапевты и врачи специального профиля. Планируется оборудовать кабинеты функциональной диагностики.
Помимо поликлиники в районе построят многофункциональный медицинский центр. Об этом мэр Москвы объявил в феврале 2016 года. В состав учреждения войдёт амбулаторно-диагностические, стационарные отделения и родильный дом. Открытие медицинского центра запланировано на 2019 год.
Пока в ЖК "Москвичка" будут строиться свои образовательные учреждения, жители могут отводить детей в школу №2070, где есть и дошкольное отделение. Она находится в 1,3 км от жилого комплекса, но к моменту заселения застройщик обещает запустить автобусное движение в сторону Коммунарки.
На улице Александры Монаховой, что в 1,5 км от домов, располагаются ТЦ "Коммунарка", магазин "Перекрёсток", фреш-маркет "Зелёный луг", "Дикси" и другие торговые точки. Однако можно смело предположить, что магазины появятся и в самом ЖК "Москвичка", поэтому его жителям не придётся на автобусе ездить за хлебом.
![ЖК "Москвичка": столичные амбиции в 5 км от МКАД - Фото 37]()
Строительство поликлиники финансирует Правительство Москвы ![ЖК "Москвичка": столичные амбиции в 5 км от МКАД - Фото 38]()
Медицинское учреждение для детей и взрослых рассчитано на 140 посещений в смену ![ЖК "Москвичка": столичные амбиции в 5 км от МКАД - Фото 39]()
Один из ближайших соседей ЖК "Москвичка" - ЖК "Гарден парк Эдальго" ![ЖК "Москвичка": столичные амбиции в 5 км от МКАД - Фото 40]()
От ЖК "Москвичка" до Коммунарки чуть больше 1 км, здесь находятся основные социальные учреждения, торговые объекты, спортивный комплекс "Прометей"
- 3/5транспорт
- 4/5экология
- 3/5инфраструктура
- 3/5цена/качество








































Комментарии
александр
5 лет назад