Здесь есть даже лоси, пишут на форумах. Жилой комплекс находится в окружении 5,5 тысяч га леса. С точки зрения экологии, место под строительство нового микрорайона выбрано удачное. Но первые жильцы, кроме собственной квартиры и свежего воздуха, не имеют ничего. Инфраструктура ощутимо запаздывает. Выясним, кто и что тут затеял.
Позвольте представить: Ikon development
Имя "Айкон-девелопмент" мало у кого вызывает хоть какие-то ассоциации. Знают о компании, пожалуй, только дольщики ЖК "Новый Зеленоград". Именно они доверились девелоперу, который не имеет ровно никакой репутации на рынке отечественной недвижимости.
ООО "Айкон-девелопмент" зарегистрировано в Федеральной налоговой службе, Пенсионном фонде и Фонде социального страхования в апреле 2014 года. В качестве генерального директора предприятия фигурирует Евгения Акимова, которая также на позиции гендиректора руководит ООО "Айкон-Риэлти".
Учредителем "Айкон-Риэлти" является некий Игорь Козельцев. Он же – генеральный директор ООО "Кутузовское – 1", которое выступает застройщиком ЖК "Новый Зеленоград". И хотя 100% акций застройщика принадлежат кипрской "Тиноссо Инвестментс", связи с девелопером очевидны. По сути, жилой комплекс – и его финансирование, и строительство – находится в одних руках. Хочется верить, что надёжных.
У "Айкон-девелопмент" только два проекта. Это ЖК "Новый Зеленоград" и ЖК "Новое Сколково" в Одинцовском районе. Последний летом 2017 года находится на стадии разработки и пока даже не имеет собственного ресурса в сети. Однако известно, что новые девятиэтажки будут возводить в городском поселении Заречье на Боровском шоссе в 500 м от МКАДа. Ближайшим к комплексу метро станет станция "Говорово" (она же "Терёшкино", название ещё не утверждено), открытие которой запланировано на 2020 год.
К середине 2017 года единственным строительным достижением "Айкон-девелопмент" является корпус 4 в ЖК "Новый Зеленоград". Старт оказался не безупречным. Дом был введён в эксплуатацию на 4 месяца позже прописанных в ДДУ сроков.
Отстаивая репутацию компании, менеджер в офисе продаж заявил, что задержка заселения пошла на пользу жителям. Неоднозначное изречение он пояснил так — причина срыва сроков была в длительном согласовании коммуникаций. Застройщик сознательно пошёл более сложным и долгим путём, чтобы подвести к дому московские трубы из Зеленограда, а не областные из деревень Солнечногорского района. Напомню, город Зеленоград юридически считается территорией Москвы.
Казалось бы, какая разница, куда течёт канализация. Но, по словам менеджера продаж, в будущем микрорайону Кутузовскому, где строится жилой комплекс, будет проще войти в состав Зеленограда. Для этого нужно заселить 9 домов первой очереди и устроить голосование. Если большинство жителей предпочтут московскую прописку областной, микрорайон передадут в ведение столицы.
Пока что всё это лишь теория оправданий застройщика, который вовремя не сдал объект. До дела дойдёт не раньше 2021 года. Что из этого выйдет, покажет время.
![ЖК "Новый Зеленоград": 50 оттенков яркого - Фото 1]()
ЖК "Новое Сколково" – второй проект, который разрабатывает "Айкон-девелопмент" ![ЖК "Новый Зеленоград": 50 оттенков яркого - Фото 2]()
92 га территории выкуплено под строительство ЖК "Новый Зеленоград" ![ЖК "Новый Зеленоград": 50 оттенков яркого - Фото 3]()
Дебютный корпус 4 "Нового Зеленограда" был введён в эксплуатацию с задержкой на 4 месяца
Что задумано и когда построят?
На площади 92 га компания "Айкон-девелопмент" строит новый город – "Новый Зеленоград". На компьютерном изображении генплана можно насчитать порядка 40 жилых домов. Известно, что в первые две очереди строительства войдут 18 многоэтажек и ещё некоторые объекты инфраструктуры. Но предметнее пока можно говорить только о первой очереди комплекса: здесь и стройка идёт, и даты введения в эксплуатацию обозначены.
В первую очередь комплекса войдут 9 домов. При этом с 1 по 5 – корпуса многосекционные 13-15-этажные, а с 6 по 9 – это одноподъездные семнадцатиэтажки башенного типа. Первую очередь должны заселить не позднее 2021 года. Летом 2017 точные даты известны по тем домам, квартиры в которых уже выведены на рынок:
- 4 корпус – заселён;
- 6 и 7 корпуса – IV кв. 2017 года;
- 8 и 9 корпус – II кв. 2018 года.
К концу строительства первой очереди между 4 и 5 корпусами будет построен муниципальный детский сад на 216 мест и общеобразовательная школа на 1325 учеников.
После 2020 года, помимо второй девятки домов в рамках второй очереди, застройщик обещает ещё один детский сад и поликлинику на 360 посещений в смену. Придомовая территория к тому времени должна заметно преобразиться: здесь будут велосипедные дорожки, 1500 метров прогулочных бульваров, площадка для выгула собак, игровые и зоны массового отдыха. На территории микрорайона будет работать бесплатный wi-fi. Без определённых сроков здесь анонсируют и строительство многоэтажного наземного паркинга, двух спортивных комплексов, офисного и торгового центров.
Официальные документы и проектные декларации объектов второй и последующих очередей пока не представлены, так что обратим внимание на то, что по факту есть в ЖК "Новый Зеленоград".
![ЖК "Новый Зеленоград": 50 оттенков яркого - Фото 4]()
Напротив ЖК "Новый Зеленоград" начинается природоохранная зона, создание парков в которой запрещено – там останется только лес ![ЖК "Новый Зеленоград": 50 оттенков яркого - Фото 5]()
Микрорайон спроектирован архитектурным бюро "Speech Чобан&Кузнецов" ![ЖК "Новый Зеленоград": 50 оттенков яркого - Фото 6]()
Жилой комплекс строится в классе "комфорт плюс" ![ЖК "Новый Зеленоград": 50 оттенков яркого - Фото 7]()
Для отделки вентилируемых фасадов используется плитка ярких оттенков ![ЖК "Новый Зеленоград": 50 оттенков яркого - Фото 8]()
В микрорайоне построят торгово-офисный центр, где появится 10 тыс. рабочих мест ![ЖК "Новый Зеленоград": 50 оттенков яркого - Фото 9]()
Строительство наземного паркинга запланировано не ранее второй очереди, после 2020 года ![ЖК "Новый Зеленоград": 50 оттенков яркого - Фото 10]()
За корпусом 4 к 2020 году будет построен детский сад на 216 мест
4 корпус как образец
Летом 2017 года заселяется 4 корпус. Складывается впечатление, что там пока живут только ремонтные бригады — за дверями квартир работает перфоратор, рабочие выгружают стройматериалы, домофоны не работают, в подъезд можно попасть беспрепятственно. Работает ли видеонаблюдение, неизвестно, но камеры висят как по периметру дома, так и при входе и в лифтовых холлах. На этажах и в лифтах камер нет.
На первых этажах есть комната консьержа, располагаются помещения для хранения детских колясок и велосипедов. Чтобы получить дубликат ключа от колясочной, нужно написать заявление в управляющей компании. Лифты Otis спускаются на цокольный этаж, где располагаются кладовые помещения.
4 корпус представляет собой семисекционное здание в форме буквы П. Разноцветный фасад дома виден издалека, каждая секция имеет свой цвет: например, пятая – оранжевый, а вторая – цвет морской волны. Наличие корзин под уличные блоки кондиционеров позволяют не портить внешний облик дома.
Территория двора безопасна для детей, машины здесь не ездят. На детской и спортивной площадках – покрытие из резиновой крошки. Парковочные карманы оборудованы с внешней стороны дома.
![ЖК "Новый Зеленоград": 50 оттенков яркого - Фото 11]()
Корпусу 4 присвоен адрес: мкр. Кутузовский, д. 2 ![ЖК "Новый Зеленоград": 50 оттенков яркого - Фото 12]()
На территории ведётся видеонаблюдение ![ЖК "Новый Зеленоград": 50 оттенков яркого - Фото 13]()
В доме сквозные подъезды, удобно выходить как во двор, так и на улицу или на парковку ![ЖК "Новый Зеленоград": 50 оттенков яркого - Фото 14]()
Установлены домофоны с возможностью проведения видеосвязи в квартиру ![ЖК "Новый Зеленоград": 50 оттенков яркого - Фото 15]()
Помещение для консьержа в каждом подъезде ![ЖК "Новый Зеленоград": 50 оттенков яркого - Фото 16]()
Просторный лифтовый холл с высотой потолков не менее 4 м ![ЖК "Новый Зеленоград": 50 оттенков яркого - Фото 17]()
За счёт больших окон и стеклянных дверей в подъезде много естественного света ![ЖК "Новый Зеленоград": 50 оттенков яркого - Фото 18]()
Лестницы оборудованы подъёмными механизмами для детских и инвалидных колясок ![ЖК "Новый Зеленоград": 50 оттенков яркого - Фото 19]()
На стены нанесены указатели отдельных зон, чтобы гости не заблудились ![ЖК "Новый Зеленоград": 50 оттенков яркого - Фото 20]()
Чтобы получить дубликат ключа от колясочной, нужно написать заявление в управляющей компании ![ЖК "Новый Зеленоград": 50 оттенков яркого - Фото 21]()
Стенд с информацией управляющей компании вывешен около лифтов ![ЖК "Новый Зеленоград": 50 оттенков яркого - Фото 22]()
В подъездах установлены лифты Otis – по одному грузовому и одному пассажирскому ![ЖК "Новый Зеленоград": 50 оттенков яркого - Фото 23]()
На время проведения отделочных работ и заселения жильцов кабины лифтов обшиты фанерой, чтобы обезопасить стены от царапин ![ЖК "Новый Зеленоград": 50 оттенков яркого - Фото 24]()
Лифты спускаются на цокольный этаж к кладовым помещениям ![ЖК "Новый Зеленоград": 50 оттенков яркого - Фото 25]()
Спуститься на цокольный этаж можно и по лестнице ![ЖК "Новый Зеленоград": 50 оттенков яркого - Фото 26]()
На этаже в 4 корпусе располагается по 4-5 квартир ![ЖК "Новый Зеленоград": 50 оттенков яркого - Фото 27]()
Пожарная лестница в 4 корпусе светлая, здесь есть окна ![ЖК "Новый Зеленоград": 50 оттенков яркого - Фото 28]()
Так выглядит придомовая территория корпуса 4 ![ЖК "Новый Зеленоград": 50 оттенков яркого - Фото 29]()
2, 4 и 6 секции в корпусе 4 имеют по 15 этажей, в остальных - по 13 ![ЖК "Новый Зеленоград": 50 оттенков яркого - Фото 30]()
На фасад вынесены корзины для внешних блоков кондиционеров ![ЖК "Новый Зеленоград": 50 оттенков яркого - Фото 31]()
Во дворе, закрытом от машин, оборудована детская площадка ![ЖК "Новый Зеленоград": 50 оттенков яркого - Фото 32]()
Покрытие из резиновой крошки безопасно для детей ![ЖК "Новый Зеленоград": 50 оттенков яркого - Фото 33]()
Детская и спортивная площадки оснащены оборудованием датского бренда Kompan ![ЖК "Новый Зеленоград": 50 оттенков яркого - Фото 34]()
Территория двора чистая и ухоженная ![ЖК "Новый Зеленоград": 50 оттенков яркого - Фото 35]()
Газоны аккуратно подстрижены как во дворе, так и по периметру дома ![ЖК "Новый Зеленоград": 50 оттенков яркого - Фото 36]()
Парковочные карманы расположены вокруг дома
Строительство: процесс и детали
В ЖК "Новый Зеленоград" нет однотипных домов, все строятся по индивидуальным проектам. Даже если внешне они похожи, начинка – количество и планировки квартир – может быть разной. Корпуса возводятся по монолитной технологии: бетоном залит "скелет", наружные стены выкладываются из газобетонных блоков. Затем дома утепляют, а вентилируемый фасад облицовывают плиткой ярких цветов.
У 6 и 7 корпусов в проектной декларации стоит одинаковый временной рубеж сдачи в эксплуатацию – это конец 2017 года. Но 6 корпус идёт чуть впереди, в июле 2017 года строители уже приступили к облицовке фасада. В 7 корпусе продолжается остекление. Монолитные работы завершены в обоих домах, и башенные краны переезжают на новые площадки. Готовится участок под котлован 1 корпуса, вывозится грунт с того места, где вырастут башни 8 и 9.
![ЖК "Новый Зеленоград": 50 оттенков яркого - Фото 37]()
Дома строятся по монолитной технологии ![ЖК "Новый Зеленоград": 50 оттенков яркого - Фото 38]()
На "скелете" 7 корпуса видно, что монолитный каркас дополняется блоками из газобетона ![ЖК "Новый Зеленоград": 50 оттенков яркого - Фото 39]()
Стены 6 корпуса уже утеплены, началась облицовка фасада ![ЖК "Новый Зеленоград": 50 оттенков яркого - Фото 40]()
Так выглядит придомовая территория 6 и 7 корпусов за полгода до заселения ![ЖК "Новый Зеленоград": 50 оттенков яркого - Фото 41]()
Строители укладывают брусчатку на подъездной дороге ![ЖК "Новый Зеленоград": 50 оттенков яркого - Фото 42]()
Справа от 4 корпуса готовится котлован для дома №1 ![ЖК "Новый Зеленоград": 50 оттенков яркого - Фото 43]()
Техника вывозит грунт с места, где позже вырастут корпуса 8 и 9
Планировки и цены
В готовом 4 корпусе нет студий, площадь однокомнатных квартир составляет 35 кв. м. Без лоджии такая будет стоить от 3 400 до 3 500 тыс. рублей. С лоджией – до 3 680 тыс. рублей.
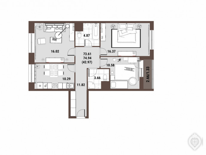
Метраж двухкомнатных квартир варьируется в пределах от 52,5 до 64,3 кв. метров. Вниманию покупателя предлагаются как классические планировки с отдельной кухней, так и евродвушки, где гостиная объединена с кухней, а во второй комнате располагается спальня. Но всё же это деление условно, потому что перегородку между кухней и гостиной легко как снести, так и поставить. Расположение окон во всех квартирах это позволяет, в зоне предполагаемой кухни всегда есть окно. Самая бюджетная двушка площадью 52,56 кв. метров обойдётся в 4 100 тыс., а самая большая в 5 240 тыс. рублей.
Трёхкомнатные квартиры в 4 корпусе есть только в 5 и 7 секциях, в любой из них окна выходят на разные стороны дома. Планировки идентичны, только на 2-4 этажах нет лоджий, выше – есть. Площадь таких квартир примерно 75-78 кв. метров, а средняя стоимость 6 000 тыс. рублей.
Главная особенность корпусов-башен 6–9 состоит в том, что максимальная площадь квартиры здесь не превышает 64 кв. метров. Они позиционируются как евротрёшки с двумя спальнями. В зависимости от этажа такие стоят 4 500 тыс. рублей. Евродвушки не сильно уступают им по метражу и по цене. Например, 55-метровая обойдётся в 4 200 тыс. рублей. Все двух- и трёхкомнатные квартиры в корпусах-башнях – угловые, поэтому в каждой по четыре окна и много света.
Стоимость студий площадью от 21 до 26 кв. м варьируется в пределах от 2 000 тыс. до 2 500 тыс. рублей. Однокомнатные квартиры остались только в корпусе 7, их площадь 31,1 кв. метр, а стоимость от 2 600 тыс. до 2 930 тыс. рублей в зависимости от этажа (чем выше, тем дороже). Метраж небольших квартир редко позволяет создать уникальную планировку, но отмечу, что часть студий в 6 и 7 корпусах имеет по два окна, второе из которых часто с лоджией. Это делает квартиру светлой и при желании позволяет поставить перегородку между кухней и спальней.
К лету 2017 года в 8 и 9 корпусах застройщик вывел на рынок только студии и однокомнатные квартиры. Строительство этих домов ещё не началось, возможно, двушки и трёшки появятся позже. Небольшую квартиру здесь можно купить за 1 600-2 700 тыс. рублей. Её площадь будет от 21 до 30 кв. метров.
Цены даны на июль 2017 года и не учитывают стоимость отделки. В дополнение к квартире застройщик предлагает покупателю приобрести кладовку на цокольном этаже. Площадь кладовых от 2,5 до 3 кв. метров, а стоимость 170-200 тыс. рублей в строящемся доме и до 220 тыс. в готовом.
![ЖК "Новый Зеленоград": 50 оттенков яркого - Фото 44]()
Однокомнатная квартира площадью 34,28 кв. м продаётся в готовом 4 корпусе за 3 650 тыс. рублей ![ЖК "Новый Зеленоград": 50 оттенков яркого - Фото 45]()
Двухкомнатная квартира площадью 59,52 кв. м стоит в том же доме 4 100 тыс. рублей ![ЖК "Новый Зеленоград": 50 оттенков яркого - Фото 46]()
Евродвушка метражом 55,6 кв. м обойдётся в 4 476 тыс. рублей ![ЖК "Новый Зеленоград": 50 оттенков яркого - Фото 47]()
Асимметричные квартиры предлагают в 3 секции 4 корпуса. Такая на 8 этаже стоит 4 376 тыс. рублей, площадь 51,67 кв. м ![ЖК "Новый Зеленоград": 50 оттенков яркого - Фото 48]()
Трёхкомнатная квартира с 10-метровой кухней и лоджией в одной из комнат. Её площадь 76,63 кв. м, а цена 6 270 тыс. рублей ![ЖК "Новый Зеленоград": 50 оттенков яркого - Фото 49]()
Студию с двумя окнами в 7 корпусе предлагают за 2 430 тыс. рублей, площадь 25 кв. м ![ЖК "Новый Зеленоград": 50 оттенков яркого - Фото 50]()
Евродвушка с угловым остеклением на последнем этаже 7 корпуса продаётся за 3 230 тыс. рублей, метраж 37,8 ![ЖК "Новый Зеленоград": 50 оттенков яркого - Фото 51]()
Угловая евротрёшка с четырьмя окнами и угловым остеклением в комнате стоит 4 365 тыс. рублей, корпус 7, площадь 65,4 кв. м
Отделка в 3 классах
Квартиры в ЖК "Новый Зеленоград" продаются без отделки и со свободной планировкой. Официальный партнёр застройщика компания "Этажи" предлагает несколько пакетов финишной отделки на выбор, стоимость материалов включена в цену за кв. метр. Черновая обойдется в 7 тыс. рублей за кв. м, "База" — 12 тыс. рублей, "Комфорт" — 15 тыс. рублей и "Бизнес" — 17 тыс. рублей.
Перечень работ по чистовой отделке включает:
- установку межкомнатных дверей;
- розетки, выводы проводов под светильники и выключатели;
- натяжные потолки;
- оклейка стен флизелиновыми обоями под покраску в комнатах и на кухне;
- санузел "под ключ" — плитка на стенах и на полу, акриловая ванна, раковина, смесители, унитаз.
В разных пакетах используются различные материалы. Например, в "Комфорте" устанавливаются межкомнатные двери с покрытием из эко-шпона, а в "Бизнесе" – из натурального. Все стены в "бизнес-санузлах" облицованы плиткой от пола до потолка, а в менее дорогих пакетах плитку на стенах кладут только возле ванны и раковины, другие стены красят краской. Тёплый пол в санузлах включён в пакет "Комфорт", в пакете "Бизнес" утепляют пол ещё и на кухне. Только при оплате пакета "Бизнес" в квартире устанавливается видеодомофон и кондиционер Samsung в одном из помещений.
Любые необходимые опции можно включить в менее дорогие пакеты при дополнительной оплате. К примеру, кондиционер с установкой обойдётся в 35 тыс. рублей. Это одна из конвекционных моделей, которая работает и на охлаждение, и на обогрев помещения.
Перед тем, как рабочие приступят к отделке в вашей квартире, вы сядете вместе с дизайнером и будете рисовать проект. Специалист учтёт ваши пожелания относительно электрики и расположения межкомнатных перегородок. Менеджеры предупреждают: если вы решите расставить стены не там, где предполагает застройщик, согласовывать план квартиры в БТИ придётся самостоятельно. Однако это процедура не вызывает затруднений, если не сносить несущие стены и не переносить мокрые зоны.
На выбор владельца дизайнеры предлагают 3 стиля отделки квартиры: прованс, поп-арт и минимализм. Выбранные стили можно комбинировать по желанию.
![ЖК "Новый Зеленоград": 50 оттенков яркого - Фото 52]()
В шоу-руме можно оценить качество отделочных материалов и получить представление о будущей квартире ![ЖК "Новый Зеленоград": 50 оттенков яркого - Фото 53]()
Во всех пакетах финишной отделки используются обои под покраску ![ЖК "Новый Зеленоград": 50 оттенков яркого - Фото 54]()
Цвет стен и ламината выбирает заказщик ![ЖК "Новый Зеленоград": 50 оттенков яркого - Фото 55]()
В базовом пакете отделки используется ламинат 32 класса износостойкости, а в "комфорте" и "бизнесе" кладут покрытие 33 класса ![ЖК "Новый Зеленоград": 50 оттенков яркого - Фото 56]()
В качестве дополнительной опции партнёр застройщика предлагает заменить ламинат на паркетную доску ![ЖК "Новый Зеленоград": 50 оттенков яркого - Фото 57]()
В шоу-руме использован плинтус ПВХ, который предлагают в базовой отделке, но в пакетах "комфорт" и "бизнес" будет использован пенополистерольный плинтус шириной 45 и 80 мм ![ЖК "Новый Зеленоград": 50 оттенков яркого - Фото 58]()
Высота окон в квартирах ЖК "Новый Зеленоград" достигает 2 м ![ЖК "Новый Зеленоград": 50 оттенков яркого - Фото 59]()
В шоу-руме, как и в квартирах, высота потолка составляет 3,15 м ![ЖК "Новый Зеленоград": 50 оттенков яркого - Фото 60]()
В пакете "комфорт" устанавливают межкомнатные двери с покрытием из эко-шпона ![ЖК "Новый Зеленоград": 50 оттенков яркого - Фото 61]()
В "бизнесе" межкомнатные двери будут покрыты натуральным шпоном ![ЖК "Новый Зеленоград": 50 оттенков яркого - Фото 62]()
В базовом пакете отделки устанавливается не более 4 розеток на одно помещение, в пакетах повышенного класса клиент не ограничен в их количестве, сделают в соответствии с дизайн-проектом ![ЖК "Новый Зеленоград": 50 оттенков яркого - Фото 63]()
Во все пакеты входит одинаковая акриловая ванна с пластиковым экраном, есть возможность заказать чугунную ванну за дополнительную плату ![ЖК "Новый Зеленоград": 50 оттенков яркого - Фото 64]()
В "базе" и "комфорте" керамическая плитка на стенах будет только возле раковины и ванной, в "бизнесе" плиткой облицовывают санузел целиком ![ЖК "Новый Зеленоград": 50 оттенков яркого - Фото 65]()
Во всех пакетах используется керамическая плитка белорусского производства ![ЖК "Новый Зеленоград": 50 оттенков яркого - Фото 66]()
Устанавливается сантехника отечественного производства, например, воронежского бренда Valente ![ЖК "Новый Зеленоград": 50 оттенков яркого - Фото 67]()
В пакете "бизнес" будет установлен унитаз с инсталляцией ![ЖК "Новый Зеленоград": 50 оттенков яркого - Фото 68]()
Во всех помещениях делают натяжной потолок ![ЖК "Новый Зеленоград": 50 оттенков яркого - Фото 69]()
В шоу-руме представлены стенды с цветовой гаммой разных стилей отделки ![ЖК "Новый Зеленоград": 50 оттенков яркого - Фото 70]()
Керамическая плитка таких оттенков будет использована в стиле "Прованс"
Ориентация на местности
ЖК "Новый Зеленоград" строится в 500 метрах от южной границы Зеленограда с областью. Кроме полутора домов комплекса, здесь пока ничего нет. С одной стороны – поле, с другой – лес. В 50 метрах от корпуса 4 проходит четырёхполосное Кутузовское шоссе, которое соединяет Пятницкое шоссе с Зеленоградом. Кутузовское – незагруженная трасса, представить здесь пробку пока что сложно.
Доехать до ЖК из Москвы можно по Пятницкому шоссе или по Ленинградке. В качестве ещё одной альтернативы есть платная трасса М-11. Доехать от Зеленограда до МКАДа можно за 300 рублей днём и за 350 рублей утром и вечером. В ночное время проезд стоит 100 рублей.
Напротив 4 корпуса есть остановки общественного транспорта – по обеим сторонам шоссе. Пешеходный светофор стоит, но пока не работает. Здесь останавливаются автобусы, которыми можно добраться до Зеленограда, станции пригородных электропоездов "Крюково", метро "Пятницкое шоссе". Что примечательно – это московские автобусы, стоимость проезда 35 рублей. При оплате картой "Тройка" за дальнейшую поездку на метро с карты спишут только 19 рублей.
В небе ровно по диагонали пересекают двор 4 корпуса самолёты из Шереметьево. Именно здесь проходит глиссада, по которой лайнеры взлетают или заходят на посадку. Во время моего визита зеленоградское направление работало на взлёт.
Аэропорт находится в 14 км от "Нового Зеленограда". Если учесть, что скорость, к примеру, популярного Airbus A320 на взлёте составляет 220 км/ч, то к тому моменту, как после отрыва от земли он окажется над Зеленоградом, пройдёт не более 4 минут. В это время двигатели лайнера ещё работают на максимальных оборотах, идёт набор высоты. Громко ли это, шумно ли, сказать сложно. Но, к примеру, если сидеть во дворе на скамейке и разговаривать с приятелем, невозможно не повысить голос, пока пролетает самолёт, иначе друг вас не услышит.
ЖК "Новый Зеленоград" строится в поле. Пока что об инфраструктуре даже написать нечего, её просто нет. Первые этажи, отведённые под коммерческие помещения, пустуют. Это и неудивительно, в доме ещё мало жильцов, и бизнес здесь не рентабелен. В шаговой доступности нет магазинов. В полутора километрах в сторону Зеленограда есть "Перекрёсток", на таком же расстоянии в сторону деревни Брёхово – "Пятёрочка". Там же находится строительный рынок.
Все социальные объекты доступны первым жителям ЖК "Новый Зеленоград" в самом Зеленограде. Ближайшая поликлиника №201 находится в 2,5 км от домов. Общеобразовательная школа есть в 16 мкр. Зеленограда, это в 4 км от ЖК. До Кутузовской школы на Пятницком шоссе 3 км. Коммерческий детский сад откроется в ближайшие месяцы в 7 секции 4 корпуса. Это одно из учреждений сети "Маленькая страна", где дети изучают английский язык с 3 лет. Стоимость посещения составит 5 тыс. рублей в месяц. Летом 2017 года в помещении сада идёт внутренняя отделка.
![ЖК "Новый Зеленоград": 50 оттенков яркого - Фото 71]()
Кутузовское шоссе, что ведёт в ЖК "Новый Зеленоград", имеет по две полосы движения в каждую сторону ![ЖК "Новый Зеленоград": 50 оттенков яркого - Фото 72]()
Даже в час пик здесь не бывает заторов, так как в округе нет никакой инфраструктуры, и трасса справляется с потоком машин ![ЖК "Новый Зеленоград": 50 оттенков яркого - Фото 73]()
Самолёты из Шереметьево летают над домами на такой высоте, что в ясный день можно разглядеть логотип авиакомпании ![ЖК "Новый Зеленоград": 50 оттенков яркого - Фото 74]()
В ЖК "Новый Зеленоград" идёт набор детей с 1,5 до 7 лет в детский сад с изучением английского языка ![ЖК "Новый Зеленоград": 50 оттенков яркого - Фото 75]()
Ближайший к домам комплекса объект торговой инфраструктуры – это строительный рынок перед поворотом на Пятницкое шоссе ![ЖК "Новый Зеленоград": 50 оттенков яркого - Фото 76]()
На Пятницком шоссе находится один из крупнейших торговых центров Подмосковья торговый парк "Отрада" с множеством магазинов, кафе, кинотеатром, гипермаркетом "Окей"
Приобретение
Офис продаж находится в 200 м от стройки. Большой и высокий шатёр сложно не заметить. Несмотря на внешне полевые условия, внутри за стеклянными дверями расположились индивидуальные переговорные комнаты, здесь же находится шоу-рум, есть детская игровая зона. Секретарь на ресепшен предложит вам чай или кофе.
Купить квартиру в ЖК "Новый Зеленоград" можно по одной из 29 ипотечных программ различных банков. Ещё три доступны в рамках военной ипотеки. Приобрести жильё в 4 и 6 корпусах без первоначального взноса предлагает банк "Возрождение", процентная ставка здесь составит 13%. Невысокий процент в пределах 11% предлагают "Россельхозбанк", ВТБ24, "СургутНефтеГазБанк" и "Промсвязьбанк". Сбербанк кредитует владельцев квартир в ЖК "Новый Зеленоград" под 11,5% годовых. В рамках военной ипотеки "Газпромбанк" предлагает купить квартиру под 10,7%.
Застройщик разработал и систему беспроцентной рассрочки. К примеру, оплату квартиры в 6 и 7 корпусах можно разбить на 3 платежа. Последний надо внести не позднее 30 ноября 2017 года за квартиру в 6 корпусе и не позднее 30 апреля 2018 года за жильё в 7.
![ЖК "Новый Зеленоград": 50 оттенков яркого - Фото 77]()
Офис продаж располагается в шатре в 200 м от жилого комплекса ![ЖК "Новый Зеленоград": 50 оттенков яркого - Фото 78]()
Въезд на территорию офиса с Кутузовского шоссе ![ЖК "Новый Зеленоград": 50 оттенков яркого - Фото 79]()
На территории есть парковка и детская площадка ![ЖК "Новый Зеленоград": 50 оттенков яркого - Фото 80]()
Вход в шатёр расположен по центру с левой стороны от парковки ![ЖК "Новый Зеленоград": 50 оттенков яркого - Фото 81]()
Внутри шатра располагается просторный офис размером с теннисный корт ![ЖК "Новый Зеленоград": 50 оттенков яркого - Фото 82]()
Представлен объёмный макет первой очереди ЖК ![ЖК "Новый Зеленоград": 50 оттенков яркого - Фото 83]()
Игровая зона для детей расположена напротив ресепшен ![ЖК "Новый Зеленоград": 50 оттенков яркого - Фото 84]()
В офисе можно проконсультироваться как с менеджером продаж, так и с ипотечным консультантом и со специалистом по отделке квартиры
- 3/5транспорт
- 4/5экология
- 3/5инфраструктура
- 3/5цена/качество




















































































Добавить отзыв