Если смотреть на ЖК "Крылья" сверху, форма башен напоминает хвост субмарины. Необычная архитектура привлекает внимание к комплексу. Дома уже возвышаются над районом и на стройплощадке есть на что посмотреть. Чтобы оценить предложения застройщика, отправляемся на запад столицы.
Транспортная доступность
Новостройку "Группа Эталон" возводит в московских Раменках, которые входит в состав Западного административного округа. По территории района пролегает несколько крупных автомагистралей: проспекты Вернадского, Мичуринский и Ломоносовский.
Улица Лобачевского проходит в 230 метрах от 1 корпуса. Эта дорога входит в первый участок Южной рокады от Рублёвского шоссе до Балаклавского проспекта. Новая магистраль идёт от МКАДа сквозь Западный округ и соединяет его с Пролетарским проспектом, а в перспективе — с Братеево и Капотней. У жителей "Крыльев" будет возможность быстро выезжать на трассу, которая обеспечивает диагональную связь с противоположным концом города без необходимости заезжать в центр или толкаться на Третьем Транспортном кольце.
Долгое время основная часть Раменок была удалена от метрополитена. Станции "Университет" и "Проспект Вернадского" Сокольнической ветки находятся у южных границ района. Но в 2018 году Калининско-Солнцевская линия была продлена, открылись новые станции. Ближе всех к ЖК "Крылья" расположены вестибюли "Мичуринского проспекта". Расстояние 1,2 км. Дорога пешком заняла почти полчаса. На 120-м автобусе можно добраться за 5 минут.
В 2021 году на пересечении с Очаковским шоссе откроют станцию "Аминьевское шоссе" Большой Кольцевой линии. От нашего комплекса вестибюли расположены в 500 метрах. Пройти к метро можно будет по новому подземному переходу под путями Киевской железной дороги.
![ЖК “Крылья”: полёт фантазии бизнес-класса - Фото 1]()
Одна из магистралей, ведущих в Западный округ, - Мичуринский проспект ![ЖК “Крылья”: полёт фантазии бизнес-класса - Фото 2]()
Район Раменки граничит с Хамовниками ![ЖК “Крылья”: полёт фантазии бизнес-класса - Фото 3]()
К ЖК "Крылья" от Мичуринского проспекта ведёт улица Лобачевского ![ЖК “Крылья”: полёт фантазии бизнес-класса - Фото 4]()
Улица Лобачевского входит в состав Южной рокады ![ЖК “Крылья”: полёт фантазии бизнес-класса - Фото 5]()
Возле новостройки находится развязка, которая позволяет выезжать в обе стороны магистрали ![ЖК “Крылья”: полёт фантазии бизнес-класса - Фото 6]()
Ближайшее к "Крыльям" метро - "Мичуринский проспект" ![ЖК “Крылья”: полёт фантазии бизнес-класса - Фото 7]()
Станция была открыта в августе 2018 года ![ЖК “Крылья”: полёт фантазии бизнес-класса - Фото 8]()
На Калининско-Солнцевской линии курсируют поезда "Москва" с вагонами увеличенной вместимости и с usb-розетками ![ЖК “Крылья”: полёт фантазии бизнес-класса - Фото 9]()
ЖК "Крылья" расположен в 1,5 км от метро "Мичуринский проспект" ![ЖК “Крылья”: полёт фантазии бизнес-класса - Фото 10]()
Дорога на 120-м автобусе займёт 5 минут ![ЖК “Крылья”: полёт фантазии бизнес-класса - Фото 11]()
В 2021 году в 500 м от новостройки откроется станция метро "Аминьевское шоссе". Иллюстрация со строительного портала Москвы
Архитектура и стройка
ЖК "Крылья" включает три корпуса. Каждое из зданий представляет собой башню-трилистник. Архитектурный проект разработан в британском бюро Aedas. Высота секций от 24 до 40 этажей.
Каркас домов выполнен из монолитного железобетона. Наружные стены выкладывают из бетонных блоков. Впоследствии их закроет система вентилируемого фасада. Для облицовки на уровне первого этажа будет использован мрамор, выше алюминиевые панели. Большую площадь поверхности фасада занимает остекление. Корзин для внешних блоков кондиционеров не предусмотрено, поскольку компрессор помещается в коллекторную нишу.
Переменная этажность башен позволила сделать эксплуатируемую крышу. На ней разместятся зоны отдыха. Магнитные ключи от выхода наверх получат все жители подъезда. По согласованию с управляющей компанией будет возможность забронировать это пространство, например, для празднования дня рождения.
Все три дома сдаются одновременно. Получить разрешение на ввод в эксплуатацию застройщик планирует в I квартале 2021 года. Жильё сдаётся без отделки и без межкомнатных перегородок. В некоторых, как правило, многокомнатных квартирах, встречаются несущие монолитные пилоны. Застройщик проводил исследование о необходимости чистовой или предчистовой отделки. Маркетологи пришли к выводу, что на данном объекте это не будет пользоваться спросом.
Высота потолка в квартирах 3,1 м. Устанавливаются стеклопакеты немецкого бренда ARtec в алюминиевом профиле. Окна — полупанорамные, высотой до 2,5 м. Их ставят в 70 см от пола без учёта стяжки. Разводку отопления делают по полу. Электричество будет заведено в квартиру до щитка, коммуникации на заглушках.
За год до госкомиссии монолитные каркасы домов возведены, идёт укладка наружных стен и кровельные работы. Вскоре должно начаться остекление, а затем фасадные работы. Строители сооружают въезд в подземный паркинг.
![ЖК “Крылья”: полёт фантазии бизнес-класса - Фото 12]()
В ЖК "Крылья" строятся 3 монолитных корпуса переменной этажности ![ЖК “Крылья”: полёт фантазии бизнес-класса - Фото 13]()
Фасад будет облицован мрамором и алюминиевыми панелями, обширно остеклён ![ЖК “Крылья”: полёт фантазии бизнес-класса - Фото 14]()
За год до заселения строители выкладывают наружные стены на уровне верхних этажей ![ЖК “Крылья”: полёт фантазии бизнес-класса - Фото 15]()
Все дома должны сдать в I квартале 2021 года ![ЖК “Крылья”: полёт фантазии бизнес-класса - Фото 16]()
Башни одноподъездные, на этаже может быть больше 20 квартир ![ЖК “Крылья”: полёт фантазии бизнес-класса - Фото 17]()
Квартиры в комплексе сдаются без отделки и без межкомнатных перегородок
Проект: факты и цифры
В первоначальной версии проектной декларации в трёх корпусах планировалось построить почти полторы тысячи квартир и 1100 мест в подземном паркинге. Сейчас цифры изменились. В ЖК "Крылья" будет 1756 квартир. Одноуровневая стоянка сможет вместить 785 автомобилей. Предусмотрена автомойка. Ещё 210 машиномест будет на гостевой парковке. На -1 этаже можно выкупить кладовые помещения, но их выведут в продажу не раньше апреля 2020-го.
Территория "Крыльев" занимает 8,5 гектаров. Треть её отдадут под озеленение и ландшафтный дизайн. Проект благоустройства разработан московским архитектурным бюро ABD architects. Рекреационные зоны оборудованы с учётом разных возрастных групп жителей. Запланирован небольшой водоём и зона барбекю, спортивные сооружения для занятия воркаутом, площадка для выгула и дрессировки собак. Будет работать свободный wifi.
Жилой комплекс огорожен, предусмотрено видеонаблюдение и охрана. На первых этажах находятся коммерческие помещения, которые займут детские образовательные студии, салоны красоты, ветеринарная клиника, фитнес-центр с бассейном, магазины и другие точки бытовых услуг.
На территории расположена агролаборатория Panasonic, где выращивают овощи, зелень и клубнику без применения химикатов. Спектр LED-освещения подобран таким образом, что растения зреют, как под солнцем. Фабрика выставляет температуру и влажность воздуха в автоматизированном режиме. Такие технологии позволяют выращивать "здоровую" зелень, как с бабушкиной грядки. А поскольку не нужно тратить время на доставку, овощи максимально сохраняют свежесть и полезные свойства.
В новостройке предусмотрены сквозные входные группы без лестниц и пандусов. Высота потолков в лобби 7 м. В подъездах от 2 до 5 лифтов Schindler в зависимости от этажности. Грузопассажирские спускаются в паркинг. На первом этаже будет стойка консьержа, лаунж-зона, помещения для хранения детских колясок и спортивного инвентаря с розетками для зарядки электросамокатов. Задумана помывочная для собачьих лап.
Для жителей комплекса разрабатывается мобильное приложение. С его помощью можно будет связаться с консьерж-сервисом, оплачивать коммунальные услуги, подключаться к видеокамерам на территории и заказывать еду.
![ЖК “Крылья”: полёт фантазии бизнес-класса - Фото 18]()
Башни в ЖК "Крылья" выполнены в форме трилистников. Здесь и дальше в галерее иллюстрации застройщика ![ЖК “Крылья”: полёт фантазии бизнес-класса - Фото 19]()
Предусмотрена эксплуатируемая кровля с зонами отдыха ![ЖК “Крылья”: полёт фантазии бизнес-класса - Фото 20]()
Территория занимает 8,5 гектаров ![ЖК “Крылья”: полёт фантазии бизнес-класса - Фото 21]()
С высоких этажей открываются панорамные виды на Раменки и соседние районы ![ЖК “Крылья”: полёт фантазии бизнес-класса - Фото 22]()
Комплекс огорожен и охраняется ![ЖК “Крылья”: полёт фантазии бизнес-класса - Фото 23]()
Зонирование сделано с учетом потребностей жителей разного возраста ![ЖК “Крылья”: полёт фантазии бизнес-класса - Фото 24]()
Будет свой водоём и зона барбекю ![ЖК “Крылья”: полёт фантазии бизнес-класса - Фото 25]()
На первых этажах предусмотрена стойка консьержа, колясочные. Устанавливаются лифты Schindler
Квартиры, паркинг и цены
Раменки входит в десяток самых дорогих районов столицы. Цены на недвижимость тут фактически догнали уровень Хамовников и Замоскворечья. Жильё эконом- и комфорт-классов давно не строят. Именно в Раменках появились одни из первых премиальных жилых комплексов столицы: "Золотые ключи", "Депутатский дом" и другие.
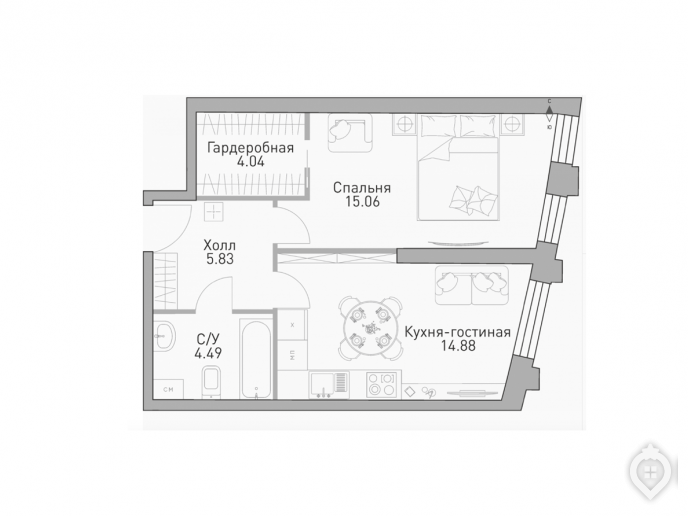
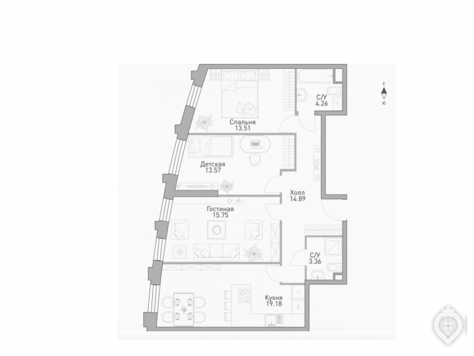
На стоимость квартиры в ЖК "Крылья" традиционно влияет этаж — чем выше, тем дороже. Но жильё с окнами на железную дорогу будет дешевле, чем с видом на парк вдоль реки Раменки. Поскольку форма домов необычная, здесь много вариантов с нестандартной планировкой и асимметричными комнатами. Ни балконов, ни лоджий не предусмотрено. Корпуса расположены таким образом, что отсутствует эффект "окна в окна": между "лепестками" соседних башен расстояние более 100 метров.
Цены начинаются от 9 млн за студию 29 кв. м. Такие малышки плохо поддаются зонированию. За 10,5 млн рублей можно позволить 35-57 квадратов и организовать евродвушку. Метраж выше продают за 14 млн. Площадь от 70 кв. м обойдется как минимум в 16 млн, а от 85 кв. м — в 20 млн. Все большие планировки линейные, со скошенным краем. За 28 млн рублей продают жильё с террасой на крыше.
Деление на комнаты весьма условно. Окон в квартирах много, поэтому можно организовать пространство по своему вкусу.
В целом, создаётся впечатление, что в корпусе нет двух одинаковых квартир. Даже если очертание внешних стен похоже, количество или расположение окон разное. И, потом, фантазию собственника никто не ограничивает — расставит стены, как захочет.
Подземный паркинг уже выведен в продажу. Площадь машиномест от 13 до 18 кв. м, разброс цен 1 700-2 500 тыс. рублей.
![ЖК “Крылья”: полёт фантазии бизнес-класса - Фото 26]()
Стоимость квартир в ЖК "Крылья" начинается от 9 млн ![ЖК “Крылья”: полёт фантазии бизнес-класса - Фото 27]()
На 35 кв. м можно организовать евродвушку. Цена 10 700 тыс. рублей ![ЖК “Крылья”: полёт фантазии бизнес-класса - Фото 28]()
Квартиры площадью 40 кв. м продаются по цене от 10,5 млн рублей ![ЖК “Крылья”: полёт фантазии бизнес-класса - Фото 29]()
За 45 кв. м нужно заплатить не менее 13,5 млн рублей ![ЖК “Крылья”: полёт фантазии бизнес-класса - Фото 30]()
Студийное пространство с тремя окнами стоит 13,5 млн рублей ![ЖК “Крылья”: полёт фантазии бизнес-класса - Фото 31]()
Крупную евродвушку отдают за 13,5 млн рублей ![ЖК “Крылья”: полёт фантазии бизнес-класса - Фото 32]()
64 кв. м с широкими окнами предлагают за 15,5 млн рублей ![ЖК “Крылья”: полёт фантазии бизнес-класса - Фото 33]()
На площади 68,5 кв. м можно сделать евродвушку или полноценную двухкомнатную квартиру. Цена от 15 млн рублей ![ЖК “Крылья”: полёт фантазии бизнес-класса - Фото 34]()
Трёхкомнатные квартиры площадью 85 кв. м продаются по цене от 18 млн рублей ![ЖК “Крылья”: полёт фантазии бизнес-класса - Фото 35]()
Четырёхкомнатные квартиры площадью 106 кв. м предлагают от 28 млн рублей
Офис застройщика и условия продаж
Проектная декларация называет застройщиком ЖК "Крылья" АО "Лобачевского, 120". Юридическое лицо в сфере недвижимости нередко создаётся под конкретный проект. Учредителем данной компании было АО "Лидер-инвест". Но в августе 2019 года "Группа Эталон" завершила сделку по покупке "Лидер-инвеста". Теперь квартиры в Раменках продаются под новым брендом.
"Группа Эталон" образована в 1987 году и является одним из лидеров по объёму строящегося жилья. Компания работает на рынке Санкт-Петербурга, Московской области и Москвы. Проекты у "Эталона" разные — от эконом-класса в "Изумрудных холмах" до премиум предложений в "Резиденции на Покровском бульваре".
Общение в офисе продаж заняло около получаса. Менеджер был любезен и разговорчив. Поскольку в комплексе много разных планировок, сотрудник задавал уточнняющие вопросы. Спрашивал о предпочтениях по высоте этажа, стороне света и удобной форме расчёта.
Застройщик предлагает два вида беспроцентной рассрочки. В первом случае нужно внести 40% от стоимости жилья. Остаток оплачивается равными долями до конца 2020 года. Второй вид рассрочки подразумевает внесение 70%. Но в этом случае покупатель ещё получает скидку, что обычно дают при стопроцентной оплате и ипотеке. Остаток платежа также распределяется на месяцы, оставшиеся до конца года.
Услуга трейд-ин подразумевает работу с партнёрским агентством недвижимости. Вы вносите 50 тыс. рублей в качестве аванса, застройщик снимает квартиру с продажи и фиксирует цену на два месяца. За это время риелторы должны продать вашу старую жилплощадь, за что придется ещё заплатить 150 тыс. рублей.
Понравившуюся квартиру менеджер продаж бесплатно забронирует для вас на неделю, или на две — в случае привлечения ипотечных средств. Кредит на покупку жилья в ЖК "Крылья" выдают Сбербанк, Уралсиб, Газпромбанк и другие. Программ без первоначального взноса нет. Большинство банков предлагают ипотеку в пределах 10% годовых. Регистрация договора долевого участия при любых формах оплаты бесплатная.
![ЖК “Крылья”: полёт фантазии бизнес-класса - Фото 36]()
Офис продаж расположен возле стройплощадки ![ЖК “Крылья”: полёт фантазии бизнес-класса - Фото 37]()
Павильон работает ежедневно с 9 утра до 9 вечера ![ЖК “Крылья”: полёт фантазии бизнес-класса - Фото 38]()
На стойке ресепшен вас встретят и проводят к менеджеру продаж ![ЖК “Крылья”: полёт фантазии бизнес-класса - Фото 39]()
При входе установлен макет будущего комплекса ![ЖК “Крылья”: полёт фантазии бизнес-класса - Фото 40]()
Оборудованы отдельные кабинеты для общения с менеджерами продаж ![ЖК “Крылья”: полёт фантазии бизнес-класса - Фото 41]()
Здесь можно увидеть ту самую агротеплицу Panasonic
Инфраструктура и окружение
Проект предполагает строительство собственной инфраструктуры. Часть нежилых помещений займёт коммерческий детский сад на 238 воспитанников. Школа тоже будет частной. Уже известно, что на территории "Крыльев" будет работать образовательное учреждение "Золотое сечение". Это адаптивная школа с возможностью выстроить индивидуальную программу обучения ребёнка. Стоимость обучения от 500 тыс. рублей в год.
В шаговой доступности от комплекса ещё три коммерческих детских сада разных сетей. Муниципальное дошкольное учреждение расположено на противоположной стороне улицы Лобачевского и на Очаковском шоссе. Ближайшая государственная школа №2025 находится в 800 м от новостройки.
Супермаркет "Магнит" есть в соседнем доме. Возле метро работают "Перекрёсток" и "Азбука вкуса". Торгово-развлекательный центр с кинотеатром "Фестиваль" открыт на Мичуринском проспекте.
С советских времён Раменки пользуются славой академического района столицы. Здесь расположены корпуса МГУ им. Ломоносова, Всероссийская академия внешней торговли, киностудия "Мосфильм". Часть района отдана под посольский городок, в котором особняки занимают представительства 16 государств.
Примерно четверть территории Раменок — это зелёная зона. Здесь находятся природный заказник "Воробьёвы горы", Ботанический сад МГУ, парк 50-летия Октября. В ЖК "Крылья" окна, выходящие на юго-восток, смотрят на ландшафтный заказник "Долина реки Раменки".
В Раменках нет промышленного производства. На карте мы видим только одну слепую зону вдоль кромки парка 50-летия Октября. Это территория принадлежит Министерству Обороны. Несложно догадаться, что о назначении этого участка никто не расскажет, но маловероятно, что там хранятся ядерные отходы. Ещё в 90-е годы американский журнал Time распустил слухи, что в этом месте расположен подземный бункер на случай атомной войны. Журналисты ссылались на источник в КГБ. В убежище 15 тыс. человек якобы смогут прожить 30 лет, так как там есть электростанция, система очистки воды и воздуха и тонны провизии.
Зато в соседнем районе с экологией не всё так гладко. Здесь расположена одна из крупнейших промзон Москвы "Очаково", что делится на Северное и Южное. Общая площадь участка свыше 650 гектаров. Здесь функционирует ТЭЦ-25, винодельческий, мясоперерабатывающий и молочный заводы, хладокомбинат, складские и логистические комплексы. Существует план реконструкции промзоны в Очаково-Матвеевском, но это не значит, что её превратят в зелёную зону. Напротив, власти Москвы планируют развивать здесь научную и промышленную деятельность, строить транспортную и инженерную инфраструктуру. Появятся новые объекты, например, пожарное депо и мусоросортировочный комплекс. Границы промзоны в километре от ЖК "Крылья".
![ЖК “Крылья”: полёт фантазии бизнес-класса - Фото 42]()
В соседнем жилом комплексе есть коммерческий детский сад ![ЖК “Крылья”: полёт фантазии бизнес-класса - Фото 43]()
Школа №2025 находится по другую сторону улицы Лобачевского ![ЖК “Крылья”: полёт фантазии бизнес-класса - Фото 44]()
Возле дома есть супермаркет "Магнит" ![ЖК “Крылья”: полёт фантазии бизнес-класса - Фото 45]()
Нежилые помещения в соседних домах занимают магазины ![ЖК “Крылья”: полёт фантазии бизнес-класса - Фото 46]()
"Азбука вкуса" есть в ТЦ "Любимый" ![ЖК “Крылья”: полёт фантазии бизнес-класса - Фото 47]()
В Раменках четверть территории занимают парки ![ЖК “Крылья”: полёт фантазии бизнес-класса - Фото 48]()
Ближайший к новостройке - это "Долина реки Раменки" ![ЖК “Крылья”: полёт фантазии бизнес-класса - Фото 49]()
На него выходят часть окон в ЖК "Крылья"

















































Добавить отзыв