Уже через год в апарт-комплексе "Левел Стрешнево" появятся первые постояльцы. Идея создателей проекта состояла в следующем: построить камерный комплекс, который подарит резидентам ощущение загородной жизни вместе с тем, что до города рукой подать. Учитывая большую высотность зданий, мотив загородной жизни звучит амбициозно. Посмотрим, как Level Group планирует осуществить задуманное.
Особенности локации
ЖК "Левел Стрешнево" строится в уединённом тупичке на стрелке Москвы-реки и реки Сходни. Раньше здесь стояли склады, снесённые теперь уверенной рукой девелопера Level Group. Жилых домов поблизости нет. С северной стороны обосновался "Мосводоканал", который является стратегическим предприятием столицы и переезжать отсюда не планирует. Вид на рыжие резервуары поливалок так себе, зато все постройки на территории организации малоэтажные, а заезд с противоположной от новостройки стороны.
За "Мосводоканалом" другой известный девелопер MR Group построит ЖК "City Bay" к 2025 году. Проект поделён на три очереди. В планах возведение социальной инфраструктуры, которой смогут пользоваться собственники апартаментов "Левел Стрешнево". Level Group и MR Group совместно благоустроят набережную Москвы-реки, которая идёт от одного комплекса к другому.
Окна, что выходят на запад, как раз смотрят на Москва-реку, Кировскую пойму и Строгино на противоположном берегу.
С юго-восточной стороны окна "Левел Стрешнево" выходят на бывший аэродром "Тушино", который московские девелоперы уже тоже раскроили на разные проекты. Помимо жилых домов здесь возводятся детские сады и школы, спортивные объекты. Планируется, например, ледовая арена и фехтовальный центр. До Тушинского поля от "Левел Стрешнево" по прямой метров 100, но мост через реку Сходню есть только на Волоколамке. Так что к соседям — в объезд, пешком идти займёт минут 40.
За счёт обособленного расположения доступ к торговой инфраструктуре у жителей "Левел Стрешнево" будет ограничен. На территории коммерческих помещений немного, а соседи неблизко. Но магазины есть у метро "Тушинская" и "Спартак". Крупный ТРЦ "Крокус сити" расположен на МКАДе поблизости от съезда на Волоколамское шоссе. В жилых кварталах на Волоколамке есть и муниципальные детские образовательные учреждения. Но не сказать, что всё под рукой. До ближайшей школы 2 км.
В 3 км от новостройки находится лесопарк "Покровское Стрешнево" со старинной усадьбой и родниками. Там водятся редкие для города птицы и животные: соколы, совы, кроты, бобры.
![ЖК "Левел Стрешнево": самый камерный проект района - Фото 1]()
"Левел Стрешнево" застройщик позиционирует как единственный комплекс бизнес-класса на берегу двух рек ![ЖК "Левел Стрешнево": самый камерный проект района - Фото 2]()
С западной стороны течёт Москва-река ![ЖК "Левел Стрешнево": самый камерный проект района - Фото 3]()
Набережная будет благоустроена до строящегося комплекса "Сити бей" ![ЖК "Левел Стрешнево": самый камерный проект района - Фото 4]()
Здесь есть небольшой причал ![ЖК "Левел Стрешнево": самый камерный проект района - Фото 5]()
Ширина реки в этом месте 250 м ![ЖК "Левел Стрешнево": самый камерный проект района - Фото 6]()
А это река Сходня, что протекает с юго-восточной стороны, набережная тоже будет благоустроена ![ЖК "Левел Стрешнево": самый камерный проект района - Фото 7]()
Линейный экопарк вдоль Сходни соединят с существующим парком "Берег реки Сходни" ![ЖК "Левел Стрешнево": самый камерный проект района - Фото 8]()
Он был благоустроен в 2019 году ![ЖК "Левел Стрешнево": самый камерный проект района - Фото 9]()
Территория "Левел Стрешнево" граничит с "Мосводоканалом" ![ЖК "Левел Стрешнево": самый камерный проект района - Фото 10]()
Объект подходит к северным границам, никаких планов переноса предприятия нет ![ЖК "Левел Стрешнево": самый камерный проект района - Фото 11]()
Стадион "Открытие Арена" расположен в 2 км ![ЖК "Левел Стрешнево": самый камерный проект района - Фото 12]()
Ближайшая школа расположена на проезде Стратонавтов ![ЖК "Левел Стрешнево": самый камерный проект района - Фото 13]()
По соседству с ней есть детский сад ![ЖК "Левел Стрешнево": самый камерный проект района - Фото 14]()
В жилых кварталах на Волоколамском шоссе есть магазины и другая коммерция
Транспортная доступность
Из центра Москвы к "Левел Стрешнево" ведёт Ленинградский проспект, переходящий в Волоколамское шоссе. Расстояние от Садового кольца 13 км.
На общественном транспорте удобнее всего доехать до станции метро "Тушинская". Здесь же расположена станция МЦД-2 "Тушино". На электричке тоже можно добраться до центра города, иногда это даже удобнее, чем на метро. К примеру, если вам нужно в сторону Рижского вокзала или на Дмитровку.
От метро "Тушинская" автобус довезёт до остановки "15-й автобусный парк" за 5 минут, действует выделенная полоса. Маршрутов в сторону МКАДа много. От остановки до домов в среднем 500 метров. До метро можно дойти и пешком, дорога займёт 20-30 минут.
![ЖК "Левел Стрешнево": самый камерный проект района - Фото 15]()
ЖК "Левел Стрешнево" расположен в 13 км от Садового кольца по Волоколамскому шоссе ![ЖК "Левел Стрешнево": самый камерный проект района - Фото 16]()
На Волоколамском шоссе проводилась многолетняя реконструкция со строительством развязок и эстакад ![ЖК "Левел Стрешнево": самый камерный проект района - Фото 17]()
Сейчас остался последний участок возле Сходненского моста ![ЖК "Левел Стрешнево": самый камерный проект района - Фото 18]()
Здесь пока ещё возможны заторы, но дорожные работы должны быть завершены в 2021 году ![ЖК "Левел Стрешнево": самый камерный проект района - Фото 19]()
Станция метро "Тушинская" находится в 1,5 км ![ЖК "Левел Стрешнево": самый камерный проект района - Фото 20]()
Здесь же расположена платформа "Тушино" ![ЖК "Левел Стрешнево": самый камерный проект района - Фото 21]()
На электричке второго диаметра можно добраться в центр Москвы ![ЖК "Левел Стрешнево": самый камерный проект района - Фото 22]()
От метро и платформы к новостройке идёт общественный транспорт ![ЖК "Левел Стрешнево": самый камерный проект района - Фото 23]()
Автобусы также ходят от станции метро "Сокол" ![ЖК "Левел Стрешнево": самый камерный проект района - Фото 24]()
Общественный транспорт двигается по выделенной полосе ![ЖК "Левел Стрешнево": самый камерный проект района - Фото 25]()
Остановка у "Левел Стрешнево" называется "15-й автобусный парк" ![ЖК "Левел Стрешнево": самый камерный проект района - Фото 26]()
Стройплощадка находится на противоположной стороне шоссе ![ЖК "Левел Стрешнево": самый камерный проект района - Фото 27]()
Есть подземный переход с лифтом ![ЖК "Левел Стрешнево": самый камерный проект района - Фото 28]()
От Волоколамки до домов в среднем 500 метров ![ЖК "Левел Стрешнево": самый камерный проект района - Фото 29]()
До въезда на территорию "Левел Стрешнево" будет организована парковка вдоль дороги
Оформление проекта
Комплекс "Левел Стрешнево" представлен тремя башнями на 747 апартаментов. Высота надземной части корпусов 25 этажей. Первые этажи частично жилые. Пять коммерческих помещений сдадут в аренду под гастроном и другую коммерцию.
Территория под охраной, двор без машин. Возле домов две игровые площадки — для малышей и для детей постарше. Предусмотрены спортивные турники и тренажёры для занятий воркаутом. В зоне отдыха установят уличную мебель в загородном стиле, сеть wi-fi покрывает весь участок. Озеленение стараются сохранить по максимуму. В дополнение будут высажены кустарники и взрослые деревья — горная сосна, клёны, рябина и другие.
Набережные обеих рек благоустроят. Вдоль Сходни планируется линейный экопарк протяжённостью 600 м, который плавно перейдёт в уже существующий парк "Берег реки Сходни" по другую сторону Волоколамки.
Входные группы оформлены в эко-стиле. Светлый интерьер с мраморным полом дополняют детали с фактурой дерева, панели из латуни, растительный декор. Площадь лобби до 135 кв. м, высота потолков 5,7 м, панорамное остекление пропускает много естественного света.
В лобби предусмотрена стойка консьержа, библиотека с электрокамином, зона для общения с соседями, оборудованная мягкой мебелью. Есть гостевые санузлы и помещение для мойки собачьих лап.
На этаже от 10 до 12 апартаментов. В каждой башне установлено по три лифта Otis, один из которых грузопассажирский. Кабины спускаются в паркинг.
Подземный отапливаемый паркинг вмещает 220 автомобилей, то есть машиномест здесь втрое меньше, чем апартаментов. На -1 этаже расположено 47 индивидуальных кладовых помещений.
Гостевая стоянка на территории рассчитана примерно на 15 машин. Организация парковки также планируется по обе стороны подъездной дороги, от Волоколамского шоссе до шлагбаума. Длина этого участка 290 метров.
![ЖК "Левел Стрешнево": самый камерный проект района - Фото 30]()
Три корпуса апарт-комплекса "Левел Стрешнево" носят названия "Юг", "Север" и "Запад". Иллюстрация застройщика ![ЖК "Левел Стрешнево": самый камерный проект района - Фото 31]()
Всего 747 апартаментов площадью от 23 до 228 кв. м. Иллюстрация застройщика ![ЖК "Левел Стрешнево": самый камерный проект района - Фото 32]()
Высота домов 25 этажей, на верхнем этаже расположены двухуровневые пентхаусы. Иллюстрация застройщика ![ЖК "Левел Стрешнево": самый камерный проект района - Фото 33]()
Территория огорожена и охраняется. Иллюстрация застройщика ![ЖК "Левел Стрешнево": самый камерный проект района - Фото 34]()
Во дворе две игровые площадки для детей разных возрастов. Иллюстрация застройщика ![ЖК "Левел Стрешнево": самый камерный проект района - Фото 35]()
Вдоль реки Сходни будет благоустроен эко-парк протяжённостью 600 метров. Иллюстрация застройщика ![ЖК "Левел Стрешнево": самый камерный проект района - Фото 36]()
С западной стороны от домов будет благоустроена набережная вдоль Москвы-реки. Иллюстрация застройщика ![ЖК "Левел Стрешнево": самый камерный проект района - Фото 37]()
Отделка входных групп выполнена в эко-стиле с использованием натурального камня, латуни и дерева. Иллюстрация застройщика ![ЖК "Левел Стрешнево": самый камерный проект района - Фото 38]()
В холле предусмотрены стойка консьержа и место для общения, оборудованное электрокамином. Иллюстрация застройщика
Архитектура и ход строительства
Башни апарт-комплекса построены по монолитной технологии. Фасад облицован фибробетонными панелями на металлическом каркасе. Частично для оформления используется стемалит. Это материал из закалённого стекла, покрытого керамической эмалью. Одна из выдающихся архитектурных деталей проекта — моллированные окна. Они выполнены из алюминиевого профиля закруглённой формы с двухкамерными стеклопакетами.
Проект поделён на две очереди. 1 и 2 корпуса — башни "Юг" и "Север" — планируют ввести в эксплуатацию в I квартале 2022 года. Летом 2021-го полным ходом идут фасадные работы. Наружные стены утеплили, виден каркас вентилируемого фасада. Идёт предчистовая отделка мест общего пользования.
Башню "Запад" построят ко II кварталу 2022 года. За год до заселения монолитный скелет здания почти готов, скоро начнутся кровельные и фасадные работы.
![ЖК "Левел Стрешнево": самый камерный проект района - Фото 39]()
До заселения ориентировочно год, так что остовы всех башен уже готовы ![ЖК "Левел Стрешнево": самый камерный проект района - Фото 40]()
Корпуса "Юг" и "Север" сдаются в I квартале 2022 года ![ЖК "Левел Стрешнево": самый камерный проект района - Фото 41]()
Сейчас здесь идут фасадные работы ![ЖК "Левел Стрешнево": самый камерный проект района - Фото 42]()
Для утепления наружных стен используется минераловатный материал Isoroc ![ЖК "Левел Стрешнево": самый камерный проект района - Фото 43]()
В качестве материала финишной отделки будут использоваться фибробетонные панели и стемалит ![ЖК "Левел Стрешнево": самый камерный проект района - Фото 44]()
Отличительная черта проекта - моллированные окна ![ЖК "Левел Стрешнево": самый камерный проект района - Фото 45]()
Остекление двух башен подходит к финальному этапу ![ЖК "Левел Стрешнево": самый камерный проект района - Фото 46]()
На стройплощадке лежит одна из последних партий, готовых к установке ![ЖК "Левел Стрешнево": самый камерный проект района - Фото 47]()
Ширина радиусных стеклопакетов доходит почти до 3 метров ![ЖК "Левел Стрешнево": самый камерный проект района - Фото 48]()
Закруглённые окна есть в большинстве видовых квартир ![ЖК "Левел Стрешнево": самый камерный проект района - Фото 49]()
С северной стороны зданий установлены обычные линейные стеклопакеты ![ЖК "Левел Стрешнево": самый камерный проект района - Фото 50]()
Ещё встречается угловое остекление ![ЖК "Левел Стрешнево": самый камерный проект района - Фото 51]()
В трёхкомнатных квартирах до 8 этажа будут незастеклённые балконы ![ЖК "Левел Стрешнево": самый камерный проект района - Фото 52]()
Башня "Запад" готовится к вводу в эксплуатацию во II квартале 2022 года ![ЖК "Левел Стрешнево": самый камерный проект района - Фото 53]()
Сейчас на верхних этажах ведутся монолитные работы ![ЖК "Левел Стрешнево": самый камерный проект района - Фото 54]()
Все башни в комплексе возведены по монолитной технологии ![ЖК "Левел Стрешнево": самый камерный проект района - Фото 55]()
Оконные проёмы дополнены армированными бетонными перемычками Bonolit projects ![ЖК "Левел Стрешнево": самый камерный проект района - Фото 56]()
Апартаменты в первых двух корпусах сдаются со свободной планировкой ![ЖК "Левел Стрешнево": самый камерный проект района - Фото 57]()
В башне "Запад" продаются лоты с предчистовой отделкой ![ЖК "Левел Стрешнево": самый камерный проект района - Фото 58]()
Благоустройство территории пока не начато ![ЖК "Левел Стрешнево": самый камерный проект района - Фото 59]()
Ведутся работы по прокладке коммуникаций ![ЖК "Левел Стрешнево": самый камерный проект района - Фото 60]()
Так летом 2021 года выглядит набережная реки Сходни, которая подлежит реконструкции
Апартаменты и цены
Все помещения в "Левел Стрешнево" продаются в статусе апартаментов гостиничного типа. В такой недвижимости нет возможности зарегистрироваться постоянно. Налоговая ставка на апартаменты 0,5% от кадастровой стоимости в год. Собственники квартир платят только 0,1%. Однако и кадастровая стоимость апартаментов ниже, чем цена жилой недвижимости. Получается, что налог на апартаменты, конечно, повыше, но не в пять раз. Разговоры о том, чтобы приравнять коммерческую недвижимость гостиничного типа к жилым помещениям идут давно. Предполагается, что соответствующий законопроект будет рассмотрен в Госдуме осенью 2021 года.
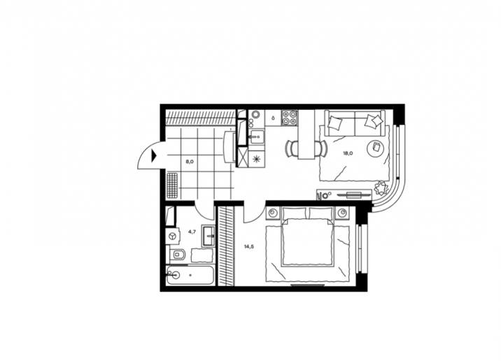
Планировок в "Левел Стрешнево" не так уж много, не наберётся и двух десятков с учётом редких форматов. В корпусах "Юг" и "Север" продаются апартаменты свободной планировки. Коммуникации заведены в помещение, выполнена горизонтальная разводка отопления, установлены радиаторы фирмы Prado.
В проекте ещё осталось несколько студий, которые продаются по цене от 9 млн рублей за 25 кв. м. Большинство из них расположены в башне "Запад", где все предложения с предчистовой отделкой white box.
Разницы в цене по сравнению с лотом "в бетоне" практически нет, потому что 3 корпус "Запад" сдаётся на квартал позже. Соответственно, базовая цена там пониже, к ней добавлена стоимость предчистового ремонта. В среднем апартамент с одной спальней можно приобрести за 12 млн рублей, если он расположен не выше 15 этажа. Высота потолка здесь 3 м, высота оконного проёма 2 м. Остекление не панорамное, оконный проём в 60 см от пола. Нужно учитывать, что это предложения с обычными линейными окнами.
Такой же 45-метровый апартамент в формате евродвушки с моллированными окнами стоит как минимум 13 млн рублей, и на миллион дороже, если рассматривать вариант повыше. Начиная с 16 этажа, высота потолка 3,3 м, а высота окна 2,3 м. Ширина оконных проёмов достигает 2,5 м, радиусная форма увеличивают угол обзора до 270 градусов.
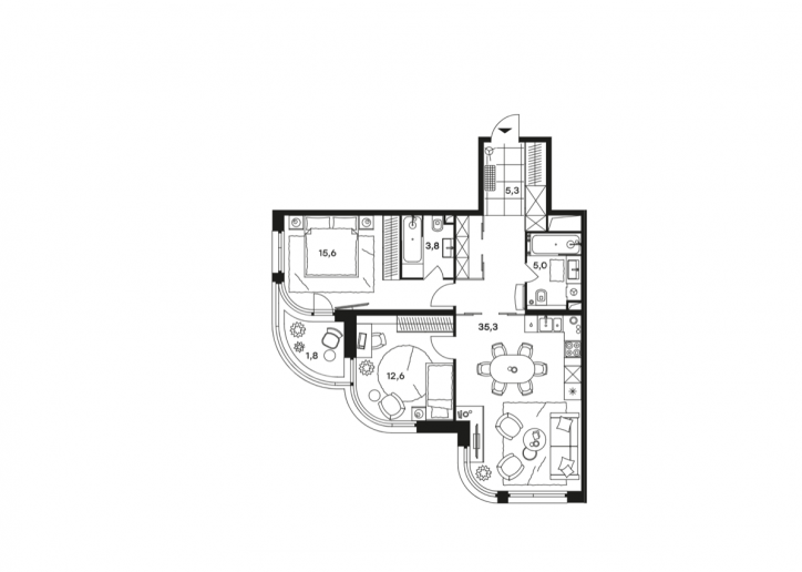
Площадь апартаментов с двумя спальнями 65 кв. м. В кухне-гостиной радиусное окно, в одной из комнат угловой стеклопакет. Цена от 16 млн рублей. В трёхкомнатных предложениях от 20 млн рублей моллированные окна во всех комнатах. Со 2 по 8 этаж ещё будет открытый балкон закруглённой формы. 100-метровые четырёхкомнатные апартаменты похожей планировки предложены за 35 млн рублей.
На первых этажах расположены апартаменты с собственным входом и патио. Метраж 104 кв. м. Высота потолка здесь 5,7 м. Однако все они уже проданы. На 25-х этажах расположены двухуровневые пентхаусы площадью от 190 до 230 кв. м. Такой апартамент располагает несколькими террасами. Высота потолков 6,2 м. Стоимость от 65 млн рублей.
![ЖК "Левел Стрешнево": самый камерный проект района - Фото 61]()
Стоимость студий в проекте начинается от 9 млн рублей. Это 23-метровый вариант с линейным остеклением на низком этаже ![ЖК "Левел Стрешнево": самый камерный проект района - Фото 62]()
Вариант с моллированным остеклением на высоком этаже предложен за 9 160 тыс. рублей ![ЖК "Левел Стрешнево": самый камерный проект района - Фото 63]()
Апартаменты формата евродвушки продаются по цене от 11 600 тыс. рублей за 45 кв. м ![ЖК "Левел Стрешнево": самый камерный проект района - Фото 64]()
Такая же площадь, но с радиусным окном стоит как минимум 13 800 тыс. рублей ![ЖК "Левел Стрешнево": самый камерный проект района - Фото 65]()
56-метровый апартамент можно подобрать за 14 млн рублей ![ЖК "Левел Стрешнево": самый камерный проект района - Фото 66]()
Евродвушка площадью 65 кв. м стоит 17 200 тыс. рублей ![ЖК "Левел Стрешнево": самый камерный проект района - Фото 67]()
Трёхкомнатные апартаменты продаются по цене от 20 млн рублей за 77 кв. метров. Есть варианты с балконом и без ![ЖК "Левел Стрешнево": самый камерный проект района - Фото 68]()
Площадь четырёхкомнатных апартаментов 98 кв. м. Цена 26 500 тыс. рублей с учётом предчистовой отделки ![ЖК "Левел Стрешнево": самый камерный проект района - Фото 69]()
Двухуровневый пентхаус площадью 230 кв. м выставлен на продажу за 65 млн рублей
Подробно об отделке
Отделка white box в башне "Запад" предполагает возведение межкомнатных перегородок из двухслойного гипсокартонного листа по проекту. Стены выровнены с нанесением гипсовой шпаклёвки и штукатурки, разведена электрика. Застройщик кладёт шумоизоляционную мембрану между бетонной плитой и стяжкой пола. Потолки остаются в бетоне.
При покупке квартиры в башне "Запад" можно выбрать дополнительную опцию — чистовую дизайнерскую отделку. Предложены стили Classic и Modern. Стены окрашены двойным слоем краски Dulux Trade. На полу дубовая доска. Межкомнатные двери из массива сосны и МДФ покрыты белой эмалью. В цвет им 10-сантиметровый плинтус из дюрополимера. Рамки розеток и выключателей Schneider Electric. По всей площади делают тканевый натяжной потолок.
На полу и на стенах в санузлах плитка Kerama Marazzi, ниши окрашены влагостойкой краской. Предусмотрена розетка под электрический полотенцесушитель, стиральную и сушильную машины. Ванна из искусственного камня, унитаз с инсталляцией и пневматическим сливом.
В стоимость чистовой отделки входит устройство тёплого пола в санузлах и установка кондиционеров в каждой комнате. При просмотре апартаментов в башне "Запад" на сайте покупатель видит две цены — с отделкой white box и с дизайнерским ремонтом. Выходит, что стоимость чистовой отделки примерно 30-35 тыс. рублей за кв. метр.
![ЖК "Левел Стрешнево": самый камерный проект района - Фото 70]()
Шоу-рум организован в офисе продаж ![ЖК "Левел Стрешнево": самый камерный проект района - Фото 71]()
Стены окрашены, в классическом варианте предусмотрены молдинги ![ЖК "Левел Стрешнево": самый камерный проект района - Фото 72]()
На пол укладывают паркетную доску ![ЖК "Левел Стрешнево": самый камерный проект района - Фото 73]()
В обоих вариантах отделки будет белый высокий плинтус ![ЖК "Левел Стрешнево": самый камерный проект района - Фото 74]()
Межкомнатные двери окрашены белой эмалью ![ЖК "Левел Стрешнево": самый камерный проект района - Фото 75]()
Эта модель из отделки "Модерн" ![ЖК "Левел Стрешнево": самый камерный проект района - Фото 76]()
Фурнитура одинаковая и в классической, и в современной отделке ![ЖК "Левел Стрешнево": самый камерный проект района - Фото 77]()
В апартаментах с высокими потолками высота дверного полотна 2,4 м ![ЖК "Левел Стрешнево": самый камерный проект района - Фото 78]()
Санузлы сдаются под ключ ![ЖК "Левел Стрешнево": самый камерный проект района - Фото 79]()
Возможна организация душевого уголка ![ЖК "Левел Стрешнево": самый камерный проект района - Фото 80]()
Или установка ванны из искусственного камня ![ЖК "Левел Стрешнево": самый камерный проект района - Фото 81]()
Используется сантехника Grohe ![ЖК "Левел Стрешнево": самый камерный проект района - Фото 82]()
Широкоформатная раковина устанавливается в классическом варианте отделки санузлов ![ЖК "Левел Стрешнево": самый камерный проект района - Фото 83]()
Это пример из современного варианта отделки ![ЖК "Левел Стрешнево": самый камерный проект района - Фото 84]()
Устанавливается подвесной унитаз Kale, крышка и сиденье с микролифтом ![ЖК "Левел Стрешнево": самый камерный проект района - Фото 85]()
Преимуществом пневматического слива является почти бесшумный спуск воды ![ЖК "Левел Стрешнево": самый камерный проект района - Фото 86]()
Полотенцесушителя не будет, но розетка под него предусмотрена ![ЖК "Левел Стрешнево": самый камерный проект района - Фото 87]()
Стены облицованы плиткой Kerama Marazzi. На фото современная отделка ![ЖК "Левел Стрешнево": самый камерный проект района - Фото 88]()
Это образец отделки "Классик" ![ЖК "Левел Стрешнево": самый камерный проект района - Фото 89]()
На полу плитка того же производителя в цвет ![ЖК "Левел Стрешнево": самый камерный проект района - Фото 90]()
По всей квартире делают натяжной потолок
Застройщик и условия продаж
Девелопер Level Group известен с 2003 года. Как правило, он берётся за проекты с нуля, осваивая территорию комплексно, и доводит объекты до стадии эксплуатации.
Level Group предпочитает работать в бизнес- и премиум-классе. Только в проекте "Левел Амурская" застройщик опустился до комфорта. Этот жилой комплекс уже проверял тайный покупатель. В портфеле компании — офисное здание класса А, несколько клубных домов в центре столицы. Сейчас на реализации находятся шесть комплексов. Все они строятся в Москве.
Понравившийся вариант бесплатно придержат на пару дней без фиксации цены. Далее нужно заключить договор бронирования и внести 100 тыс. рублей, которые не возвращаются при отмене сделки или учитываются при оплате, если покупка состоится. При стопроцентной оплате нужно расплатиться в течение 3 дней со дня заключения договора бронирования. При ипотеке этот срок увеличен до 7 рабочих дней.
Сделка заключается в электронном виде. Дополнительные расходы могут быть связаны с нотариальным заверением необходимых документов. Дольщик оплачивает открытие аккредитивного счёта в Сбербанке в случае стопроцентной оплаты. Это стоит 3 400 рублей.
Условия рассрочки жёсткие. Первоначальный взнос 50%, остаток в последующие 3 месяца. При этом покупатель теряет существенную скидку, которая действует при единовременной оплате или ипотеке.
Кредит на покупку апартаментов в "Левел Стрешнево" дают в Сбере, ВТБ, Альфа банке и других. Ставки по субсидированным или льготным программам от 1,8%. Но средняя ставка около 5%.
![ЖК "Левел Стрешнево": самый камерный проект района - Фото 91]()
Офис застройщика находится на набережной Москвы-реки возле стройплощадки ![ЖК "Левел Стрешнево": самый камерный проект района - Фото 92]()
Чтобы выйти к павильону, нужно пройти вдоль всех корпусов ![ЖК "Левел Стрешнево": самый камерный проект района - Фото 93]()
Здесь также есть парковка ![ЖК "Левел Стрешнево": самый камерный проект района - Фото 94]()
Набережная частично благоустроена ![ЖК "Левел Стрешнево": самый камерный проект района - Фото 95]()
Офис работает ежедневно с 9 утра до 9 вечера ![ЖК "Левел Стрешнево": самый камерный проект района - Фото 96]()
Внутри есть зона ожидания ![ЖК "Левел Стрешнево": самый камерный проект района - Фото 97]()
Такие же электрокамины будут установлены в лобби корпусов ![ЖК "Левел Стрешнево": самый камерный проект района - Фото 98]()
В офисе установлен макет будущего комплекса
- 4/5транспорт
- 3/5экология
- 4/5инфраструктура
- 4/5цена/качество


































































































Добавить отзыв