ЖК "Марусино Forest"


+2 фотоХарактеристики
| Срок сдачи | 2020 год |
| Отделка | Предчистовая |
| Количество этажей | 3 |
| Тип дома | Кирпич-монолит |
| Парковка | Многоуровневый |
| Потолки | 3.00 метра |
| Квартир | 2964 |
| Класс жилья | Эконом |
| Тип договора | 214 ФЗ |
Описание
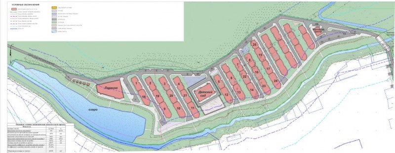
ЖК "Марусино Forest" - жилой комплекс, что расположен возле деревни Мотяково Люберецкого района Московской области. В проект входит 38 малоэтажных корпусов общей площадью близко 50 тыс. кв.м.
Трехэтажные дома состоят из 3 секций каждый. В первых двух секциях будет расположено по 30 квартир, в третьей – 18 жилых помещений. Предложены квартиры от студий до трехкомнатных с предчистовой отделкой. Комплекс оснащен инженерными коммуникациями, подсоединенными к центральным. К домам проведут линии интернет, телефон и телевидения.
Читать далее
Инфраструктура
Жилой комплекс "Марусино Форест" строится с собственной инфраструктурой, которая представлена:
- магазинами;
- ресторанами и кафе;
- детским садом на 150 мест;
- школой;
- торговым центром;
- зонами отдыха с озером, на котором живут лебеди;
- многоуровневым паркингом;
- спортивными площадками.
По периметру территории устанавливается ограждение. Предусмотрена круглосуточная охрана.
Поселок расположен приблизительно на одинаковом расстоянии от городов Железнодорожный и Люберцы (11 км). До МКАД можно добраться по Косинском шоссе (14 км) или Носовихинском шоссе (19 км).
Наше мнение
ЖК "Марусино Форест" строится в районе не столь отдаленным от столицы, но там где еще сохранилась чистая природа. Недалеко находится Савинский пруд, протекает река Черная, расположена лесопарковая зона. Жить в таком укромном уголке мечтают многие москвичи. Но есть один существенный минус, смириться с которым готов не каждый – слабо развитая инфраструктура местности. К примеру, ближайшие существующие детский сад и поликлиника находятся в 2,5 км. Хотя перспектива развития есть: рядом строится еще один малоэтажный комплекс - "Кореневский форт". В нем будут открыты новая школа, детсад и торгово-офисный центр. Несколько компенсируют дефицит инфраструктуры также и собственные объекты в составе "Марусино Форест". Все же для современного человека выбор торгово-развлекательных и социальных объектов здесь невелик.
- 3/5транспорт
- 4/5экология
- 3/5инфраструктура
- 5/5цена/качество
СтройКонтинент 1 сдано
Позвонить нажмитеЗапись на просмотр
Выберите удобную дату и время для встречи в офисе застройщика.
Это бесплатно. Отмена в любое время.
Вы записаны на просмотр
На .
Мы позвоним для подтверждения.
Заказ звонка
Оставьте свой номер телефона
и мы перезвоним:
Звонок заказан
Ожидайте, перезвоним в ближайшее
время на номер
Отзывы о Марусино Форесте
14 отзывов от жильцов и дольщиков
Министр образования
9 лет назад
Министр образования
9 лет назад
Станислав
9 лет назад
Основной целью этих лиц является затягивание процесса продажи земельных участков и в последующем осуществление своих рейдерских задач в Марусино Остров.
Руководство Марусино Остров относится с пониманием к действиям этих лиц, но в то же время, заинтересовано вЧитать далее скорейшем разрешении этой ситуации, так как их действия направлены против остальных дольщиков и результатом действий этих лиц является затягивание процесса продажи земельных участков.
С целью нивелировать усилия этих лиц по очернению поселка Марусино Остров и отпугиванию потенциальных покупателей земельных участков, руководство Марусино Остров изыскало из личных источников и в настоящее время осуществляет возврат денежных средств по своим обязательствам перед перед этими физическими лицами, внесшими средства в Марусино Форест.
Ирина
9 лет назад
Татьяна
8 лет назад
Обманутый дольщик
9 лет назад
Алексей
9 лет назад
Дольщик Обманутый
9 лет назад
Смотрите сами достоверную информацию на официальных сайтах – только на сегодняшний день у него 42 иска в суде! Это только вЧитать далее Железнодорожном! А сеть еще иски в Люберцах, Балашихе, Тамбове, Москве, Муроме!
Только у приставов уже исполнительные листы приставам на сумму 12 миллионов рублей
Малышев кинул не только простодушных людей, которые купили у него квартиры, которые он и не собирался строить, но и своих поставщиков - смотрите картотеку дел на сайте арбитражного суда г Москвы по ИНН 5012047965 У Малышева долги перед поставщиками на миллионы и миллионы рублей!
Верьте фактам, а не его сладким речам! Ему пишут речи профессиональные психологи и спичрайтеры! У Малышева есть деньги на все – на спичрайтеров, на коллекторов, на отсыпку, на рекламу, на взятки, нет только денег вернуть людям долги! Да, мы лоханулись и отдали ему еще в2013 году свои деньги – в итоге ни денег, ни квартир, отдавать он деньги и не собирается. Не повторяйте наши ошибки! Не покупайте у него землю Марусино Остров! Будете потом бегать за ним безрезультатно также как и мы!
А новостные сюжеты сняты федеральным ТВ каналом и каналом партии Госдумы. Подумайте и рассудите сами, есть ли им смысл снимать, как говорит Малышев, что-то предвзятое? Я думаю, что нет.
Александр
9 лет назад
Руководство Марусино Остров не скрывается от ответственности перед физическими лицами, внесшими средства в Марусино Форест, признает свои обязательства перед ними и ведет работы по удовлетворению их требований.
Земельные участки Марусино Остров стоит покупать, потому что они расположены в доступном месте и рядом с лесом, что немаловажно с экологической точки зрения. К тому же можно ожидать, что в создавшейся ситуации политика продаж Марусино Остров будет гибкой, что может быть интересно и для крупных игроков земельного рынка.
Александр
9 лет назад
Дольщик Обманутый
9 лет назад
Не ведитесь на этот обман!! Это мошенничество чистой воды! Об этом даже на федеральном канале говорили!! Ген директор открыто сознался, что нарушает закон!
Сергей
10 лет назад
Ольга
10 лет назад